賃貸アパート
コーポヤチヨⅠの賃貸物件情報(1K/1階)
| 家賃 | 管理費等 | 敷金 | 礼金 | 間取り | 専有面積 |
|---|---|---|---|---|---|
| 3.5万円 | 3,000円 | なし | なし | 1K | 20m2 |
入居決定でお祝い金最大100,000円
Point
まずはお問い合わせ!
不動産会社は街のプロ、あなたに合った物件がきっと見つかります。
提供:(株)アルーム総合不動産(SUUMO経由)

詳細情報 コーポヤチヨⅠ
物件紹介
コーポヤチヨⅠはJR宇都宮線東大宮駅から徒歩8分にあり、駅近で通勤通学に便利なアパートです。
このお部屋のインターホンにはTVモニタがついているため、相手の顔を確認してから来客対応することができます。
人気の南向きのお部屋。また、フローリングなのでお掃除もラクラク。
通信設備面では、インターネットが無料で使えるので、月々の出費を抑えられるのも魅力です。また、CATVにも対応しているので、おうち時間も充実するでしょう(別途工事、CATVの契約料等が必要な場合あり)。
このお部屋のインターホンにはTVモニタがついているため、相手の顔を確認してから来客対応することができます。
人気の南向きのお部屋。また、フローリングなのでお掃除もラクラク。
通信設備面では、インターネットが無料で使えるので、月々の出費を抑えられるのも魅力です。また、CATVにも対応しているので、おうち時間も充実するでしょう(別途工事、CATVの契約料等が必要な場合あり)。
お金・契約の情報
※「-」と表示されているものは、実際は料金が発生するものもございます。詳細はお問い合わせください。
| 家賃 | 3.5万円 | 管理費・共益費 | 3,000円 |
|---|---|---|---|
| 敷金 | なし | 礼金 | なし |
| 入居決定でお祝い金最大100,000円 | |||
| 保証金 | - | 償却・敷引 | - |
| 住宅保険料 | - | 更新料 | - |
| 保証会社利用 | 必須 | 保証会社名 | 全保連 |
| 保証会社費用 | - | 保証会社備考 | 全保連利用必 総賃料の50%~ |
| 契約形態 | - | 契約期間 | - |
| 入居・引渡期間 | - | 現況 | - |
| 入居可能条件 | 事務所可 | ||
| 契約備考 | 退去時クリーニング代50,000円(税別) 1K 単身者可/事務所利用相談 損保【1.7万円2年】 エアコン、クロゼット、フローリング、TVインターホン、室内洗濯置、駐輪場、礼金不要、閑静な住宅地、IHクッキングヒーター、保証人不要、CATVインターネット、全居室フローリング、ネット使用料不要、事務所相談、学生相談、全室東南向き、駅徒歩10分以内、敷地内ごみ置き場、当社管理物件、都市ガス、シャッター、室内物干機、敷金・礼金不要 入居日:'26年3月下旬 | ||
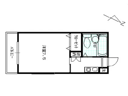
部屋の情報
| 間取り | 1K | 専有面積 | 20m2 |
|---|---|---|---|
| 所在階 / 向き | 1階 / 南東 | バルコニー面積 | - |
| 水道 / ガス | - | ||
| 設備 | テレビドアホン、インターネット対応、エアコン、南向き、フローリング、コンロ:IH、CATV、インターネット使用料無料、洗濯機:室内 | ||
| 当社物件ID | 236753 | ||
建物の情報
| 建物名 | コーポヤチヨⅠ | ||
|---|---|---|---|
| 所在地 | 埼玉県さいたま市見沼区東大宮 | ||
| 交通 | JR宇都宮線 東大宮駅 徒歩8分 | ||
| 階数 | 1階建 | 総戸数 | - |
| 築年月 | 1993年09月 / 築33年 | エレベーター | - |
| 駐車場 | なし | バイク置き場 | - |
| 駐輪場 | あり | 管理人/管理会社 | - |
| 周辺環境 | その他 スギ薬局東大宮店(ドラッグストア)まで514m その他 セブンイレブンさいたま東大宮6丁目店(コンビニ)まで161m その他 ホームセンターコーナンドイト東大宮店(ホームセンター)まで977m その他 モスバーガー東大宮店(飲食店)まで384m その他 私立芝浦工業大学大宮キャンパス(大学・短大)まで1235m その他 西友東大宮店(スーパー)まで514m | ||
| 建物種別 | アパート | 建物構造 | 木造 |
この部屋の取扱い不動産会社
| 会社名 | (株)アルーム総合不動産(SUUMO経由) | ||
|---|---|---|---|
| 所在地 | 埼玉県さいたま市見沼区大字山 19-1 | 交通 | - |
| 営業時間 | 10時~19時 | 定休日 | 毎週月曜日 |
| 免許番号 | 埼玉県知事22835 | 取引態様 | 代理 |
| 不動産会社管理番号 | 100400229675 | 当社管理番号 | 89 |
| 所属団体 | (公社)全日本不動産協会埼玉県本部会員 | ||
| 公正取引協議会 | (公社)首都圏不動産公正取引協議会加盟 | ||
| 取扱い物件情報 | 物件詳細へ | ||
※各種情報と現状に差異がある場合は、現状優先となります。問い合わせをすることで、より詳しい条件、情報を確認する事ができます。
提供:(株)アルーム総合不動産(SUUMO経由)
この物件が気になったら掲載期限まであと10日
コーポヤチヨⅠに条件(家賃・エリア)が近い物件一覧
| 写真 | 家賃 管理費等 | 敷金 礼金 | 間取り 専有面積 | 築年数 | 最寄り駅 所在地 | キープ | 詳細 |
|---|---|---|---|---|---|---|---|
アパート フロンティア47(2K/2階) | |||||||
![]() | 4.7万円 3,000円 | なし なし | 2K 30m2 | 築42年 | 東武鉄道東上線 志木駅 徒歩22分 埼玉県富士見市水谷東3丁目 | 詳細を見る | |
アパート ハイツ サンマリーナ(ワンルーム/1階) | |||||||
![]() | 4.5万円 2,000円 | 4.5万円 なし | ワンルーム 14.65m2 | 築34年 | 東武東上線 朝霞駅 徒歩8分 東武東上線 朝霞台駅 徒歩27分 JR武蔵野線 北朝霞駅 徒歩27分 埼玉県朝霞市本町 | 詳細を見る | |
アパート コンシャスN(ワンルーム/2階) | |||||||
![]() | 5.2万円 なし | 5.2万円 なし | ワンルーム 27.52m2 | 築39年 | JR高崎線 上尾駅 徒歩8分 JR高崎線 北上尾駅 徒歩31分 埼玉新都市交通伊奈線 沼南駅 徒歩42分 埼玉県上尾市愛宕 | 詳細を見る | |
マンション レオパレスミモザ2(1K/3階) | |||||||
![]() | 5.3万円 7,000円 | なし 5.3万円 | 1K 20.81m2 | 築19年 | 東北本線 蓮田駅 徒歩5分 埼玉県蓮田市東1丁目 | 詳細を見る | |
マンション 大辰マンション(1DK/5階) | |||||||
![]() | 5.6万円 5,000円 | なし なし | 1DK 37.64m2 | 築47年 | 埼玉高速鉄道 川口元郷駅 徒歩20分 埼玉高速鉄道 南鳩ケ谷駅 徒歩31分 東京メトロ南北線 志茂駅 徒歩54分 埼玉県川口市領家 | 詳細を見る | |
アパート カーサKⅡB棟(1K/2階) | |||||||
![]() | 3.5万円 2,000円 | なし なし | 1K 20m2 | 築32年 | 東武東上線 鶴ケ島駅 徒歩10分 東武東上線 霞ケ関駅(埼玉) 徒歩31分 東武東上線 若葉駅 徒歩31分 埼玉県川越市大字下広谷 | 詳細を見る | |
アパート レピュート長島(2DK/1階) | |||||||
![]() | 4.2万円 2,000円 | 8.4万円 なし | 2DK 39.74m2 | 築35年 | 埼玉県上尾市大字領家 | 詳細を見る | |
マンション ウォーターヴィレッジ(1K/1階) | |||||||
![]() | 3.9万円 5,000円 | なし なし | 1K 20.28m2 | 築21年 | JR川越線 笠幡駅 徒歩7分 JR川越線 武蔵高萩駅 徒歩42分 JR川越線 的場駅 徒歩45分 埼玉県川越市大字笠幡 | 詳細を見る | |





/105x80-f1-q70-wp1)



