賃貸マンション
サヴォイグランデスの賃貸物件情報(1LDK/8階)
| 家賃 | 管理費等 | 敷金 | 礼金 | 間取り | 専有面積 |
|---|---|---|---|---|---|
| 7.5万円 | 5,000円 | なし | 7.5万円 | 1LDK | 40.74m2 |
入居決定でお祝い金最大100,000円
- 保証金
- -
- 償却・敷引
- -
- 築年数
- 築20年
- 所在階
- 8階
- 向き
- -
Point
洗面所があれば時間を気にせず洗面ができます。脱衣所があるので着替えが楽ちんです。
提供:株式会社PLA NET 賃貸住宅サービスFC博多シティ店

詳細情報 サヴォイグランデス
物件紹介
サヴォイグランデスは福岡市地下鉄空港線大濠公園駅から徒歩10分にあり、駅近で通勤通学に便利なマンションです。
このお部屋は2階以上に位置しているので、通行人や周囲の住人からの視線が気になりにくく、防犯面でも安心。建物のエントランスはオートロックがついており、インターホンにはTVモニタもついているため、相手の顔を確認してから来客対応することができます。
おしゃれなデザイナーズ物件!フローリングのお部屋なのでお掃除もラクラク。キッチンはシステムキッチン仕様になっていますので、お料理好きの方にもぴったり。バス・トイレは別なので、のんびりお風呂タイムも楽しめるでしょう。また、雨の日でも浴室乾燥機を使えば、お洗濯も問題ありません。
通信設備面では、インターネット接続が可能です。また、BSアンテナ・CSアンテナがありCATVにも対応しているので、おうち時間も充実するでしょう(別途工事、契約料が必要な場合あり)。
建物にはエレベーターがついているので、重い荷物があっても安心。共用部には宅配ボックスが設定されているので、不在の時にも荷物を受け取ることができます。
コンビニまで徒歩8分の場所にあり、日用品や食料品のお買い物にも便利です。
このお部屋は2階以上に位置しているので、通行人や周囲の住人からの視線が気になりにくく、防犯面でも安心。建物のエントランスはオートロックがついており、インターホンにはTVモニタもついているため、相手の顔を確認してから来客対応することができます。
おしゃれなデザイナーズ物件!フローリングのお部屋なのでお掃除もラクラク。キッチンはシステムキッチン仕様になっていますので、お料理好きの方にもぴったり。バス・トイレは別なので、のんびりお風呂タイムも楽しめるでしょう。また、雨の日でも浴室乾燥機を使えば、お洗濯も問題ありません。
通信設備面では、インターネット接続が可能です。また、BSアンテナ・CSアンテナがありCATVにも対応しているので、おうち時間も充実するでしょう(別途工事、契約料が必要な場合あり)。
建物にはエレベーターがついているので、重い荷物があっても安心。共用部には宅配ボックスが設定されているので、不在の時にも荷物を受け取ることができます。
コンビニまで徒歩8分の場所にあり、日用品や食料品のお買い物にも便利です。
お金・契約の情報
※「-」と表示されているものは、実際は料金が発生するものもございます。詳細はお問い合わせください。
| 家賃 | 7.5万円 | 管理費・共益費 | 5,000円 |
|---|---|---|---|
| 敷金 | なし | 礼金 | 7.5万円 |
| 入居決定でお祝い金最大100,000円 | |||
| 保証金 | - | 償却・敷引 | - |
| 住宅保険料 | 2万円(2年) | 更新料 | - |
| 契約形態 | - | 契約期間 | 2年 |
| 入居・引渡期間 | 2026年04月下旬 | 現況 | 居住中 |
部屋の情報
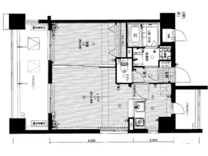
| 間取り | 1LDK | 専有面積 | 40.74m2 |
|---|---|---|---|
| 間取り詳細 | LDK(9.9帖)、洋室(4.3帖) | ||
| 所在階 / 向き | 8階 / - | バルコニー面積 | - |
| 水道 / ガス | 水道【公営】、ガス【都市】 | ||
| 設備 | バス・トイレ別、オートロック、テレビドアホン、宅配ボックス、浴室乾燥機、追い焚き、インターネット対応、システムキッチン、カウンターキッチン、エアコン、エレベーター、温水洗浄便座、バルコニー、フローリング、洗髪洗面化粧台、バリアフリー、2口コンロ、コンロ:IH、デザイナーズ、CATV、CSアンテナ、BSアンテナ、シャワー、給湯、洗濯機:室内 | ||
| 当社物件ID | 23042137 | ||
建物の情報
| 建物名 | サヴォイグランデス | ||
|---|---|---|---|
| 所在地 | 福岡県福岡市中央区港3丁目 | ||
| 交通 | 福岡市地下鉄空港線 大濠公園駅 徒歩10分 福岡市地下鉄空港線 唐人町駅 徒歩18分 | ||
| 階数 | 13階建 | 総戸数 | 60戸 |
| 築年月 | 2007年01月 / 築20年 | エレベーター | あり |
| 駐車場 | 空有 1万円/月 | バイク置き場 | あり |
| 駐輪場 | あり | 管理人/管理会社 | - |
| 周辺環境 | コンビニ 徒歩8分(609m) 販売店 徒歩8分(640m) 中学校 舞鶴中学校 徒歩24分(1898m) 小学校 簀子小学校 徒歩9分(646m) 病院 徒歩14分(1117m) | ||
| 建物種別 | マンション | 建物構造 | RC(鉄筋コンクリート) |
この部屋の取扱い不動産会社
| 会社名 | 株式会社PLA NET 賃貸住宅サービスFC博多シティ店 | ||
|---|---|---|---|
| 所在地 | 福岡県福岡市博多区博多駅前3-27-24 博多田中ビル1F | 交通 | JR鹿児島本線「博多駅」徒歩3分 |
| 営業時間 | 10:00-19:00 | 定休日 | 年中無休(年末年始除く) |
| 免許番号 | 福岡県知事(3)第16882号 | 取引態様 | 一般 |
| 不動産会社管理番号 | 10545261500017 | 当社管理番号 | 10 |
| 所属団体 | その他 | ||
| 取扱い物件情報 | 物件詳細へ | ||
※各種情報と現状に差異がある場合は、現状優先となります。問い合わせをすることで、より詳しい条件、情報を確認する事ができます。
提供:株式会社PLA NET 賃貸住宅サービスFC博多シティ店
この物件が気になったら掲載期限まであと12日
サヴォイグランデスに条件(家賃・エリア)が近い物件一覧
| 写真 | 家賃 管理費等 | 敷金 礼金 | 間取り 専有面積 | 築年数 | 最寄り駅 所在地 | キープ | 詳細 |
|---|---|---|---|---|---|---|---|
マンション クレセントパレス(3LDK/2階) | |||||||
![]() | 7.5万円 4,000円 | なし 7.5万円 | 3LDK 66.25m2 | 築32年 | 鹿児島本線 南福岡駅 徒歩19分 西鉄天神大牟田線 井尻駅 徒歩20分 鹿児島本線 笹原駅 徒歩24分 福岡県春日市須玖南1丁目 | 詳細を見る | |
アパート アドバンストラスト26(2LDK/1階) | |||||||
![]() | 5.2万円 3,000円 | なし なし | 2LDK 49.14m2 | 築34年 | 西鉄天神大牟田線 白木原駅 徒歩29分 鹿児島本線 大野城駅 徒歩31分 西鉄天神大牟田線 下大利駅 徒歩34分 福岡県春日市惣利5丁目 | 詳細を見る | |
マンション 西鉄天神大牟田線 雑餉隈駅 徒歩13分 築32年(3LDK/3階) | |||||||
![]() | 7.9万円 3,500円 | なし 15.8万円 | 3LDK 69m2 | 築32年 | 西鉄天神大牟田線 雑餉隈駅 徒歩13分 西鉄天神大牟田線 春日原駅 徒歩16分 鹿児島本線 南福岡駅 徒歩17分 福岡県大野城市山田1丁目 | 詳細を見る | |
マンション 春日原パークマンション(2LDK/7階) | |||||||
![]() | 7.8万円 なし | なし 15.6万円 | 2LDK 62.01m2 | 築52年 | 西鉄天神大牟田線 春日原駅 徒歩3分 鹿児島本線 春日駅(福岡) 徒歩6分 西鉄天神大牟田線 桜並木駅 徒歩16分 福岡県春日市春日原北町2丁目 | 詳細を見る | |
アパート オレンジハウス(2LDK/1階) | |||||||
![]() | 4.5万円 なし | 4.5万円 4.5万円 | 2LDK 44m2 | 築37年 | 鹿児島本線 南福岡駅 徒歩21分 鹿児島本線 春日駅(福岡) 徒歩26分 西鉄天神大牟田線 雑餉隈駅 徒歩28分 福岡県春日市 | 詳細を見る | |
アパート ベラルーチェ南ヶ丘(2LDK/1階) | |||||||
![]() | 8万円 5,500円 | なし 20万円 | 2LDK 50.68m2 | 築10年 | 西鉄天神大牟田線 下大利駅 徒歩41分 西鉄天神大牟田線 白木原駅 徒歩49分 福岡県大野城市南ケ丘7丁目 | 詳細を見る | |
アパート プラムタウン(2DK/1階) | |||||||
![]() | 5万円 2,000円 | なし 5万円 | 2DK 41.58m2 | 築31年 | 博多南線 博多南駅 徒歩22分 鹿児島本線 春日駅(福岡) 徒歩36分 鹿児島本線 南福岡駅 徒歩41分 福岡県春日市一の谷3丁目 | 詳細を見る | |
マンション 博多南線 博多南駅 徒歩4分 築23年(1LDK/6階) | |||||||
![]() | 5万円 4,500円 | なし なし | 1LDK 26.97m2 | 築23年 | 博多南線 博多南駅 徒歩4分 鹿児島本線 南福岡駅 徒歩45分 鹿児島本線 春日駅(福岡) 徒歩45分 福岡県春日市 | 詳細を見る | |









