賃貸アパート
ウィステリアコート正雀の賃貸物件情報(1K/2階)
| 家賃 | 管理費等 | 敷金 | 礼金 | 間取り | 専有面積 |
|---|---|---|---|---|---|
| 7.1万円 | 7,000円 | なし | 7.1万円 | 1K | 28.6m2 |
入居決定でお祝い金最大100,000円
- 保証金
- -
- 償却・敷引
- -
- 築年数
- 築1年
- 所在階
- 2階
- 向き
- -
Point
室内設備は洗面所独立・浴室乾燥機など充実した設備を備え付けています。収納はクロゼット・シューズボックスなど豊富なので、広々と空間を利用することも可能です。こちらの物件は閑静な住宅地にあります。
提供:(株)LieN Estate(SUUMO経由)

詳細情報 ウィステリアコート正雀
物件紹介
ウィステリアコート正雀は阪急京都線正雀駅から徒歩10分にあり、駅近で通勤通学に便利なアパートです。
このお部屋は2階以上に位置しているので、通行人や周囲の住人からの視線が気になりにくく、防犯面でも安心。建物のエントランスはオートロックがついており、インターホンにはTVモニタもついているため、相手の顔を確認してから来客対応することができます。
人気の南向き・フローリングのお部屋。角部屋でもあるため、周囲の居住者の生活音も気になりにくい場所です。キッチンはシステムキッチン仕様になっていますので、お料理好きの方にもぴったり。バス・トイレは別なので、のんびりお風呂タイムも楽しめるでしょう。また、雨の日でも浴室乾燥機を使えば、お洗濯も問題ありません。
通信設備面では、インターネットが無料で使えるので、月々の出費を抑えられるのも魅力です。また、CATVにも対応しているので、おうち時間も充実するでしょう(別途工事、CATVの契約料等が必要な場合あり)。
このお部屋は2階以上に位置しているので、通行人や周囲の住人からの視線が気になりにくく、防犯面でも安心。建物のエントランスはオートロックがついており、インターホンにはTVモニタもついているため、相手の顔を確認してから来客対応することができます。
人気の南向き・フローリングのお部屋。角部屋でもあるため、周囲の居住者の生活音も気になりにくい場所です。キッチンはシステムキッチン仕様になっていますので、お料理好きの方にもぴったり。バス・トイレは別なので、のんびりお風呂タイムも楽しめるでしょう。また、雨の日でも浴室乾燥機を使えば、お洗濯も問題ありません。
通信設備面では、インターネットが無料で使えるので、月々の出費を抑えられるのも魅力です。また、CATVにも対応しているので、おうち時間も充実するでしょう(別途工事、CATVの契約料等が必要な場合あり)。
お金・契約の情報
※「-」と表示されているものは、実際は料金が発生するものもございます。詳細はお問い合わせください。
| 家賃 | 7.1万円 | 管理費・共益費 | 7,000円 |
|---|---|---|---|
| 敷金 | なし | 礼金 | 7.1万円 |
| 入居決定でお祝い金最大100,000円 | |||
| 保証金 | - | 償却・敷引 | - |
| 住宅保険料 | - | 更新料 | - |
| 保証会社利用 | 必須 | 保証会社名 | - |
| 保証会社費用 | - | 保証会社備考 | 保証会社利用必 初回保証料:月額賃料の40%、1年更新:12 000円 |
| 契約形態 | - | 契約期間 | - |
| 入居・引渡期間 | 相談 | 現況 | - |
| 契約備考 | 1K 普通借家2年 損保【1.8万円2年】 バストイレ別、バルコニー、エアコン、ガスコンロ対応、クロゼット、フローリング、TVインターホン、浴室乾燥機、オートロック、室内洗濯置、シューズボックス、システムキッチン、温水洗浄便座、脱衣所、洗面所独立、洗面化粧台、2口コンロ、駐輪場、閑静な住宅地、防犯カメラ、全居室洋室、全居室フローリング、ガスレンジ付、2沿線利用可、ネット使用料不要、24時間換気システム、駅徒歩10分以内、敷地内ごみ置き場、全居室6畳以上、都市ガス、保証会社利用可、IT重説対応物件 | ||
部屋の情報
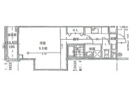
| 間取り | 1K | 専有面積 | 28.6m2 |
|---|---|---|---|
| 所在階 / 向き | 2階 / - | バルコニー面積 | - |
| 水道 / ガス | - | ||
| 設備 | バス・トイレ別、2階以上、オートロック、テレビドアホン、浴室乾燥機、インターネット対応、システムキッチン、エアコン、温水洗浄便座、バルコニー、フローリング、洗髪洗面化粧台、2口コンロ、コンロ:ガス、インターネット使用料無料、洗濯機:室内 | ||
| 当社物件ID | 160564047 | ||
建物の情報
| 建物名 | ウィステリアコート正雀 | ||
|---|---|---|---|
| 所在地 | 大阪府摂津市正雀 | ||
| 交通 | 阪急京都線 正雀駅 徒歩10分 大阪モノレール本線 摂津駅 徒歩15分 JR東海道本線 岸辺駅 徒歩15分 | ||
| 階数 | 3階建 | 総戸数 | - |
| 築年月 | 2026年01月 / 築1年 | エレベーター | - |
| 駐車場 | なし | バイク置き場 | - |
| 駐輪場 | あり | 管理人/管理会社 | - |
| 周辺環境 | その他 味舌体育館(その他)まで124m その他 庄屋公園(公園)まで654m その他 ファミリーマート 摂津三島店(コンビニ)まで484m その他 摂津医誠会病院(病院)まで966m | ||
| 建物種別 | アパート | 建物構造 | 鉄骨造 |
この部屋の取扱い不動産会社
| 会社名 | (株)ルクスホーム(SUUMO経由) | ||
|---|---|---|---|
| 所在地 | 大阪府茨木市西駅前町 7-30 田井ビル1階 | 交通 | - |
| 営業時間 | 10:00~19:00 | 定休日 | 水曜日 |
| 免許番号 | 大阪府知事66348 | 取引態様 | 仲介 |
| 不動産会社管理番号 | 100493863885 | 当社管理番号 | 89 |
| 取扱い物件情報 | 物件詳細へ | ||
※各種情報と現状に差異がある場合は、現状優先となります。問い合わせをすることで、より詳しい条件、情報を確認する事ができます。
提供:(株)ルクスホーム(SUUMO経由)
この物件が気になったら掲載期限まであと11日
ウィステリアコート正雀に条件(家賃・エリア)が近い物件一覧
| 写真 | 家賃 管理費等 | 敷金 礼金 | 間取り 専有面積 | 築年数 | 最寄り駅 所在地 | キープ | 詳細 |
|---|---|---|---|---|---|---|---|
アパート 寿OMパレス(1K/3階) | |||||||
| 6.5万円 4,000円 | なし 6.5万円 | 1K 22.08m2 | 築5年 | 阪急電鉄千里線 吹田駅(阪急) 徒歩8分 東海道本線 吹田駅(JR) 徒歩14分 阪急電鉄千里線 下新庄駅 徒歩15分 大阪府吹田市寿町2丁目12-4 | 詳細を見る | ||
マンション レオパレスプラスパ平田(1K/1階) | |||||||
| 5.8万円 5,000円 | なし 5.8万円 | 1K 19.87m2 | 築18年 | 阪急電鉄京都線 茨木市駅 徒歩27分 阪急電鉄京都線 総持寺駅 徒歩33分 大阪モノレール本線 南茨木駅 徒歩34分 大阪府茨木市平田2丁目16-15 | 詳細を見る | ||
マンション プレジオ江坂Ⅱ(1DK/6階) | |||||||
| 10.6万円 1.1万円 | なし 10.6万円 | 1DK 27.72m2 | 築8年 | 北大阪急行南北線 江坂駅 徒歩12分 おおさか東線 南吹田駅 徒歩16分 大阪市御堂筋線 東三国駅 徒歩24分 大阪府吹田市南吹田5丁目14-20 | 詳細を見る | ||
マンション エクセルハイツ下北(3DK/5階) | |||||||
![]() | 7.9万円 6,000円 | なし なし | 3DK 56m2 | 築40年 | 阪急電鉄千里線 下新庄駅 徒歩4分 おおさか東線 JR淡路駅 徒歩7分 阪急電鉄京都線 淡路駅 徒歩11分 大阪府大阪市東淀川区下新庄2丁目 | 詳細を見る | |
アパート ハイツ東大手(1K/2階) | |||||||
| 6.4万円 4,100円 | なし 6.4万円 | 1K 26.08m2 | 築17年 | 阪急電鉄京都線 高槻市駅 徒歩12分 東海道本線 高槻駅 徒歩17分 東海道本線 摂津富田駅 徒歩43分 大阪府高槻市八幡町1-8 | 詳細を見る | ||
マンション APRILE南森町(1LDK/8階) | |||||||
| 10万円 6,000円 | なし 10万円 | 1LDK 33.62m2 | 築11年 | JR東西線 大阪天満宮駅 徒歩10分 大阪環状線 桜ノ宮駅 徒歩10分 大阪市谷町線 南森町駅 徒歩12分 大阪府大阪市北区同心1丁目1-16 | 詳細を見る | ||
アパート シャーメゾン天神(1LDK/2階) | |||||||
| 8.9万円 6,000円 | 2万円 なし | 1LDK 42.99m2 | 築6年 | 東海道本線 高槻駅 徒歩13分 阪急電鉄京都線 高槻市駅 徒歩21分 東海道本線 摂津富田駅 徒歩46分 大阪府高槻市天神町2丁目17-8 | 詳細を見る | ||
マンション セレニテ梅田北アリエ壱番館(1LDK/10階) | |||||||
| 10.1万円 1.01万円 | なし なし | 1LDK 28.49m2 | 築1年 | 大阪市堺筋線 天神橋筋六丁目駅 徒歩12分 大阪市谷町線 中崎町駅 徒歩13分 大阪市御堂筋線 中津駅(大阪メトロ) 徒歩13分 大阪府大阪市北区本庄西3丁目8-12 | 詳細を見る | ||
摂津市の町名から探す
摂津市の部屋を間取りから探す
摂津市の駅から探す
摂津市と隣接している市区町村から探す
- 摂津市(1,036)
- 大阪市都島区(1,695)
- 大阪市福島区(2,444)
- 大阪市此花区(349)
- 大阪市西区(4,832)
- 大阪市港区(1,230)
- 大阪市大正区(458)
- 大阪市天王寺区(1,677)
- 大阪市浪速区(3,769)
- 大阪市西淀川区(1,795)
- 大阪市東淀川区(4,278)
- 大阪市東成区(2,340)
- 大阪市生野区(1,693)
- 大阪市旭区(2,008)
- 大阪市城東区(2,237)
- 大阪市阿倍野区(1,337)
- 大阪市住吉区(2,296)
- 大阪市東住吉区(1,868)
- 大阪市西成区(709)
- 大阪市淀川区(4,867)
- 大阪市鶴見区(964)
- 大阪市住之江区(964)
- 大阪市平野区(1,679)
- 大阪市北区(5,301)
- 大阪市中央区(5,744)
- 吹田市(6,347)
- 高槻市(2,651)
- 守口市(1,413)
- 茨木市(3,138)
- 寝屋川市(2,032)


