賃貸マンション
プラウド新宿中落合の賃貸物件情報(3LDK/1階)
| 家賃 | 管理費等 | 敷金 | 礼金 | 間取り | 専有面積 |
|---|---|---|---|---|---|
| 35.8万円 | 2.2万円 | 71.6万円 | 35.8万円 | 3LDK | 82.95m2 |
入居決定でお祝い金最大100,000円
- 保証金
- -
- 償却・敷引
- -
- 築年数
- 築9年
- 所在階
- 1階
- 向き
- 南
Point
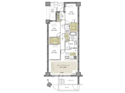
人気の分譲シリーズ・プラウド。高台立地。1階南向きテラス付。WICとウォークスルークロゼットのある部屋。食洗器、ディスポーザー、ミストサウナ等オプションの数々。駐輪場1台。
提供:(株)ソワニエ(SUUMO経由)

詳細情報 プラウド新宿中落合
物件紹介
プラウド新宿中落合は西武新宿線下落合駅から徒歩6分にあり、駅近で通勤通学に便利なマンションです。
建物のエントランスはオートロックがついており、インターホンにはTVモニタもついているため、相手の顔を確認してから来客対応することができます。
人気の南向き・フローリングのお部屋。室内にはウォークインクローゼットがありますので、たくさんの荷物も効率的に収納ができます。キッチンはシステムキッチン仕様になっていますので、お料理好きの方にもぴったり。また、浴室乾燥機付きで、雨の日でもお洗濯は問題ありません。
通信設備面ではCATVに対応しているので、おうち時間も充実するでしょう(別途工事、契約料が必要な場合あり)。
床暖房があり、冬も足元から暖かく快適に過ごすことができます。建物にはエレベーターがついているので、重い荷物があっても安心。共用部には宅配ボックスが設定されているので、不在の時にも荷物を受け取ることができます。
建物のエントランスはオートロックがついており、インターホンにはTVモニタもついているため、相手の顔を確認してから来客対応することができます。
人気の南向き・フローリングのお部屋。室内にはウォークインクローゼットがありますので、たくさんの荷物も効率的に収納ができます。キッチンはシステムキッチン仕様になっていますので、お料理好きの方にもぴったり。また、浴室乾燥機付きで、雨の日でもお洗濯は問題ありません。
通信設備面ではCATVに対応しているので、おうち時間も充実するでしょう(別途工事、契約料が必要な場合あり)。
床暖房があり、冬も足元から暖かく快適に過ごすことができます。建物にはエレベーターがついているので、重い荷物があっても安心。共用部には宅配ボックスが設定されているので、不在の時にも荷物を受け取ることができます。
お金・契約の情報
※「-」と表示されているものは、実際は料金が発生するものもございます。詳細はお問い合わせください。
| 家賃 | 35.8万円 | 管理費・共益費 | 2.2万円 |
|---|---|---|---|
| 敷金 | 71.6万円 | 礼金 | 35.8万円 |
| 入居決定でお祝い金最大100,000円 | |||
| 保証金 | - | 償却・敷引 | - |
| 住宅保険料 | - | 更新料 | - |
| 保証会社利用 | 利用可 | 保証会社名 | 日本セーフティー |
| 保証会社費用 | - | 保証会社備考 | 日本セーフティー利用可 日本セーフティー 初回保証料:月額総支払額の50% 継続保証料月額800円自動振替手数料440円 |
| 契約形態 | - | 契約期間 | - |
| 入居・引渡期間 | - | 現況 | - |
| 契約備考 | 通勤管理 退去時ハウスクリーニング費用1平米1,200円、エアコン1台25,000円(消費税別) 3LDK 事務所利用不可/ルームシェア不可 普通借家2年 損保【2.2万円2年】 バルコニー、エアコン、TVインターホン、浴室乾燥機、オートロック、室内洗濯置、システムキッチン、南向き、追焚機能浴室、温水洗浄便座、エレベーター、洗面所独立、駐輪場、宅配ボックス、CATV、閑静な住宅地、3口以上コンロ、対面式キッチン、防犯カメラ、分譲賃貸、オートバス、ウォークインクロゼット、全居室フローリング、2沿線利用可、LDK15畳以上、テラス、床暖房、食器洗乾燥機、ダブルロックキー、ディスポーザー、ミストサウナ、南面リビング、文教地区、高台に立地、2駅利用可、駅徒歩10分以内、敷地内ごみ置き場、専有面積25坪以上、日勤管理、都市ガス、ウォークスルークロゼット 入居日:'26年3月末 | ||
部屋の情報
| 間取り | 3LDK | 専有面積 | 82.95m2 |
|---|---|---|---|
| 所在階 / 向き | 1階 / 南 | バルコニー面積 | 8m2 |
| 水道 / ガス | - | ||
| 設備 | オートロック、テレビドアホン、宅配ボックス、浴室乾燥機、ウォークインクローゼット、追い焚き、システムキッチン、エアコン、エレベーター、温水洗浄便座、南向き、バルコニー、フローリング、洗髪洗面化粧台、床暖房、2口コンロ、CATV、洗濯機:室内 | ||
| 当社物件ID | 160545251 | ||
建物の情報
| 建物名 | プラウド新宿中落合 | ||
|---|---|---|---|
| 所在地 | 東京都新宿区中落合 | ||
| 交通 | 西武新宿線 下落合駅(東京) 徒歩6分 都営大江戸線 中井駅 徒歩11分 JR山手線 目白駅 バス乗車時間:10分 最寄りバス停で下車 徒歩8分 | ||
| 階数 | 4階建 | 総戸数 | 55戸 |
| 築年月 | 2017年12月 / 築9年 | エレベーター | あり |
| 駐車場 | なし | バイク置き場 | - |
| 駐輪場 | あり | 管理人/管理会社 | - |
| 周辺環境 | その他 オーケー下落合店(スーパー)まで526m その他 セブンイレブン新宿下落合駅北店(コンビニ)まで529m その他 マルエツプチ中落合一丁目店(スーパー)まで382m その他 新宿区立落合第一小学校(小学校)まで212m その他 社会福祉法人聖母会聖母病院(病院)まで507m その他 私立上智大学目白聖母キャンパス(大学・短大)まで517m | ||
| 建物種別 | マンション | 建物構造 | RC(鉄筋コンクリート) |
この部屋の取扱い不動産会社
| 会社名 | (株)ソワニエ(SUUMO経由) | ||
|---|---|---|---|
| 所在地 | 東京都新宿区下落合3-12-32 目白セクエンツァE | 交通 | - |
| 営業時間 | 10:00 ~ 18:00 | 定休日 | 土曜・日曜・祝日 |
| 免許番号 | 東京都知事95424 | 取引態様 | 仲介 |
| 不動産会社管理番号 | 100491463868 | 当社管理番号 | 89 |
| 所属団体 | (公社)全日本不動産協会東京都本部会員 | ||
| 公正取引協議会 | (公社)首都圏不動産公正取引協議会加盟 | ||
| 取扱い物件情報 | 物件詳細へ | ||
※各種情報と現状に差異がある場合は、現状優先となります。問い合わせをすることで、より詳しい条件、情報を確認する事ができます。
提供:(株)ソワニエ(SUUMO経由)
この物件が気になったら掲載期限まであと12日
プラウド新宿中落合に条件(家賃・エリア)が近い物件一覧
| 写真 | 家賃 管理費等 | 敷金 礼金 | 間取り 専有面積 | 築年数 | 最寄り駅 所在地 | キープ | 詳細 |
|---|---|---|---|---|---|---|---|
マンション タスキプライムテラス本蓮沼(2LDK/2階) | |||||||
![]() | 22.1万円 2万円 | なし なし | 2LDK 46.92m2 | 築1年 | 東京都三田線 本蓮沼駅 徒歩2分 東京都三田線 板橋本町駅 徒歩11分 東京都板橋区蓮沼町 | 詳細を見る | |
マンション ルネサンス赤坂プレミアムコート(2LDK/5階) | |||||||
![]() | 44万円 2万円 | 44万円 なし | 2LDK 62.75m2 | 築1年 | 東京メトロ銀座線 溜池山王駅 徒歩3分 東京メトロ千代田線 赤坂駅(東京) 徒歩4分 東京メトロ銀座線 赤坂見附駅 徒歩8分 東京都港区赤坂 | 詳細を見る | |
マンション ザ・パークハウス新宿柏木(3LDK/6階) | |||||||
![]() | 33万円 なし | 33万円 33万円 | 3LDK 71.18m2 | 築15年 | JR中央線 大久保駅(東京) 徒歩3分 JR山手線 新大久保駅 徒歩7分 西武新宿線 西武新宿駅 徒歩14分 東京都新宿区北新宿 | 詳細を見る | |
マンション HIROO VILLAGE(1LDK/5階) | |||||||
![]() | 25万円 2万円 | 25万円 37.5万円 | 1LDK 36.56m2 | 築5年 | 東京メトロ日比谷線 広尾駅 徒歩5分 JR山手線 恵比寿駅 徒歩12分 東急東横線 代官山駅 徒歩21分 東京都渋谷区広尾 | 詳細を見る | |
マンション レジディアタワー麻布十番(1LDK/13階) | |||||||
![]() | 32万円 2.5万円 | 32万円 32万円 | 1LDK 54.66m2 | 築24年 | 都営大江戸線 麻布十番駅 徒歩3分 都営三田線 芝公園駅 徒歩14分 東京メトロ日比谷線 神谷町駅 徒歩16分 東京都港区三田 | 詳細を見る | |
マンション HJクラウンⅠ(2LDK/1階) | |||||||
![]() | 29.8万円 1.5万円 | なし なし | 2LDK 41.39m2 | 築1年 | 東京地下鉄銀座線 外苑前駅 徒歩10分 東京都渋谷区神宮前2丁目 | 詳細を見る | |
マンション COURT HILLS 高輪(2LDK/7階) | |||||||
![]() | 47万円 2万円 | 47万円 47万円 | 2LDK 92.93m2 | 築24年 | 都営三田線 白金高輪駅 徒歩6分 都営浅草線 泉岳寺駅 徒歩10分 JR山手線 高輪ゲートウェイ駅 徒歩15分 東京都港区高輪 | 詳細を見る | |








