賃貸マンション
メゾン野口町の賃貸物件情報(4LDK/4階)
| 家賃 | 管理費等 | 敷金 | 礼金 | 間取り | 専有面積 |
|---|---|---|---|---|---|
| 12.7万円 | なし | 25.4万円 | 12.7万円 | 4LDK | 90.5m2 |
入居決定でお祝い金最大100,000円
- 保証金
- -
- 償却・敷引
- -
- 築年数
- 築29年
- 所在階
- 4階
- 向き
- 南
Point
こちらの物件は月々の家賃が12.7万円のお部屋です。室内設備は洗面所独立・浴室乾燥機などが揃っており、とても充実しています。丈夫な建材が使われた鉄骨鉄筋コンクリートの物件。
提供:ドッとあ~る賃貸浜松高台店(株)ディーアール浜松(SUUMO経由)

詳細情報 メゾン野口町
物件紹介
メゾン野口町は遠州鉄道八幡駅から徒歩5分にあり、駅近で通勤通学に便利なマンションです。
このお部屋は2階以上に位置しているので通行人や周囲の住人からの視線が気になりにくく、建物のエントランスはオートロックがついているので防犯性が高くなっています。
人気の南向き・フローリングのお部屋。角部屋でもあるため、周囲の居住者の生活音も気になりにくい場所です。キッチンはシステムキッチン仕様になっていますので、お料理好きの方にもぴったり。バス・トイレは別なので、のんびりお風呂タイムも楽しめるでしょう。また、雨の日でも浴室乾燥機を使えば、お洗濯も問題ありません。
建物にはエレベーターがついているので、重い荷物があっても安心。共用部には宅配ボックスが設定されているので、不在の時にも荷物を受け取ることができます。
このお部屋は2階以上に位置しているので通行人や周囲の住人からの視線が気になりにくく、建物のエントランスはオートロックがついているので防犯性が高くなっています。
人気の南向き・フローリングのお部屋。角部屋でもあるため、周囲の居住者の生活音も気になりにくい場所です。キッチンはシステムキッチン仕様になっていますので、お料理好きの方にもぴったり。バス・トイレは別なので、のんびりお風呂タイムも楽しめるでしょう。また、雨の日でも浴室乾燥機を使えば、お洗濯も問題ありません。
建物にはエレベーターがついているので、重い荷物があっても安心。共用部には宅配ボックスが設定されているので、不在の時にも荷物を受け取ることができます。
お金・契約の情報
※「-」と表示されているものは、実際は料金が発生するものもございます。詳細はお問い合わせください。
| 家賃 | 12.7万円 | 管理費・共益費 | なし |
|---|---|---|---|
| 敷金 | 25.4万円 | 礼金 | 12.7万円 |
| 入居決定でお祝い金最大100,000円 | |||
| 保証金 | - | 償却・敷引 | - |
| 住宅保険料 | - | 更新料 | - |
| 契約形態 | - | 契約期間 | - |
| 入居・引渡期間 | 相談 | 現況 | - |
| 契約備考 | 浜松市東区を中心に、中区・浜北区・磐田市を得意エリアとし、どんな条件にも全力でサポートさせて頂きます!またご転勤者様や学生様etc、公共交通機関をご利用の方も当店にてお迎えに上がらせていただきます☆ 4LDK 子供可 普通借家2年 損保【要】 バストイレ別、バルコニー、ガスコンロ対応、クロゼット、フローリング、浴室乾燥機、オートロック、室内洗濯置、陽当り良好、シューズボックス、システムキッチン、南向き、追焚機能浴室、角住戸、脱衣所、エレベーター、洗面所独立、洗面化粧台、駐輪場、宅配ボックス、押入、閑静な住宅地、3口以上コンロ、対面式キッチン、防犯カメラ、駐車場1台無料、分譲賃貸、保証人不要、LDK15畳以上、眺望良好、駅徒歩10分以内、敷地内ごみ置き場、来客用パーキング、都市ガス、通風良好 | ||
部屋の情報
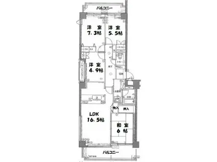
| 間取り | 4LDK | 専有面積 | 90.5m2 |
|---|---|---|---|
| 所在階 / 向き | 4階 / 南 | バルコニー面積 | - |
| 水道 / ガス | - | ||
| 設備 | バス・トイレ別、2階以上、オートロック、宅配ボックス、浴室乾燥機、追い焚き、システムキッチン、エレベーター、南向き、角部屋、バルコニー、フローリング、洗髪洗面化粧台、2口コンロ、コンロ:ガス、洗濯機:室内 | ||
| 当社物件ID | 160546950 | ||
建物の情報
| 建物名 | メゾン野口町 | ||
|---|---|---|---|
| 所在地 | 静岡県浜松市中央区野口町 | ||
| 交通 | 遠州鉄道 八幡駅(静岡) 徒歩5分 遠州鉄道 助信駅 徒歩10分 遠州鉄道 遠州病院駅 徒歩15分 | ||
| 階数 | 6階建 | 総戸数 | - |
| 築年月 | 1998年01月 / 築29年 | エレベーター | あり |
| 駐車場 | 空有 付無料 | バイク置き場 | - |
| 駐輪場 | あり | 管理人/管理会社 | - |
| 周辺環境 | その他 セブン-イレブン 浜松野口町店(コンビニ)まで179m その他 FELL(スーパー)まで380m その他 ドトールコーヒーショップ 柳通り新津店(飲食店)まで540m その他 五味八珍新津店(飲食店)まで513m その他 海谷眼科(病院)まで440m その他 浜松野口郵便局(郵便局)まで377m | ||
| 建物種別 | マンション | 建物構造 | SRC(鉄骨鉄筋コンクリート) |
この部屋の取扱い不動産会社
| 会社名 | ドッとあ~る賃貸浜松高台店(株)ディーアール浜松(SUUMO経由) | ||
|---|---|---|---|
| 所在地 | 静岡県浜松市中央区幸2-2-3 | 交通 | - |
| 営業時間 | 9:00~18:00 | 定休日 | 水曜日 |
| 免許番号 | 静岡県知事13486 | 取引態様 | 仲介 |
| 不動産会社管理番号 | 100493111230 | 当社管理番号 | 89 |
| 所属団体 | (公社)全日本不動産協会静岡県本部会員 | ||
| 公正取引協議会 | 東海不動産公正取引協議会加盟 | ||
| 取扱い物件情報 | 物件詳細へ | ||
※各種情報と現状に差異がある場合は、現状優先となります。問い合わせをすることで、より詳しい条件、情報を確認する事ができます。
提供:ドッとあ~る賃貸浜松高台店(株)ディーアール浜松(SUUMO経由)
この物件が気になったら掲載期限まであと11日
メゾン野口町に条件(家賃・エリア)が近い物件一覧
| 写真 | 家賃 管理費等 | 敷金 礼金 | 間取り 専有面積 | 築年数 | 最寄り駅 所在地 | キープ | 詳細 |
|---|---|---|---|---|---|---|---|
マンション ロイヤルシティ浜松(2LDK/5階) | |||||||
![]() | 14万円 5,000円 | なし 14万円 | 2LDK 76.22m2 | 築4年 | 東海道本線 浜松駅 徒歩12分 静岡県浜松市中央区菅原町 | 詳細を見る | |
マンション ラプター(2LDK/1階) | |||||||
![]() | 9.2万円 3,000円 | 18.4万円 9.2万円 | 2LDK 67.1m2 | 築7年 | 遠州鉄道 上島駅 徒歩12分 静岡県浜松市中央区早出町 | 詳細を見る | |
マンション グレイス並木(2LDK/1階) | |||||||
![]() | 8.7万円 3,000円 | なし 8.7万円 | 2LDK 60.26m2 | 築16年 | 東海道本線 浜松駅 徒歩8分 静岡県浜松市中央区寺島町 | 詳細を見る | |
マンション セントラルヒルズ松城(2LDK/6階) | |||||||
![]() | 11.8万円 5,000円 | 23.6万円 11.8万円 | 2LDK 67.44m2 | 築16年 | 東海道本線 浜松駅 徒歩16分 静岡県浜松市中央区松城町 | 詳細を見る | |
マンション ロイヤルシティ泉II(1LDK/3階) | |||||||
![]() | 8万円 4,000円 | なし 8万円 | 1LDK 42.54m2 | 築2年 | 遠州鉄道 曳馬駅 徒歩29分 静岡県浜松市中央区泉 | 詳細を見る | |
マンション リヴェールセントラルハイツ(3LDK/1階) | |||||||
![]() | 7.8万円 3,000円 | 15.6万円 なし | 3LDK 72m2 | 築38年 | 静岡県浜松市中央区佐藤1丁目 | 詳細を見る | |







