賃貸マンション
ホーリーランド貫南戸建の賃貸物件情報(4LDK/1階)
| 家賃 | 管理費等 | 敷金 | 礼金 | 間取り | 専有面積 |
|---|---|---|---|---|---|
| 19.8万円 | なし | 39.6万円 | 19.8万円 | 4LDK | 116.9m2 |
入居決定でお祝い金最大100,000円
- 保証金
- -
- 償却・敷引
- -
- 築年数
- 築34年
- 所在階
- 1階
- 向き
- 南
Point
マンションに隣接の戸建。剪定は借主様になります。
提供:(株)ディーアール東京西国分寺店(SUUMO経由)

詳細情報 ホーリーランド貫南戸建
物件紹介
ホーリーランド貫南戸建はJR中央線国分寺駅から徒歩18分にあるマンションです。
このお部屋のインターホンにはTVモニタがついているため、相手の顔を確認してから来客対応することができます。
人気の南向きのお部屋。また、フローリングなのでお掃除もラクラク。キッチンはシステムキッチン仕様になっていますので、お料理好きの方にもぴったり。また、バス・トイレは別で、のんびりお風呂タイムも楽しめるでしょう。
通信設備面では、インターネットが無料で使えるので、月々の出費を抑えられるのも魅力です。また、CATVにも対応しているので、おうち時間も充実するでしょう(別途工事、CATVの契約料等が必要な場合あり)。
このお部屋のインターホンにはTVモニタがついているため、相手の顔を確認してから来客対応することができます。
人気の南向きのお部屋。また、フローリングなのでお掃除もラクラク。キッチンはシステムキッチン仕様になっていますので、お料理好きの方にもぴったり。また、バス・トイレは別で、のんびりお風呂タイムも楽しめるでしょう。
通信設備面では、インターネットが無料で使えるので、月々の出費を抑えられるのも魅力です。また、CATVにも対応しているので、おうち時間も充実するでしょう(別途工事、CATVの契約料等が必要な場合あり)。
お金・契約の情報
※「-」と表示されているものは、実際は料金が発生するものもございます。詳細はお問い合わせください。
| 家賃 | 19.8万円 | 管理費・共益費 | なし |
|---|---|---|---|
| 敷金 | 39.6万円 | 礼金 | 19.8万円 |
| 入居決定でお祝い金最大100,000円 | |||
| 保証金 | - | 償却・敷引 | - |
| 住宅保険料 | - | 更新料 | - |
| 保証会社利用 | 必須 | 保証会社名 | - |
| 保証会社費用 | - | 保証会社備考 | 保証会社利用必 初回保証料:月額総支払額×50%・月額保証料:月額総支払額×1.0% |
| 契約形態 | - | 契約期間 | - |
| 入居・引渡期間 | 即時 | 現況 | - |
| 契約備考 | 1年未満での解約の場合、総賃料1ヶ月分の違約金あり。ペット・楽器不可。 合計3.3万円(内訳:鍵交換代3.3万円) 更新料 新賃料1.00ヶ月分 4LDK 二人入居可/子供可/事務所利用不可/ルームシェア不可 普通借家2年 損保【2.4万円2年】 バストイレ別、バルコニー、エアコン、ガスコンロ対応、クロゼット、フローリング、シャワー付洗面台、TVインターホン、室内洗濯置、シューズボックス、システムキッチン、南向き、追焚機能浴室、温水洗浄便座、脱衣所、洗面所独立、洗面化粧台、駐輪場、押入、CATV、即入居可、2面採光、最上階、3口以上コンロ、照明付、駐車場1台無料、グリル付、振分、CATVインターネット、二人入居相談、2面バルコニー、玄関ホール、2沿線利用可、専用庭、エアコン2台、メゾネット、ネット使用料不要、テラス、敷金2ヶ月、ダブルロックキー、ルーフバルコニー、内階段、庭、LDK20畳以上、エアコン3台、トイレ2ヶ所、クロゼット2ヶ所、南面リビング、玄関ポーチ、エアコン4台、2駅利用可、3駅以上利用可、専有面積30坪以上、平面駐車場、和室、都市ガス、洗面所にドア、礼金1ヶ月、初期費用カード決済可、通風良好 | ||
部屋の情報
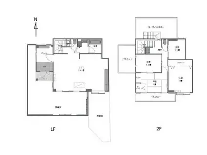
| 間取り | 4LDK | 専有面積 | 116.9m2 |
|---|---|---|---|
| 所在階 / 向き | 1階 / 南 | バルコニー面積 | - |
| 水道 / ガス | - | ||
| 設備 | バス・トイレ別、テレビドアホン、追い焚き、インターネット対応、システムキッチン、エアコン、温水洗浄便座、南向き、バルコニー、フローリング、洗髪洗面化粧台、2口コンロ、コンロ:ガス、CATV、インターネット使用料無料、専用庭、洗濯機:室内 | ||
| 当社物件ID | 159926416 | ||
建物の情報
| 建物名 | ホーリーランド貫南戸建 | ||
|---|---|---|---|
| 所在地 | 東京都小金井市貫井南町 | ||
| 交通 | JR中央線 国分寺駅 徒歩18分 JR中央線 武蔵小金井駅 徒歩19分 西武多摩湖線 一橋学園駅 徒歩42分 | ||
| 階数 | 2階建 | 総戸数 | - |
| 築年月 | 1993年03月 / 築34年 | エレベーター | - |
| 駐車場 | 空有 付無料 | バイク置き場 | - |
| 駐輪場 | あり | 管理人/管理会社 | - |
| 周辺環境 | その他 小金井市立 わかたけ保育園(幼稚園・保育園)まで968m その他 小金井市立 小金井第四小学校(小学校)まで129m その他 東京経済大学(大学・短大)まで656m その他 東京学芸大学(大学・短大)まで1014m その他 マルバーン・カレッジ東京(その他)まで1793m その他 Olympic(オリンピック) 小金井店(スーパー)まで1186m | ||
| 建物種別 | マンション | 建物構造 | RC(鉄筋コンクリート) |
この部屋の取扱い不動産会社
| 会社名 | (株)ディーアール東京西国分寺店(SUUMO経由) | ||
|---|---|---|---|
| 所在地 | 東京都国分寺市西恋ヶ窪2-6-8 西国企画ビル | 交通 | - |
| 営業時間 | 10時から19時(時間外もご相談下さい) | 定休日 | 毎週水曜日・季節休暇 |
| 免許番号 | 東京都知事94613 | 取引態様 | 仲介 |
| 不動産会社管理番号 | 100474630379 | 当社管理番号 | 89 |
| 所属団体 | (公社)全日本不動産協会東京都本部会員 | ||
| 公正取引協議会 | (公社)首都圏不動産公正取引協議会加盟 | ||
| 取扱い物件情報 | 物件詳細へ | ||
※各種情報と現状に差異がある場合は、現状優先となります。問い合わせをすることで、より詳しい条件、情報を確認する事ができます。
提供:(株)ディーアール東京西国分寺店(SUUMO経由)
この物件が気になったら掲載期限まであと11日
ホーリーランド貫南戸建に条件(家賃・エリア)が近い物件一覧
| 写真 | 家賃 管理費等 | 敷金 礼金 | 間取り 専有面積 | 築年数 | 最寄り駅 所在地 | キープ | 詳細 |
|---|---|---|---|---|---|---|---|
アパート GRACECOURTIII(3LDK/1階) | |||||||
![]() | 15.7万円 3,000円 | 15.7万円 15.7万円 | 3LDK 77.84m2 | 築5年 | 東京都三鷹市野崎 | 詳細を見る | |
マンション JR中央線 吉祥寺駅 徒歩8分 築13年(1LDK/2階) | |||||||
![]() | 13.4万円 5,000円 | 13.4万円 なし | 1LDK 30.45m2 | 築13年 | JR中央線 吉祥寺駅 徒歩8分 京王井の頭線 井の頭公園駅 徒歩8分 JR中央線 西荻窪駅 徒歩22分 東京都武蔵野市吉祥寺南町 | 詳細を見る | |
アパート 南町PARK SIDE LODGE A棟(1LDK/1階) | |||||||
![]() | 17.5万円 なし | 17.5万円 17.5万円 | 1LDK 50.87m2 | 築15年 | 京王井の頭線 井の頭公園駅 徒歩3分 JR総武線 吉祥寺駅 徒歩7分 京王井の頭線 三鷹台駅 徒歩14分 東京都武蔵野市吉祥寺南町 | 詳細を見る | |
マンション ライオンズマンション調布(3LDK/1階) | |||||||
![]() | 12万円 なし | 24万円 12万円 | 3LDK 66.08m2 | 築45年 | 京王線 布田駅 徒歩14分 京王線 国領駅 徒歩20分 東京都調布市染地 | 詳細を見る | |
マンション ファインスクエア武蔵野リアン(3LDK/2階) | |||||||
![]() | 26万円 1万円 | 52万円 26万円 | 3LDK 70.2m2 | 築3年 | JR中央線 三鷹駅 徒歩17分 JR中央線 武蔵境駅 徒歩24分 西武新宿線 西武柳沢駅 徒歩33分 東京都武蔵野市西久保 | 詳細を見る | |
マンション ホクレア分倍河原(2LDK/2階) | |||||||
![]() | 22.6万円 1万円 | なし 45.2万円 | 2LDK 69.31m2 | 築1年 | 京王線 分倍河原駅 徒歩5分 JR南武線 府中本町駅 徒歩9分 京王線 府中駅(東京) 徒歩18分 東京都府中市片町 | 詳細を見る | |
アパート リンデンハイムII(2SLDK/2階) | |||||||
![]() | 16.5万円 なし | 16.5万円 16.5万円 | 2SLDK 82.05m2 | 築38年 | 西武国分寺線 恋ケ窪駅 徒歩13分 JR武蔵野線 西国分寺駅 徒歩15分 JR中央線 国立駅 徒歩16分 東京都国分寺市日吉町 | 詳細を見る | |
マンション LUMINOUSつつじヶ丘(1SLDK/3階) | |||||||
![]() | 18.3万円 1万円 | なし なし | 1SLDK 43.45m2 | 築1年 | 京王線 柴崎駅 徒歩8分 京王線 つつじケ丘駅 徒歩13分 京王線 国領駅 徒歩17分 東京都調布市菊野台 | 詳細を見る | |









