賃貸マンション
プレサンス天神橋筋六丁目ヴォワールの賃貸物件情報(1DK/3階)
| 家賃 | 管理費等 | 敷金 | 礼金 | 間取り | 専有面積 |
|---|---|---|---|---|---|
| 8.66万円 | 8,400円 | なし | 10万円 | 1DK | 25.84m2 |
入居決定でお祝い金最大100,000円
- 保証金
- -
- 償却・敷引
- -
- 築年数
- 築5年
- 所在階
- 3階
- 向き
- 東
Point
高い耐久性や断熱・気密性、防音性に優れた鉄筋コンクリート構造です。
提供:株式会社エリッツ 賃貸のエリッツJR茨木店(賃貸スモッカ経由)
詳細情報 プレサンス天神橋筋六丁目ヴォワール
物件紹介
プレサンス天神橋筋六丁目ヴォワールは大阪市堺筋線天神橋筋六丁目駅から徒歩7分にあり、駅近で通勤通学に便利なマンションです。
このお部屋は2階以上に位置しているので通行人や周囲の住人からの視線が気になりにくく、建物のエントランスはオートロックがついているので防犯性が高くなっています。
フローリングのお部屋なのでお掃除もラクラク。バス・トイレ別の仕様で、のんびりお風呂タイムも楽しめます。また、浴室乾燥機を使えば、雨の日でもお洗濯は問題ありません。
通信設備面ではBSアンテナがありCATVにも対応しているので、おうち時間も充実するでしょう(別途工事、契約料が必要な場合あり)。
建物にはエレベーターがついているので、重い荷物があっても安心。共用部には宅配ボックスが設定されているので、不在の時にも荷物を受け取ることができます。
このお部屋は2階以上に位置しているので通行人や周囲の住人からの視線が気になりにくく、建物のエントランスはオートロックがついているので防犯性が高くなっています。
フローリングのお部屋なのでお掃除もラクラク。バス・トイレ別の仕様で、のんびりお風呂タイムも楽しめます。また、浴室乾燥機を使えば、雨の日でもお洗濯は問題ありません。
通信設備面ではBSアンテナがありCATVにも対応しているので、おうち時間も充実するでしょう(別途工事、契約料が必要な場合あり)。
建物にはエレベーターがついているので、重い荷物があっても安心。共用部には宅配ボックスが設定されているので、不在の時にも荷物を受け取ることができます。
お金・契約の情報
※「-」と表示されているものは、実際は料金が発生するものもございます。詳細はお問い合わせください。
| 家賃 | 8.66万円 | 管理費・共益費 | 8,400円 |
|---|---|---|---|
| 敷金 | なし | 礼金 | 10万円 |
| 入居決定でお祝い金最大100,000円 | |||
| 保証金 | - | 償却・敷引 | - |
| 住宅保険料 | 住宅保険料あり | 更新料 | - |
| 契約形態 | - | 契約期間 | 1年 |
| 入居・引渡期間 | 相談 | 現況 | 空室 |
| 契約備考 | その他初期費用計:990円 更新料:11,000円 保証会社:利用必須 その他設備/条件:IT重説 対応物件、セキュリティ会社加入済、防犯カメラ、独立洗面台、TVドアホン | ||
部屋の情報
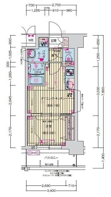
| 間取り | 1DK | 専有面積 | 25.84m2 |
|---|---|---|---|
| 間取り詳細 | DK(6.1帖)、洋室(3.6帖) | ||
| 所在階 / 向き | 3階 / 東 | バルコニー面積 | - |
| 水道 / ガス | ガス【都市】 | ||
| 設備 | バス・トイレ別、2階以上、オートロック、宅配ボックス、浴室乾燥機、追い焚き、エアコン、エレベーター、温水洗浄便座、バルコニー、フローリング、CATV、BSアンテナ、洗濯機:室内 | ||
| 当社物件ID | 47051379 | ||
建物の情報
| 建物名 | プレサンス天神橋筋六丁目ヴォワール | ||
|---|---|---|---|
| 所在地 | 大阪府大阪市北区本庄東3丁目2-17 | ||
| 交通 | 大阪市堺筋線 天神橋筋六丁目駅 徒歩7分 大阪市谷町線 天神橋筋六丁目駅 徒歩7分 大阪環状線 天満駅 徒歩16分 | ||
| 階数 | 10階建 | 総戸数 | - |
| 築年月 | 2021年03月 / 築5年 | エレベーター | あり |
| 駐車場 | - | バイク置き場 | - |
| 駐輪場 | - | 管理人/管理会社 | - |
| 建物種別 | マンション | 建物構造 | RC(鉄筋コンクリート) |
この部屋の取扱い不動産会社
| 会社名 | 株式会社エリッツ 賃貸のエリッツ天六店(賃貸スモッカ経由) | ||
|---|---|---|---|
| 所在地 | 大阪府大阪市北区本庄東1-6-21 | 交通 | - |
| 営業時間 | - | 定休日 | - |
| 免許番号 | 国土交通大臣免許(7)第5206号 | 取引態様 | 仲介 |
| 不動産会社管理番号 | elitz_R02728-005646 | 当社管理番号 | 463 |
| 所属団体 | (公社)全国宅地建物取引業協会\n(一社)大阪府宅地建物取引業協会\n公益社団法人近畿地区不動産公正取引協議会\n(公社)近畿圏不動産流通機構 | ||
| 公正取引協議会 | (公社)全国宅地建物取引業保証協会 | ||
| 取扱い物件情報 | 物件詳細へ | ||
※各種情報と現状に差異がある場合は、現状優先となります。問い合わせをすることで、より詳しい条件、情報を確認する事ができます。
提供:株式会社エリッツ 賃貸のエリッツ天六店(賃貸スモッカ経由)
この物件が気になったら掲載期限まであと6日
プレサンス天神橋筋六丁目ヴォワールに条件(家賃・エリア)が近い物件一覧
| 写真 | 家賃 管理費等 | 敷金 礼金 | 間取り 専有面積 | 築年数 | 最寄り駅 所在地 | キープ | 詳細 |
|---|---|---|---|---|---|---|---|
アパート ベル ファミーレ(1LDK/3階) | |||||||
![]() | 8.95万円 5,000円 | なし 13.5万円 | 1LDK 40.47m2 | 新築 | 京阪電気鉄道京阪線 西三荘駅 徒歩22分 大阪府守口市寺方錦通3丁目 | 詳細を見る | |
マンション コーポ・イン松原(2LDK/4階) | |||||||
![]() | 5.3万円 6,000円 | なし 5万円 | 2LDK 42.65m2 | 築42年 | 近鉄南大阪線 河内松原駅 徒歩5分 近鉄南大阪線 高見ノ里駅 徒歩10分 近鉄南大阪線 布忍駅 徒歩17分 大阪府松原市阿保1丁目 | 詳細を見る | |
アパート CHRYSANTHEME大鳥 (2LDK/3階) | |||||||
![]() | 13.3万円 7,500円 | 5万円 20万円 | 2LDK 62.56m2 | 築1年 | 阪和線 鳳駅 徒歩11分 阪和線 津久野駅 徒歩17分 南海電鉄南海本線 浜寺公園駅 徒歩20分 大阪府堺市西区鳳北町4丁 | 詳細を見る | |
マンション レオパレスプレンティ浜寺(1K/2階) | |||||||
![]() | 5.4万円 7,000円 | なし 5.4万円 | 1K 20.28m2 | 築19年 | 阪和線 東羽衣駅 徒歩9分 南海電鉄南海本線 羽衣駅 徒歩10分 阪和線 鳳駅 徒歩20分 大阪府堺市西区浜寺南町1丁 | 詳細を見る | |
アパート グランドール天美(2LDK/1階) | |||||||
![]() | 9.4万円 8,000円 | なし 14.1万円 | 2LDK 58.84m2 | 築6年 | 近鉄南大阪線 河内天美駅 徒歩10分 近鉄南大阪線 布忍駅 徒歩20分 近鉄南大阪線 高見ノ里駅 徒歩25分 大阪府松原市天美東2丁目 | 詳細を見る | |
アパート 阪和線 鳳駅 徒歩10分 築18年(ワンルーム/1階) | |||||||
![]() | 5.25万円 4,000円 | なし なし | ワンルーム 28.9m2 | 築18年 | 阪和線 鳳駅 徒歩10分 阪和線 富木駅 徒歩12分 南海電鉄南海本線 羽衣駅 徒歩14分 大阪府堺市西区鳳西町2丁 | 詳細を見る | |
マンション グランディールタカラ(1K/2階) | |||||||
| 8万円 1万円 | なし 10万円 | 1K 31.33m2 | 築20年 | JR東西線 大阪天満宮駅 徒歩3分 大阪市堺筋線 南森町駅 徒歩3分 大阪市谷町線 南森町駅 徒歩3分 大阪府大阪市北区天神橋2丁目1-14 | 詳細を見る | ||






