賃貸マンション
エステムコート博多駅前IIセグティスの賃貸物件情報(1K/3階)
| 家賃 | 管理費等 | 敷金 | 礼金 | 間取り | 専有面積 |
|---|---|---|---|---|---|
| 6.45万円 | 1.1万円 | なし | 6.45万円 | 1K | 21.56m2 |
入居決定でお祝い金最大100,000円
- 保証金
- -
- 償却・敷引
- -
- 築年数
- 築19年
- 所在階
- 3階
- 向き
- -
Point
まずはお問い合わせ!
不動産会社は街のプロ、あなたに合った物件がきっと見つかります。
提供:クラウドエステート 福岡本店(株)BLAST MADE(SUUMO経由)

詳細情報 エステムコート博多駅前IIセグティス
物件紹介
エステムコート博多駅前IIセグティスは地下鉄空港線東比恵駅から徒歩7分にあり、駅近で通勤通学に便利なマンションです。
このお部屋は2階以上に位置しているので、通行人や周囲の住人からの視線が気になりにくく、防犯面でも安心。建物のエントランスはオートロックがついており、インターホンにはTVモニタもついているため、相手の顔を確認してから来客対応することができます。
おしゃれなデザイナーズ物件!フローリングのお部屋なのでお掃除もラクラク。キッチンはシステムキッチン仕様になっていますので、お料理好きの方にもぴったり。また、バス・トイレは別で、のんびりお風呂タイムも楽しめるでしょう。
通信設備面ではBSアンテナ・CSアンテナがあり、CATVにも対応しているので、おうち時間も充実するでしょう(別途工事、契約料が必要な場合あり)。
建物にはエレベーターがついているので、重い荷物があっても安心。共用部には宅配ボックスが設定されているので、不在の時にも荷物を受け取ることができます。
このお部屋は2階以上に位置しているので、通行人や周囲の住人からの視線が気になりにくく、防犯面でも安心。建物のエントランスはオートロックがついており、インターホンにはTVモニタもついているため、相手の顔を確認してから来客対応することができます。
おしゃれなデザイナーズ物件!フローリングのお部屋なのでお掃除もラクラク。キッチンはシステムキッチン仕様になっていますので、お料理好きの方にもぴったり。また、バス・トイレは別で、のんびりお風呂タイムも楽しめるでしょう。
通信設備面ではBSアンテナ・CSアンテナがあり、CATVにも対応しているので、おうち時間も充実するでしょう(別途工事、契約料が必要な場合あり)。
建物にはエレベーターがついているので、重い荷物があっても安心。共用部には宅配ボックスが設定されているので、不在の時にも荷物を受け取ることができます。
お金・契約の情報
※「-」と表示されているものは、実際は料金が発生するものもございます。詳細はお問い合わせください。
| 家賃 | 6.45万円 | 管理費・共益費 | 1.1万円 |
|---|---|---|---|
| 敷金 | なし | 礼金 | 6.45万円 |
| フリーレント | あり | ||
| 入居決定でお祝い金最大100,000円 | |||
| 保証金 | - | 償却・敷引 | - |
| 住宅保険料 | - | 更新料 | - |
| 契約形態 | - | 契約期間 | - |
| 入居・引渡期間 | 相談 | 現況 | - |
| 契約備考 | 敷金・礼金ゼロやインターネット無料、ペット飼育可など、人気条件のお部屋も多数取り扱い。オンライン内見やLINEでのやり取りにも対応しており、遠方の方やお忙しい方でも安心です。「おしゃれに、快適に暮らす」をコンセプトに、理想のお部屋探しを全力でサポートいたします。ぜひお気軽にクラウドエステート福岡本店までお問い合わせください。 合計3.85万円(内訳:鍵交換代3.85万円) 月額保証料 月額800円 24時間サポート 月額1650円 口座振替手数料 月額330円 1K フリーレント1ヶ月 普通借家2年 損保【2万円2年】 バストイレ別、バルコニー、エアコン、ガスコンロ対応、クロゼット、フローリング、TVインターホン、オートロック、室内洗濯置、陽当り良好、シューズボックス、システムキッチン、温水洗浄便座、エレベーター、洗面化粧台、駐輪場、宅配ボックス、CATV、外壁タイル張り、閑静な住宅地、BS・CS、敷金不要、防犯カメラ、全居室収納、全居室洋室、バイク置場、24時間緊急通報システム、全居室フローリング、デザイナーズ、2沿線利用可、CS、駅まで平坦、フリーレント、緑豊かな住宅地、眺望良好、エアコン全室、24時間換気システム、平坦地、一部フローリング、2駅利用可、駅前、防犯強化地域、駅徒歩10分以内、バス停徒歩3分以内、高層階、24時間ゴミ出し可、敷地内ごみ置き場、全居室6畳以上、都市ガス、玄関収納、BS、年内入居可、年度内入居可、礼金1ヶ月、IT重説対応物件、高齢者歓迎、通風良好 | ||
部屋の情報
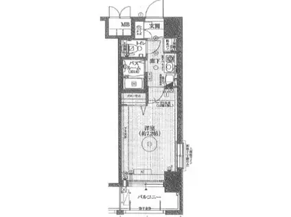
| 間取り | 1K | 専有面積 | 21.56m2 |
|---|---|---|---|
| 所在階 / 向き | 3階 / - | バルコニー面積 | - |
| 水道 / ガス | - | ||
| 設備 | バス・トイレ別、2階以上、オートロック、テレビドアホン、宅配ボックス、システムキッチン、エアコン、エレベーター、温水洗浄便座、バルコニー、フローリング、コンロ:ガス、デザイナーズ、CATV、CSアンテナ、BSアンテナ、洗濯機:室内 | ||
| 当社物件ID | 12058846 | ||
建物の情報
| 建物名 | エステムコート博多駅前IIセグティス | ||
|---|---|---|---|
| 所在地 | 福岡県福岡市博多区博多駅東 | ||
| 交通 | 地下鉄空港線 東比恵駅 徒歩7分 JR鹿児島本線 博多駅 徒歩10分 地下鉄空港線 祇園駅(福岡) 徒歩20分 | ||
| 階数 | 11階建 | 総戸数 | - |
| 築年月 | 2008年01月 / 築19年 | エレベーター | あり |
| 駐車場 | 近隣 160m16500円 | バイク置き場 | あり |
| 駐輪場 | あり | 管理人/管理会社 | - |
| 周辺環境 | その他 セブンイレブン 博多瑞穂南店(コンビニ)まで649m その他 ファミリーマート 博多東住吉店(コンビニ)まで692m その他 サニー駅南店(スーパー)まで796m その他 セブンイレブン 博多駅東3丁目店(コンビニ)まで73m その他 セブンイレブン 福岡合同庁舎東店(コンビニ)まで107m その他 福岡銀行筑紫通支店(銀行)まで763m | ||
| 建物種別 | マンション | 建物構造 | RC(鉄筋コンクリート) |
この部屋の取扱い不動産会社
| 会社名 | クラウドエステート 福岡本店(株)BLAST MADE(SUUMO経由) | ||
|---|---|---|---|
| 所在地 | 福岡県福岡市博多区博多駅東1-12-5 博多大島ビル3階 | 交通 | - |
| 営業時間 | 10:00~19:00 | 定休日 | 年末年始休暇 |
| 免許番号 | 国土交通大臣10577 | 取引態様 | 仲介 |
| 不動産会社管理番号 | 100487676993 | 当社管理番号 | 89 |
| 所属団体 | (公社)福岡県宅地建物取引業協会会員 | ||
| 公正取引協議会 | (一社)九州不動産公正取引協議会加盟 | ||
| 取扱い物件情報 | 物件詳細へ | ||
※各種情報と現状に差異がある場合は、現状優先となります。問い合わせをすることで、より詳しい条件、情報を確認する事ができます。
提供:クラウドエステート 福岡本店(株)BLAST MADE(SUUMO経由)
この物件が気になったら掲載期限まであと10日
エステムコート博多駅前IIセグティスに条件(家賃・エリア)が近い物件一覧
| 写真 | 家賃 管理費等 | 敷金 礼金 | 間取り 専有面積 | 築年数 | 最寄り駅 所在地 | キープ | 詳細 |
|---|---|---|---|---|---|---|---|
アパート ブライトン麦野A(1LDK/1階) | |||||||
![]() | 8.5万円 4,000円 | なし 17万円 | 1LDK 40.3m2 | 築25年 | 西鉄天神大牟田線 雑餉隈駅 徒歩6分 西鉄天神大牟田線 桜並木駅 徒歩13分 鹿児島本線 南福岡駅 徒歩16分 福岡県福岡市博多区麦野5丁目 | 詳細を見る | |
マンション クレールマノワール(2LDK/1階) | |||||||
![]() | 7.5万円 3,000円 | なし 15万円 | 2LDK 50.63m2 | 築28年 | 西鉄天神大牟田線 白木原駅 徒歩6分 鹿児島本線 大野城駅 徒歩12分 西鉄天神大牟田線 春日原駅 徒歩12分 福岡県大野城市 | 詳細を見る | |
アパート コートクレーセ(2LDK/1階) | |||||||
![]() | 4.5万円 なし | なし 9万円 | 2LDK 53.73m2 | 築37年 | JR鹿児島本線 大野城駅 徒歩29分 JR鹿児島本線 水城駅 徒歩29分 西鉄天神大牟田線 下大利駅 徒歩29分 福岡県春日市平田台 | 詳細を見る | |
アパート DーRESIDENCE光丘町B棟 B棟(1LDK/3階) | |||||||
![]() | 9.2万円 6,000円 | なし 18.4万円 | 1LDK 40.01m2 | 新築 | 鹿児島本線 春日駅(福岡) 徒歩8分 鹿児島本線 南福岡駅 徒歩11分 西鉄天神大牟田線 春日原駅 徒歩11分 福岡県福岡市博多区光丘町2丁目 | 詳細を見る | |
アパート 第2糸瀬アパート(3DK/2階) | |||||||
![]() | 4万円 なし | なし なし | 3DK 52m2 | 築41年 | 福岡県春日市 | 詳細を見る | |
アパート エクセルクローバーD棟(3LDK/2階) | |||||||
![]() | 5.2万円 4,000円 | なし 6万円 | 3LDK 62.8m2 | 築36年 | 西鉄天神大牟田線 下大利駅 徒歩31分 福岡県春日市平田台4丁目 | 詳細を見る | |







