賃貸マンション
エスリード京都洛南の賃貸物件情報(2LDK/3階)
| 家賃 | 管理費等 | 敷金 | 礼金 | 間取り | 専有面積 |
|---|---|---|---|---|---|
| 13.5万円 | 1万円 | なし | 13.5万円 | 2LDK | 61.72m2 |
入居決定でお祝い金最大100,000円
- 保証金
- -
- 償却・敷引
- -
- 築年数
- 築11年
- 所在階
- 3階
- 向き
- 西
Point
2015年4月完成。豪華分譲マンションが賃貸で登場。
提供:株式会社 京都ライフ 京都駅前店(賃貸スモッカ経由)

詳細情報 エスリード京都洛南
物件紹介
エスリード京都洛南は小田急電鉄小田原線生田駅から徒歩6分にあり、駅近で通勤通学に便利なマンションです。
このお部屋は2階以上に位置しているので、通行人や周囲の住人からの視線が気になりにくく、防犯面でも安心。建物のエントランスはオートロックがついており、インターホンにはTVモニタもついているため、相手の顔を確認してから来客対応することができます。
人気の角部屋で周囲の居住者の生活音も気になりにくく、また、フローリングのお部屋なのでお掃除もラクラク。室内にはウォークインクローゼットがありますので、たくさんの荷物も効率的に収納ができます。キッチンはシステムキッチン仕様になっていますので、お料理好きの方にもぴったり。バス・トイレは別なので、のんびりお風呂タイムも楽しめるでしょう。また、雨の日でも浴室乾燥機を使えば、お洗濯も問題ありません。
通信設備面では、インターネットが無料で使えるので、月々の出費を抑えられるのも魅力です。また、BSアンテナ・CSアンテナがありCATVにも対応しているので、おうち時間も充実するでしょう(別途工事、BS・CS・CATVの契約料等が必要な場合あり)。
床暖房があり、冬も足元から暖かく快適に過ごすことができます。建物にはエレベーターがついているので、重い荷物があっても安心。共用部には宅配ボックスが設定されているので、不在の時にも荷物を受け取ることができます。また、ペット飼育の相談ができますので、あなたの大切な家族の一員も快適に暮らせるか、ぜひ確認してみてください。
このお部屋は2階以上に位置しているので、通行人や周囲の住人からの視線が気になりにくく、防犯面でも安心。建物のエントランスはオートロックがついており、インターホンにはTVモニタもついているため、相手の顔を確認してから来客対応することができます。
人気の角部屋で周囲の居住者の生活音も気になりにくく、また、フローリングのお部屋なのでお掃除もラクラク。室内にはウォークインクローゼットがありますので、たくさんの荷物も効率的に収納ができます。キッチンはシステムキッチン仕様になっていますので、お料理好きの方にもぴったり。バス・トイレは別なので、のんびりお風呂タイムも楽しめるでしょう。また、雨の日でも浴室乾燥機を使えば、お洗濯も問題ありません。
通信設備面では、インターネットが無料で使えるので、月々の出費を抑えられるのも魅力です。また、BSアンテナ・CSアンテナがありCATVにも対応しているので、おうち時間も充実するでしょう(別途工事、BS・CS・CATVの契約料等が必要な場合あり)。
床暖房があり、冬も足元から暖かく快適に過ごすことができます。建物にはエレベーターがついているので、重い荷物があっても安心。共用部には宅配ボックスが設定されているので、不在の時にも荷物を受け取ることができます。また、ペット飼育の相談ができますので、あなたの大切な家族の一員も快適に暮らせるか、ぜひ確認してみてください。
お金・契約の情報
※「-」と表示されているものは、実際は料金が発生するものもございます。詳細はお問い合わせください。
| 家賃 | 13.5万円 | 管理費・共益費 | 1万円 |
|---|---|---|---|
| 敷金 | なし | 礼金 | 13.5万円 |
| 入居決定でお祝い金最大100,000円 | |||
| 保証金 | - | 償却・敷引 | - |
| 住宅保険料 | 住宅保険料あり | 更新料 | - |
| 契約形態 | - | 契約期間 | 2年 |
| 入居・引渡期間 | 2026年02月上旬 | 現況 | 賃貸中 |
| 契約備考 | JR西大路駅徒歩圏内に、分譲シリーズ「エスリード」が登場します。近くには、イオンの他、スーパー、銀行、総合病院まで生活に便利な設備が揃っています。ペット飼育も可能となります。お問い合わせお待ちしております。 エアコンクリーニング代:16,500円 入居者サポート:16,500円 更新料:15,000円 保証会社:利用必須 初回:月額賃料等の50%、月額:支払い手数料330円、更新時:1.3万円/1年 その他設備/条件:分譲賃貸、コンロ2口以上、独立洗面台、TVドアホン | ||
部屋の情報
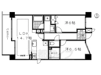
| 間取り | 2LDK | 専有面積 | 61.72m2 |
|---|---|---|---|
| 間取り詳細 | 洋室(8.9帖)、洋室(6.5帖)、洋室(6帖)、LDK(14.7帖) | ||
| 所在階 / 向き | 3階 / 西 | バルコニー面積 | - |
| 水道 / ガス | ガス【都市】 | ||
| 設備 | バス・トイレ別、2階以上、オートロック、テレビドアホン、宅配ボックス、浴室乾燥機、ウォークインクローゼット、追い焚き、インターネット対応、システムキッチン、カウンターキッチン、エレベーター、温水洗浄便座、角部屋、バルコニー、フローリング、洗髪洗面化粧台、バリアフリー、床暖房、コンロ:ガス、CATV、CSアンテナ、BSアンテナ、インターネット使用料無料、シャワー、給湯、洗濯機:室内 | ||
| 当社物件ID | 17807762 | ||
建物の情報
| 建物名 | エスリード京都洛南 | ||
|---|---|---|---|
| 所在地 | 京都府京都市南区唐橋川久保町 | ||
| 交通 | 東海道本線 西大路駅 徒歩7分 東海道本線 京都駅 徒歩27分 小田急電鉄小田原線 生田駅(神奈川) 徒歩6分 | ||
| 階数 | 8階建 | 総戸数 | - |
| 築年月 | 2015年04月 / 築11年 | エレベーター | あり |
| 駐車場 | なし | バイク置き場 | - |
| 駐輪場 | あり | 管理人/管理会社 | - |
| 周辺環境 | その他 ドラッグストア その他 公園 その他 銀行 その他 * | ||
| 建物種別 | マンション | 建物構造 | RC(鉄筋コンクリート) |
この部屋の取扱い不動産会社
| 会社名 | 株式会社 京都ライフ 西大路店(賃貸スモッカ経由) | ||
|---|---|---|---|
| 所在地 | 京都市南区唐橋西平垣町38-1 ルミエール唐橋1階 | 交通 | - |
| 営業時間 | - | 定休日 | - |
| 免許番号 | 京都府知事(11)第6353号 | 取引態様 | 仲介 |
| 不動産会社管理番号 | kyotolife_59686-303 | 当社管理番号 | 463 |
| 所属団体 | 京都府宅地建物取引業協会\n公益社団法人近畿地区不動産公正取引協議会 | ||
| 公正取引協議会 | 全国宅地建物取引業保証協会 | ||
| 取扱い物件情報 | 物件詳細へ | ||
※各種情報と現状に差異がある場合は、現状優先となります。問い合わせをすることで、より詳しい条件、情報を確認する事ができます。
提供:株式会社 京都ライフ 西大路店(賃貸スモッカ経由)
この物件が気になったら掲載期限まであと5日
エスリード京都洛南に条件(家賃・エリア)が近い物件一覧
| 写真 | 家賃 管理費等 | 敷金 礼金 | 間取り 専有面積 | 築年数 | 最寄り駅 所在地 | キープ | 詳細 |
|---|---|---|---|---|---|---|---|
マンション 東海道本線 西大路駅 徒歩7分 築7年(1K/6階) | |||||||
![]() | 8.2万円 1.1万円 | なし 8.2万円 | 1K 26.1m2 | 築7年 | 東海道本線 西大路駅 徒歩7分 山陰本線 丹波口駅 徒歩26分 京都府京都市下京区梅小路高畑町 | 詳細を見る | |
マンション 東海道本線 西大路駅 徒歩7分 築11年(2LDK/3階) | |||||||
![]() | 13.5万円 1万円 | なし 13.5万円 | 2LDK 61.72m2 | 築11年 | 東海道本線 西大路駅 徒歩7分 東海道本線 京都駅 徒歩27分 小田急電鉄小田原線 生田駅(神奈川) 徒歩6分 京都府京都市南区唐橋川久保町 | 詳細を見る | |
マンション 阪急電鉄京都線 長岡天神駅 徒歩5分 築8年(1LDK/2階) | |||||||
![]() | 16.9万円 1万円 | なし なし | 1LDK 69.91m2 | 築8年 | 阪急電鉄京都線 長岡天神駅 徒歩5分 東海道本線 長岡京駅 徒歩10分 京都府長岡京市開田4丁目 | 詳細を見る | |
マンション アドバンス京都リエート(2K/5階) | |||||||
![]() | 8.63万円 7,400円 | なし なし | 2K 29.6m2 | 新築 | 近鉄京都線 東寺駅 徒歩5分 近鉄京都線 十条駅(近鉄) 徒歩10分 東海道本線 京都駅 徒歩19分 京都府京都市南区西九条比永城町 | 詳細を見る | |
マンション 近鉄京都線 東寺駅 徒歩4分 新築(1DK/5階) | |||||||
![]() | 8.63万円 7,400円 | なし なし | 1DK 29.6m2 | 新築 | 近鉄京都線 東寺駅 徒歩4分 東海道本線 京都駅 徒歩18分 京都府京都市南区西九条比永城町 | 詳細を見る | |
アパート 東海道本線 長岡京駅 徒歩10分 築1年(1LDK/3階) | |||||||
![]() | 9.5万円 5,000円 | なし 19万円 | 1LDK 39.9m2 | 築1年 | 東海道本線 長岡京駅 徒歩10分 阪急電鉄京都線 長岡天神駅 徒歩12分 京都府長岡京市馬場1丁目 | 詳細を見る | |
一戸建て 阪急電鉄京都線 西山天王山駅 徒歩19分 築1年(3LDK) | |||||||
![]() | 17万円 なし | 20万円 17万円 | 3LDK 112.98m2 | 築1年 | 阪急電鉄京都線 西山天王山駅 徒歩19分 阪急電鉄京都線 大山崎駅 徒歩33分 東海道本線 山崎駅(京都) 徒歩37分 京都府乙訓郡大山崎町字下植野宮本 | 詳細を見る | |
マンション アドバンス京都リエート(1LDK/2階) | |||||||
![]() | 8.24万円 6,200円 | なし なし | 1LDK 28.01m2 | 新築 | 近鉄京都線 東寺駅 徒歩6分 近鉄京都線 十条駅(近鉄) 徒歩9分 東海道本線 京都駅 徒歩14分 京都府京都市南区東九条西山町 | 詳細を見る | |








