賃貸マンション
ラフィーネ桂の賃貸物件情報(2LDK/1階)
| 家賃 | 管理費等 | 敷金 | 礼金 | 間取り | 専有面積 |
|---|---|---|---|---|---|
| 8.2万円 | 4,000円 | 5万円 | 10万円 | 2LDK | 60.05m2 |
入居決定でお祝い金最大100,000円
Point
川岡小学校区の新婚様にもオススメしたいファミリー物件です!
提供:アパマンショップ西院店

詳細情報 ラフィーネ桂
物件紹介
ラフィーネ桂は阪急電鉄京都線桂駅から徒歩12分にあるマンションです。
建物のエントランスはオートロックがついており、防犯性が高くなっています。
人気の角部屋で周囲の居住者の生活音も気になりにくく、また、フローリングのお部屋なのでお掃除もラクラク。バス・トイレ別の仕様で、のんびりお風呂タイムも楽しめます。また、浴室乾燥機を使えば、雨の日でもお洗濯は問題ありません。
通信設備面では、インターネット接続が可能です。また、BSアンテナがありCATVにも対応しているので、おうち時間も充実するでしょう(別途工事、契約料が必要な場合あり)。
床暖房があり、冬も足元から暖かく快適に過ごすことができます。
コンビニまで徒歩6分の場所にあり、日用品や食料品のお買い物にも便利です。
建物のエントランスはオートロックがついており、防犯性が高くなっています。
人気の角部屋で周囲の居住者の生活音も気になりにくく、また、フローリングのお部屋なのでお掃除もラクラク。バス・トイレ別の仕様で、のんびりお風呂タイムも楽しめます。また、浴室乾燥機を使えば、雨の日でもお洗濯は問題ありません。
通信設備面では、インターネット接続が可能です。また、BSアンテナがありCATVにも対応しているので、おうち時間も充実するでしょう(別途工事、契約料が必要な場合あり)。
床暖房があり、冬も足元から暖かく快適に過ごすことができます。
コンビニまで徒歩6分の場所にあり、日用品や食料品のお買い物にも便利です。
お金・契約の情報
※「-」と表示されているものは、実際は料金が発生するものもございます。詳細はお問い合わせください。
| 家賃 | 8.2万円 | 管理費・共益費 | 4,000円 |
|---|---|---|---|
| 敷金 | 5万円 | 礼金 | 10万円 |
| 入居決定でお祝い金最大100,000円 | |||
| 保証金 | - | 償却・敷引 | - |
| 住宅保険料 | 2.4万円(2年) | 更新料 | - |
| 保証会社利用 | 必須 | 保証会社名 | その他 |
| 保証会社費用 | - | 保証会社備考 | 初回:月額賃料等の50%、月額:保証料1220円 |
| 契約形態 | - | 契約期間 | 2年 |
| 入居・引渡期間 | 相談 | 現況 | - |
| 入居可能条件 | 2人入居可 | ||
| 契約備考 | 保険料24000円/年 鍵交換代(金額) 16500円、[退去時費用:ハウスクリーニング代 33,000円 ※故意・過失等別途実費] | ||
部屋の情報
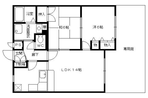
| 間取り | 2LDK | 専有面積 | 60.05m2 |
|---|---|---|---|
| 間取り詳細 | LDK(14.5帖)、和室(6帖)、洋室(6帖) | ||
| 所在階 / 向き | 1階 / 東 | バルコニー面積 | - |
| 水道 / ガス | ガス【都市】 | ||
| 設備 | バス・トイレ別、オートロック、浴室乾燥機、光ファイバー対応、角部屋、バルコニー、フローリング、床暖房、コンロ:ガス、BSアンテナ、シャワー、給湯、洗濯機:室内、閑静な住宅街 | ||
| 当社物件ID | 14374231 | ||
建物の情報
| 建物名 | ラフィーネ桂 | ||
|---|---|---|---|
| 所在地 | 京都府京都市西京区下津林前泓町 | ||
| 交通 | 阪急電鉄京都線 桂駅 徒歩15分 | ||
| 階数 | 3階建 | 総戸数 | 11戸 |
| 築年月 | 2001年09月 / 築25年 | エレベーター | - |
| 駐車場 | 空有 1万円/月 | バイク置き場 | - |
| 駐輪場 | あり | 管理人/管理会社 | - |
| 周辺環境 | 中学校 桂川中学校 徒歩10分(750m) その他 ファミリーマート下津林芝ノ宮町店 徒歩4分(300m) その他 セブンイレブン京都下津林水掛町店 徒歩6分(450m) その他 ダックス 下津林店 徒歩5分(350m) | ||
| 建物種別 | マンション | 建物構造 | RC(鉄筋コンクリート) |
この部屋の取扱い不動産会社
| 会社名 | アパマンショップ桂店 | ||
|---|---|---|---|
| 所在地 | 京都府京都市西京区川島北裏町 69-3 | 交通 | 阪急電鉄京都線桂から徒歩1分 |
| 営業時間 | 09:30〜19:00 | 定休日 | - |
| 免許番号 | 京都府知事(5)11578 | 取引態様 | 仲介 |
| 不動産会社管理番号 | 52222122 | 当社管理番号 | 4 |
| 所属団体 | (公社)京都府宅地建物取引業協会 | ||
| 公正取引協議会 | (公社) 近畿地区不動産公正取引協議会加盟 | ||
| 取扱い物件情報 | 物件詳細へ | ||
※各種情報と現状に差異がある場合は、現状優先となります。問い合わせをすることで、より詳しい条件、情報を確認する事ができます。
提供:アパマンショップ桂店
この物件が気になったら掲載期限まであと12日
ラフィーネ桂に条件(家賃・エリア)が近い物件一覧
| 写真 | 家賃 管理費等 | 敷金 礼金 | 間取り 専有面積 | 築年数 | 最寄り駅 所在地 | キープ | 詳細 |
|---|---|---|---|---|---|---|---|
アパート 有栖川荘(4DK/2階) | |||||||
![]() | 6.9万円 なし | 6.9万円 13.8万円 | 4DK 56.72m2 | 築53年 | 阪急電鉄京都線 桂駅 徒歩5分 東海道本線 桂川駅(京都) 徒歩29分 京都府京都市西京区川島有栖川町 | 詳細を見る | |
一戸建て 奈良線 木幡駅(JR) 徒歩7分 築29年(1LDK) | |||||||
![]() | 5万円 なし | なし なし | 1LDK 45m2 | 築29年 | 奈良線 木幡駅(JR) 徒歩7分 京阪電気鉄道宇治線 木幡駅(京阪) 徒歩11分 奈良線 六地蔵駅(JR) 徒歩19分 京都府宇治市木幡南山 | 詳細を見る | |
マンション さんぐりーんナガイ(2DK/1階) | |||||||
![]() | 5.5万円 3,000円 | なし なし | 2DK 40.73m2 | 築39年 | 阪急電鉄京都線 西向日駅 徒歩9分 東海道本線 長岡京駅 徒歩20分 京都府向日市上植野町南小路 | 詳細を見る | |
アパート フレスコ西扇(2LDK/1階) | |||||||
![]() | 9万円 8,000円 | 8万円 15万円 | 2LDK 53.4m2 | 築6年 | 京阪電気鉄道京阪線 石清水八幡宮駅 徒歩25分 京阪電気鉄道京阪線 橋本駅(京都) 徒歩54分 京阪電気鉄道京阪線 樟葉駅 徒歩72分 京都府八幡市川口西扇 | 詳細を見る | |
アパート コティ コルミオ(2LDK/2階) | |||||||
![]() | 10.3万円 8,000円 | なし 20.6万円 | 2LDK 48.45m2 | 築1年 | 奈良線 木幡駅(JR) 徒歩1分 京阪電気鉄道宇治線 木幡駅(京阪) 徒歩4分 京都府宇治市木幡大瀬戸 | 詳細を見る | |
マンション 阪急電鉄京都線 長岡天神駅 徒歩13分 築29年(1K/1階) | |||||||
![]() | 5.2万円 3,000円 | 10万円 なし | 1K 24.84m2 | 築29年 | 阪急電鉄京都線 長岡天神駅 徒歩13分 東海道本線 長岡京駅 徒歩23分 京都府長岡京市天神2丁目 | 詳細を見る | |
アパート コート・ヴィレッジ(2LDK/1階) | |||||||
![]() | 9.55万円 5,500円 | なし 9.55万円 | 2LDK 50.47m2 | 新築 | 山陰本線 馬堀駅 徒歩20分 嵯峨野観光鉄道 トロッコ亀岡駅 徒歩30分 山陰本線 亀岡駅 徒歩49分 京都府亀岡市篠町篠赤畑 | 詳細を見る | |







