賃貸マンション
スカイコート多摩川壱番館の賃貸物件情報(1K/3階)
| 家賃 | 管理費等 | 敷金 | 礼金 | 間取り | 専有面積 |
|---|---|---|---|---|---|
| 8.75万円 | 7,500円 | 8.75万円 | 8.75万円 | 1K | 25.51m2 |
入居決定でお祝い金最大100,000円
- 保証金
- -
- 償却・敷引
- -
- 築年数
- 築12年
- 所在階
- 3階
- 向き
- 南
Point
オンラインでの対応も可能です。諸条件で気になることなど気軽にご相談ください。初期費用、入居時期、周辺環境(治安や買い物等)LINEのお友達追加で簡単お部屋探し。詳細はお問合せ下さい。
提供:(株)暮らすティ(SUUMO経由)

詳細情報 スカイコート多摩川壱番館
物件紹介
スカイコート多摩川壱番館は東急多摩川線矢口渡駅から徒歩10分にあり、駅近で通勤通学に便利なマンションです。
このお部屋は2階以上に位置しているので、通行人や周囲の住人からの視線が気になりにくく、防犯面でも安心。建物のエントランスはオートロックがついており、インターホンにはTVモニタもついているため、相手の顔を確認してから来客対応することができます。
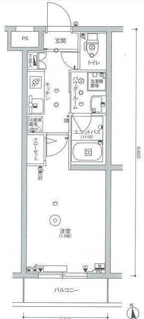
人気の南向きのお部屋。また、フローリングなのでお掃除もラクラク。キッチンはシステムキッチン仕様になっていますので、お料理好きの方にもぴったり。バス・トイレは別なので、のんびりお風呂タイムも楽しめるでしょう。また、雨の日でも浴室乾燥機を使えば、お洗濯も問題ありません。
通信設備面では、インターネット接続が可能です(別途工事、契約料が必要な場合あり)。
建物にはエレベーターがついているので、重い荷物があっても安心。共用部には宅配ボックスが設定されているので、不在の時にも荷物を受け取ることができます。
このお部屋は2階以上に位置しているので、通行人や周囲の住人からの視線が気になりにくく、防犯面でも安心。建物のエントランスはオートロックがついており、インターホンにはTVモニタもついているため、相手の顔を確認してから来客対応することができます。
人気の南向きのお部屋。また、フローリングなのでお掃除もラクラク。キッチンはシステムキッチン仕様になっていますので、お料理好きの方にもぴったり。バス・トイレは別なので、のんびりお風呂タイムも楽しめるでしょう。また、雨の日でも浴室乾燥機を使えば、お洗濯も問題ありません。
通信設備面では、インターネット接続が可能です(別途工事、契約料が必要な場合あり)。
建物にはエレベーターがついているので、重い荷物があっても安心。共用部には宅配ボックスが設定されているので、不在の時にも荷物を受け取ることができます。
お金・契約の情報
※「-」と表示されているものは、実際は料金が発生するものもございます。詳細はお問い合わせください。
| 家賃 | 8.75万円 | 管理費・共益費 | 7,500円 |
|---|---|---|---|
| 敷金 | 8.75万円 | 礼金 | 8.75万円 |
| 入居決定でお祝い金最大100,000円 | |||
| 保証金 | - | 償却・敷引 | - |
| 住宅保険料 | - | 更新料 | - |
| 保証会社利用 | 必須 | 保証会社名 | - |
| 保証会社費用 | - | 保証会社備考 | 保証会社利用必 *初回保証料:総賃料の50%、月額保証料:総賃料の1.4% |
| 契約形態 | - | 契約期間 | - |
| 入居・引渡期間 | 即時 | 現況 | - |
| 契約備考 | 巡回管理/空室状況すぐに確認致します。室内写真や図面の送付・入居時期のご相談下さい。*短期解約違約金有:1年未満の場合総賃料の1か月分 合計3.52万円(内訳:鍵交換費用:¥29,700、消火剤:¥5,500) 少額短期保険:¥1,000(月額)、生活安心パック:¥1,650(月額) 1K 普通借家2年 損保【要】 バストイレ別、バルコニー、エアコン、ガスコンロ対応、クロゼット、フローリング、シャワー付洗面台、TVインターホン、浴室乾燥機、オートロック、室内洗濯置、陽当り良好、シューズボックス、システムキッチン、南向き、温水洗浄便座、脱衣所、エレベーター、洗面所独立、洗面化粧台、2口コンロ、宅配ボックス、最上階、防犯カメラ、分譲賃貸、保証人不要、ガスレンジ付、2沿線利用可、ネット専用回線、駅まで平坦、24時間換気システム、耐震構造、2駅利用可、3駅以上利用可、駅徒歩10分以内、24時間ゴミ出し可、敷地内ごみ置き場、都市ガス、南面バルコニー、玄関収納、保証会社利用可、IT重説対応物件、初期費用カード決済可 | ||
部屋の情報
| 間取り | 1K | 専有面積 | 25.51m2 |
|---|---|---|---|
| 所在階 / 向き | 3階 / 南 | バルコニー面積 | - |
| 水道 / ガス | - | ||
| 設備 | バス・トイレ別、2階以上、オートロック、テレビドアホン、宅配ボックス、浴室乾燥機、インターネット対応、システムキッチン、エアコン、エレベーター、温水洗浄便座、南向き、バルコニー、フローリング、洗髪洗面化粧台、2口コンロ、コンロ:ガス、洗濯機:室内 | ||
| 当社物件ID | 14703279 | ||
建物の情報
| 建物名 | スカイコート多摩川壱番館 | ||
|---|---|---|---|
| 所在地 | 東京都大田区矢口 | ||
| 交通 | 東急多摩川線 矢口渡駅 徒歩10分 東急多摩川線 武蔵新田駅 徒歩16分 東急池上線 蓮沼駅 徒歩23分 | ||
| 階数 | 4階建 | 総戸数 | - |
| 築年月 | 2014年07月 / 築12年 | エレベーター | あり |
| 駐車場 | なし | バイク置き場 | - |
| 駐輪場 | - | 管理人/管理会社 | - |
| 周辺環境 | その他 西友矢口ノ渡店(スーパー)まで698m | ||
| 建物種別 | マンション | 建物構造 | RC(鉄筋コンクリート) |
この部屋の取扱い不動産会社
| 会社名 | (株)暮らすティ(SUUMO経由) | ||
|---|---|---|---|
| 所在地 | 東京都大田区蒲田5-16-8 鵠沼ビル403 | 交通 | - |
| 営業時間 | 10:00~19:00 | 定休日 | 水曜 |
| 免許番号 | 東京都知事106353 | 取引態様 | 仲介 |
| 不動産会社管理番号 | 100486129317 | 当社管理番号 | 89 |
| 所属団体 | (公社)全日本不動産協会東京都本部会員 | ||
| 公正取引協議会 | (公社)首都圏不動産公正取引協議会加盟 | ||
| 取扱い物件情報 | 物件詳細へ | ||
※各種情報と現状に差異がある場合は、現状優先となります。問い合わせをすることで、より詳しい条件、情報を確認する事ができます。
提供:(株)暮らすティ(SUUMO経由)
この物件が気になったら掲載期限まであと10日
スカイコート多摩川壱番館に条件(家賃・エリア)が近い物件一覧
| 写真 | 家賃 管理費等 | 敷金 礼金 | 間取り 専有面積 | 築年数 | 最寄り駅 所在地 | キープ | 詳細 |
|---|---|---|---|---|---|---|---|
アパート M SONIA KUGAHARA(ワンルーム/1階) | |||||||
![]() | 8.8万円 3,000円 | 8.8万円 8.8万円 | ワンルーム 24.64m2 | 築1年 | 東急池上線 久が原駅 徒歩8分 東急池上線 御嶽山駅 徒歩9分 東急多摩川線 鵜の木駅 徒歩13分 東京都大田区西嶺町 | 詳細を見る | |
マンション プレール・ドゥーク東京CANAL(1K/6階) | |||||||
![]() | 10.6万円 1.1万円 | なし 10.6万円 | 1K 22.34m2 | 築20年 | 京葉線 潮見駅 徒歩7分 東京地下鉄有楽町線 豊洲駅 徒歩22分 東京地下鉄東西線 木場駅 徒歩23分 東京都江東区枝川3丁目 | 詳細を見る | |
マンション ルーブル蒲田本町(1K/5階) | |||||||
![]() | 8.9万円 7,000円 | なし 8.9万円 | 1K 20.35m2 | 築14年 | JR京浜東北線 蒲田駅 徒歩9分 京急本線 雑色駅 徒歩11分 京急本線 京急蒲田駅 徒歩15分 東京都大田区蒲田本町 | 詳細を見る | |
マンション グランドコンシェルジュ馬込アジールコート(1DK/3階) | |||||||
![]() | 11.2万円 5,000円 | 11.2万円 11.2万円 | 1DK 26.62m2 | 築6年 | 都営浅草線 馬込駅 徒歩10分 都営浅草線 西馬込駅 徒歩12分 東急大井町線 荏原町駅 徒歩19分 東京都大田区中馬込 | 詳細を見る | |
マンション スクエアビル(1K/3階) | |||||||
![]() | 6.8万円 2,000円 | なし なし | 1K 22.83m2 | 築21年 | 東急池上線 千鳥町駅 徒歩8分 東急池上線 池上駅 徒歩9分 東急多摩川線 武蔵新田駅 徒歩10分 東京都大田区千鳥 | 詳細を見る | |
マンション SEED JUST B-BASE Ⅱ(1LDK/2階) | |||||||
![]() | 8.8万円 1.5万円 | 8.8万円 8.8万円 | 1LDK 23.07m2 | 築1年 | 東京モノレール羽田 昭和島駅 徒歩11分 京浜急行電鉄本線 梅屋敷駅(東京) 徒歩19分 東京都大田区大森南4丁目 | 詳細を見る | |







