賃貸マンション
メインステージ南砂町IIの賃貸物件情報(1K/14階)
| 家賃 | 管理費等 | 敷金 | 礼金 | 間取り | 専有面積 |
|---|---|---|---|---|---|
| 12万円 | 1.5万円 | なし | 12万円 | 1K | 25.66m2 |
入居決定でお祝い金最大100,000円
- 保証金
- -
- 償却・敷引
- -
- 築年数
- 築1年
- 所在階
- 14階
- 向き
- 東
Point
室内見学承ります・お客様のご都合に合わせてオンラインまたはお近くの店舗でご提案可・初期費用分割払い可・クレジットカード利用可・引越業者割引・初期費用のお見積や入居日のご相談もお気軽にお問合せください
提供:(株)リライフ本郷三丁目店(SUUMO経由)

詳細情報 メインステージ南砂町II
物件紹介
メインステージ南砂町IIは東京メトロ東西線南砂町駅から徒歩9分にあり、駅近で通勤通学に便利なマンションです。
このお部屋は2階以上に位置しているので、通行人や周囲の住人からの視線が気になりにくく、防犯面でも安心。建物のエントランスはオートロックがついており、インターホンにはTVモニタもついているため、相手の顔を確認してから来客対応することができます。
フローリングのお部屋なのでお掃除もラクラク。キッチンはシステムキッチン仕様になっていますので、お料理好きの方にもぴったり。バス・トイレは別なので、のんびりお風呂タイムも楽しめるでしょう。また、雨の日でも浴室乾燥機を使えば、お洗濯も問題ありません。
通信設備面では、インターネットが無料で使えるので、月々の出費を抑えられるのも魅力です(別途工事等が必要な場合あり)。
建物にはエレベーターがついているので、重い荷物があっても安心。共用部には宅配ボックスが設定されているので、不在の時にも荷物を受け取ることができます。また、ペット飼育の相談ができますので、あなたの大切な家族の一員も快適に暮らせるか、ぜひ確認してみてください。
このお部屋は2階以上に位置しているので、通行人や周囲の住人からの視線が気になりにくく、防犯面でも安心。建物のエントランスはオートロックがついており、インターホンにはTVモニタもついているため、相手の顔を確認してから来客対応することができます。
フローリングのお部屋なのでお掃除もラクラク。キッチンはシステムキッチン仕様になっていますので、お料理好きの方にもぴったり。バス・トイレは別なので、のんびりお風呂タイムも楽しめるでしょう。また、雨の日でも浴室乾燥機を使えば、お洗濯も問題ありません。
通信設備面では、インターネットが無料で使えるので、月々の出費を抑えられるのも魅力です(別途工事等が必要な場合あり)。
建物にはエレベーターがついているので、重い荷物があっても安心。共用部には宅配ボックスが設定されているので、不在の時にも荷物を受け取ることができます。また、ペット飼育の相談ができますので、あなたの大切な家族の一員も快適に暮らせるか、ぜひ確認してみてください。
お金・契約の情報
※「-」と表示されているものは、実際は料金が発生するものもございます。詳細はお問い合わせください。
| 家賃 | 12万円 | 管理費・共益費 | 1.5万円 |
|---|---|---|---|
| 敷金 | なし | 礼金 | 12万円 |
| 入居決定でお祝い金最大100,000円 | |||
| 保証金 | - | 償却・敷引 | - |
| 住宅保険料 | - | 更新料 | - |
| 保証会社利用 | 必須 | 保証会社名 | - |
| 保証会社費用 | - | 保証会社備考 | 保証会社利用必 初回:月額総家賃の50%~ |
| 契約形態 | - | 契約期間 | - |
| 入居・引渡期間 | - | 現況 | - |
| 入居可能条件 | ペット相談 | ||
| 契約備考 | 当物件はオンラインまたはお近くの店舗でご相談お申込を承ります。リライフは首都圏23店舗のネットワークで豊富な物件情報をご提供いたします。当物件に類似した未公開物件のご提案も可能です。お気軽にお問い合わせください。違約金有:1年未満解約 1ヶ月、半年未満解約 2ヶ月 合計4.62万円(内訳:鍵交換代金2.97万円AMLクラブサポート(初回のみ)1.65万円) 1K ペット相談/事務所利用不可 損保【1.6万円2年】 バストイレ別、バルコニー、エアコン、ガスコンロ対応、クロゼット、フローリング、TVインターホン、浴室乾燥機、オートロック、室内洗濯置、シューズボックス、システムキッチン、温水洗浄便座、脱衣所、エレベーター、洗面所独立、2口コンロ、宅配ボックス、最上階、防犯カメラ、ペット相談、分譲賃貸、保証人不要、ネット使用料不要、24時間換気システム、3駅以上利用可、上階無し、24時間ゴミ出し可、敷地内ごみ置き場、都市ガス、玄関収納、LAN、保証会社利用可、初期費用カード決済可 敷金積み増し【ペット飼育の場合敷金1ヶ月(総額)】 入居日:'26年6月中旬 | ||
部屋の情報
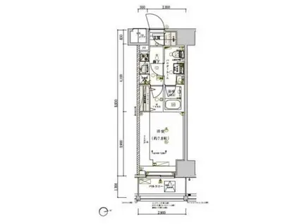
| 間取り | 1K | 専有面積 | 25.66m2 |
|---|---|---|---|
| 所在階 / 向き | 14階 / 東 | バルコニー面積 | - |
| 水道 / ガス | - | ||
| 設備 | バス・トイレ別、2階以上、オートロック、テレビドアホン、宅配ボックス、浴室乾燥機、インターネット対応、システムキッチン、エアコン、エレベーター、温水洗浄便座、バルコニー、フローリング、洗髪洗面化粧台、2口コンロ、コンロ:ガス、インターネット使用料無料、洗濯機:室内 | ||
| 当社物件ID | 159061972 | ||
建物の情報
| 建物名 | メインステージ南砂町II | ||
|---|---|---|---|
| 所在地 | 東京都江東区南砂 | ||
| 交通 | 東京メトロ東西線 南砂町駅 徒歩9分 東京メトロ東西線 東陽町駅 徒歩10分 東京メトロ東西線 木場駅 徒歩22分 | ||
| 階数 | 14階建 | 総戸数 | 120戸 |
| 築年月 | 2025年06月 / 築1年 | エレベーター | あり |
| 駐車場 | なし | バイク置き場 | - |
| 駐輪場 | - | 管理人/管理会社 | - |
| 周辺環境 | その他 ココカラファイン薬局 東陽町店(ドラッグストア)まで602m その他 牡丹屋クリーニング マイクリーナース店(その他)まで377m その他 オーケーストア 南砂店(スーパー)まで414m その他 西友 東陽町店(スーパー)まで754m その他 ローソン 南砂日曹橋店(コンビニ)まで138m その他 ローソン 南砂二丁目店(コンビニ)まで138m | ||
| 建物種別 | マンション | 建物構造 | RC(鉄筋コンクリート) |
この部屋の取扱い不動産会社
| 会社名 | (株)リライフ上野店(SUUMO経由) | ||
|---|---|---|---|
| 所在地 | 東京都台東区上野4-9-5 イシイビル3階 | 交通 | - |
| 営業時間 | 10:00~18:30 | 定休日 | 毎週火・水曜日 |
| 免許番号 | 国土交通大臣10792 | 取引態様 | 仲介 |
| 不動産会社管理番号 | 100501729293 | 当社管理番号 | 89 |
| 所属団体 | (公社)東京都宅地建物取引業協会会員 | ||
| 公正取引協議会 | (公社)首都圏不動産公正取引協議会加盟 | ||
| 取扱い物件情報 | 物件詳細へ | ||
※各種情報と現状に差異がある場合は、現状優先となります。問い合わせをすることで、より詳しい条件、情報を確認する事ができます。
提供:(株)リライフ上野店(SUUMO経由)
この物件が気になったら掲載期限まであと10日
メインステージ南砂町IIに条件(家賃・エリア)が近い物件一覧
| 写真 | 家賃 管理費等 | 敷金 礼金 | 間取り 専有面積 | 築年数 | 最寄り駅 所在地 | キープ | 詳細 |
|---|---|---|---|---|---|---|---|
マンション ヴェルステージ茅場町(1K/5階) | |||||||
![]() | 11.8万円 1.1万円 | なし 11.8万円 | 1K 24.55m2 | 築28年 | 東京地下鉄日比谷線 茅場町駅 徒歩3分 東京地下鉄日比谷線 八丁堀駅(東京) 徒歩5分 東京地下鉄半蔵門線 水天宮前駅 徒歩13分 東京都中央区新川1丁目 | 詳細を見る | |
マンション メイクスデザイン東向島(1K/6階) | |||||||
![]() | 9.3万円 1.2万円 | 9.3万円 9.3万円 | 1K 26.1m2 | 築12年 | 東武伊勢崎・大師線 曳舟駅 徒歩2分 東武鉄道亀戸線 曳舟駅 徒歩2分 京成電鉄押上線 京成曳舟駅 徒歩5分 東京都墨田区東向島2丁目 | 詳細を見る | |
マンション メインステージ錦糸町(1K/6階) | |||||||
![]() | 11.1万円 1.1万円 | なし 11.1万円 | 1K 21.5m2 | 築20年 | 総武・中央緩行線 錦糸町駅 徒歩8分 東京地下鉄半蔵門線 錦糸町駅 徒歩8分 総武本線 錦糸町駅 徒歩8分 東京都墨田区太平1丁目 | 詳細を見る | |
アパート レオパレスセイント東砂(1K/2階) | |||||||
![]() | 10.6万円 5,500円 | なし 10.6万円 | 1K 19.87m2 | 築18年 | 東京都新宿線 東大島駅 徒歩21分 東京地下鉄東西線 南砂町駅 徒歩26分 東京都新宿線 大島駅(東京) 徒歩29分 東京都江東区東砂5丁目 | 詳細を見る | |
マンション ヴェルトウォーターフロント(1K/3階) | |||||||
![]() | 12.9万円 1.1万円 | なし 12.9万円 | 1K 22.2m2 | 築25年 | 東京都大江戸線 勝どき駅 徒歩5分 東京地下鉄有楽町線 月島駅 徒歩12分 東京都大江戸線 月島駅 徒歩12分 東京都中央区勝どき3丁目 | 詳細を見る | |
アパート 京浜急行電鉄空港線 糀谷駅 徒歩5分 築25年(1K/1階) | |||||||
![]() | 8.1万円 2,000円 | 8.1万円 8.1万円 | 1K 24.28m2 | 築25年 | 京浜急行電鉄空港線 糀谷駅 徒歩5分 京浜急行電鉄本線 京急蒲田駅 徒歩9分 東京都大田区西糀谷4丁目 | 詳細を見る | |
アパート AGRANDE OJIMA(1LDK/2階) | |||||||
![]() | 10.3万円 6,000円 | なし なし | 1LDK 28.82m2 | 新築 | 都営新宿線 大島駅(東京) 徒歩13分 都営新宿線 西大島駅 徒歩22分 都営新宿線 東大島駅 徒歩24分 東京都江東区北砂 | 詳細を見る | |
マンション リ・ボーンエンドー(1K/2階) | |||||||
![]() | 11万円 8,000円 | なし 11万円 | 1K 31.15m2 | 築25年 | 東京都大江戸線 両国駅 徒歩2分 総武・中央緩行線 両国駅 徒歩9分 東京都浅草線 蔵前駅 徒歩12分 東京都墨田区石原1丁目 | 詳細を見る | |








