賃貸マンション
Jリヴェール高松南新町の賃貸物件情報(1DK/3階)
| 家賃 | 管理費等 | 敷金 | 礼金 | 間取り | 専有面積 |
|---|---|---|---|---|---|
| 6.5万円 | 7,000円 | 6.5万円 | 6.5万円 | 1DK | 28.01m2 |
入居決定でお祝い金最大100,000円
- 保証金
- -
- 償却・敷引
- -
- 築年数
- 築4年
- 所在階
- 3階
- 向き
- 南
Point
当店ではご自宅にいながら、スマホ等を使っての「オンライン内見」、「オンライン重説」でのご契約手続きまで、非対面での対応が可能です!現地(物件)にいるスタッフとWebを使ってリアルタイムで内見できます。
提供:いい部屋ネット大東建託リーシング(株)高松国道11号店(SUUMO経由)

詳細情報 Jリヴェール高松南新町
物件紹介
Jリヴェール高松南新町は高松琴平電鉄琴平線瓦町駅から徒歩4分にあり、駅近で通勤通学に便利なマンションです。
このお部屋は2階以上に位置しているので、通行人や周囲の住人からの視線が気になりにくく、防犯面でも安心。建物のエントランスはオートロックがついており、インターホンにはTVモニタもついているため、相手の顔を確認してから来客対応することができます。
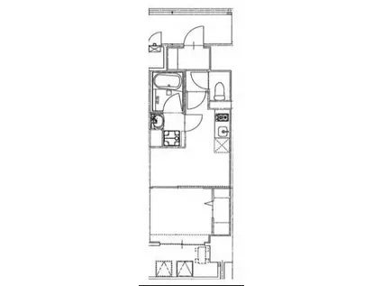
人気の南向き・フローリングのお部屋。角部屋でもあるため、周囲の居住者の生活音も気になりにくい場所です。キッチンはシステムキッチン仕様になっていますので、お料理好きの方にもぴったり。また、バス・トイレは別で、のんびりお風呂タイムも楽しめるでしょう。
通信設備面では、インターネットが無料で使えるので、月々の出費を抑えられるのも魅力です(別途工事等が必要な場合あり)。
建物にはエレベーターがついているので、重い荷物があっても安心。共用部には宅配ボックスが設定されているので、不在の時にも荷物を受け取ることができます。
このお部屋は2階以上に位置しているので、通行人や周囲の住人からの視線が気になりにくく、防犯面でも安心。建物のエントランスはオートロックがついており、インターホンにはTVモニタもついているため、相手の顔を確認してから来客対応することができます。
人気の南向き・フローリングのお部屋。角部屋でもあるため、周囲の居住者の生活音も気になりにくい場所です。キッチンはシステムキッチン仕様になっていますので、お料理好きの方にもぴったり。また、バス・トイレは別で、のんびりお風呂タイムも楽しめるでしょう。
通信設備面では、インターネットが無料で使えるので、月々の出費を抑えられるのも魅力です(別途工事等が必要な場合あり)。
建物にはエレベーターがついているので、重い荷物があっても安心。共用部には宅配ボックスが設定されているので、不在の時にも荷物を受け取ることができます。
お金・契約の情報
※「-」と表示されているものは、実際は料金が発生するものもございます。詳細はお問い合わせください。
| 家賃 | 6.5万円 | 管理費・共益費 | 7,000円 |
|---|---|---|---|
| 敷金 | 6.5万円 | 礼金 | 6.5万円 |
| 入居決定でお祝い金最大100,000円 | |||
| 保証金 | - | 償却・敷引 | - |
| 住宅保険料 | - | 更新料 | - |
| 保証会社利用 | 必須 | 保証会社名 | 全保連 |
| 保証会社費用 | - | 保証会社備考 | 全保連利用必 初期費用 賃料+管理料金合計の50% 毎月1 890円(火災保険+口座振替料) |
| 契約形態 | - | 契約期間 | - |
| 入居・引渡期間 | 即時 | 現況 | - |
| 契約備考 | 合計1.65万円(内訳:鍵交換代1.65万円) 室内清掃費用 44000円 保証料 1890円(月額) 1DK 事務所利用不可 損保【要】 バストイレ別、バルコニー、エアコン、ガスコンロ対応、クロゼット、フローリング、シャワー付洗面台、TVインターホン、オートロック、室内洗濯置、シューズボックス、システムキッチン、南向き、角住戸、温水洗浄便座、脱衣所、エレベーター、洗面所独立、洗面化粧台、2口コンロ、駐輪場、宅配ボックス、外壁タイル張り、即入居可、照明付、全居室収納、全居室洋室、敷金1ヶ月、全居室フローリング、駅まで平坦、ネット使用料不要、平坦地、駅徒歩5分以内、駅徒歩10分以内、都市ガス、玄関収納、礼金1ヶ月、保証会社利用可、IT重説対応物件、全室照明付 | ||
部屋の情報
| 間取り | 1DK | 専有面積 | 28.01m2 |
|---|---|---|---|
| 所在階 / 向き | 3階 / 南 | バルコニー面積 | - |
| 水道 / ガス | - | ||
| 設備 | バス・トイレ別、2階以上、オートロック、テレビドアホン、宅配ボックス、インターネット対応、システムキッチン、エアコン、エレベーター、温水洗浄便座、南向き、角部屋、バルコニー、フローリング、洗髪洗面化粧台、2口コンロ、コンロ:ガス、インターネット使用料無料、洗濯機:室内 | ||
| 当社物件ID | 117657085 | ||
建物の情報
| 建物名 | Jリヴェール高松南新町 | ||
|---|---|---|---|
| 所在地 | 香川県高松市南新町 | ||
| 交通 | 高松琴平電鉄琴平線 瓦町駅 徒歩5分 高松琴平電鉄琴平線 片原町駅(高松) 徒歩15分 JR高徳線 栗林駅 徒歩16分 | ||
| 階数 | 12階建 | 総戸数 | - |
| 築年月 | 2022年08月 / 築4年 | エレベーター | あり |
| 駐車場 | なし | バイク置き場 | - |
| 駐輪場 | あり | 管理人/管理会社 | - |
| 周辺環境 | その他 うどんバカ一代(飲食店)まで1063m その他 マルナカ 宮脇店(スーパー)まで1394m その他 日本赤十字病院(病院)まで734m その他 コープ 栗林店(スーパー)まで967m その他 四季食彩館ムーミー 花園店(スーパー)まで1163m その他 マルナカ サンポート店(スーパー)まで2125m | ||
| 建物種別 | マンション | 建物構造 | RC(鉄筋コンクリート) |
この部屋の取扱い不動産会社
| 会社名 | いい部屋ネット大東建託リーシング(株)高松国道11号店(SUUMO経由) | ||
|---|---|---|---|
| 所在地 | 香川県高松市檀紙町 1576-1 | 交通 | - |
| 営業時間 | 10:00~12:30、13:30~18:00 | 定休日 | 火・水 |
| 免許番号 | 国土交通大臣9120 | 取引態様 | 仲介 |
| 不動産会社管理番号 | 100486829791 | 当社管理番号 | 89 |
| 所属団体 | (公財)日本賃貸住宅管理協会会員 | ||
| 公正取引協議会 | (公社)首都圏不動産公正取引協議会加盟 | ||
| 取扱い物件情報 | 物件詳細へ | ||
※各種情報と現状に差異がある場合は、現状優先となります。問い合わせをすることで、より詳しい条件、情報を確認する事ができます。
提供:いい部屋ネット大東建託リーシング(株)高松国道11号店(SUUMO経由)
この物件が気になったら掲載期限まであと10日
Jリヴェール高松南新町に条件(家賃・エリア)が近い物件一覧
| 写真 | 家賃 管理費等 | 敷金 礼金 | 間取り 専有面積 | 築年数 | 最寄り駅 所在地 | キープ | 詳細 |
|---|---|---|---|---|---|---|---|
アパート グリーンハイツA(2LDK/2階) | |||||||
![]() | 4万円 3,000円 | なし なし | 2LDK 58.53m2 | 築30年 | JR予讃線 坂出駅 徒歩26分 香川県坂出市川津町 | 詳細を見る | |
マンション ウエストビレッジ田村町(2LDK/2階) | |||||||
![]() | 4.8万円 4,000円 | なし なし | 2LDK 61.6m2 | 築45年 | 香川県高松市田村町 | 詳細を見る | |
マンション なかよしマンション塩上(ワンルーム/3階) | |||||||
![]() | 5.4万円 6,000円 | 5.4万円 なし | ワンルーム 28.84m2 | 築17年 | 高松琴平電鉄志度線 今橋駅 徒歩6分 高松琴平電鉄琴平線 瓦町駅 徒歩8分 高松琴平電鉄琴平線 片原町駅(高松) 徒歩12分 香川県高松市塩上町 | 詳細を見る | |
マンション コンフォルテ伏石(2LDK/1階) | |||||||
![]() | 7万円 5,000円 | なし 14万円 | 2LDK 54.52m2 | 築22年 | 高松琴平電鉄琴平線 三条駅(高松) 徒歩7分 高松琴平電鉄琴平線 栗林公園駅 徒歩18分 香川県高松市伏石町 | 詳細を見る | |
アパート フォブール吉峰 B棟(2LDK/2階) | |||||||
![]() | 4.5万円 3,000円 | なし 4.5万円 | 2LDK 57.95m2 | 築34年 | 高松琴平電鉄長尾線 元山駅(高松) 徒歩25分 高松琴平電鉄長尾線 林道駅 徒歩26分 高松琴平電鉄長尾線 木太東口駅 徒歩28分 香川県高松市林町 | 詳細を見る | |
マンション エトワール・レーベン(1K/5階) | |||||||
![]() | 3.9万円 4,000円 | なし なし | 1K 19.44m2 | 築32年 | 高松琴平電鉄琴平線 瓦町駅 徒歩4分 JR高徳線 栗林駅 徒歩7分 高松琴平電鉄琴平線 片原町駅(高松) 徒歩12分 香川県高松市塩上町 | 詳細を見る | |
アパート ガーデンクォーツA棟(1LDK/1階) | |||||||
![]() | 6.3万円 5,000円 | なし 6.3万円 | 1LDK 49.14m2 | 築12年 | 高松琴平電鉄長尾線 水田駅 徒歩26分 高松琴平電鉄長尾線 元山駅(高松) 徒歩29分 高松琴平電鉄長尾線 木太東口駅 徒歩36分 香川県高松市林町 | 詳細を見る | |







