賃貸マンション
タウンコート人宿町の賃貸物件情報(1LDK/4階)
| 家賃 | 管理費等 | 敷金 | 礼金 | 間取り | 専有面積 |
|---|---|---|---|---|---|
| 13万円 | なし | 26万円 | 13万円 | 1LDK | 40.29m2 |
入居決定でお祝い金最大100,000円
- 保証金
- -
- 償却・敷引
- -
- 築年数
- 築28年
- 所在階
- 4階
- 向き
- 南
Point
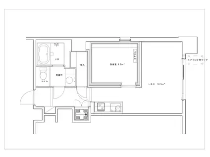
防音室では楽器の演奏や大音量での音楽鑑賞が可能です。※ドラム演奏は不可又、楽器ではなくても無音で寝たい!等の目的も果たします。
提供:日成建設(株)(SUUMO経由)

詳細情報 タウンコート人宿町
物件紹介
タウンコート人宿町はJR東海道本線静岡駅から徒歩14分にあるマンションです。
このお部屋は2階以上に位置しているので通行人や周囲の住人からの視線が気になりにくく、建物のエントランスはオートロックがついているので防犯性が高くなっています。
こちらは楽器相談が可能な物件。楽器演奏をお考えの方はぜひ相談してみてください。人気の南向きのお部屋。また、フローリングなのでお掃除もラクラク。キッチンはシステムキッチン仕様になっていますので、お料理好きの方にもぴったり。また、バス・トイレは別で、のんびりお風呂タイムも楽しめるでしょう。
通信設備面ではCATVに対応しているので、おうち時間も充実するでしょう(別途工事、契約料が必要な場合あり)。
建物にはエレベーターがついているので、重い荷物があっても安心。共用部には宅配ボックスが設定されているので、不在の時にも荷物を受け取ることができます。
このお部屋は2階以上に位置しているので通行人や周囲の住人からの視線が気になりにくく、建物のエントランスはオートロックがついているので防犯性が高くなっています。
こちらは楽器相談が可能な物件。楽器演奏をお考えの方はぜひ相談してみてください。人気の南向きのお部屋。また、フローリングなのでお掃除もラクラク。キッチンはシステムキッチン仕様になっていますので、お料理好きの方にもぴったり。また、バス・トイレは別で、のんびりお風呂タイムも楽しめるでしょう。
通信設備面ではCATVに対応しているので、おうち時間も充実するでしょう(別途工事、契約料が必要な場合あり)。
建物にはエレベーターがついているので、重い荷物があっても安心。共用部には宅配ボックスが設定されているので、不在の時にも荷物を受け取ることができます。
お金・契約の情報
※「-」と表示されているものは、実際は料金が発生するものもございます。詳細はお問い合わせください。
| 家賃 | 13万円 | 管理費・共益費 | なし |
|---|---|---|---|
| 敷金 | 26万円 | 礼金 | 13万円 |
| 入居決定でお祝い金最大100,000円 | |||
| 保証金 | - | 償却・敷引 | - |
| 住宅保険料 | - | 更新料 | - |
| 保証会社利用 | 必須 | 保証会社名 | - |
| 保証会社費用 | - | 保証会社備考 | 保証会社利用必 ジャックス 保証料6万5千円 更新1年毎10500円 |
| 契約形態 | - | 契約期間 | - |
| 入居・引渡期間 | 即時 | 現況 | - |
| 入居可能条件 | 楽器相談 | ||
| 契約備考 | 巡回管理 1LDK 楽器相談 損保【1.8万円2年】 バストイレ別、バルコニー、クロゼット、オートロック、室内洗濯置、システムキッチン、南向き、エレベーター、宅配ボックス、CATV、即入居可、照明付、全居室フローリング、エアコン2台、駅まで平坦、楽器相談、電子ロック、耐火構造、耐震構造、都市ガス、通風良好 | ||
部屋の情報
| 間取り | 1LDK | 専有面積 | 40.29m2 |
|---|---|---|---|
| 所在階 / 向き | 4階 / 南 | バルコニー面積 | - |
| 水道 / ガス | - | ||
| 設備 | バス・トイレ別、2階以上、オートロック、宅配ボックス、システムキッチン、エアコン、エレベーター、南向き、バルコニー、フローリング、CATV、洗濯機:室内 | ||
| 当社物件ID | 2099627 | ||
建物の情報
| 建物名 | タウンコート人宿町 | ||
|---|---|---|---|
| 所在地 | 静岡県静岡市葵区人宿町 | ||
| 交通 | JR東海道本線 静岡駅 徒歩14分 静岡鉄道静岡清水線 新静岡駅 徒歩15分 静岡鉄道静岡清水線 日吉町駅 徒歩19分 | ||
| 階数 | 11階建 | 総戸数 | 47戸 |
| 築年月 | 1998年08月 / 築28年 | エレベーター | あり |
| 駐車場 | なし | バイク置き場 | - |
| 駐輪場 | - | 管理人/管理会社 | - |
| 周辺環境 | その他 KITE-GO駒形店(スーパー)まで452m その他 ウエルシア静岡呉服町店(ドラッグストア)まで420m その他 ドトールコーヒーショップ静岡呉服町2丁目店(飲食店)まで459m その他 ファミリーマート静岡七間町店(コンビニ)まで183m その他 静岡市葵区役所(役所)まで573m | ||
| 建物種別 | マンション | 建物構造 | SRC(鉄骨鉄筋コンクリート) |
この部屋の取扱い不動産会社
| 会社名 | 日成建設(株)(SUUMO経由) | ||
|---|---|---|---|
| 所在地 | 静岡県静岡市駿河区寿町 6-25 日成ビル | 交通 | - |
| 営業時間 | 9時~18時 | 定休日 | 日・祝、隔週土曜 |
| 免許番号 | 静岡県知事3105 | 取引態様 | 貸主 |
| 不動産会社管理番号 | 100491714714 | 当社管理番号 | 89 |
| 所属団体 | (公社)静岡県宅地建物取引業協会会員 | ||
| 公正取引協議会 | 東海不動産公正取引協議会加盟 | ||
| 取扱い物件情報 | 物件詳細へ | ||
※各種情報と現状に差異がある場合は、現状優先となります。問い合わせをすることで、より詳しい条件、情報を確認する事ができます。
提供:日成建設(株)(SUUMO経由)
この物件が気になったら掲載期限まであと4日
タウンコート人宿町に条件(家賃・エリア)が近い物件一覧
| 写真 | 家賃 管理費等 | 敷金 礼金 | 間取り 専有面積 | 築年数 | 最寄り駅 所在地 | キープ | 詳細 |
|---|---|---|---|---|---|---|---|
マンション グランスタジオ安西(2LDK/2階) | |||||||
![]() | 10.6万円 5,000円 | 10.6万円 10.6万円 | 2LDK 60.35m2 | 新築 | 静岡鉄道静岡清水線 新静岡駅 徒歩25分 JR東海道本線 静岡駅 徒歩28分 東海道新幹線 静岡駅 徒歩28分 静岡県静岡市葵区安西 | 詳細を見る | |
マンション SUBACO(ワンルーム/2階) | |||||||
![]() | 7.9万円 なし | 7.9万円 なし | ワンルーム 10.8m2 | 築34年 | 静岡鉄道静岡清水線 日吉町駅 徒歩6分 静岡鉄道静岡清水線 音羽町駅 徒歩7分 JR東海道本線 静岡駅 徒歩17分 静岡県静岡市葵区鷹匠 | 詳細を見る | |
マンション エクセルシオール Ⅱ(3LDK/1階) | |||||||
![]() | 8.5万円 3,000円 | なし 8.5万円 | 3LDK 58.14m2 | 築31年 | 静岡県静岡市葵区竜南1丁目 | 詳細を見る | |
マンション 藤枝青木1丁目マンション(3LDK/2階) | |||||||
![]() | 12.1万円 なし | 24.2万円 12.1万円 | 3LDK 74.24m2 | 新築 | JR東海道本線 藤枝駅 徒歩7分 静岡県藤枝市青木 | 詳細を見る | |
マンション 静岡泉町エンブルコート(ワンルーム/9階) | |||||||
![]() | 9.5万円 6,000円 | 19万円 9.5万円 | ワンルーム 41.02m2 | 築47年 | 東海道本線 静岡駅 徒歩7分 静岡県静岡市駿河区泉町 | 詳細を見る | |
一戸建て 静岡鉄道静岡清水線 音羽町駅 徒歩13分 築10年(3LDK) | |||||||
![]() | 14.5万円 なし | 14.5万円 29万円 | 3LDK 87.62m2 | 築10年 | 静岡鉄道静岡清水線 音羽町駅 徒歩13分 静岡県静岡市葵区巴町 | 詳細を見る | |
アパート 恵比寿の森(2LDK/2階) | |||||||
![]() | 11.9万円 6,500円 | なし 11.9万円 | 2LDK 60.61m2 | 新築 | 静岡鉄道静岡清水線 長沼駅(静岡) 徒歩2分 東海道本線 東静岡駅 徒歩9分 静岡県静岡市葵区長沼1丁目 | 詳細を見る | |
マンション ルネスヒルズ安東(2LDK/1階) | |||||||
![]() | 12.0399万円 7,500円 | なし なし | 2LDK 72.97m2 | 築3年 | 静岡鉄道静岡清水線 日吉町駅 徒歩21分 静岡鉄道静岡清水線 新静岡駅 徒歩24分 JR東海道本線 静岡駅 徒歩30分 静岡県静岡市葵区安東 | 詳細を見る | |






/105x80-f1-q70-wp1)
/105x80-f1-q70-wp1)

