賃貸マンション
グリーンハイツI番館の賃貸物件情報(1K/2階)
| 家賃 | 管理費等 | 敷金 | 礼金 | 間取り | 専有面積 |
|---|---|---|---|---|---|
| 4.2万円 | 3,000円 | なし | なし | 1K | 32.49m2 |
入居決定でお祝い金最大100,000円
- 保証金
- -
- 償却・敷引
- -
- 築年数
- 築30年
- 所在階
- 2階
- 向き
- 南
Point
サンルーム付き!雨の多い金沢でも安心してお過ごしいただけます! インターネット即日利用可能です!バス・トイレ別! 一人暮らしや学生の方オススメです!是非、ご見学ください!
提供:(株)クラスコGO賃貸・金沢南部店(SUUMO経由)

詳細情報 グリーンハイツI番館
物件紹介
グリーンハイツI番館はIRいしかわ鉄道西金沢駅から徒歩17分にあるマンションです。
このお部屋は2階以上に位置しているので、通行人や周囲の住人からの視線が気になりにくく、防犯面でも安心。インターホンにはTVモニタもついているため、相手の顔を確認してから来客対応することができます。
人気の南向き・フローリングのお部屋。角部屋でもあるため、周囲の居住者の生活音も気になりにくい場所です。バス・トイレ別の仕様で、のんびりお風呂タイムも楽しめます。
通信設備面では、インターネットが無料で使えるので、月々の出費を抑えられるのも魅力です(別途工事等が必要な場合あり)。
このお部屋は2階以上に位置しているので、通行人や周囲の住人からの視線が気になりにくく、防犯面でも安心。インターホンにはTVモニタもついているため、相手の顔を確認してから来客対応することができます。
人気の南向き・フローリングのお部屋。角部屋でもあるため、周囲の居住者の生活音も気になりにくい場所です。バス・トイレ別の仕様で、のんびりお風呂タイムも楽しめます。
通信設備面では、インターネットが無料で使えるので、月々の出費を抑えられるのも魅力です(別途工事等が必要な場合あり)。
お金・契約の情報
※「-」と表示されているものは、実際は料金が発生するものもございます。詳細はお問い合わせください。
| 家賃 | 4.2万円 | 管理費・共益費 | 3,000円 |
|---|---|---|---|
| 敷金 | なし | 礼金 | なし |
| 入居決定でお祝い金最大100,000円 | |||
| 保証金 | - | 償却・敷引 | - |
| 住宅保険料 | - | 更新料 | - |
| 保証会社利用 | 必須 | 保証会社名 | - |
| 保証会社費用 | - | 保証会社備考 | 保証会社利用必 保証料:月額賃料等の100% 更新保証料:15000円/1年 |
| 契約形態 | - | 契約期間 | - |
| 入居・引渡期間 | - | 現況 | - |
| 契約備考 | [退去時費用 室内クリーニング:38,500円、エアコンクリーニング:15,400円※故意・過失等別途実費]●短期解約違約金有り(1年未満:家賃1ヶ月分)●同タイプ、別部屋の画像です●家具はCGで配置しています。実際は家具付きではありません●火災保険料はRLSupportSystem+Mに含む●2026.3.28解約 保証会社:有限会社クラスコギャランティ(RLSS) 合計7.75万円(内訳:鍵交換代/クラスコギャランティ初回保証料等) 水道料 2750円(月額)/RL Support System+M 3300円(月額) 1K 損保【要】 バストイレ別、バルコニー、エアコン、クロゼット、フローリング、TVインターホン、室内洗濯置、シューズボックス、角住戸、温水洗浄便座、2口コンロ、駐輪場、礼金不要、敷金不要、照明付、保証人不要、ネット使用料不要、トランクルーム、サンルーム、2駅利用可、敷地内ごみ置き場、プロパンガス、敷金・礼金不要、保証会社利用可、IT重説対応物件 入居日:'26年4月中旬 | ||
部屋の情報
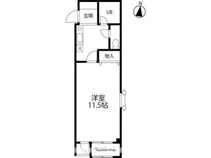
| 間取り | 1K | 専有面積 | 32.49m2 |
|---|---|---|---|
| 所在階 / 向き | 2階 / 南 | バルコニー面積 | - |
| 水道 / ガス | - | ||
| 設備 | バス・トイレ別、2階以上、テレビドアホン、インターネット対応、エアコン、温水洗浄便座、南向き、角部屋、バルコニー、フローリング、トランクルーム、2口コンロ、インターネット使用料無料、洗濯機:室内 | ||
| 当社物件ID | 102121294 | ||
建物の情報
| 建物名 | グリーンハイツI番館 | ||
|---|---|---|---|
| 所在地 | 石川県金沢市西泉 | ||
| 交通 | IRいしかわ鉄道 西金沢駅 徒歩17分 IRいしかわ鉄道 金沢駅 バス乗車時間:11分 最寄りバス停で下車 徒歩6分 | ||
| 階数 | 4階建 | 総戸数 | 23戸 |
| 築年月 | 1997年02月 / 築30年 | エレベーター | - |
| 駐車場 | 空有 5500円 | バイク置き場 | - |
| 駐輪場 | あり | 管理人/管理会社 | - |
| 周辺環境 | その他 ローソン(コンビニ)まで5m その他 MEGAドン・キホーテラパーク金沢店(スーパー)まで270m その他 セブンイレブン金沢西泉2丁目店(コンビニ)まで280m その他 大阪屋ショップ西泉店(スーパー)まで500m その他 ファミリーマート金沢泉本町店(コンビニ)まで550m その他 マックスバリュ増泉店(スーパー)まで1100m | ||
| 建物種別 | マンション | 建物構造 | 鉄骨造 |
この部屋の取扱い不動産会社
| 会社名 | (株)クラスコGO賃貸・金沢南部店(SUUMO経由) | ||
|---|---|---|---|
| 所在地 | 石川県金沢市横川4-188 | 交通 | - |
| 営業時間 | 9:30~17:30 | 定休日 | 祝日(1月~3月営業)・水曜日 |
| 免許番号 | 国土交通大臣8818 | 取引態様 | 仲介 |
| 不動産会社管理番号 | 100490830898 | 当社管理番号 | 89 |
| 所属団体 | (公社)石川県宅地建物取引業協会会員 | ||
| 公正取引協議会 | 北陸不動産公正取引協議会加盟 | ||
| 取扱い物件情報 | 物件詳細へ | ||
※各種情報と現状に差異がある場合は、現状優先となります。問い合わせをすることで、より詳しい条件、情報を確認する事ができます。
提供:(株)クラスコGO賃貸・金沢南部店(SUUMO経由)
この物件が気になったら掲載期限まであと10日
グリーンハイツI番館に条件(家賃・エリア)が近い物件一覧
| 写真 | 家賃 管理費等 | 敷金 礼金 | 間取り 専有面積 | 築年数 | 最寄り駅 所在地 | キープ | 詳細 |
|---|---|---|---|---|---|---|---|
マンション グランデ天神橋(2DK/3階) | |||||||
![]() | 4.5万円 3,000円 | 4.5万円 4.5万円 | 2DK 45m2 | 築36年 | 石川県金沢市材木町 | 詳細を見る | |
アパート レスカール(1K/1階) | |||||||
![]() | 2.9万円 4,000円 | なし なし | 1K 19.87m2 | 築28年 | 石川県金沢市間明町 | 詳細を見る | |
マンション 北陸鉄道浅野川線 七ツ屋駅 徒歩27分 築6年(ワンルーム/1階) | |||||||
![]() | 6.7万円 8,500円 | なし 13.4万円 | ワンルーム 32.68m2 | 築6年 | 北陸鉄道浅野川線 七ツ屋駅 徒歩27分 石川県金沢市尾張町 | 詳細を見る | |
マンション セレクション松島(1K/2階) | |||||||
![]() | 3.5万円 3,000円 | なし なし | 1K 27.54m2 | 築38年 | 北陸鉄道石川線 新西金沢駅 徒歩38分 石川県金沢市 | 詳細を見る | |
アパート DR相木CORAZON(1LDK/1階) | |||||||
![]() | 6.3万円 7,600円 | なし 12.6万円 | 1LDK 33.61m2 | 築1年 | IRいしかわ鉄道 松任駅 徒歩15分 IRいしかわ鉄道 野々市駅(IR) 徒歩54分 石川県白山市相木 | 詳細を見る | |
アパート サウスコート(1K/1階) | |||||||
![]() | 4万円 3,000円 | 4万円 なし | 1K 33.8m2 | 築26年 | 北陸鉄道石川線 野々市工大前駅 徒歩5分 石川県野々市市高橋町 | 詳細を見る | |
アパート サウスイーストノア(1LDK/2階) | |||||||
![]() | 6.2万円 5,500円 | なし 6万円 | 1LDK 40.43m2 | 築20年 | 石川県金沢市粟崎町チ | 詳細を見る | |
アパート 西金沢第2レジデンス(1K/1階) | |||||||
![]() | 2.8万円 4,500円 | なし なし | 1K 15.58m2 | 築35年 | IRいしかわ鉄道 西金沢駅 徒歩13分 北陸鉄道石川線 新西金沢駅 徒歩14分 北陸鉄道石川線 押野駅 徒歩28分 石川県金沢市西金沢 | 詳細を見る | |







