賃貸アパート
ニホコーポラスⅢの賃貸物件情報(ワンルーム/2階)
| 家賃 | 管理費等 | 敷金 | 礼金 | 間取り | 専有面積 |
|---|---|---|---|---|---|
| 3.4万円 | 4,000円 | 3.4万円 | 3.4万円 | ワンルーム | 21.02m2 |
入居決定でお祝い金最大100,000円
Point
☆★☆【アパマンショップ新白島駅前店 取り扱い物件】★☆★
提供:アパマンショップ広島駅新幹線口店

詳細情報 ニホコーポラスⅢ
物件紹介
ニホコーポラスⅢは山陽本線向洋駅から徒歩20分にあるアパートです。
このお部屋は2階以上に位置しているので、通行人や周囲の住人からの視線が気になりにくく、防犯面でも安心。建物のエントランスはオートロックがついており、インターホンにはTVモニタもついているため、相手の顔を確認してから来客対応することができます。
バス・トイレ別の仕様で、のんびりお風呂タイムも楽しめます。また、浴室乾燥機を使えば、雨の日でもお洗濯は問題ありません。
通信設備面では、インターネットが無料で使えるので、月々の出費を抑えられるのも魅力です(別途工事等が必要な場合あり)。
床暖房があり、冬も足元から暖かく快適に過ごすことができます。共用部には宅配ボックスが設定されているので、不在の時にも荷物を受け取ることができます。また、ペット飼育の相談ができますので、あなたの大切な家族の一員も快適に暮らせるか、ぜひ確認してみてください。
このお部屋は2階以上に位置しているので、通行人や周囲の住人からの視線が気になりにくく、防犯面でも安心。建物のエントランスはオートロックがついており、インターホンにはTVモニタもついているため、相手の顔を確認してから来客対応することができます。
バス・トイレ別の仕様で、のんびりお風呂タイムも楽しめます。また、浴室乾燥機を使えば、雨の日でもお洗濯は問題ありません。
通信設備面では、インターネットが無料で使えるので、月々の出費を抑えられるのも魅力です(別途工事等が必要な場合あり)。
床暖房があり、冬も足元から暖かく快適に過ごすことができます。共用部には宅配ボックスが設定されているので、不在の時にも荷物を受け取ることができます。また、ペット飼育の相談ができますので、あなたの大切な家族の一員も快適に暮らせるか、ぜひ確認してみてください。
お金・契約の情報
※「-」と表示されているものは、実際は料金が発生するものもございます。詳細はお問い合わせください。
| 家賃 | 3.4万円 | 管理費・共益費 | 4,000円 |
|---|---|---|---|
| 敷金 | 3.4万円 | 礼金 | 3.4万円 |
| 入居決定でお祝い金最大100,000円 | |||
| 保証金 | - | 償却・敷引 | - |
| 住宅保険料 | - | 更新料 | - |
| 保証会社利用 | 必須 | 保証会社名 | 全保連 |
| 保証会社費用 | - | 保証会社備考 | 毎年プラン(50%・毎年更新料要)or初回のみプラン(80%) |
| 契約形態 | - | 契約期間 | 2年 |
| 入居・引渡期間 | 相談 | 現況 | - |
| 入居可能条件 | ペット可 | ||
| 契約備考 | ReFaシャワーヘッド設置 鍵交換費用(税込) 5500円 | ||
部屋の情報
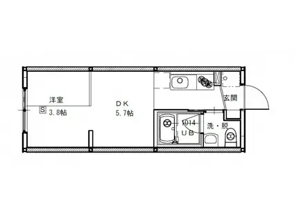
| 間取り | ワンルーム | 専有面積 | 21.02m2 |
|---|---|---|---|
| 間取り詳細 | 洋室(3.8帖) | ||
| 所在階 / 向き | 2階 / - | バルコニー面積 | - |
| 水道 / ガス | ガス【プロパン】 | ||
| 設備 | バス・トイレ別、オートロック、テレビドアホン、宅配ボックス、浴室乾燥機、追い焚き、インターネット対応、温水洗浄便座、床暖房、コンロ:ガス、インターネット使用料無料、シャワー、洗濯機:室内 | ||
| 当社物件ID | 15823150 | ||
建物の情報
| 建物名 | ニホコーポラスⅢ | ||
|---|---|---|---|
| 所在地 | 広島県広島市南区仁保2丁目 | ||
| 交通 | 山陽本線 向洋駅 徒歩20分 | ||
| 階数 | 2階建 | 総戸数 | 18戸 |
| 築年月 | 2014年11月 / 築12年 | エレベーター | - |
| 駐車場 | - | バイク置き場 | あり |
| 駐輪場 | あり | 管理人/管理会社 | - |
| 周辺環境 | その他 (株)ユアーズ/本浦店 徒歩9分(719m) その他 万惣本浦店 徒歩10分(793m) その他 フジ・ZY東雲店 徒歩16分(1211m) その他 業務用食品スーパー東雲店 徒歩21分(1672m) その他 ナイスムラカミかすみ一番街店 徒歩24分(1864m) その他 (株)デイ・リンク/デイ・リンク東雲店 徒歩24分(1892m) その他 セブンイレブン 徒歩27分(2154m) その他 セブンイレブン 徒歩27分(2153m) | ||
| 建物種別 | アパート | 建物構造 | 木造 |
この部屋の取扱い不動産会社
| 会社名 | アパマンショップ新白島駅前店 | ||
|---|---|---|---|
| 所在地 | 広島県広島市中区西白島町 3-9服部ビル1階 | 交通 | 山陽本線新白島から徒歩1分 |
| 営業時間 | 09:30〜18:30 | 定休日 | - |
| 免許番号 | 広島県知事(10)5499 | 取引態様 | 仲介 |
| 不動産会社管理番号 | 102080347 | 当社管理番号 | 4 |
| 所属団体 | (公社)広島県宅地建物取引業協会 | ||
| 公正取引協議会 | 中国地区不動産公正取引協議会加盟 | ||
| 取扱い物件情報 | 物件詳細へ | ||
※各種情報と現状に差異がある場合は、現状優先となります。問い合わせをすることで、より詳しい条件、情報を確認する事ができます。
提供:アパマンショップ新白島駅前店
この物件が気になったら掲載期限まであと12日
ニホコーポラスⅢに条件(家賃・エリア)が近い物件一覧
| 写真 | 家賃 管理費等 | 敷金 礼金 | 間取り 専有面積 | 築年数 | 最寄り駅 所在地 | キープ | 詳細 |
|---|---|---|---|---|---|---|---|
アパート 87Gラポール本浦(1LDK/1階) | |||||||
![]() | 4.5万円 4,000円 | なし なし | 1LDK 25.2m2 | 築12年 | JR山陽本線 向洋駅 徒歩28分 広島県広島市南区本浦町 | 詳細を見る | |
アパート 西平アパート(2K/2階) | |||||||
![]() | 3万円 なし | 6万円 なし | 2K 32m2 | 築53年 | 広島県呉市南辰川町 | 詳細を見る | |
マンション サンライフ東雲(1K/5階) | |||||||
![]() | 3.5万円 なし | 7万円 3.5万円 | 1K 16.5m2 | 築38年 | 広島県広島市南区東雲3丁目 | 詳細を見る | |
マンション クルーズマンション(1K/5階) | |||||||
![]() | 3.7万円 3,000円 | 7.4万円 3.7万円 | 1K 22.67m2 | 築33年 | 広島電鉄宇品線 宇品二丁目駅 徒歩2分 広島県広島市南区宇品神田2丁目 | 詳細を見る | |
マンション メゾンヤマキ(1DK/1階) | |||||||
![]() | 4.6万円 なし | 9.2万円 4.6万円 | 1DK 30m2 | 築41年 | 広島電鉄宇品線 県病院前駅 徒歩7分 広島電鉄宇品線 宇品二丁目駅 徒歩9分 広島電鉄宇品線 広大附属学校前駅 徒歩9分 広島県広島市南区翠 | 詳細を見る | |
マンション 古市パークマンション(1K/3階) | |||||||
![]() | 3.4万円 2,000円 | なし 3.4万円 | 1K 23.19m2 | 築31年 | 山陽本線 西条駅(広島) 徒歩30分 広島県東広島市西条中央6丁目 | 詳細を見る | |
アパート コーポ宮路(2K/1階) | |||||||
![]() | 5万円 なし | 15万円 なし | 2K 40.5m2 | 築47年 | 山陽本線 宮内串戸駅 徒歩9分 広島県廿日市市串戸6丁目 | 詳細を見る | |
アパート シティーM(1K/2階) | |||||||
![]() | 4.4万円 2,000円 | 4.4万円 なし | 1K 24.71m2 | 築32年 | JR呉線 呉駅 徒歩23分 広島県呉市東中央 | 詳細を見る | |








