賃貸マンション
エルファーロ大塚IVの賃貸物件情報(1K/5階)
| 家賃 | 管理費等 | 敷金 | 礼金 | 間取り | 専有面積 |
|---|---|---|---|---|---|
| 9.9万円 | 1万円 | なし | なし | 1K | 20.08m2 |
入居決定でお祝い金最大100,000円
Point
まずはお問い合わせ!
不動産会社は街のプロ、あなたに合った物件がきっと見つかります。
提供:(株)リライフ高田馬場店(SUUMO経由)

詳細情報 エルファーロ大塚IV
物件紹介
エルファーロ大塚IVはJR山手線大塚駅から徒歩9分にあり、駅近で通勤通学に便利なマンションです。
このお部屋は2階以上に位置しているので、通行人や周囲の住人からの視線が気になりにくく、防犯面でも安心。建物のエントランスはオートロックがついており、インターホンにはTVモニタもついているため、相手の顔を確認してから来客対応することができます。
人気の南向きのお部屋。また、フローリングなのでお掃除もラクラク。キッチンはシステムキッチン仕様になっていますので、お料理好きの方にもぴったり。バス・トイレは別なので、のんびりお風呂タイムも楽しめるでしょう。また、雨の日でも浴室乾燥機を使えば、お洗濯も問題ありません。
通信設備面では、インターネットが無料で使えるので、月々の出費を抑えられるのも魅力です(別途工事等が必要な場合あり)。
共用部には宅配ボックスが設定されているので、不在の時にも荷物を受け取ることができます。
このお部屋は2階以上に位置しているので、通行人や周囲の住人からの視線が気になりにくく、防犯面でも安心。建物のエントランスはオートロックがついており、インターホンにはTVモニタもついているため、相手の顔を確認してから来客対応することができます。
人気の南向きのお部屋。また、フローリングなのでお掃除もラクラク。キッチンはシステムキッチン仕様になっていますので、お料理好きの方にもぴったり。バス・トイレは別なので、のんびりお風呂タイムも楽しめるでしょう。また、雨の日でも浴室乾燥機を使えば、お洗濯も問題ありません。
通信設備面では、インターネットが無料で使えるので、月々の出費を抑えられるのも魅力です(別途工事等が必要な場合あり)。
共用部には宅配ボックスが設定されているので、不在の時にも荷物を受け取ることができます。
お金・契約の情報
※「-」と表示されているものは、実際は料金が発生するものもございます。詳細はお問い合わせください。
| 家賃 | 9.9万円 | 管理費・共益費 | 1万円 |
|---|---|---|---|
| 敷金 | なし | 礼金 | なし |
| 入居決定でお祝い金最大100,000円 | |||
| 保証金 | - | 償却・敷引 | - |
| 住宅保険料 | - | 更新料 | - |
| 保証会社利用 | 必須 | 保証会社名 | - |
| 保証会社費用 | - | 保証会社備考 | 保証会社利用必 ※エポス ルームIDからの審査になります。 【ルームID】月額総賃料の50%/月次保証料、月額総賃料の1.5%/1年毎10 000円 ●エポスグローバルプラン利用時:月額総賃料の100% 月額総賃料の2% 【アーク賃貸保証】月額総賃料の40%/次年度以降10,000円※引落し手数料550円(税込) |
| 契約形態 | - | 契約期間 | - |
| 入居・引渡期間 | 即時 | 現況 | - |
| 契約備考 | 合計12.1万円(内訳:プレミアデスク(2年/税込)2.2万円契約時ルームクリーニング費用(税込)6.05万円鍵交換代3.85万円) 更新料 新賃料1.00ヶ月分 1K 事務所利用不可 普通借家2年 損保【2万円2年】 バストイレ別、エアコン、ガスコンロ対応、クロゼット、フローリング、TVインターホン、浴室乾燥機、オートロック、室内洗濯置、シューズボックス、システムキッチン、温水洗浄便座、洗面所独立、2口コンロ、宅配ボックス、最上階、ネット使用料不要、ダブルロックキー、2駅利用可、敷地内ごみ置き場、都市ガス、玄関収納、LAN | ||
部屋の情報
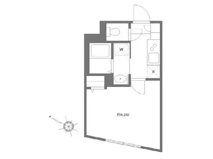
| 間取り | 1K | 専有面積 | 20.08m2 |
|---|---|---|---|
| 所在階 / 向き | 5階 / 南西 | バルコニー面積 | - |
| 水道 / ガス | - | ||
| 設備 | バス・トイレ別、2階以上、オートロック、テレビドアホン、宅配ボックス、浴室乾燥機、インターネット対応、システムキッチン、エアコン、温水洗浄便座、南向き、フローリング、洗髪洗面化粧台、2口コンロ、コンロ:ガス、インターネット使用料無料、洗濯機:室内 | ||
| 当社物件ID | 132286525 | ||
建物の情報
| 建物名 | エルファーロ大塚IV | ||
|---|---|---|---|
| 所在地 | 東京都豊島区上池袋 | ||
| 交通 | JR山手線 大塚駅(東京) 徒歩10分 JR山手線 池袋駅 徒歩14分 | ||
| 階数 | 5階建 | 総戸数 | 14戸 |
| 築年月 | 2023年05月 / 築3年 | エレベーター | - |
| 駐車場 | なし | バイク置き場 | - |
| 駐輪場 | - | 管理人/管理会社 | - |
| 建物種別 | マンション | 建物構造 | RC(鉄筋コンクリート) |
この部屋の取扱い不動産会社
| 会社名 | (株)ミニミニ城西高田馬場店(SUUMO経由) | ||
|---|---|---|---|
| 所在地 | 東京都新宿区高田馬場2-13-3 橘ビル2階 | 交通 | - |
| 営業時間 | 10:00~18:00 | 定休日 | 1/4~3/31は休まず営業! |
| 免許番号 | 国土交通大臣5570 | 取引態様 | 仲介 |
| 不動産会社管理番号 | 100490352480 | 当社管理番号 | 89 |
| 取扱い物件情報 | 物件詳細へ | ||
※各種情報と現状に差異がある場合は、現状優先となります。問い合わせをすることで、より詳しい条件、情報を確認する事ができます。
提供:(株)ミニミニ城西高田馬場店(SUUMO経由)
この物件が気になったら掲載期限まであと10日
エルファーロ大塚IVに条件(家賃・エリア)が近い物件一覧
| 写真 | 家賃 管理費等 | 敷金 礼金 | 間取り 専有面積 | 築年数 | 最寄り駅 所在地 | キープ | 詳細 |
|---|---|---|---|---|---|---|---|
マンション 光が丘パークタウンゆりの木通北4号棟(3LDK/4階) | |||||||
![]() | 15.2万円 なし | 30.4万円 15.2万円 | 3LDK 78.23m2 | 築44年 | 東京メトロ有楽町線 地下鉄赤塚駅 徒歩9分 東武東上線 下赤塚駅 徒歩14分 東京メトロ有楽町線 地下鉄成増駅 徒歩15分 東京都板橋区赤塚新町 | 詳細を見る | |
マンション グランドルチェ駒込II(1K/6階) | |||||||
![]() | 11.8万円 7,000円 | なし なし | 1K 26.4m2 | 築7年 | JR山手線 駒込駅 徒歩4分 JR山手線 巣鴨駅 徒歩12分 JR京浜東北線 上中里駅 徒歩14分 東京都豊島区駒込 | 詳細を見る | |
マンション ALIVIS東十条(1DK/3階) | |||||||
![]() | 15.55万円 1.5万円 | なし なし | 1DK 31.5m2 | 築1年 | JR埼京線 十条駅(東京) 徒歩11分 JR京浜東北線 東十条駅 徒歩12分 東京メトロ南北線 王子神谷駅 徒歩21分 東京都北区十条仲原 | 詳細を見る | |
マンション アザレ・ドール(1K/5階) | |||||||
![]() | 9.1万円 8,000円 | 9.1万円 9.1万円 | 1K 28.05m2 | 築23年 | 西武池袋線 練馬駅 徒歩1分 都営大江戸線 練馬駅 徒歩1分 西武有楽町線 練馬駅 徒歩2分 東京都練馬区練馬 | 詳細を見る | |
マンション デュオステージ中野(1LDK/2階) | |||||||
![]() | 14.3万円 1万円 | 14.3万円 14.3万円 | 1LDK 30.53m2 | 築3年 | 西武新宿線 新井薬師前駅 徒歩10分 JR中央線 中野駅(東京) 徒歩11分 JR総武線 中野駅(東京) 徒歩11分 東京都中野区新井 | 詳細を見る | |
マンション ラレーブ鷺ノ宮(1K/1階) | |||||||
![]() | 6.4万円 5,000円 | 6.4万円 なし | 1K 22.5m2 | 築36年 | 西武新宿線 下井草駅 徒歩7分 西武新宿線 鷺ノ宮駅 徒歩14分 西武池袋線 富士見台駅 徒歩18分 東京都中野区鷺宮 | 詳細を見る | |
アパート エスポワール(1LDK/2階) | |||||||
![]() | 14万円 なし | 14万円 14万円 | 1LDK 47.17m2 | 築64年 | 東京都三田線 志村坂上駅 徒歩8分 東京都三田線 本蓮沼駅 徒歩15分 東京都板橋区小豆沢2丁目 | 詳細を見る | |







