賃貸マンション
ファーストフィオーレ神戸湊町の賃貸物件情報(1K/9階)
| 家賃 | 管理費等 | 敷金 | 礼金 | 間取り | 専有面積 |
|---|---|---|---|---|---|
| 6.36万円 | 6,910円 | なし | 7.05万円 | 1K | 23.45m2 |
入居決定でお祝い金最大100,000円
- 保証金
- -
- 償却・敷引
- -
- 築年数
- 築7年
- 所在階
- 9階
- 向き
- 東
Point
☆神戸高速線新開地駅徒歩2分!!JR神戸駅徒歩圏内も徒歩圏内♪駐車場・駐輪場・バイク置場完備!当社であれば仲介手数料半額です☆
提供:ピタットハウス元町店(株)ライブデザイン兵庫(SUUMO経由)

詳細情報 ファーストフィオーレ神戸湊町
物件紹介
ファーストフィオーレ神戸湊町は神戸高速鉄道東西線新開地駅から徒歩2分にあり、駅近で通勤通学に便利なマンションです。
このお部屋は2階以上に位置しているので、通行人や周囲の住人からの視線が気になりにくく、防犯面でも安心。建物のエントランスはオートロックがついており、インターホンにはTVモニタもついているため、相手の顔を確認してから来客対応することができます。
おしゃれなデザイナーズ物件!また、楽器相談が可能な物件となっているので、楽器演奏をお考えの方はぜひ相談してみてください。人気の南向き・フローリングのお部屋。角部屋でもあるため、周囲の居住者の生活音も気になりにくい場所です。キッチンはシステムキッチン仕様になっていますので、お料理好きの方にもぴったり。バス・トイレは別なので、のんびりお風呂タイムも楽しめるでしょう。また、雨の日でも浴室乾燥機を使えば、お洗濯も問題ありません。
通信設備面では、インターネットが無料で使えるので、月々の出費を抑えられるのも魅力です。また、BSアンテナ・CSアンテナがありCATVにも対応しているので、おうち時間も充実するでしょう(別途工事、BS・CS・CATVの契約料等が必要な場合あり)。
建物にはエレベーターがついているので、重い荷物があっても安心。共用部には宅配ボックスが設定されているので、不在の時にも荷物を受け取ることができます。また、ペット飼育の相談ができますので、あなたの大切な家族の一員も快適に暮らせるか、ぜひ確認してみてください。
このお部屋は2階以上に位置しているので、通行人や周囲の住人からの視線が気になりにくく、防犯面でも安心。建物のエントランスはオートロックがついており、インターホンにはTVモニタもついているため、相手の顔を確認してから来客対応することができます。
おしゃれなデザイナーズ物件!また、楽器相談が可能な物件となっているので、楽器演奏をお考えの方はぜひ相談してみてください。人気の南向き・フローリングのお部屋。角部屋でもあるため、周囲の居住者の生活音も気になりにくい場所です。キッチンはシステムキッチン仕様になっていますので、お料理好きの方にもぴったり。バス・トイレは別なので、のんびりお風呂タイムも楽しめるでしょう。また、雨の日でも浴室乾燥機を使えば、お洗濯も問題ありません。
通信設備面では、インターネットが無料で使えるので、月々の出費を抑えられるのも魅力です。また、BSアンテナ・CSアンテナがありCATVにも対応しているので、おうち時間も充実するでしょう(別途工事、BS・CS・CATVの契約料等が必要な場合あり)。
建物にはエレベーターがついているので、重い荷物があっても安心。共用部には宅配ボックスが設定されているので、不在の時にも荷物を受け取ることができます。また、ペット飼育の相談ができますので、あなたの大切な家族の一員も快適に暮らせるか、ぜひ確認してみてください。
お金・契約の情報
※「-」と表示されているものは、実際は料金が発生するものもございます。詳細はお問い合わせください。
| 家賃 | 6.36万円 | 管理費・共益費 | 6,910円 |
|---|---|---|---|
| 敷金 | なし | 礼金 | 7.05万円 |
| 入居決定でお祝い金最大100,000円 | |||
| 保証金 | - | 償却・敷引 | - |
| 住宅保険料 | - | 更新料 | - |
| 契約形態 | - | 契約期間 | - |
| 入居・引渡期間 | 相談 | 現況 | - |
| 入居可能条件 | 楽器相談、ペット相談 | ||
| 契約備考 | 神戸市西神山手線/湊川公園駅徒歩9分/神鉄食彩館新開地店まで181m/ローソン神戸新開地四丁目店まで100m/通勤管理/☆エアコン・2口IHコンロ・浴室暖房乾燥・TVモニターホン・ダブルロック・ディンプルキー・室内洗濯機置場・エレベーター・オートロック・宅配ボックス・駐車場・駐輪場・バイク置場・インターネット無料! 1K 楽器相談 普通借家2年 損保【2万円2年】 バストイレ別、バルコニー、エアコン、クロゼット、フローリング、TVインターホン、浴室乾燥機、オートロック、室内洗濯置、シューズボックス、システムキッチン、温水洗浄便座、脱衣所、エレベーター、洗面所独立、洗面化粧台、2口コンロ、駐輪場、宅配ボックス、CATV、光ファイバー、外壁タイル張り、防犯カメラ、ペット相談、IHクッキングヒーター、照明付、分譲賃貸、全居室洋室、保証人不要、単身者相談、CATVインターネット、二人入居相談、バイク置場、24時間緊急通報システム、オール電化、仲手0.55ヶ月、ディンプルキー、ネット使用料不要、ダブルロックキー、24時間換気システム、楽器相談、学生相談、耐震構造、3駅以上利用可、3沿線以上利用可、駅徒歩5分以内、敷地内ごみ置き場、日勤管理、全居室6畳以上、洗面所にドア、高速ネット対応、LAN、敷金・礼金不要、保証会社利用可、IT重説対応物件、高齢者歓迎、初期費用カード決済可 | ||
部屋の情報
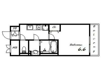
| 間取り | 1K | 専有面積 | 23.45m2 |
|---|---|---|---|
| 所在階 / 向き | 9階 / 東 | バルコニー面積 | 3m2 |
| 水道 / ガス | - | ||
| 設備 | バス・トイレ別、2階以上、オートロック、テレビドアホン、宅配ボックス、浴室乾燥機、インターネット対応、システムキッチン、エアコン、エレベーター、温水洗浄便座、バルコニー、フローリング、洗髪洗面化粧台、オール電化、2口コンロ、コンロ:IH、CATV、インターネット使用料無料、洗濯機:室内 | ||
| 当社物件ID | 29510131 | ||
建物の情報
| 建物名 | ファーストフィオーレ神戸湊町 | ||
|---|---|---|---|
| 所在地 | 兵庫県神戸市兵庫区湊町 | ||
| 交通 | 神戸高速鉄道東西線 高速神戸駅 徒歩8分 JR東海道本線 神戸駅(兵庫) 徒歩10分 | ||
| 階数 | 11階建 | 総戸数 | - |
| 築年月 | 2019年03月 / 築7年 | エレベーター | あり |
| 駐車場 | 近隣 100m18000円 | バイク置き場 | あり |
| 駐輪場 | あり | 管理人/管理会社 | - |
| 周辺環境 | その他 神鉄食彩館新開地店(スーパー)まで181m その他 ローソン神戸新開地四丁目店(コンビニ)まで100m その他 ライフ神戸駅前店(スーパー)まで469m その他 ローソンストア100新開地駅前店(コンビニ)まで114m その他 業務スーパー湊川店(スーパー)まで600m その他 スギ薬局新開地店(ドラッグストア)まで340m | ||
| 建物種別 | マンション | 建物構造 | RC(鉄筋コンクリート) |
この部屋の取扱い不動産会社
| 会社名 | センチュリー21(株)リライフ不動産販売兵庫駅前店(SUUMO経由) | ||
|---|---|---|---|
| 所在地 | 兵庫県神戸市兵庫区羽坂通4-2-11 駅前中川ビル2階 | 交通 | - |
| 営業時間 | 10:00~19:00 | 定休日 | - |
| 免許番号 | 兵庫県知事11911 | 取引態様 | 仲介 |
| 不動産会社管理番号 | 100459132584 | 当社管理番号 | 89 |
| 取扱い物件情報 | 物件詳細へ | ||
※各種情報と現状に差異がある場合は、現状優先となります。問い合わせをすることで、より詳しい条件、情報を確認する事ができます。
提供:センチュリー21(株)リライフ不動産販売兵庫駅前店(SUUMO経由)
この物件が気になったら掲載期限まであと10日
ファーストフィオーレ神戸湊町に条件(家賃・エリア)が近い物件一覧
| 写真 | 家賃 管理費等 | 敷金 礼金 | 間取り 専有面積 | 築年数 | 最寄り駅 所在地 | キープ | 詳細 |
|---|---|---|---|---|---|---|---|
マンション ビレッジハウス志染(3DK/3階) | |||||||
![]() | 5.4万円 なし | なし なし | 3DK 54.38m2 | 築46年 | 神戸電鉄粟生線 志染駅 徒歩19分 神戸電鉄粟生線 恵比須駅 徒歩29分 神戸電鉄粟生線 広野ゴルフ場前駅 徒歩29分 兵庫県三木市志染町西自由が丘 | 詳細を見る | |
アパート シーサイドビラ5(3LDK/2階) | |||||||
![]() | 8.2万円 3,000円 | 3万円 なし | 3LDK 73.56m2 | 築16年 | 山陽電気鉄道本線 江井ケ島駅 徒歩5分 山陽電気鉄道本線 西江井ケ島駅 徒歩20分 山陽本線 大久保駅(兵庫) 徒歩28分 兵庫県明石市大久保町江井島 | 詳細を見る | |
マンション ハイメゾンヴェルデ(ワンルーム/2階) | |||||||
![]() | 4.7万円 3,000円 | なし 5万円 | ワンルーム 25m2 | 築27年 | 神戸電鉄粟生線 広野ゴルフ場前駅 徒歩8分 神戸電鉄粟生線 緑が丘駅(兵庫) 徒歩12分 兵庫県三木市緑が丘町西1 | 詳細を見る | |
マンション 山陽本線 兵庫駅 徒歩7分 築31年(1LDK/6階) | |||||||
![]() | 9.39万円 4,000円 | 18.78万円 なし | 1LDK 55m2 | 築31年 | 山陽本線 兵庫駅 徒歩7分 神戸高速鉄道東西線 大開駅 徒歩13分 神戸市西神山手線 上沢駅 徒歩17分 兵庫県神戸市兵庫区駅南通5丁目 | 詳細を見る | |
マンション シャーメゾン 神戸(1K/8階) | |||||||
![]() | 6.3万円 1万円 | 6.3万円 6.3万円 | 1K 24.6m2 | 築11年 | 神戸市西神山手線 大倉山駅(兵庫) 徒歩4分 東海道本線 神戸駅(兵庫) 徒歩9分 東海道本線 元町駅(JR) 徒歩20分 兵庫県神戸市中央区楠町6丁目 | 詳細を見る | |
マンション 東加古川ファミリーマンション103号棟(2LDK/3階) | |||||||
![]() | 4.5万円 なし | なし なし | 2LDK 48.84m2 | 築58年 | JR山陽本線 東加古川駅 徒歩20分 兵庫県加古郡稲美町中村 | 詳細を見る | |
アパート カーサ・フェリーチェ平田(1K/3階) | |||||||
![]() | 6.2万円 6,000円 | 2万円 10万円 | 1K 26.49m2 | 築6年 | 神戸電鉄粟生線 大村駅(兵庫) 徒歩10分 神戸電鉄粟生線 三木駅(神戸電鉄) 徒歩14分 兵庫県三木市平田 | 詳細を見る | |
アパート ヒカルサ稲美天満Ⅰ(1LDK/1階) | |||||||
![]() | 7.55万円 3,900円 | なし 7.55万円 | 1LDK 44.7m2 | 新築 | 兵庫県加古郡稲美町六分一 | 詳細を見る | |







