賃貸マンション
ハイツ日本橋の賃貸物件情報(ワンルーム/7階)
| 家賃 | 管理費等 | 敷金 | 礼金 | 間取り | 専有面積 |
|---|---|---|---|---|---|
| 9.6万円 | なし | 9.6万円 | なし | ワンルーム | 26.14m2 |
入居決定でお祝い金最大100,000円
- 保証金
- -
- 償却・敷引
- -
- 築年数
- 築45年
- 所在階
- 7階
- 向き
- 南西
Point
定期借家契約(期間相談・再契約相談可)となります。2026年1月室内フルリフォーム完成予定。シャワールームで浴槽は有りませんが、独立洗面台・脱衣所がございます。事務所使用相談可能(条件が変わります)
提供:オフィスランディック(株)(SUUMO経由)

詳細情報 ハイツ日本橋
物件紹介
ハイツ日本橋は都営浅草線人形町駅から徒歩3分にあり、駅近で通勤通学に便利なマンションです。
このお部屋は2階以上に位置しているので、通行人や周囲の住人からの視線が気になりにくく、防犯面でも安心。インターホンにはTVモニタもついているため、相手の顔を確認してから来客対応することができます。
人気の南向きのお部屋。また、フローリングなのでお掃除もラクラク。キッチンはシステムキッチン仕様になっていますので、お料理好きの方にもぴったり。また、バス・トイレは別で、のんびりお風呂タイムも楽しめるでしょう。
通信設備面では、インターネット接続が可能です。また、CATVにも対応しているので、おうち時間も充実するでしょう(別途工事、契約料が必要な場合あり)。
建物にはエレベーターがついているので、重い荷物があっても安心。
このお部屋は2階以上に位置しているので、通行人や周囲の住人からの視線が気になりにくく、防犯面でも安心。インターホンにはTVモニタもついているため、相手の顔を確認してから来客対応することができます。
人気の南向きのお部屋。また、フローリングなのでお掃除もラクラク。キッチンはシステムキッチン仕様になっていますので、お料理好きの方にもぴったり。また、バス・トイレは別で、のんびりお風呂タイムも楽しめるでしょう。
通信設備面では、インターネット接続が可能です。また、CATVにも対応しているので、おうち時間も充実するでしょう(別途工事、契約料が必要な場合あり)。
建物にはエレベーターがついているので、重い荷物があっても安心。
お金・契約の情報
※「-」と表示されているものは、実際は料金が発生するものもございます。詳細はお問い合わせください。
| 家賃 | 9.6万円 | 管理費・共益費 | なし |
|---|---|---|---|
| 敷金 | 9.6万円 | 礼金 | なし |
| 入居決定でお祝い金最大100,000円 | |||
| 保証金 | - | 償却・敷引 | - |
| 住宅保険料 | - | 更新料 | - |
| 保証会社利用 | 必須 | 保証会社名 | - |
| 保証会社費用 | - | 保証会社備考 | 保証会社利用必 初回保証料:賃料等の50% 以後年間保証料:10000円~ |
| 契約形態 | 定期借家 | 契約期間 | 2年 |
| 入居・引渡期間 | - | 現況 | - |
| 入居可能条件 | 事務所可 | ||
| 契約備考 | リフォーム:2026年1月完成予定室内フルリフォーム/■民泊・シェアハウス・レンタルルーム・店舗使用は不可となります。■1年未満の解約の場合、短期解約違約金あり 合計2.2万円(内訳:鍵交換費用:22000円~) ワンルーム 事務所利用相談 定期借家2年 損保【1.8万円2年】 バストイレ別、バルコニー、エアコン、クロゼット、フローリング、TVインターホン、室内洗濯置、シューズボックス、システムキッチン、温水洗浄便座、エレベーター、洗面化粧台、CATV、光ファイバー、礼金不要、IHクッキングヒーター、分譲賃貸、敷金1ヶ月、2沿線利用可、1フロア2住戸、事務所相談、平坦地、2駅利用可、3沿線以上利用可、駅徒歩5分以内、駅徒歩10分以内、南西向き、都市ガス、シャワールーム、洗面所にドア、内装リフォーム後渡、保証会社利用可 入居日:'26年2月上旬 | ||
部屋の情報
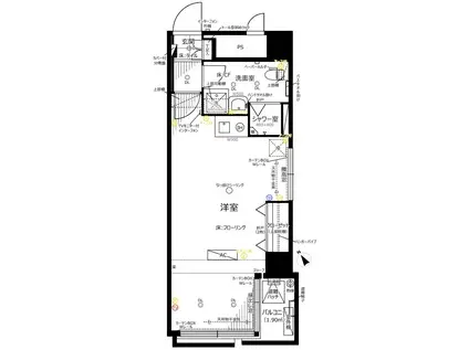
| 間取り | ワンルーム | 専有面積 | 26.14m2 |
|---|---|---|---|
| 所在階 / 向き | 7階 / 南西 | バルコニー面積 | 1m2 |
| 水道 / ガス | - | ||
| 設備 | バス・トイレ別、2階以上、テレビドアホン、インターネット対応、システムキッチン、エアコン、エレベーター、温水洗浄便座、南向き、バルコニー、フローリング、コンロ:IH、CATV、洗濯機:室内 | ||
| 当社物件ID | 13538035 | ||
建物の情報
| 建物名 | ハイツ日本橋 | ||
|---|---|---|---|
| 所在地 | 東京都中央区日本橋堀留町 | ||
| 交通 | 都営浅草線 人形町駅 徒歩3分 東京メトロ日比谷線 小伝馬町駅 徒歩5分 都営新宿線 馬喰横山駅 徒歩8分 | ||
| 階数 | 地下1地上9階建 | 総戸数 | - |
| 築年月 | 1981年12月 / 築45年 | エレベーター | あり |
| 駐車場 | なし | バイク置き場 | - |
| 駐輪場 | - | 管理人/管理会社 | - |
| 周辺環境 | その他 まいばすけっと日本橋堀留町1丁目店(スーパー)まで271m その他 マルエツ人形町駅前店(スーパー)まで244m その他 ファミリーマート堀留町二丁目店(コンビニ)まで94m その他 どらっぐぱぱす新人形町店(ドラッグストア)まで156m その他 スターバックスコーヒー人形町店(飲食店)まで118m その他 日本橋大伝馬町郵便局(郵便局)まで361m | ||
| 建物種別 | マンション | 建物構造 | SRC(鉄骨鉄筋コンクリート) |
この部屋の取扱い不動産会社
| 会社名 | オフィスランディック(株)(SUUMO経由) | ||
|---|---|---|---|
| 所在地 | 東京都中央区日本橋茅場町1-11-6 岩崎ビル2階 | 交通 | - |
| 営業時間 | 10:00~18:00 | 定休日 | 日・祝日 |
| 免許番号 | 東京都知事92371 | 取引態様 | 貸主 |
| 不動産会社管理番号 | 100479598166 | 当社管理番号 | 89 |
| 所属団体 | (公社)全日本不動産協会東京都本部会員 | ||
| 公正取引協議会 | (公社)首都圏不動産公正取引協議会加盟 | ||
| 取扱い物件情報 | 物件詳細へ | ||
※各種情報と現状に差異がある場合は、現状優先となります。問い合わせをすることで、より詳しい条件、情報を確認する事ができます。
提供:オフィスランディック(株)(SUUMO経由)
この物件が気になったら掲載期限まであと10日
ハイツ日本橋に条件(家賃・エリア)が近い物件一覧
| 写真 | 家賃 管理費等 | 敷金 礼金 | 間取り 専有面積 | 築年数 | 最寄り駅 所在地 | キープ | 詳細 |
|---|---|---|---|---|---|---|---|
マンション インプルーブ蔵前(1K/4階) | |||||||
![]() | 8.9万円 1万円 | 8.9万円 なし | 1K 21.87m2 | 築40年 | 東京都浅草線 蔵前駅 徒歩2分 東京都浅草線 浅草橋駅 徒歩9分 東京都台東区蔵前4丁目 | 詳細を見る | |
マンション パークアクシス蔵前(1K/10階) | |||||||
![]() | 12万円 1.3万円 | 12万円 12万円 | 1K 26.03m2 | 築13年 | 東京都大江戸線 蔵前駅 徒歩5分 つくばエクスプレス 新御徒町駅 徒歩7分 東京地下鉄銀座線 田原町駅(東京) 徒歩8分 東京都台東区蔵前4丁目 | 詳細を見る | |
マンション スパシエアランシア亀戸(1K/8階) | |||||||
![]() | 7.5万円 1.1万円 | 7.5万円 7.5万円 | 1K 21.11m2 | 築20年 | 総武・中央緩行線 亀戸駅 徒歩9分 東武鉄道亀戸線 亀戸駅 徒歩9分 東武鉄道亀戸線 東あずま駅 徒歩16分 東京都江東区亀戸4丁目 | 詳細を見る | |
マンション ヴェラハイツ御徒町(ワンルーム/6階) | |||||||
![]() | 7.5万円 5,000円 | 7.5万円 7.5万円 | ワンルーム 19.84m2 | 築41年 | 東京都大江戸線 新御徒町駅 徒歩1分 東京地下鉄日比谷線 仲御徒町駅 徒歩7分 山手線 御徒町駅 徒歩9分 東京都台東区台東4丁目 | 詳細を見る | |
マンション ルーラル二十四番館(1K/6階) | |||||||
![]() | 11.7万円 1万円 | 11.7万円 なし | 1K 25.97m2 | 築7年 | 東京都新宿線 菊川駅(東京) 徒歩2分 東京都大江戸線 森下駅(東京) 徒歩10分 東京地下鉄半蔵門線 住吉駅(東京) 徒歩12分 東京都墨田区菊川2丁目 | 詳細を見る | |
マンション メゾン ド ルビアン(1K/10階) | |||||||
![]() | 10万円 7,500円 | なし 10万円 | 1K 26m2 | 築5年 | 東京地下鉄銀座線 浅草駅(東武・都営・メトロ) 徒歩15分 つくばエクスプレス 浅草駅(つくばEXP) 徒歩17分 東京都台東区東浅草1丁目 | 詳細を見る | |
マンション HF八広レジデンス(1DK/8階) | |||||||
![]() | 12.1万円 6,000円 | 12.1万円 12.1万円 | 1DK 25.21m2 | 築6年 | 京成電鉄押上線 八広駅 徒歩9分 京成電鉄押上線 京成曳舟駅 徒歩14分 東武伊勢崎・大師線 東向島駅 徒歩19分 東京都墨田区八広4丁目 | 詳細を見る | |
マンション クレヴィアリグゼ錦糸町(1LDK/5階) | |||||||
![]() | 13.4万円 1.2万円 | 13.4万円 13.4万円 | 1LDK 25.33m2 | 築3年 | 総武本線 錦糸町駅 徒歩6分 総武・中央緩行線 錦糸町駅 徒歩6分 東京地下鉄半蔵門線 錦糸町駅 徒歩6分 東京都墨田区江東橋1丁目 | 詳細を見る | |








