賃貸マンション
田川ビルの賃貸物件情報(ワンルーム/4階)
| 家賃 | 管理費等 | 敷金 | 礼金 | 間取り | 専有面積 |
|---|---|---|---|---|---|
| 2.7万円 | 3,000円 | 2.7万円 | なし | ワンルーム | 14.5m2 |
入居決定でお祝い金最大100,000円
Point
来店しないお部屋探し!オンライン来店実施中!
提供:アパマンショップ紙屋町店

詳細情報 田川ビル
物件紹介
田川ビルは広島電鉄横川線寺町駅から徒歩2分にあり、駅近で通勤通学に便利なマンションです。
このお部屋は2階以上に位置しているので、通行人や周囲の住人からの視線が気になりにくく、防犯面でも安心です。
人気の角部屋で周囲の居住者の生活音も気になりにくく、また、フローリングのお部屋なのでお掃除もラクラク。
通信設備面では、インターネット接続が可能です(別途工事、契約料が必要な場合あり)。
このお部屋は2階以上に位置しているので、通行人や周囲の住人からの視線が気になりにくく、防犯面でも安心です。
人気の角部屋で周囲の居住者の生活音も気になりにくく、また、フローリングのお部屋なのでお掃除もラクラク。
通信設備面では、インターネット接続が可能です(別途工事、契約料が必要な場合あり)。
お金・契約の情報
※「-」と表示されているものは、実際は料金が発生するものもございます。詳細はお問い合わせください。
| 家賃 | 2.7万円 | 管理費・共益費 | 3,000円 |
|---|---|---|---|
| 敷金 | 2.7万円 | 礼金 | なし |
| 入居決定でお祝い金最大100,000円 | |||
| 保証金 | - | 償却・敷引 | - |
| 住宅保険料 | 4,000円(2年) | 更新料 | - |
| 保証会社利用 | 必須 | 保証会社名 | 全保連 |
| 保証会社費用 | - | 保証会社備考 | 必加入 全保連 初回_20,000円、毎年13,000円 |
| 契約形態 | - | 契約期間 | 2年 |
| 入居・引渡期間 | 相談 | 現況 | - |
| 契約備考 | 入居時カギ交換代(税込) 8800円 | ||
部屋の情報
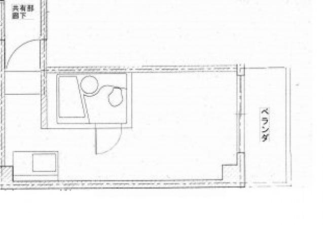
| 間取り | ワンルーム | 専有面積 | 14.5m2 |
|---|---|---|---|
| 間取り詳細 | 洋室(8帖) | ||
| 所在階 / 向き | 4階 / 東 | バルコニー面積 | - |
| 水道 / ガス | - | ||
| 設備 | バルコニー、フローリング、シャワー、給湯 | ||
| 当社物件ID | 23159782 | ||
建物の情報
| 建物名 | 田川ビル | ||
|---|---|---|---|
| 所在地 | 広島県広島市中区十日市町2丁目 | ||
| 交通 | 広島電鉄横川線 十日市町駅 徒歩3分 | ||
| 階数 | 4階建 | 総戸数 | - |
| 築年月 | 1981年12月 / 築45年 | エレベーター | - |
| 駐車場 | - | バイク置き場 | - |
| 駐輪場 | - | 管理人/管理会社 | - |
| 周辺環境 | その他 (株)ユアーズ/十日市店 徒歩3分(169m) その他 ファミリーマート西十日市店 徒歩3分(199m) その他 ローソン 徒歩3分(232m) その他 広島十日市郵便局 徒歩4分(291m) その他 デイリーヤマザキ広島十日市店 徒歩6分(405m) その他 (株)広島銀行/本川支店 徒歩4分(268m) その他 もみじ銀行堺町支店 徒歩6分(444m) その他 (株)スパーク/堺町店 徒歩9分(680m) | ||
| 建物種別 | マンション | 建物構造 | RC(鉄筋コンクリート) |
この部屋の取扱い不動産会社
| 会社名 | アパマンショップ広島宇品店 | ||
|---|---|---|---|
| 所在地 | 広島県広島市南区宇品神田1丁目 2-3アポイントビル宇品神田1F | 交通 | 広島電鉄宇品線県病院前から徒歩2分 |
| 営業時間 | 10:00〜18:00 | 定休日 | - |
| 免許番号 | 国土交通大臣(4)7268 | 取引態様 | 仲介 |
| 不動産会社管理番号 | 96938277 | 当社管理番号 | 4 |
| 所属団体 | (公社)広島県宅地建物取引業協会 | ||
| 公正取引協議会 | 中国地区不動産公正取引協議会加盟 | ||
| 取扱い物件情報 | 物件詳細へ | ||
※各種情報と現状に差異がある場合は、現状優先となります。問い合わせをすることで、より詳しい条件、情報を確認する事ができます。
提供:アパマンショップ広島宇品店
この物件が気になったら掲載期限まであと8日
田川ビルに条件(家賃・エリア)が近い物件一覧
| 写真 | 家賃 管理費等 | 敷金 礼金 | 間取り 専有面積 | 築年数 | 最寄り駅 所在地 | キープ | 詳細 |
|---|---|---|---|---|---|---|---|
マンション レオパレスハーモニー(1K/2階) | |||||||
![]() | 3.7万円 4,500円 | なし 3.7万円 | 1K 19.87m2 | 築19年 | 呉線 広駅 徒歩13分 広島県呉市広両谷3丁目 | 詳細を見る | |
マンション アルソーレ佐方(ワンルーム/3階) | |||||||
![]() | 4.3万円 なし | 8.6万円 4.3万円 | ワンルーム 21.45m2 | 築36年 | 広島電鉄宮島線 山陽女学園前駅 徒歩9分 広島電鉄宮島線 楽々園駅 徒歩12分 JR山陽本線 廿日市駅 徒歩16分 広島県廿日市市佐方 | 詳細を見る | |
マンション グリーンハウス河原町(1DK/5階) | |||||||
![]() | 4.2万円 なし | 8.4万円 4.2万円 | 1DK 25m2 | 築42年 | 広島電鉄江波線 舟入町駅 徒歩2分 広島県広島市中区河原町 | 詳細を見る | |
アパート アビリオ西条中央(ワンルーム/2階) | |||||||
![]() | 3.2万円 なし | なし 3.2万円 | ワンルーム 23.4m2 | 築36年 | 山陽本線 西条駅(広島) 徒歩30分 広島県東広島市西条中央4丁目 | 詳細を見る | |
マンション ブランシェ65(1K/2階) | |||||||
![]() | 3.1万円 3,000円 | なし 3.1万円 | 1K 20.16m2 | 築31年 | 広島県東広島市西条中央7丁目 | 詳細を見る | |
アパート パストラルハイムみそのう(1K/2階) | |||||||
![]() | 3.7万円 なし | なし 3.7万円 | 1K 26.5m2 | 築33年 | 広島県東広島市西条町御薗宇 | 詳細を見る | |
マンション ARCナカシマ壱番館(1K/3階) | |||||||
![]() | 4万円 なし | 4万円 4万円 | 1K 23.36m2 | 築35年 | 広島電鉄本線 天満町駅 徒歩10分 広島電鉄横川線 十日市町駅 徒歩13分 JR山陽本線 横川駅(広島) 徒歩23分 広島県広島市西区中広町 | 詳細を見る | |
アパート レオパレスコリーヌ(1K/2階) | |||||||
![]() | 3.9万円 4,500円 | なし 3.9万円 | 1K 26.08m2 | 築22年 | 呉線 広駅 徒歩17分 広島県呉市広白岳5丁目 | 詳細を見る | |








