賃貸マンション
シルエット元代々木 事務所SOHO可の賃貸物件情報(ワンルーム/2階)
| 家賃 | 管理費等 | 敷金 | 礼金 | 間取り | 専有面積 |
|---|---|---|---|---|---|
| 23.1万円 | 7,000円 | 46.2万円 | 46.2万円 | ワンルーム | 42m2 |
入居決定でお祝い金最大100,000円
- 保証金
- -
- 償却・敷引
- -
- 築年数
- 築23年
- 所在階
- 2階
- 向き
- 南西
Point
店舗SOHO事務所 相談可能です。※敷金2ヶ月増※賃料及び管理費、礼金に消費税が課税されます。
提供:(株)住建ハウジング上原支店(SUUMO経由)

詳細情報 シルエット元代々木 事務所SOHO可
物件紹介
シルエット元代々木 事務所SOHO可は小田急線代々木八幡駅から徒歩6分にあり、駅近で通勤通学に便利なマンションです。
このお部屋は2階以上に位置しているので通行人や周囲の住人からの視線が気になりにくく、建物のエントランスはオートロックがついているので防犯性が高くなっています。
おしゃれなデザイナーズ物件!人気の南向きのお部屋。キッチンはシステムキッチン仕様になっていますので、お料理好きの方にもぴったり。また、バス・トイレは別で、のんびりお風呂タイムも楽しめるでしょう。
床暖房があり、冬も足元から暖かく快適に過ごすことができます。共用部には宅配ボックスが設定されているので、不在の時にも荷物を受け取ることができます。
このお部屋は2階以上に位置しているので通行人や周囲の住人からの視線が気になりにくく、建物のエントランスはオートロックがついているので防犯性が高くなっています。
おしゃれなデザイナーズ物件!人気の南向きのお部屋。キッチンはシステムキッチン仕様になっていますので、お料理好きの方にもぴったり。また、バス・トイレは別で、のんびりお風呂タイムも楽しめるでしょう。
床暖房があり、冬も足元から暖かく快適に過ごすことができます。共用部には宅配ボックスが設定されているので、不在の時にも荷物を受け取ることができます。
お金・契約の情報
※「-」と表示されているものは、実際は料金が発生するものもございます。詳細はお問い合わせください。
| 家賃 | 23.1万円 | 管理費・共益費 | 7,000円 |
|---|---|---|---|
| 敷金 | 46.2万円 | 礼金 | 46.2万円 |
| 入居決定でお祝い金最大100,000円 | |||
| 保証金 | - | 償却・敷引 | - |
| 住宅保険料 | - | 更新料 | - |
| 保証会社利用 | 必須 | 保証会社名 | 日本セーフティー |
| 保証会社費用 | - | 保証会社備考 | 日本セーフティー利用必 初回保証料:賃料総額40%~(要確認) |
| 契約形態 | - | 契約期間 | - |
| 入居・引渡期間 | 即時 | 現況 | - |
| 入居可能条件 | 事務所可 | ||
| 契約備考 | ワンルーム 事務所利用相談 普通借家2年 バストイレ別、エアコン、ガスコンロ対応、オートロック、システムキッチン、脱衣所、洗面所独立、2口コンロ、駐輪場、宅配ボックス、即入居可、対面式キッチン、24時間緊急通報システム、デザイナーズ、2沿線利用可、敷金2ヶ月、床暖房、眺望良好、事務所相談、カーポート、始発駅、2駅利用可、駅徒歩10分以内、電動シャッター車庫、平面駐車場、南西向き、当社管理物件、セキュリティ会社加入済、寝室10畳以上、南面バルコニー、ダウンライト、礼金2ヶ月、通風良好 | ||
部屋の情報
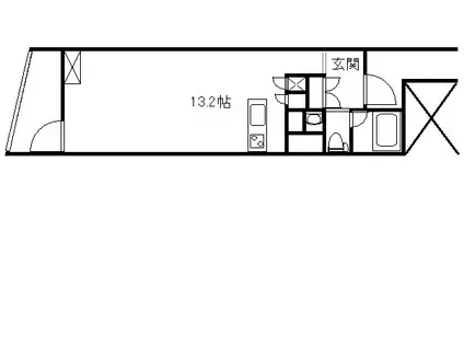
| 間取り | ワンルーム | 専有面積 | 42m2 |
|---|---|---|---|
| 所在階 / 向き | 2階 / 南西 | バルコニー面積 | - |
| 水道 / ガス | - | ||
| 設備 | バス・トイレ別、2階以上、オートロック、宅配ボックス、システムキッチン、エアコン、南向き、バルコニー、洗髪洗面化粧台、床暖房、2口コンロ、コンロ:ガス、デザイナーズ | ||
| 当社物件ID | 158400733 | ||
建物の情報
| 建物名 | シルエット元代々木 事務所SOHO可 | ||
|---|---|---|---|
| 所在地 | 東京都渋谷区元代々木町 | ||
| 交通 | 小田急線 代々木八幡駅 徒歩6分 東京メトロ千代田線 代々木上原駅 徒歩6分 | ||
| 階数 | 5階建 | 総戸数 | - |
| 築年月 | 2003年04月 / 築23年 | エレベーター | - |
| 駐車場 | 空有 44000円/屋根付駐 | バイク置き場 | - |
| 駐輪場 | あり | 管理人/管理会社 | - |
| 建物種別 | マンション | 建物構造 | RC(鉄筋コンクリート) |
この部屋の取扱い不動産会社
| 会社名 | (株)住建ハウジング上原支店(SUUMO経由) | ||
|---|---|---|---|
| 所在地 | 東京都渋谷区西原3-11-7 | 交通 | - |
| 営業時間 | 9:00~19:00 | 定休日 | 水曜 |
| 免許番号 | 国土交通大臣3766 | 取引態様 | 仲介 |
| 不動産会社管理番号 | 100386388016 | 当社管理番号 | 89 |
| 取扱い物件情報 | 物件詳細へ | ||
※各種情報と現状に差異がある場合は、現状優先となります。問い合わせをすることで、より詳しい条件、情報を確認する事ができます。
提供:(株)住建ハウジング上原支店(SUUMO経由)
この物件が気になったら掲載期限まであと11日
シルエット元代々木 事務所SOHO可に条件(家賃・エリア)が近い物件一覧
| 写真 | 家賃 管理費等 | 敷金 礼金 | 間取り 専有面積 | 築年数 | 最寄り駅 所在地 | キープ | 詳細 |
|---|---|---|---|---|---|---|---|
マンション ラ・デファンス高輪台(2LDK/8階) | |||||||
![]() | 27万円 1万円 | なし 27万円 | 2LDK 52.02m2 | 築31年 | 都営浅草線 高輪台駅 徒歩3分 都営浅草線 五反田駅 徒歩7分 京急本線 品川駅 徒歩14分 東京都品川区東五反田 | 詳細を見る | |
マンション 第19大協ビル(ワンルーム/6階) | |||||||
![]() | 15.95万円 2万円 | 43.5万円 14.5万円 | ワンルーム 50.57m2 | 築45年 | JR山手線 新橋駅 徒歩7分 都営大江戸線 汐留駅 徒歩7分 都営三田線 御成門駅 徒歩8分 東京都港区新橋 | 詳細を見る | |
マンション ザ・グラヴィティ新宿(2DK/2階) | |||||||
![]() | 23万円 1.2万円 | 23万円 なし | 2DK 37.9m2 | 築1年 | JR山手線 新大久保駅 徒歩5分 JR中央線 大久保駅(東京) 徒歩7分 都営大江戸線 東新宿駅 徒歩9分 東京都新宿区百人町 | 詳細を見る | |
マンション ノースウエストヒル(1LDK/7階) | |||||||
![]() | 19.3万円 なし | 19.3万円 19.3万円 | 1LDK 62.18m2 | 築37年 | 都営大江戸線 牛込柳町駅 徒歩2分 東京メトロ東西線 早稲田駅(メトロ) 徒歩14分 都営新宿線 曙橋駅 徒歩15分 東京都新宿区原町 | 詳細を見る | |
マンション GRAND VERT(1LDK/2階) | |||||||
![]() | 19.5万円 8,000円 | なし 29.25万円 | 1LDK 44.48m2 | 築5年 | 小田急線 下北沢駅 徒歩10分 京王井の頭線 池ノ上駅 徒歩10分 東急田園都市線 三軒茶屋駅 徒歩15分 東京都世田谷区代沢 | 詳細を見る | |
マンション ウエリスアーバン中野坂上(1LDK/3階) | |||||||
![]() | 21.1万円 1.2万円 | 21.1万円 なし | 1LDK 40.32m2 | 築5年 | 東京地下鉄丸ノ内線 中野坂上駅 徒歩9分 東京地下鉄丸ノ内線 新中野駅 徒歩10分 東京都中野区中央2丁目 | 詳細を見る | |
マンション シティスクエア恵比寿(1DK/10階) | |||||||
![]() | 18.5万円 1.5万円 | 18.5万円 18.5万円 | 1DK 26.1m2 | 築28年 | JR山手線 恵比寿駅 徒歩5分 東急東横線 代官山駅 徒歩7分 東急東横線 中目黒駅 徒歩11分 東京都渋谷区恵比寿南 | 詳細を見る | |








