賃貸アパート
TACTの賃貸物件情報(1K/2階)
| 家賃 | 管理費等 | 敷金 | 礼金 | 間取り | 専有面積 |
|---|---|---|---|---|---|
| 4.3万円 | 2,000円 | なし | なし | 1K | 25.27m2 |
入居決定でお祝い金最大100,000円
- 保証金
- -
- 償却・敷引
- -
- 築年数
- 築38年
- 所在階
- 2階
- 向き
- 南
Point
高崎市内のお部屋探しはヤマダ不動産にお任せ下さい!!LINE対応も可能です。お問い合わせの際「LINE対応希望」と一言添えてくださいm(__)m
提供:(株)ふれあいネットワーク(SUUMO経由)

詳細情報 TACT
物件紹介
TACTはJR信越本線北高崎駅から徒歩16分にあるアパートです。
このお部屋は2階以上に位置しているので、通行人や周囲の住人からの視線が気になりにくく、防犯面でも安心。インターホンにはTVモニタもついているため、相手の顔を確認してから来客対応することができます。
おしゃれなデザイナーズ物件!人気の南向きのお部屋。室内にはウォークインクローゼットがありますので、たくさんの荷物も効率的に収納ができます。バス・トイレ別の仕様で、のんびりお風呂タイムも楽しめます。
通信設備面では、インターネットが無料で使えるので、月々の出費を抑えられるのも魅力です。また、CATVにも対応しているので、おうち時間も充実するでしょう(別途工事、CATVの契約料等が必要な場合あり)。
共用部には宅配ボックスが設定されているので、不在の時にも荷物を受け取ることができます。
このお部屋は2階以上に位置しているので、通行人や周囲の住人からの視線が気になりにくく、防犯面でも安心。インターホンにはTVモニタもついているため、相手の顔を確認してから来客対応することができます。
おしゃれなデザイナーズ物件!人気の南向きのお部屋。室内にはウォークインクローゼットがありますので、たくさんの荷物も効率的に収納ができます。バス・トイレ別の仕様で、のんびりお風呂タイムも楽しめます。
通信設備面では、インターネットが無料で使えるので、月々の出費を抑えられるのも魅力です。また、CATVにも対応しているので、おうち時間も充実するでしょう(別途工事、CATVの契約料等が必要な場合あり)。
共用部には宅配ボックスが設定されているので、不在の時にも荷物を受け取ることができます。
お金・契約の情報
※「-」と表示されているものは、実際は料金が発生するものもございます。詳細はお問い合わせください。
| 家賃 | 4.3万円 | 管理費・共益費 | 2,000円 |
|---|---|---|---|
| 敷金 | なし | 礼金 | なし |
| 入居決定でお祝い金最大100,000円 | |||
| 保証金 | - | 償却・敷引 | - |
| 住宅保険料 | - | 更新料 | - |
| 保証会社利用 | 必須 | 保証会社名 | - |
| 保証会社費用 | - | 保証会社備考 | 保証会社利用必 初回1万円。毎月総賃料の2%が保証料。 |
| 契約形態 | - | 契約期間 | - |
| 入居・引渡期間 | - | 現況 | - |
| 契約備考 | 巡回管理/リフォーム:2017年8、9月室内外2017年9月リノベーション済み 合計1.65万円(内訳:鍵交換代1.65万円) 更新料 賃料1.00ヶ月分 1K 学生希望/女性限定/単身者限定/子供不可/事務所利用不可/ルームシェア不可 普通借家2年 損保【1.6万円2年】 バストイレ別、エアコン、TVインターホン、室内洗濯置、陽当り良好、シューズボックス、南向き、追焚機能浴室、温水洗浄便座、脱衣所、洗面所独立、洗面化粧台、駐輪場、宅配ボックス、CATV、礼金不要、最上階、敷金不要、3口以上コンロ、防犯カメラ、オートバス、グリル付、ウォークインクロゼット、内外装リフォーム済、保証人不要、デザイナーズ、2沿線利用可、ネット専用回線、駅まで平坦、ネット使用料不要、キッチンに窓、内装リフォーム済、平坦地、南面リビング、外装リフォーム済、前面棟無、始発駅、2駅利用可、3駅以上利用可、3沿線以上利用可、上階無し、平面駐車場、プロパンガス、南面バルコニー、ダウンライト、高速ネット対応、LAN、リノベーション、敷金・礼金不要、保証会社利用可、全室照明付、通風良好 入居日:'26年3月中旬 | ||
部屋の情報
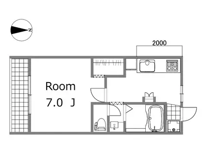
| 間取り | 1K | 専有面積 | 25.27m2 |
|---|---|---|---|
| 所在階 / 向き | 2階 / 南 | バルコニー面積 | - |
| 水道 / ガス | - | ||
| 設備 | バス・トイレ別、2階以上、テレビドアホン、宅配ボックス、ウォークインクローゼット、追い焚き、インターネット対応、エアコン、温水洗浄便座、南向き、バルコニー、洗髪洗面化粧台、2口コンロ、デザイナーズ、CATV、インターネット使用料無料、洗濯機:室内 | ||
| 当社物件ID | 28936939 | ||
建物の情報
| 建物名 | TACT | ||
|---|---|---|---|
| 所在地 | 群馬県高崎市飯塚町 | ||
| 交通 | JR信越本線 北高崎駅 徒歩16分 JR上越線 高崎問屋町駅 徒歩32分 JR高崎線 高崎駅(JR) 徒歩47分 | ||
| 階数 | 2階建 | 総戸数 | 12戸 |
| 築年月 | 1988年07月 / 築38年 | エレベーター | - |
| 駐車場 | 近隣 50m5500円/駐2台可 | バイク置き場 | - |
| 駐輪場 | あり | 管理人/管理会社 | - |
| 建物種別 | アパート | 建物構造 | 木造 |
この部屋の取扱い不動産会社
| 会社名 | (株)ヤマダホームズYAMADA TRUST 高崎店(SUUMO経由) | ||
|---|---|---|---|
| 所在地 | 群馬県高崎市江木町 1421-2 | 交通 | - |
| 営業時間 | 10:00~19:00 | 定休日 | 水曜日 |
| 免許番号 | 国土交通大臣382 | 取引態様 | 仲介 |
| 不動産会社管理番号 | 100482055650 | 当社管理番号 | 89 |
| 所属団体 | (一社)群馬県宅地建物取引業協会会員 | ||
| 公正取引協議会 | (公社)首都圏不動産公正取引協議会加盟 | ||
| 取扱い物件情報 | 物件詳細へ | ||
※各種情報と現状に差異がある場合は、現状優先となります。問い合わせをすることで、より詳しい条件、情報を確認する事ができます。
提供:(株)ヤマダホームズYAMADA TRUST 高崎店(SUUMO経由)
この物件が気になったら掲載期限まであと10日
TACTに条件(家賃・エリア)が近い物件一覧
| 写真 | 家賃 管理費等 | 敷金 礼金 | 間取り 専有面積 | 築年数 | 最寄り駅 所在地 | キープ | 詳細 |
|---|---|---|---|---|---|---|---|
アパート レオパレスIRON(1K/2階) | |||||||
![]() | 5万円 4,000円 | なし 5万円 | 1K 20.28m2 | 築22年 | 湘南新宿ライン高海 高崎問屋町駅 徒歩13分 JR信越本線 北高崎駅 徒歩24分 湘南新宿ライン高海 井野駅(群馬) 徒歩29分 群馬県高崎市稲荷町 | 詳細を見る | |
アパート サウスヒル(2LDK/2階) | |||||||
![]() | 6.3万円 6,000円 | なし なし | 2LDK 58.96m2 | 築14年 | JR上越線 井野駅(群馬) 徒歩44分 JR上越線 高崎問屋町駅 徒歩51分 JR上越線 新前橋駅 徒歩53分 群馬県高崎市菅谷町 | 詳細を見る | |
アパート フィオレット(2DK/1階) | |||||||
![]() | 5.7万円 2,000円 | 5.7万円 なし | 2DK 51.15m2 | 築27年 | 両毛線 前橋駅 徒歩16分 群馬県前橋市六供町1丁目 | 詳細を見る | |
アパート エトワール藤倉B棟(2DK/1階) | |||||||
![]() | 3.8万円 なし | なし なし | 2DK 42m2 | 築36年 | JR八高線 群馬藤岡駅 徒歩25分 JR八高線 丹荘駅 徒歩58分 JR高崎線 新町駅(群馬) 徒歩69分 群馬県藤岡市小林 | 詳細を見る | |
マンション コンチェルトハイツA(1K/2階) | |||||||
![]() | 3.2万円 なし | 3.2万円 なし | 1K 19m2 | 築41年 | 高崎線 高崎駅(JR) 徒歩13分 上信電鉄上信線 南高崎駅 徒歩13分 群馬県高崎市若松町 | 詳細を見る | |
アパート ムーンライトA(1LDK/1階) | |||||||
![]() | 6.5万円 5,000円 | なし なし | 1LDK 45.74m2 | 築13年 | JR上越線 新前橋駅 徒歩28分 群馬県高崎市中尾町 | 詳細を見る | |
アパート TAKASAKITOTTOSV(1LDK/1階) | |||||||
![]() | 6.55万円 2,400円 | なし 6.55万円 | 1LDK 47.08m2 | 築9年 | 湘南新宿ライン高海 高崎問屋町駅 徒歩16分 湘南新宿ライン高海 井野駅(群馬) 徒歩24分 群馬県高崎市貝沢町 | 詳細を見る | |







