賃貸マンション
フロンティア横濱イーストの賃貸物件情報(1K/5階)
| 家賃 | 管理費等 | 敷金 | 礼金 | 間取り | 専有面積 |
|---|---|---|---|---|---|
| 7.8万円 | 8,000円 | なし | 7.8万円 | 1K | 21.78m2 |
入居決定でお祝い金最大100,000円
- 保証金
- -
- 償却・敷引
- -
- 築年数
- 築10年
- 所在階
- 5階
- 向き
- -
Point
LINE 公式アカウント【横浜賃貸リサーチ】((1)お名前(2)物件URL(3)問い合わせ内容)の3点を送信下さいませ♪不動産業界歴10年以上の経験豊富なスタッフが人脈と知識を生かして最良のお部屋を紹介します。
提供:令和ハウジング (株)さくらスタイル令和ハウジング(SUUMO経由)

詳細情報 フロンティア横濱イースト
物件紹介
フロンティア横濱イーストはJR京浜東北線東神奈川駅から徒歩5分にあり、駅近で通勤通学に便利なマンションです。
このお部屋は2階以上に位置しているので、通行人や周囲の住人からの視線が気になりにくく、防犯面でも安心。建物のエントランスはオートロックがついており、インターホンにはTVモニタもついているため、相手の顔を確認してから来客対応することができます。
人気の角部屋で周囲の居住者の生活音も気になりにくく、また、フローリングのお部屋なのでお掃除もラクラク。室内にはウォークインクローゼットがありますので、たくさんの荷物も効率的に収納ができます。キッチンはシステムキッチン仕様になっていますので、お料理好きの方にもぴったり。バス・トイレは別なので、のんびりお風呂タイムも楽しめるでしょう。また、雨の日でも浴室乾燥機を使えば、お洗濯も問題ありません。
通信設備面では、インターネット接続が可能です。また、BSアンテナ・CSアンテナもありますので、おうち時間も充実するでしょう(別途工事、契約料が必要な場合あり)。
建物にはエレベーターがついているので、重い荷物があっても安心。共用部には宅配ボックスが設定されているので、不在の時にも荷物を受け取ることができます。
このお部屋は2階以上に位置しているので、通行人や周囲の住人からの視線が気になりにくく、防犯面でも安心。建物のエントランスはオートロックがついており、インターホンにはTVモニタもついているため、相手の顔を確認してから来客対応することができます。
人気の角部屋で周囲の居住者の生活音も気になりにくく、また、フローリングのお部屋なのでお掃除もラクラク。室内にはウォークインクローゼットがありますので、たくさんの荷物も効率的に収納ができます。キッチンはシステムキッチン仕様になっていますので、お料理好きの方にもぴったり。バス・トイレは別なので、のんびりお風呂タイムも楽しめるでしょう。また、雨の日でも浴室乾燥機を使えば、お洗濯も問題ありません。
通信設備面では、インターネット接続が可能です。また、BSアンテナ・CSアンテナもありますので、おうち時間も充実するでしょう(別途工事、契約料が必要な場合あり)。
建物にはエレベーターがついているので、重い荷物があっても安心。共用部には宅配ボックスが設定されているので、不在の時にも荷物を受け取ることができます。
お金・契約の情報
※「-」と表示されているものは、実際は料金が発生するものもございます。詳細はお問い合わせください。
| 家賃 | 7.8万円 | 管理費・共益費 | 8,000円 |
|---|---|---|---|
| 敷金 | なし | 礼金 | 7.8万円 |
| 入居決定でお祝い金最大100,000円 | |||
| 保証金 | - | 償却・敷引 | - |
| 住宅保険料 | - | 更新料 | - |
| 保証会社利用 | 必須 | 保証会社名 | - |
| 保証会社費用 | - | 保証会社備考 | 保証会社利用必 初回:総賃料60%/年1万 |
| 契約形態 | - | 契約期間 | - |
| 入居・引渡期間 | 相談 | 現況 | - |
| 契約備考 | 巡回管理/クリーニング費:55000円/24Hサポート:16500円/鍵交換:27500円/文書作成費:5500円/町会費:月300円/ 1K 普通借家2年 損保【要】 バストイレ別、バルコニー、エアコン、ガスコンロ対応、クロゼット、フローリング、TVインターホン、浴室乾燥機、オートロック、室内洗濯置、シューズボックス、システムキッチン、角住戸、温水洗浄便座、脱衣所、エレベーター、洗面所独立、洗面化粧台、2口コンロ、宅配ボックス、光ファイバー、防犯カメラ、保証人不要、2沿線利用可、ディンプルキー、ネット専用回線、2駅利用可、3駅以上利用可、3沿線以上利用可、敷地内ごみ置き場、都市ガス、IT重説対応物件 | ||
部屋の情報
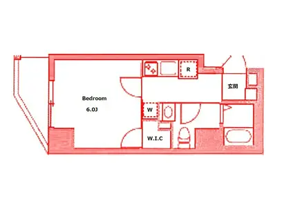
| 間取り | 1K | 専有面積 | 21.78m2 |
|---|---|---|---|
| 所在階 / 向き | 5階 / - | バルコニー面積 | - |
| 水道 / ガス | - | ||
| 設備 | バス・トイレ別、2階以上、オートロック、テレビドアホン、宅配ボックス、浴室乾燥機、インターネット対応、システムキッチン、エアコン、エレベーター、温水洗浄便座、角部屋、バルコニー、フローリング、洗髪洗面化粧台、2口コンロ、コンロ:ガス、洗濯機:室内 | ||
| 当社物件ID | 160137417 | ||
建物の情報
| 建物名 | フロンティア横濱イースト | ||
|---|---|---|---|
| 所在地 | 神奈川県横浜市神奈川区広台太田町 | ||
| 交通 | JR京浜東北線 東神奈川駅 徒歩5分 東急東横線 反町駅 徒歩5分 京急本線 京急東神奈川駅 徒歩10分 | ||
| 階数 | 8階建 | 総戸数 | - |
| 築年月 | 2016年03月 / 築10年 | エレベーター | あり |
| 駐車場 | なし | バイク置き場 | - |
| 駐輪場 | - | 管理人/管理会社 | - |
| 周辺環境 | その他 ローソンストア100東神奈川店(コンビニ)まで50m その他 ビッグヨーサン東神奈川店(スーパー)まで137m その他 カクヤス東神奈川店(その他)まで210m その他 クリエイトSD横浜反町店(ドラッグストア)まで386m その他 オリジン弁当反町店(飲食店)まで417m その他 イオンスタイル東神奈川(ショッピングセンター)まで612m | ||
| 建物種別 | マンション | 建物構造 | RC(鉄筋コンクリート) |
この部屋の取扱い不動産会社
| 会社名 | 横浜賃貸リサーチ(株)Kanooy(SUUMO経由) | ||
|---|---|---|---|
| 所在地 | 神奈川県横浜市港北区新横浜3-19-11 加瀬ビル88-301 | 交通 | - |
| 営業時間 | 10:00~19:00 | 定休日 | 水曜日 |
| 免許番号 | 神奈川県知事30928 | 取引態様 | 仲介 |
| 不動産会社管理番号 | 100480612631 | 当社管理番号 | 89 |
| 所属団体 | (公社)神奈川県宅地建物取引業協会会員 | ||
| 公正取引協議会 | (公社)首都圏不動産公正取引協議会加盟 | ||
| 取扱い物件情報 | 物件詳細へ | ||
※各種情報と現状に差異がある場合は、現状優先となります。問い合わせをすることで、より詳しい条件、情報を確認する事ができます。
提供:横浜賃貸リサーチ(株)Kanooy(SUUMO経由)
この物件が気になったら掲載期限まであと11日
フロンティア横濱イーストに条件(家賃・エリア)が近い物件一覧
| 写真 | 家賃 管理費等 | 敷金 礼金 | 間取り 専有面積 | 築年数 | 最寄り駅 所在地 | キープ | 詳細 |
|---|---|---|---|---|---|---|---|
マンション リブリ ISHIWATA(1K/2階) | |||||||
![]() | 7.5万円 4,000円 | なし 7.5万円 | 1K 26.08m2 | 築10年 | JR京浜東北線 川崎駅 徒歩11分 JR鶴見線 浜川崎駅 徒歩11分 JR南武線 小田栄駅 徒歩16分 神奈川県川崎市川崎区浜町 | 詳細を見る | |
アパート ピュアS(ワンルーム/1階) | |||||||
![]() | 5.7万円 5,500円 | なし 5.7万円 | ワンルーム 24m2 | 築20年 | 小田急江ノ島線 高座渋谷駅 徒歩2分 小田急江ノ島線 桜ケ丘駅 徒歩28分 神奈川県大和市渋谷 | 詳細を見る | |
マンション レックス武蔵中原(1K/2階) | |||||||
![]() | 8.5万円 1万円 | なし 8.5万円 | 1K 27.72m2 | 築18年 | JR南武線 武蔵中原駅 徒歩7分 JR南武線 武蔵新城駅 徒歩20分 JR南武線 武蔵小杉駅 徒歩26分 神奈川県川崎市中原区下小田中 | 詳細を見る | |
マンション 石川ビル(2DK/3階) | |||||||
![]() | 6万円 なし | 6万円 6万円 | 2DK 37.26m2 | 築47年 | 京急本線 県立大学駅 徒歩6分 神奈川県横須賀市安浦町 | 詳細を見る | |
マンション HILLMENT(1LDK/1階) | |||||||
![]() | 12万円 4,000円 | 12万円 12万円 | 1LDK 41.4m2 | 築1年 | 東急田園都市線 二子新地駅 徒歩18分 東急田園都市線 高津駅(神奈川) 徒歩22分 JR南武線 武蔵新城駅 徒歩22分 神奈川県川崎市高津区北見方 | 詳細を見る | |
アパート パークサイドはまゆう(1K/1階) | |||||||
![]() | 5.7万円 2,000円 | なし なし | 1K 27.54m2 | 築5年 | 京浜急行電鉄本線 横須賀中央駅 徒歩12分 神奈川県横須賀市上町4丁目 | 詳細を見る | |
マンション セブンハイツ(2DK/2階) | |||||||
![]() | 7.7万円 3,000円 | なし なし | 2DK 38.97m2 | 築40年 | 京浜急行電鉄大師線 鈴木町駅 徒歩5分 神奈川県川崎市川崎区伊勢町 | 詳細を見る | |
アパート アーバンコンテンポラリーM(1LDK/1階) | |||||||
![]() | 8.6万円 6,000円 | なし 8.6万円 | 1LDK 45.5m2 | 築16年 | 小田急江ノ島線 高座渋谷駅 徒歩4分 小田急江ノ島線 桜ケ丘駅 徒歩23分 小田急江ノ島線 長後駅 徒歩36分 神奈川県大和市渋谷 | 詳細を見る | |








