賃貸マンション
み・カーサ大山の賃貸物件情報(1LDK/2階)
| 家賃 | 管理費等 | 敷金 | 礼金 | 間取り | 専有面積 |
|---|---|---|---|---|---|
| 19.2万円 | 2,000円 | 19.2万円 | 19.2万円 | 1LDK | 52.2m2 |
入居決定でお祝い金最大100,000円
Point
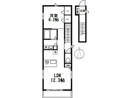
環境・日当り良好、設備充実の1LDK、2名入居可、4方向に窓有、バストイレ別、ウォシュレット、室内洗濯機置場、シャンプードレッサー、浴室乾燥暖房、対面カウンターキッチン、ピクチャーレール、自転車駐輪可
提供:東京三誠不動産(株)(SUUMO経由)

詳細情報 み・カーサ大山
物件紹介
み・カーサ大山は小田急線代々木上原駅から徒歩6分にあり、駅近で通勤通学に便利なマンションです。
このお部屋は2階以上に位置しているので、通行人や周囲の住人からの視線が気になりにくく、防犯面でも安心。インターホンにはTVモニタもついているため、相手の顔を確認してから来客対応することができます。
人気の南向きのお部屋。また、フローリングなのでお掃除もラクラク。キッチンはシステムキッチン仕様になっていますので、お料理好きの方にもぴったり。また、バス・トイレは別で、のんびりお風呂タイムも楽しめるでしょう。
通信設備面ではCATVに対応しているので、おうち時間も充実するでしょう(別途工事、契約料が必要な場合あり)。
このお部屋は2階以上に位置しているので、通行人や周囲の住人からの視線が気になりにくく、防犯面でも安心。インターホンにはTVモニタもついているため、相手の顔を確認してから来客対応することができます。
人気の南向きのお部屋。また、フローリングなのでお掃除もラクラク。キッチンはシステムキッチン仕様になっていますので、お料理好きの方にもぴったり。また、バス・トイレは別で、のんびりお風呂タイムも楽しめるでしょう。
通信設備面ではCATVに対応しているので、おうち時間も充実するでしょう(別途工事、契約料が必要な場合あり)。
お金・契約の情報
※「-」と表示されているものは、実際は料金が発生するものもございます。詳細はお問い合わせください。
| 家賃 | 19.2万円 | 管理費・共益費 | 2,000円 |
|---|---|---|---|
| 敷金 | 19.2万円 | 礼金 | 19.2万円 |
| 入居決定でお祝い金最大100,000円 | |||
| 保証金 | - | 償却・敷引 | - |
| 住宅保険料 | - | 更新料 | - |
| 契約形態 | - | 契約期間 | - |
| 入居・引渡期間 | - | 現況 | - |
| 契約備考 | 環境・日当り良好、設備充実の1LDK、2名入居可、4方向に窓有、バストイレ別、ウォシュレット、室内洗濯機置場、シャンプードレッサー、浴室乾燥暖房、対面カウンターキッチン、ピクチャーレール、自転車駐輪可(無料) 1LDK 二人入居可 損保【1.5万円2年】 バストイレ別、バルコニー、エアコン、ガスコンロ対応、フローリング、シャワー付洗面台、TVインターホン、室内洗濯置、システムキッチン、南向き、追焚機能浴室、洗面所独立、駐輪場、CATV、最上階、照明付、2沿線利用可、駅徒歩10分以内、LDK12畳以上、シャッター 入居日:'26年1月下旬 | ||
部屋の情報
| 間取り | 1LDK | 専有面積 | 52.2m2 |
|---|---|---|---|
| 所在階 / 向き | 2階 / 南 | バルコニー面積 | - |
| 水道 / ガス | - | ||
| 設備 | バス・トイレ別、2階以上、テレビドアホン、追い焚き、システムキッチン、エアコン、南向き、バルコニー、フローリング、洗髪洗面化粧台、コンロ:ガス、CATV、洗濯機:室内 | ||
| 当社物件ID | 7008896 | ||
建物の情報
| 建物名 | み・カーサ大山 | ||
|---|---|---|---|
| 所在地 | 東京都渋谷区大山町 | ||
| 交通 | 小田急線 代々木上原駅 徒歩6分 東京メトロ千代田線 代々木上原駅 徒歩6分 | ||
| 階数 | 2階建 | 総戸数 | 2戸 |
| 築年月 | 2009年04月 / 築17年 | エレベーター | - |
| 駐車場 | なし | バイク置き場 | - |
| 駐輪場 | あり | 管理人/管理会社 | - |
| 周辺環境 | その他 ファミリーマート上原三丁目店(コンビニ)まで429m その他 まいばすけっと東北沢駅東口店(スーパー)まで540m その他 OdakyuOX代々木上原店(スーパー)まで528m その他 マルエツ代々木上原店(スーパー)まで738m その他 ローソン渋谷大山町店(コンビニ)まで60m その他 トモズアコルデ代々木上原店(ドラッグストア)まで528m | ||
| 建物種別 | マンション | 建物構造 | 鉄骨造 |
この部屋の取扱い不動産会社
| 会社名 | 東京三誠不動産(株)(SUUMO経由) | ||
|---|---|---|---|
| 所在地 | 東京都渋谷区西原3-3-3 三誠ビルディング1階 | 交通 | - |
| 営業時間 | 9時~19時 | 定休日 | 水曜日 |
| 免許番号 | 東京都知事23837 | 取引態様 | 仲介 |
| 不動産会社管理番号 | 100475165501 | 当社管理番号 | 89 |
| 所属団体 | (公社)東京都宅地建物取引業協会会員 | ||
| 公正取引協議会 | (公社)首都圏不動産公正取引協議会加盟 | ||
| 取扱い物件情報 | 物件詳細へ | ||
※各種情報と現状に差異がある場合は、現状優先となります。問い合わせをすることで、より詳しい条件、情報を確認する事ができます。
提供:東京三誠不動産(株)(SUUMO経由)
この物件が気になったら掲載期限まであと10日
み・カーサ大山に条件(家賃・エリア)が近い物件一覧
| 写真 | 家賃 管理費等 | 敷金 礼金 | 間取り 専有面積 | 築年数 | 最寄り駅 所在地 | キープ | 詳細 |
|---|---|---|---|---|---|---|---|
マンション 品川シーサイドビュータワー2(1K/17階) | |||||||
![]() | 15.1万円 1万円 | なし 22.65万円 | 1K 42.38m2 | 築23年 | 東京臨海高速鉄道 品川シーサイド駅 徒歩2分 東京都品川区東品川4丁目 | 詳細を見る | |
アパート フォレスタ世田谷(2LDK/2階) | |||||||
![]() | 18.5万円 1,000円 | 18.5万円 なし | 2LDK 47.7m2 | 築55年 | 東急池上線 雪が谷大塚駅 徒歩6分 東急東横線 田園調布駅 徒歩16分 東急目黒線 多摩川駅 徒歩16分 東京都世田谷区東玉川 | 詳細を見る | |
マンション レジディア大井町Ⅱ(ワンルーム/9階) | |||||||
![]() | 15.6万円 2万円 | なし なし | ワンルーム 30.24m2 | 築19年 | 東急大井町線 大井町駅 徒歩5分 東京都品川区大井1丁目 | 詳細を見る | |
マンション BLOOM深沢(3LDK/1階) | |||||||
![]() | 25.7万円 1.35万円 | 25.7万円 なし | 3LDK 71.14m2 | 築2年 | 東急大井町線 等々力駅 徒歩18分 東急大井町線 尾山台駅 徒歩18分 東急田園都市線 駒沢大学駅 徒歩23分 東京都世田谷区深沢4丁目 | 詳細を見る | |
マンション ジニア不動前(1DK/1階) | |||||||
![]() | 16.7万円 1.5万円 | 16.7万円 16.7万円 | 1DK 35.64m2 | 築5年 | 東急目黒線 不動前駅 徒歩7分 東急池上線 戸越銀座駅 徒歩11分 JR山手線 五反田駅 徒歩18分 東京都品川区西五反田 | 詳細を見る | |
マンション アルタイル 等々力(1LDK/3階) | |||||||
![]() | 16万円 8,000円 | 32万円 11.2万円 | 1LDK 41.25m2 | 築4年 | 東急大井町線 等々力駅 徒歩12分 東急大井町線 尾山台駅 徒歩13分 東急大井町線 上野毛駅 徒歩17分 東京都世田谷区等々力 | 詳細を見る | |
マンション ハイツ髙沢(1LDK/2階) | |||||||
![]() | 13.5万円 5,000円 | 13.5万円 27万円 | 1LDK 32.89m2 | 築7年 | 東急池上線 旗の台駅 徒歩5分 東急大井町線 荏原町駅 徒歩6分 横須賀線 西大井駅 徒歩21分 東京都品川区旗の台4丁目 | 詳細を見る | |
アパート 御殿山テラスⅡ(2LDK/1階) | |||||||
![]() | 23.9万円 3,000円 | 23.9万円 なし | 2LDK 57.6m2 | 築2年 | 山手線 大崎駅 徒歩8分 京浜急行電鉄本線 北品川駅 徒歩14分 東京都品川区北品川5丁目 | 詳細を見る | |









