賃貸マンション
パークアクシス赤坂見附の賃貸物件情報(ワンルーム/8階)
| 家賃 | 管理費等 | 敷金 | 礼金 | 間取り | 専有面積 |
|---|---|---|---|---|---|
| 16.4万円 | 1万円 | 16.4万円 | なし | ワンルーム | 25.38m2 |
入居決定でお祝い金最大100,000円
- 保証金
- -
- 償却・敷引
- -
- 築年数
- 築12年
- 所在階
- 8階
- 向き
- 南東
Point
成約実績豊富!当社のみの【限定条件】でご紹介できる物件多数ございます。新着情報を即時掲載!都内主要区の他、城南地区やベイエリアにも特化。高級賃貸ならクレアビジョンにお任せください。
提供:(株)CreaVision(SUUMO経由)

詳細情報 パークアクシス赤坂見附
物件紹介
パークアクシス赤坂見附は東京メトロ銀座線赤坂見附駅から徒歩3分にあり、駅近で通勤通学に便利なマンションです。
このお部屋は2階以上に位置しているので、通行人や周囲の住人からの視線が気になりにくく、防犯面でも安心。建物のエントランスはオートロックがついており、インターホンにはTVモニタもついているため、相手の顔を確認してから来客対応することができます。
おしゃれなデザイナーズ物件!また、楽器相談が可能な物件となっているので、楽器演奏をお考えの方はぜひ相談してみてください。人気の南向きのお部屋。また、フローリングなのでお掃除もラクラク。キッチンはシステムキッチン仕様になっていますので、お料理好きの方にもぴったり。バス・トイレは別なので、のんびりお風呂タイムも楽しめるでしょう。また、雨の日でも浴室乾燥機を使えば、お洗濯も問題ありません。
通信設備面では、インターネット接続が可能です。また、BSアンテナ・CSアンテナがありCATVにも対応しているので、おうち時間も充実するでしょう(別途工事、契約料が必要な場合あり)。
建物にはエレベーターがついているので、重い荷物があっても安心。共用部には宅配ボックスが設定されているので、不在の時にも荷物を受け取ることができます。また、ペット飼育の相談ができますので、あなたの大切な家族の一員も快適に暮らせるか、ぜひ確認してみてください。
このお部屋は2階以上に位置しているので、通行人や周囲の住人からの視線が気になりにくく、防犯面でも安心。建物のエントランスはオートロックがついており、インターホンにはTVモニタもついているため、相手の顔を確認してから来客対応することができます。
おしゃれなデザイナーズ物件!また、楽器相談が可能な物件となっているので、楽器演奏をお考えの方はぜひ相談してみてください。人気の南向きのお部屋。また、フローリングなのでお掃除もラクラク。キッチンはシステムキッチン仕様になっていますので、お料理好きの方にもぴったり。バス・トイレは別なので、のんびりお風呂タイムも楽しめるでしょう。また、雨の日でも浴室乾燥機を使えば、お洗濯も問題ありません。
通信設備面では、インターネット接続が可能です。また、BSアンテナ・CSアンテナがありCATVにも対応しているので、おうち時間も充実するでしょう(別途工事、契約料が必要な場合あり)。
建物にはエレベーターがついているので、重い荷物があっても安心。共用部には宅配ボックスが設定されているので、不在の時にも荷物を受け取ることができます。また、ペット飼育の相談ができますので、あなたの大切な家族の一員も快適に暮らせるか、ぜひ確認してみてください。
お金・契約の情報
※「-」と表示されているものは、実際は料金が発生するものもございます。詳細はお問い合わせください。
| 家賃 | 16.4万円 | 管理費・共益費 | 1万円 |
|---|---|---|---|
| 敷金 | 16.4万円 | 礼金 | なし |
| 入居決定でお祝い金最大100,000円 | |||
| 保証金 | - | 償却・敷引 | - |
| 住宅保険料 | - | 更新料 | - |
| 保証会社利用 | 利用可 | 保証会社名 | - |
| 保証会社費用 | - | 保証会社備考 | 保証会社利用可 貸主指定 |
| 契約形態 | 定期借家 | 契約期間 | 2年 |
| 入居・引渡期間 | - | 現況 | - |
| 入居可能条件 | 楽器相談、ペット相談 | ||
| 契約備考 | 通勤管理/退去時清掃費用借主負担 保証会社必須 定借2年 ペット相談可(敷金1ヶ月積み増し) 合計3.3万円(内訳:鍵交換費用) 退去時清掃費用55000円口座振替事務手数料110円/月 ワンルーム 単身者可/子供可/ペット相談/楽器相談 定期借家2年 損保【要】 バストイレ別、エアコン、クロゼット、フローリング、TVインターホン、浴室乾燥機、オートロック、室内洗濯置、シューズボックス、システムキッチン、追焚機能浴室、温水洗浄便座、エレベーター、洗面所独立、2口コンロ、駐輪場、宅配ボックス、CATV、光ファイバー、外壁タイル張り、BS・CS、防犯カメラ、ペット相談、グリル付、全居室洋室、保証人不要、敷金1ヶ月、バイク置場、全居室フローリング、デザイナーズ、ディンプルキー、CS、駅まで平坦、ダブルロックキー、楽器相談、耐震構造、3駅以上利用可、3沿線以上利用可、駅前、駅徒歩5分以内、24時間ゴミ出し可、敷地内ごみ置き場、東南向き、日勤管理、全居室8畳以上、都市ガス、BS、礼金1ヶ月、保証会社利用可、通風良好 敷金積み増し【ペット飼育の場合敷金2ヶ月(総額)】 入居日:'26年1月下旬 | ||
部屋の情報
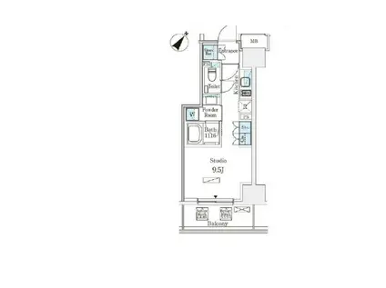
| 間取り | ワンルーム | 専有面積 | 25.38m2 |
|---|---|---|---|
| 所在階 / 向き | 8階 / 南東 | バルコニー面積 | - |
| 水道 / ガス | - | ||
| 設備 | バス・トイレ別、2階以上、オートロック、テレビドアホン、宅配ボックス、浴室乾燥機、追い焚き、インターネット対応、システムキッチン、エアコン、エレベーター、温水洗浄便座、南向き、フローリング、洗髪洗面化粧台、2口コンロ、デザイナーズ、CATV、CSアンテナ、BSアンテナ、洗濯機:室内 | ||
| 当社物件ID | 16025320 | ||
建物の情報
| 建物名 | パークアクシス赤坂見附 | ||
|---|---|---|---|
| 所在地 | 東京都港区赤坂 | ||
| 交通 | 東京メトロ銀座線 赤坂見附駅 徒歩3分 東京メトロ千代田線 赤坂駅(東京) 徒歩4分 東京メトロ有楽町線 永田町駅 徒歩9分 | ||
| 階数 | 13階建 | 総戸数 | - |
| 築年月 | 2015年01月 / 築12年 | エレベーター | あり |
| 駐車場 | なし | バイク置き場 | あり |
| 駐輪場 | あり | 管理人/管理会社 | - |
| 周辺環境 | その他 成城石井赤坂Bizタワー店(スーパー)まで328m その他 KINOKUNIYA entree赤坂Bizタワー店(スーパー)まで340m その他 ナチュラルローソン赤坂見附店(コンビニ)まで109m その他 薬屋リッチモンド赤坂店(ドラッグストア)まで93m その他 TSUTAYA赤坂店(レンタルビデオ)まで338m その他 三菱東京UFJ銀行赤坂見附支店(銀行)まで184m | ||
| 建物種別 | マンション | 建物構造 | RC(鉄筋コンクリート) |
この部屋の取扱い不動産会社
| 会社名 | (株)CreaVision(SUUMO経由) | ||
|---|---|---|---|
| 所在地 | 東京都港区麻布十番1-7-1 MGB麻布十番6階 | 交通 | - |
| 営業時間 | 10:00~20:00 | 定休日 | 水曜日 |
| 免許番号 | 国土交通大臣10590 | 取引態様 | 仲介 |
| 不動産会社管理番号 | 100484134833 | 当社管理番号 | 89 |
| 所属団体 | (公社)全日本不動産協会東京都本部会員 | ||
| 公正取引協議会 | (公社)首都圏不動産公正取引協議会加盟 | ||
| 取扱い物件情報 | 物件詳細へ | ||
※各種情報と現状に差異がある場合は、現状優先となります。問い合わせをすることで、より詳しい条件、情報を確認する事ができます。
提供:(株)CreaVision(SUUMO経由)
この物件が気になったら掲載期限まであと10日
パークアクシス赤坂見附に条件(家賃・エリア)が近い物件一覧
| 写真 | 家賃 管理費等 | 敷金 礼金 | 間取り 専有面積 | 築年数 | 最寄り駅 所在地 | キープ | 詳細 |
|---|---|---|---|---|---|---|---|
一戸建て 東京地下鉄東西線 木場駅 徒歩7分 築10年(2LDK) | |||||||
![]() | 24万円 なし | 48万円 24万円 | 2LDK 70.43m2 | 築10年 | 東京地下鉄東西線 木場駅 徒歩7分 東京都大江戸線 門前仲町駅 徒歩17分 京葉線 越中島駅 徒歩19分 東京都江東区木場6丁目 | 詳細を見る | |
マンション クロスレジデンス神田神保町(1DK/10階) | |||||||
![]() | 15.9万円 1.2万円 | 15.9万円 15.9万円 | 1DK 25.03m2 | 築2年 | 東京地下鉄半蔵門線 神保町駅 徒歩1分 東京地下鉄丸ノ内線 淡路町駅 徒歩8分 東京地下鉄東西線 九段下駅 徒歩9分 東京都千代田区神田神保町1丁目 | 詳細を見る | |
マンション プレール・ドゥーク東京CANAL(1K/6階) | |||||||
![]() | 10.6万円 1.1万円 | なし 10.6万円 | 1K 22.34m2 | 築20年 | 京葉線 潮見駅 徒歩7分 東京地下鉄有楽町線 豊洲駅 徒歩22分 東京地下鉄東西線 木場駅 徒歩23分 東京都江東区枝川3丁目 | 詳細を見る | |
マンション ONE ROOF FLAT TSUKISHIMA(1K/2階) | |||||||
![]() | 12.9万円 1.5万円 | 12.9万円 12.9万円 | 1K 25.02m2 | 築11年 | 東京地下鉄有楽町線 月島駅 徒歩4分 東京都大江戸線 月島駅 徒歩4分 東京都大江戸線 勝どき駅 徒歩6分 東京都中央区月島4丁目 | 詳細を見る | |
マンション 品川シーサイドビュータワー2(1K/17階) | |||||||
![]() | 15.1万円 1万円 | なし 22.65万円 | 1K 42.38m2 | 築23年 | 東京臨海高速鉄道 品川シーサイド駅 徒歩2分 東京都品川区東品川4丁目 | 詳細を見る | |
マンション レジディア大手町北(1K/4階) | |||||||
![]() | 16.6万円 1.5万円 | なし なし | 1K 25.02m2 | 築7年 | 山手線 神田駅(東京) 徒歩5分 東京地下鉄丸ノ内線 大手町駅(東京) 徒歩7分 東京地下鉄銀座線 神田駅(東京) 徒歩7分 東京都千代田区内神田1丁目 | 詳細を見る | |
マンション ルフォンプログレ神田プレミア(1DK/3階) | |||||||
![]() | 16.3万円 1.5万円 | 16.3万円 16.3万円 | 1DK 24.54m2 | 築3年 | 東京地下鉄銀座線 神田駅(東京) 徒歩3分 山手線 神田駅(東京) 徒歩4分 中央本線 神田駅(東京) 徒歩4分 東京都千代田区神田須田町1丁目 | 詳細を見る | |
マンション アーバネックス森下ウエスト(1DK/10階) | |||||||
![]() | 14.2万円 1万円 | 14.2万円 なし | 1DK 25.77m2 | 築3年 | 東京都新宿線 森下駅(東京) 徒歩6分 東京都江東区新大橋2丁目 | 詳細を見る | |









