賃貸アパート
西武池袋線 練馬駅 徒歩9分 2階建 築11年の賃貸物件情報(ワンルーム/2階)
| 家賃 | 管理費等 | 敷金 | 礼金 | 間取り | 専有面積 |
|---|---|---|---|---|---|
| 5.9万円 | 3,000円 | 5.9万円 | 5.9万円 | ワンルーム | 16.37m2 |
入居決定でお祝い金最大100,000円
Point
都内全ての物件をご案内可能です。オンラインにて申込みから契約までのお手続きも。他社様掲載物件のお見積もり、物件提案のご要望など、お気軽にお問い合わせください。初期費用分割払いも承ります!
提供:(株)sagasumu(SUUMO経由)

詳細情報 西武池袋線 練馬駅 徒歩9分 2階建 築11年
物件紹介
西武池袋線練馬駅から徒歩9分にあり、駅近で通勤通学に便利なアパートです。
こちらの物件は女性限定の物件となっているため、セキュリティ面を重視する女性にも安心してお選びいただけます。また、2階以上に位置しているので、通行人や周囲の住人からの視線が気になりにくいのも安心できるポイントです。インターホンにはTVモニタもついているため、相手の顔を確認してから来客対応することができます。
人気の角部屋で周囲の居住者の生活音も気になりにくく、また、フローリングのお部屋なのでお掃除もラクラク。室内にはウォークインクローゼットがありますので、たくさんの荷物も効率的に収納ができます。キッチンはシステムキッチン仕様になっていますので、お料理好きの方にもぴったり。また、バス・トイレは別で、のんびりお風呂タイムも楽しめるでしょう。
通信設備面では、インターネット接続が可能です(別途工事、契約料が必要な場合あり)。
こちらの物件は女性限定の物件となっているため、セキュリティ面を重視する女性にも安心してお選びいただけます。また、2階以上に位置しているので、通行人や周囲の住人からの視線が気になりにくいのも安心できるポイントです。インターホンにはTVモニタもついているため、相手の顔を確認してから来客対応することができます。
人気の角部屋で周囲の居住者の生活音も気になりにくく、また、フローリングのお部屋なのでお掃除もラクラク。室内にはウォークインクローゼットがありますので、たくさんの荷物も効率的に収納ができます。キッチンはシステムキッチン仕様になっていますので、お料理好きの方にもぴったり。また、バス・トイレは別で、のんびりお風呂タイムも楽しめるでしょう。
通信設備面では、インターネット接続が可能です(別途工事、契約料が必要な場合あり)。
お金・契約の情報
※「-」と表示されているものは、実際は料金が発生するものもございます。詳細はお問い合わせください。
| 家賃 | 5.9万円 | 管理費・共益費 | 3,000円 |
|---|---|---|---|
| 敷金 | 5.9万円 | 礼金 | 5.9万円 |
| 入居決定でお祝い金最大100,000円 | |||
| 保証金 | - | 償却・敷引 | 5.9万円 |
| 住宅保険料 | - | 更新料 | - |
| 保証会社利用 | 必須 | 保証会社名 | - |
| 保証会社費用 | - | 保証会社備考 | 保証会社利用必 レストソリューション(株) 初回保証料:月額賃料等の100%、年間保証料なし/収納代行手数料330円、初回登録料550円 |
| 契約形態 | - | 契約期間 | - |
| 入居・引渡期間 | 相談 | 現況 | - |
| 契約備考 | 更新料新賃料1ヶ月 水道・ガス月額3,000円/月 ワンルーム 女性限定 普通借家2年 損保【1.6万円2年】 バストイレ別、バルコニー、エアコン、クロゼット、フローリング、TVインターホン、室内洗濯置、シューズボックス、システムキッチン、角住戸、温水洗浄便座、2口コンロ、2面採光、最上階、IHクッキングヒーター、照明付、全居室収納、ロフト、全居室洋室、保証人不要、敷金1ヶ月、全居室フローリング、浄水器、保証金不要、雨戸、複層ガラス、内装コンクリート、2駅利用可、3沿線以上利用可、駅徒歩10分以内、敷地内ごみ置き場、全居室6畳以上、都市ガス、シャッター、電動シャッター、礼金1ヶ月、保証会社利用可、IT重説対応物件、初期費用カード決済可 | ||
部屋の情報
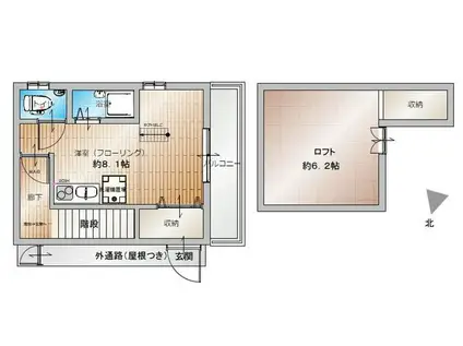
| 間取り | ワンルーム | 専有面積 | 16.37m2 |
|---|---|---|---|
| 所在階 / 向き | 2階 / 西 | バルコニー面積 | - |
| 水道 / ガス | - | ||
| 設備 | バス・トイレ別、2階以上、テレビドアホン、システムキッチン、エアコン、温水洗浄便座、角部屋、バルコニー、フローリング、ロフトあり、2口コンロ、コンロ:IH、洗濯機:室内 | ||
| 当社物件ID | 31917369 | ||
建物の情報
| 建物名 | 西武池袋線 練馬駅 徒歩9分 2階建 築11年 | ||
|---|---|---|---|
| 所在地 | 東京都練馬区練馬 | ||
| 交通 | 西武池袋線 練馬駅 徒歩9分 西武池袋線 桜台駅(東京) 徒歩13分 都営大江戸線 豊島園駅 徒歩14分 | ||
| 階数 | 2階建 | 総戸数 | - |
| 築年月 | 2015年08月 / 築11年 | エレベーター | - |
| 駐車場 | なし | バイク置き場 | - |
| 駐輪場 | - | 管理人/管理会社 | - |
| 周辺環境 | その他 スーパーあまいけ練馬店(スーパー)まで293m その他 まいばすけっと練馬駅北口店(スーパー)まで497m その他 セブンイレブン練馬桜台5丁目店(コンビニ)まで45m その他 ローソン練馬桜台二丁目店(コンビニ)まで575m その他 トモズCoconeri店(ドラッグストア)まで744m その他 どらっぐぱぱす練馬駅前店(ドラッグストア)まで825m | ||
| 建物種別 | アパート | 建物構造 | 木造 |
この部屋の取扱い不動産会社
| 会社名 | (株)sagasumu(SUUMO経由) | ||
|---|---|---|---|
| 所在地 | 東京都豊島区池袋2-17-8-109 | 交通 | - |
| 営業時間 | 9:00~18:00 | 定休日 | 毎週水曜日・年末年始 |
| 免許番号 | 東京都知事107846 | 取引態様 | 仲介 |
| 不動産会社管理番号 | 100476301093 | 当社管理番号 | 89 |
| 所属団体 | (公社)全日本不動産協会東京都本部会員 | ||
| 公正取引協議会 | (公社)首都圏不動産公正取引協議会加盟 | ||
| 取扱い物件情報 | 物件詳細へ | ||
※各種情報と現状に差異がある場合は、現状優先となります。問い合わせをすることで、より詳しい条件、情報を確認する事ができます。
提供:(株)sagasumu(SUUMO経由)
この物件が気になったら掲載期限まであと7日
西武池袋線 練馬駅 徒歩9分 2階建 築11年に条件(家賃・エリア)が近い物件一覧
| 写真 | 家賃 管理費等 | 敷金 礼金 | 間取り 専有面積 | 築年数 | 最寄り駅 所在地 | キープ | 詳細 |
|---|---|---|---|---|---|---|---|
マンション ヴィルヌーヴ阿佐ヶ谷(1K/2階) | |||||||
![]() | 9.5万円 6,000円 | 9.5万円 9.5万円 | 1K 31.31m2 | 築17年 | JR中央線 阿佐ケ谷駅 徒歩13分 西武新宿線 鷺ノ宮駅 徒歩14分 西武新宿線 都立家政駅 徒歩19分 東京都杉並区阿佐谷北 | 詳細を見る | |
マンション GRANDE MUSASHISEKI STATION COURT(1DK/2階) | |||||||
![]() | 8.9万円 8,000円 | 8.9万円 なし | 1DK 25.34m2 | 築4年 | 西武新宿線 武蔵関駅 徒歩2分 東京都練馬区関町北 | 詳細を見る | |
マンション 青柳マンション(1K/2階) | |||||||
![]() | 6万円 1,000円 | 6万円 6万円 | 1K 17.01m2 | 築43年 | JR中央線 武蔵境駅 徒歩10分 西武多摩川線 新小金井駅 徒歩20分 JR中央線 東小金井駅 徒歩20分 東京都武蔵野市境南町 | 詳細を見る | |
アパート セブンハイム(1K/1階) | |||||||
![]() | 6.8万円 3,000円 | 6.8万円 6.8万円 | 1K 24.84m2 | 築22年 | 西武鉄道新宿線 上井草駅 徒歩4分 東京都練馬区下石神井4丁目 | 詳細を見る | |
アパート コットンハウス(2LDK/1階) | |||||||
![]() | 7.2万円 5,500円 | 7.2万円 10.8万円 | 2LDK 54.43m2 | 築18年 | 名鉄犬山線 徳重・名古屋芸大駅 徒歩9分 名鉄犬山線 大山寺駅 徒歩12分 愛知県北名古屋市徳重米野 | 詳細を見る | |
マンション メゾン・ド・ルミエール(2DK/2階) | |||||||
![]() | 7万円 3,000円 | なし なし | 2DK 39.4m2 | 築28年 | 東京メトロ副都心線 地下鉄成増駅 徒歩31分 都営大江戸線 光が丘駅 徒歩32分 東武東上線 成増駅 徒歩35分 東京都練馬区大泉町 | 詳細を見る | |
マンション 第5アベハウス(2DK/1階) | |||||||
![]() | 8万円 5,000円 | 8万円 8万円 | 2DK 34m2 | 築42年 | 都営三田線 蓮根駅 徒歩7分 都営三田線 西台駅 徒歩8分 都営三田線 志村三丁目駅 徒歩19分 東京都板橋区蓮根 | 詳細を見る | |
マンション 第10ビル(ワンルーム/1階) | |||||||
![]() | 5.8万円 なし | なし なし | ワンルーム 21m2 | 築56年 | 東京メトロ丸ノ内線 新高円寺駅 徒歩2分 東京メトロ丸ノ内線 東高円寺駅 徒歩10分 JR総武線 高円寺駅 徒歩14分 東京都杉並区梅里 | 詳細を見る | |








