賃貸マンション
ビレッジハウス吉井I1号棟の賃貸物件情報(3DK/3階)
| 家賃 | 管理費等 | 敷金 | 礼金 | 間取り | 専有面積 |
|---|---|---|---|---|---|
| 3.23万円 | なし | なし | なし | 3DK | 53.08m2 |
入居決定でお祝い金最大100,000円
Point
スマホ等を使って【LINEでのお問合せ】【オンライン内見】【オンライン重説】でのご契約手続きまで、非対面での対応が可能です!マンション・アパート・貸家など賃貸住宅を借りるならいい部屋ネット岡山東店へ♪
提供:いい部屋ネット大東建託リーシング(株)岡山東店(SUUMO経由)

詳細情報 ビレッジハウス吉井I1号棟
物件紹介
このお部屋は2階以上に位置しているので、通行人や周囲の住人からの視線が気になりにくく、防犯面でも安心です。
人気の南向きのお部屋。角部屋でもあるため、周囲の居住者の生活音も気になりにくい場所です。バス・トイレ別の仕様で、のんびりお風呂タイムも楽しめます。
ペット飼育の相談ができますので、あなたの大切な家族の一員も快適に暮らせるか、ぜひ確認してみてください。
人気の南向きのお部屋。角部屋でもあるため、周囲の居住者の生活音も気になりにくい場所です。バス・トイレ別の仕様で、のんびりお風呂タイムも楽しめます。
ペット飼育の相談ができますので、あなたの大切な家族の一員も快適に暮らせるか、ぜひ確認してみてください。
お金・契約の情報
※「-」と表示されているものは、実際は料金が発生するものもございます。詳細はお問い合わせください。
| 家賃 | 3.23万円 | 管理費・共益費 | なし |
|---|---|---|---|
| 敷金 | なし | 礼金 | なし |
| 入居決定でお祝い金最大100,000円 | |||
| 保証金 | - | 償却・敷引 | - |
| 住宅保険料 | - | 更新料 | - |
| 契約形態 | - | 契約期間 | - |
| 入居・引渡期間 | - | 現況 | - |
| 入居可能条件 | ペット相談 | ||
| 契約備考 | ※短期解約時:違約金有、退去時クリーニング費用負担有※法人名義にて契約される場合には賃料等の契約条件が異なりますので詳細はお問い合わせください。※賃料支払能力によっては、連帯保証人が必要の場合があります。ペット飼育相談/1台目駐車場:3300円(税込)礼金・更新料ゼロ!ペット飼育の場合、敷金1ヶ月(規約有、登録必要)カギ交換代無料! 合計6.43万円(内訳:退去時クリーニング費用6.4226万円) 3DK 二人入居可/ペット相談/ルームシェア相談 損保【1万円2年】 バストイレ別、バルコニー、エアコン、室内洗濯置、追焚機能浴室、角住戸、洗面所独立、ペット相談、駐車場1台無料、ルームシェア相談、学生相談、プロパンガス、IT重説対応物件 入居日:'26年2月中旬 | ||
部屋の情報
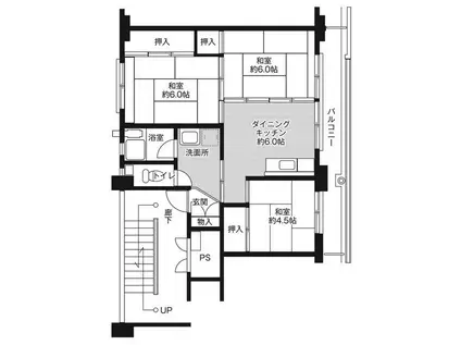
| 間取り | 3DK | 専有面積 | 53.08m2 |
|---|---|---|---|
| 所在階 / 向き | 3階 / 南東 | バルコニー面積 | - |
| 水道 / ガス | - | ||
| 設備 | バス・トイレ別、2階以上、追い焚き、エアコン、南向き、角部屋、バルコニー、洗髪洗面化粧台、洗濯機:室内 | ||
| 当社物件ID | 107441092 | ||
建物の情報
| 建物名 | ビレッジハウス吉井I1号棟 | ||
|---|---|---|---|
| 所在地 | 岡山県赤磐市周匝 | ||
| 交通 | JR姫新線 林野駅 バス乗車時間:31分 最寄りバス停で下車 徒歩6分 | ||
| 階数 | 5階建 | 総戸数 | 40戸 |
| 築年月 | 1997年10月 / 築29年 | エレベーター | - |
| 駐車場 | 空有 付無料 | バイク置き場 | - |
| 駐輪場 | - | 管理人/管理会社 | - |
| 周辺環境 | その他 周匝郵便局(郵便局)まで520m その他 赤磐市立吉井図書館(図書館)まで624m その他 セブン-イレブン 赤磐すさい店(コンビニ)まで536m その他 中国銀行 周匝支店(銀行)まで611m その他 清水歯科医院(病院)まで673m その他 角南歯科医院(病院)まで411m | ||
| 建物種別 | マンション | 建物構造 | RC(鉄筋コンクリート) |
この部屋の取扱い不動産会社
| 会社名 | いい部屋ネット大東建託リーシング(株)岡山東店(SUUMO経由) | ||
|---|---|---|---|
| 所在地 | 岡山県岡山市中区長岡 335-4 | 交通 | - |
| 営業時間 | 10:00~12:30、13:30~18:00 | 定休日 | 火曜日・水曜日 |
| 免許番号 | 国土交通大臣9120 | 取引態様 | 仲介 |
| 不動産会社管理番号 | 100487364101 | 当社管理番号 | 89 |
| 所属団体 | (公財)日本賃貸住宅管理協会会員 | ||
| 公正取引協議会 | (公社)首都圏不動産公正取引協議会加盟 | ||
| 取扱い物件情報 | 物件詳細へ | ||
※各種情報と現状に差異がある場合は、現状優先となります。問い合わせをすることで、より詳しい条件、情報を確認する事ができます。
提供:いい部屋ネット大東建託リーシング(株)岡山東店(SUUMO経由)
この物件が気になったら掲載期限まであと10日
ビレッジハウス吉井I1号棟に条件(家賃・エリア)が近い物件一覧
| 写真 | 家賃 管理費等 | 敷金 礼金 | 間取り 専有面積 | 築年数 | 最寄り駅 所在地 | キープ | 詳細 |
|---|---|---|---|---|---|---|---|
マンション アトリエ(ワンルーム/3階) | |||||||
![]() | 3.9万円 なし | 3.9万円 3.9万円 | ワンルーム 28.22m2 | 築31年 | 岡山電軌東山本線 東山・おかでんミュージアム駅駅 徒歩1分 岡山電軌東山本線 門田屋敷駅 徒歩5分 岡山電軌東山本線 中納言駅 徒歩8分 岡山県岡山市中区東山2丁目 | 詳細を見る | |
アパート エレガンス近藤Ⅱ(1LDK/2階) | |||||||
![]() | 4.3万円 3,000円 | なし なし | 1LDK 41.12m2 | 築35年 | 赤穂線 大多羅駅 徒歩21分 赤穂線 東岡山駅 徒歩21分 山陽本線 東岡山駅 徒歩21分 岡山県岡山市中区長利 | 詳細を見る | |
マンション ASK3(1DK/2階) | |||||||
![]() | 3.3万円 なし | なし なし | 1DK 22.31m2 | 築32年 | 宇野線 岡山駅 徒歩21分 吉備線 備前三門駅 徒歩21分 岡山電軌東山本線 岡山駅前駅 徒歩24分 岡山県岡山市北区伊島町1丁目 | 詳細を見る | |
マンション アーバンハイム小橋(1K/8階) | |||||||
![]() | 4.3万円 5,000円 | なし なし | 1K 24.15m2 | 築31年 | 岡山電軌東山本線 小橋駅 徒歩1分 岡山電軌東山本線 中納言駅 徒歩2分 岡山電軌東山本線 門田屋敷駅 徒歩5分 岡山県岡山市中区小橋町2丁目 | 詳細を見る | |
アパート ラ・パルテール金岡東町 壱番館(1LDK/1階) | |||||||
![]() | 4.4万円 3,500円 | なし なし | 1LDK 42.92m2 | 築21年 | 赤穂線 西大寺駅 徒歩29分 赤穂線 大多羅駅 徒歩55分 赤穂線 大富駅 徒歩70分 岡山県岡山市東区金岡東町1丁目 | 詳細を見る | |
マンション 恒和レジデンス(1K/1階) | |||||||
![]() | 4.4万円 3,000円 | 4.4万円 4.4万円 | 1K 29.81m2 | 築29年 | 宇野線 大元駅 徒歩9分 岡山電軌清輝橋線 清輝橋駅 徒歩18分 岡山電軌清輝橋線 東中央町駅 徒歩19分 岡山県岡山市北区東古松2丁目 | 詳細を見る | |
マンション メゾンムシカ(1K/2階) | |||||||
![]() | 3.7万円 なし | 7.4万円 3.7万円 | 1K 16.9m2 | 築39年 | 宇野線 備前西市駅 徒歩16分 宇野線 大元駅 徒歩23分 岡山県岡山市北区今6丁目 | 詳細を見る | |
アパート ファーム・ヴィレッジC(2LDK/1階) | |||||||
![]() | 5.1万円 3,000円 | 10.2万円 5.1万円 | 2LDK 54.65m2 | 築29年 | 赤穂線 大多羅駅 徒歩19分 赤穂線 西大寺駅 徒歩42分 山陽本線 上道駅(岡山) 徒歩87分 岡山県岡山市東区松新町 | 詳細を見る | |









