賃貸マンション
リブリ・フォー ディアリィスト 灘の賃貸物件情報(1K/1階)
| 家賃 | 管理費等 | 敷金 | 礼金 | 間取り | 専有面積 |
|---|---|---|---|---|---|
| 6.9万円 | 4,000円 | なし | 6.9万円 | 1K | 22.35m2 |
入居決定でお祝い金最大100,000円
- 保証金
- -
- 償却・敷引
- -
- 築年数
- 築8年
- 所在階
- 1階
- 向き
- -
Point
収納はクロゼット・シューズボックスなど豊富なので、衣類や履き物の整理がしやすく便利です。知らない人が玄関前まで入って来づらいので防犯対策につながるオートロック機能があります。
提供:スミカエ神戸三宮店(株)エスネクト(SUUMO経由)

詳細情報 リブリ・フォー ディアリィスト 灘
物件紹介
リブリ・フォー ディアリィスト 灘は阪神本線大石駅から徒歩8分にあり、駅近で通勤通学に便利なマンションです。
建物のエントランスはオートロックがついており、防犯性が高くなっています。
フローリングのお部屋なのでお掃除もラクラク。キッチンはシステムキッチン仕様になっていますので、お料理好きの方にもぴったり。また、バス・トイレは別で、のんびりお風呂タイムも楽しめるでしょう。
通信設備面では、インターネット接続が可能です(別途工事、契約料が必要な場合あり)。
建物のエントランスはオートロックがついており、防犯性が高くなっています。
フローリングのお部屋なのでお掃除もラクラク。キッチンはシステムキッチン仕様になっていますので、お料理好きの方にもぴったり。また、バス・トイレは別で、のんびりお風呂タイムも楽しめるでしょう。
通信設備面では、インターネット接続が可能です(別途工事、契約料が必要な場合あり)。
お金・契約の情報
※「-」と表示されているものは、実際は料金が発生するものもございます。詳細はお問い合わせください。
| 家賃 | 6.9万円 | 管理費・共益費 | 4,000円 |
|---|---|---|---|
| 敷金 | なし | 礼金 | 6.9万円 |
| 入居決定でお祝い金最大100,000円 | |||
| 保証金 | - | 償却・敷引 | - |
| 住宅保険料 | - | 更新料 | - |
| 契約形態 | - | 契約期間 | - |
| 入居・引渡期間 | 相談 | 現況 | - |
| 契約備考 | 1K 普通借家2年 損保【2万円2年】 バストイレ別、バルコニー、エアコン、クロゼット、フローリング、シャワー付洗面台、オートロック、室内洗濯置、陽当り良好、シューズボックス、システムキッチン、脱衣所、洗面所独立、洗面化粧台、駐輪場、閑静な住宅地、敷金不要、防犯カメラ、IHクッキングヒーター、全居室洋室、全居室フローリング、2沿線利用可、仲手0.55ヶ月、眺望良好、2駅利用可、3駅以上利用可、駅徒歩10分以内、全居室6畳以上、都市ガス、玄関収納、高速ネット対応、礼金1ヶ月、IT重説対応物件、初期費用カード決済可、通風良好 | ||
部屋の情報
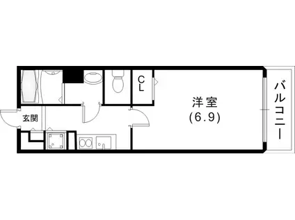
| 間取り | 1K | 専有面積 | 22.35m2 |
|---|---|---|---|
| 所在階 / 向き | 1階 / - | バルコニー面積 | 3m2 |
| 水道 / ガス | - | ||
| 設備 | バス・トイレ別、オートロック、インターネット対応、システムキッチン、エアコン、バルコニー、フローリング、洗髪洗面化粧台、コンロ:IH、洗濯機:室内 | ||
| 当社物件ID | 160539928 | ||
建物の情報
| 建物名 | リブリ・フォー ディアリィスト 灘 | ||
|---|---|---|---|
| 所在地 | 兵庫県神戸市灘区上河原通 | ||
| 交通 | 阪神本線 大石駅 徒歩8分 JR東海道本線 六甲道駅 徒歩11分 JR東海道本線 摩耶駅 徒歩13分 | ||
| 階数 | 3階建 | 総戸数 | - |
| 築年月 | 2018年06月 / 築8年 | エレベーター | - |
| 駐車場 | 近隣 100m22000円 | バイク置き場 | - |
| 駐輪場 | あり | 管理人/管理会社 | - |
| 周辺環境 | その他 神戸市灘区役所(役所)まで917m その他 下河原公園(公園)まで268m その他 神戸市立灘小学校(小学校)まで319m その他 金沢病院(病院)まで437m その他 関西スーパー 琵琶店(スーパー)まで399m その他 神戸市立原田中学校(中学校)まで659m | ||
| 建物種別 | マンション | 建物構造 | 鉄骨造 |
この部屋の取扱い不動産会社
| 会社名 | スミカエ神戸三宮店(株)エスネクト(SUUMO経由) | ||
|---|---|---|---|
| 所在地 | 兵庫県神戸市中央区御幸通6-1-15御幸ビル1階 | 交通 | - |
| 営業時間 | 10:00~19:00 | 定休日 | 無 |
| 免許番号 | 兵庫県知事12260 | 取引態様 | 仲介 |
| 不動産会社管理番号 | 100492872246 | 当社管理番号 | 89 |
| 所属団体 | (公社)全日本不動産協会兵庫県本部会員 | ||
| 公正取引協議会 | (公社)近畿地区不動産公正取引協議会加盟 | ||
| 取扱い物件情報 | 物件詳細へ | ||
※各種情報と現状に差異がある場合は、現状優先となります。問い合わせをすることで、より詳しい条件、情報を確認する事ができます。
提供:スミカエ神戸三宮店(株)エスネクト(SUUMO経由)
この物件が気になったら掲載期限まであと12日
リブリ・フォー ディアリィスト 灘に条件(家賃・エリア)が近い物件一覧
| 写真 | 家賃 管理費等 | 敷金 礼金 | 間取り 専有面積 | 築年数 | 最寄り駅 所在地 | キープ | 詳細 |
|---|---|---|---|---|---|---|---|
マンション エビスマンション(2DK/2階) | |||||||
![]() | 5.8万円 なし | 5.8万円 5.8万円 | 2DK 43.99m2 | 築50年 | 神戸電鉄粟生線 恵比須駅 徒歩5分 神戸電鉄粟生線 三木上の丸駅 徒歩8分 神戸電鉄粟生線 三木駅(神戸電鉄) 徒歩16分 兵庫県三木市大塚 | 詳細を見る | |
アパート ジェミニハイム2(1LDK/1階) | |||||||
![]() | 5.9万円 1,500円 | 5.9万円 10万円 | 1LDK 43.9m2 | 築14年 | 山陽電気鉄道本線 東二見駅 徒歩12分 山陽電気鉄道本線 西二見駅 徒歩15分 山陽本線 土山駅 徒歩24分 兵庫県明石市二見町東二見 | 詳細を見る | |
アパート ルナ パレス A(1LDK/1階) | |||||||
![]() | 6.2万円 2,300円 | なし 6.2万円 | 1LDK 45.72m2 | 築20年 | 山陽電気鉄道本線 人丸前駅 徒歩16分 山陽電気鉄道本線 大蔵谷駅 徒歩16分 山陽本線 明石駅 徒歩24分 兵庫県明石市荷山町 | 詳細を見る | |
アパート ヒカルサ稲美天満Ⅰ(2LDK/2階) | |||||||
![]() | 8.05万円 3,900円 | なし 8.05万円 | 2LDK 56.48m2 | 築1年 | 兵庫県加古郡稲美町六分一 | 詳細を見る | |
アパート フォーレス緑が丘(2K/2階) | |||||||
![]() | 6.6万円 4,000円 | 2万円 なし | 2K 45.15m2 | 築26年 | 神戸電鉄粟生線 緑が丘駅(兵庫) 徒歩5分 神戸電鉄粟生線 広野ゴルフ場前駅 徒歩11分 神戸電鉄粟生線 押部谷駅 徒歩26分 兵庫県三木市緑が丘町本町 | 詳細を見る | |
マンション 神戸電鉄公園都市線 ウッディタウン中央駅 徒歩8分 築38年(3LDK/5階) | |||||||
![]() | 5.84万円 4,100円 | 11.68万円 なし | 3LDK 73m2 | 築38年 | 神戸電鉄公園都市線 ウッディタウン中央駅 徒歩8分 兵庫県三田市あかしあ台3丁目 | 詳細を見る | |
マンション ビレッジハウス志染(3DK/2階) | |||||||
![]() | 6.08万円 なし | なし なし | 3DK 54.38m2 | 築47年 | 神戸電鉄粟生線 志染駅 徒歩19分 神戸電鉄粟生線 恵比須駅 徒歩29分 神戸電鉄粟生線 広野ゴルフ場前駅 徒歩29分 兵庫県三木市志染町西自由が丘 | 詳細を見る | |
アパート D-ROOM高丘(3LDK/2階) | |||||||
![]() | 11万円 6,600円 | 3万円 25万円 | 3LDK 64.88m2 | 築4年 | 兵庫県明石市大久保町高丘7丁目 | 詳細を見る | |







