賃貸マンション
クレイシアIDZ大泉学園の賃貸物件情報(2K/2階)
| 家賃 | 管理費等 | 敷金 | 礼金 | 間取り | 専有面積 |
|---|---|---|---|---|---|
| 10.3万円 | 1.2万円 | 10.3万円 | 10.3万円 | 2K | 25.49m2 |
入居決定でお祝い金最大100,000円
- 保証金
- -
- 償却・敷引
- -
- 築年数
- 築1年
- 所在階
- 2階
- 向き
- 西
Point
◎ネット無料◎駅徒歩10分以内◎オートロック◎宅配BOX◎防犯カメラ◎◎人気設備が充実◎お部屋探しならLiVLifeEstate株式会社におまかせください。
提供:LiV Life Estate(株)ひばりヶ丘店(SUUMO経由)

詳細情報 クレイシアIDZ大泉学園
物件紹介
クレイシアIDZ大泉学園は西武池袋線大泉学園駅から徒歩8分にあり、駅近で通勤通学に便利なマンションです。
このお部屋は2階以上に位置しているので通行人や周囲の住人からの視線が気になりにくく、建物のエントランスはオートロックがついているので防犯性が高くなっています。
フローリングのお部屋なのでお掃除もラクラク。キッチンはシステムキッチン仕様になっていますので、お料理好きの方にもぴったり。バス・トイレは別なので、のんびりお風呂タイムも楽しめるでしょう。また、雨の日でも浴室乾燥機を使えば、お洗濯も問題ありません。
通信設備面では、インターネットが無料で使えるので、月々の出費を抑えられるのも魅力です(別途工事等が必要な場合あり)。
建物にはエレベーターがついているので、重い荷物があっても安心。共用部には宅配ボックスが設定されているので、不在の時にも荷物を受け取ることができます。
このお部屋は2階以上に位置しているので通行人や周囲の住人からの視線が気になりにくく、建物のエントランスはオートロックがついているので防犯性が高くなっています。
フローリングのお部屋なのでお掃除もラクラク。キッチンはシステムキッチン仕様になっていますので、お料理好きの方にもぴったり。バス・トイレは別なので、のんびりお風呂タイムも楽しめるでしょう。また、雨の日でも浴室乾燥機を使えば、お洗濯も問題ありません。
通信設備面では、インターネットが無料で使えるので、月々の出費を抑えられるのも魅力です(別途工事等が必要な場合あり)。
建物にはエレベーターがついているので、重い荷物があっても安心。共用部には宅配ボックスが設定されているので、不在の時にも荷物を受け取ることができます。
お金・契約の情報
※「-」と表示されているものは、実際は料金が発生するものもございます。詳細はお問い合わせください。
| 家賃 | 10.3万円 | 管理費・共益費 | 1.2万円 |
|---|---|---|---|
| 敷金 | 10.3万円 | 礼金 | 10.3万円 |
| 入居決定でお祝い金最大100,000円 | |||
| 保証金 | - | 償却・敷引 | - |
| 住宅保険料 | - | 更新料 | - |
| 保証会社利用 | 必須 | 保証会社名 | - |
| 保証会社費用 | - | 保証会社備考 | 保証会社利用必 保証料(初回契約時)40%、保証料(年間)10,000円、その他プラン有(新日本信用保証の場合口座振替手数料216円(税込)¥¥/月) |
| 契約形態 | - | 契約期間 | - |
| 入居・引渡期間 | 即時 | 現況 | - |
| 契約備考 | 西東京市・東久留米市・新座市・清瀬市・練馬区・東村山市・所沢市等周辺エリアのお部屋探しなら情報量豊富なLiVLifeEstate株式会社にお任せください。賃料・初期費用の減額交渉、入居日の先延ばし交渉等、経験豊富なスタッフが全力で交渉致します。全物件初期費用カード決済OK。1年未満解約時違約金1か月あり 更新料 新賃料1.00ヶ月分 アシスト24 月額1100円 2K 二人入居可 普通借家2年 損保【2万円2年】 バストイレ別、エアコン、ガスコンロ対応、クロゼット、フローリング、浴室乾燥機、オートロック、室内洗濯置、シューズボックス、システムキッチン、温水洗浄便座、脱衣所、エレベーター、洗面所独立、洗面化粧台、2口コンロ、駐輪場、宅配ボックス、即入居可、防犯カメラ、全居室洋室、保証人不要、二人入居相談、玄関ホール、ネット使用料不要、保証金不要、24時間換気システム、耐火構造、2駅利用可、駅徒歩10分以内、敷地内ごみ置き場、都市ガス、洗面所にドア、高速ネット対応、保証会社利用可、初期費用カード決済可 | ||
部屋の情報
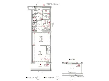
| 間取り | 2K | 専有面積 | 25.49m2 |
|---|---|---|---|
| 所在階 / 向き | 2階 / 西 | バルコニー面積 | - |
| 水道 / ガス | - | ||
| 設備 | バス・トイレ別、2階以上、オートロック、宅配ボックス、浴室乾燥機、インターネット対応、システムキッチン、エアコン、エレベーター、温水洗浄便座、フローリング、洗髪洗面化粧台、2口コンロ、コンロ:ガス、インターネット使用料無料、洗濯機:室内 | ||
| 当社物件ID | 160524480 | ||
建物の情報
| 建物名 | クレイシアIDZ大泉学園 | ||
|---|---|---|---|
| 所在地 | 東京都練馬区東大泉 | ||
| 交通 | 西武池袋線 大泉学園駅 徒歩8分 西武池袋線 石神井公園駅 徒歩21分 西武池袋線 保谷駅 徒歩33分 | ||
| 階数 | 5階建 | 総戸数 | - |
| 築年月 | 2026年02月 / 築1年 | エレベーター | あり |
| 駐車場 | なし | バイク置き場 | - |
| 駐輪場 | あり | 管理人/管理会社 | - |
| 周辺環境 | その他 クリエイトSD(エス・ディー) 練馬東大泉店(ドラッグストア)まで269m その他 なんでも酒やカクヤス 大泉学園店(その他)まで151m その他 セブンイレブン 練馬東大泉NTTビル店(コンビニ)まで254m その他 スギ薬局 東大泉店(ドラッグストア)まで271m その他 リヴィンオズ大泉店(スーパー)まで297m その他 無印良品 リヴィンオズ大泉店(その他)まで215m | ||
| 建物種別 | マンション | 建物構造 | RC(鉄筋コンクリート) |
この部屋の取扱い不動産会社
| 会社名 | LiV Life Estate(株)ひばりヶ丘店(SUUMO経由) | ||
|---|---|---|---|
| 所在地 | 東京都西東京市ひばりが丘北3-5-19カマタビル2F | 交通 | - |
| 営業時間 | 10:00~19:00 事前連絡で時間外予約可 | 定休日 | 水曜日 |
| 免許番号 | 東京都知事106673 | 取引態様 | 仲介 |
| 不動産会社管理番号 | 100492495043 | 当社管理番号 | 89 |
| 取扱い物件情報 | 物件詳細へ | ||
※各種情報と現状に差異がある場合は、現状優先となります。問い合わせをすることで、より詳しい条件、情報を確認する事ができます。
提供:LiV Life Estate(株)ひばりヶ丘店(SUUMO経由)
この物件が気になったら掲載期限まであと11日
クレイシアIDZ大泉学園に条件(家賃・エリア)が近い物件一覧
| 写真 | 家賃 管理費等 | 敷金 礼金 | 間取り 専有面積 | 築年数 | 最寄り駅 所在地 | キープ | 詳細 |
|---|---|---|---|---|---|---|---|
マンション アルティザ氷川台(ワンルーム/2階) | |||||||
![]() | 9.3万円 1.5万円 | なし なし | ワンルーム 25.46m2 | 築2年 | 東京地下鉄副都心線 氷川台駅 徒歩6分 東京都練馬区早宮1丁目 | 詳細を見る | |
マンション TRADIS大塚(1DK/5階) | |||||||
![]() | 14.9万円 1万円 | なし なし | 1DK 26.7m2 | 築1年 | 都電荒川線 巣鴨新田駅 徒歩5分 JR山手線 大塚駅(東京) 徒歩8分 東武東上線 北池袋駅 徒歩13分 東京都豊島区北大塚 | 詳細を見る | |
アパート パークビュー城山(1LDK/2階) | |||||||
![]() | 8.5万円 なし | 8.5万円 8.5万円 | 1LDK 32m2 | 築35年 | 都営三田線 志村三丁目駅 徒歩6分 東京都板橋区前野町 | 詳細を見る | |
マンション ステラコート大山(2DK/1階) | |||||||
![]() | 9.8万円 7,000円 | なし なし | 2DK 49.95m2 | 築54年 | 東武東上線 大山駅(東京) 徒歩8分 東武東上線 中板橋駅 徒歩8分 東武東上線 ときわ台駅(東京) 徒歩18分 東京都板橋区弥生町 | 詳細を見る | |
アパート ル・ソレイユ(2LDK/3階) | |||||||
![]() | 13万円 6,000円 | なし 18万円 | 2LDK 58.09m2 | 築17年 | 西武新宿線 東伏見駅 徒歩15分 西武池袋線 保谷駅 徒歩16分 東京都西東京市中町 | 詳細を見る | |
アパート B.PLACE(1LDK/3階) | |||||||
![]() | 10.4万円 5,000円 | なし なし | 1LDK 33.43m2 | 築1年 | 都営三田線 高島平駅 徒歩15分 東武東上線 東武練馬駅 徒歩17分 都営三田線 西台駅 徒歩18分 東京都板橋区徳丸 | 詳細を見る | |
マンション ユーレジデンス護国寺(1K/4階) | |||||||
![]() | 7.2万円 8,000円 | 7.2万円 なし | 1K 16.38m2 | 築37年 | 東京メトロ副都心線 雑司が谷駅(東京メトロ) 徒歩7分 東京メトロ有楽町線 護国寺駅 徒歩10分 都電荒川線 都電雑司ケ谷駅 徒歩10分 東京都豊島区雑司が谷 | 詳細を見る | |
マンション ステージ グラシア(1K/6階) | |||||||
![]() | 8.5万円 5,300円 | なし 17万円 | 1K 25m2 | 築12年 | 都営三田線 西台駅 徒歩9分 都営三田線 高島平駅 徒歩11分 都営三田線 蓮根駅 徒歩16分 東京都板橋区高島平 | 詳細を見る | |


/105x80-f1-q70-wp1)






