賃貸アパート
JACK SHOHOVIの賃貸物件情報(1LDK/1階)
| 家賃 | 管理費等 | 敷金 | 礼金 | 間取り | 専有面積 |
|---|---|---|---|---|---|
| 6.25万円 | 3,500円 | なし | 6.25万円 | 1LDK | 32.2m2 |
入居決定でお祝い金最大100,000円
- 保証金
- -
- 償却・敷引
- -
- 築年数
- 新築
- 所在階
- 1階
- 向き
- 西
Point
インターネット使用料不要なので面倒な手続き不要です◎設備充実なのではじめてのお引越しや転勤者にもオススメ。LINE・メール・お電話でやり取り可能!名古屋でのお部屋探しはスタイルエステート西支店にお任せ
提供:スタイルエステート西支店(株)エムホームエステート(SUUMO経由)

詳細情報 JACK SHOHOVI
物件紹介
JACK SHOHOVIはあおなみ線港北駅から徒歩7分にあり、駅近で通勤通学に便利なアパートです。
建物のエントランスはオートロックがついており、インターホンにはTVモニタもついているため、相手の顔を確認してから来客対応することができます。
おしゃれなデザイナーズ物件!人気の角部屋で周囲の居住者の生活音も気になりにくく、また、フローリングのお部屋なのでお掃除もラクラク。キッチンはシステムキッチン仕様になっていますので、お料理好きの方にもぴったり。バス・トイレは別なので、のんびりお風呂タイムも楽しめるでしょう。また、雨の日でも浴室乾燥機を使えば、お洗濯も問題ありません。
通信設備面では、インターネットが無料で使えるので、月々の出費を抑えられるのも魅力です(別途工事等が必要な場合あり)。
共用部には宅配ボックスが設定されているので、不在の時にも荷物を受け取ることができます。
建物のエントランスはオートロックがついており、インターホンにはTVモニタもついているため、相手の顔を確認してから来客対応することができます。
おしゃれなデザイナーズ物件!人気の角部屋で周囲の居住者の生活音も気になりにくく、また、フローリングのお部屋なのでお掃除もラクラク。キッチンはシステムキッチン仕様になっていますので、お料理好きの方にもぴったり。バス・トイレは別なので、のんびりお風呂タイムも楽しめるでしょう。また、雨の日でも浴室乾燥機を使えば、お洗濯も問題ありません。
通信設備面では、インターネットが無料で使えるので、月々の出費を抑えられるのも魅力です(別途工事等が必要な場合あり)。
共用部には宅配ボックスが設定されているので、不在の時にも荷物を受け取ることができます。
お金・契約の情報
※「-」と表示されているものは、実際は料金が発生するものもございます。詳細はお問い合わせください。
| 家賃 | 6.25万円 | 管理費・共益費 | 3,500円 |
|---|---|---|---|
| 敷金 | なし | 礼金 | 6.25万円 |
| 入居決定でお祝い金最大100,000円 | |||
| 保証金 | - | 償却・敷引 | - |
| 住宅保険料 | - | 更新料 | - |
| 契約形態 | - | 契約期間 | - |
| 入居・引渡期間 | - | 現況 | - |
| 契約備考 | 巡回管理/見学から契約までご来店不要でご対応可能です♪駐車場の空き状況は別途お問い合わせ下さい。 町費300円/月 1LDK 単身者可/二人入居可 普通借家2年 バストイレ別、バルコニー、エアコン、ガスコンロ対応、クロゼット、フローリング、シャワー付洗面台、TVインターホン、浴室乾燥機、オートロック、室内洗濯置、シューズボックス、システムキッチン、追焚機能浴室、角住戸、温水洗浄便座、脱衣所、洗面所独立、洗面化粧台、2口コンロ、宅配ボックス、敷金不要、防犯カメラ、保証人不要、デザイナーズ、ネット使用料不要、築2年以内、未入居、3駅以上利用可、駅徒歩10分以内、敷地内ごみ置き場、プロパンガス、洗面所にドア、礼金1ヶ月、IT重説対応物件、初期費用カード決済可 入居日:'26年8月中旬 | ||
部屋の情報
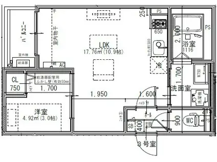
| 間取り | 1LDK | 専有面積 | 32.2m2 |
|---|---|---|---|
| 所在階 / 向き | 1階 / 西 | バルコニー面積 | - |
| 水道 / ガス | - | ||
| 設備 | バス・トイレ別、オートロック、テレビドアホン、宅配ボックス、浴室乾燥機、追い焚き、インターネット対応、システムキッチン、エアコン、温水洗浄便座、角部屋、バルコニー、フローリング、洗髪洗面化粧台、2口コンロ、コンロ:ガス、デザイナーズ、インターネット使用料無料、洗濯機:室内 | ||
| 当社物件ID | 160783862 | ||
建物の情報
| 建物名 | JACK SHOHOVI | ||
|---|---|---|---|
| 所在地 | 愛知県名古屋市港区正保町 | ||
| 交通 | あおなみ線 港北駅 徒歩7分 あおなみ線 中島駅(愛知) 徒歩10分 あおなみ線 荒子川公園駅 徒歩20分 | ||
| 階数 | 3階建 | 総戸数 | 9戸 |
| 築年月 | 2026年08月 / 新築 | エレベーター | - |
| 駐車場 | 近隣 200m8800円 | バイク置き場 | - |
| 駐輪場 | - | 管理人/管理会社 | - |
| 周辺環境 | その他 ピアゴ ラ フーズコア 正保店(スーパー)まで179m その他 セブンイレブン 名古屋正保町8丁目店(コンビニ)まで313m その他 スギドラッグ 正保店(ドラッグストア)まで134m その他 EQVo!入場店(スーパー)まで616m その他 医療法人純正会東洋病院(病院)まで277m その他 名古屋土古郵便局(郵便局)まで498m | ||
| 建物種別 | アパート | 建物構造 | 木造 |
この部屋の取扱い不動産会社
| 会社名 | スタイルエステート西支店(株)エムホームエステート(SUUMO経由) | ||
|---|---|---|---|
| 所在地 | 愛知県名古屋市中川区高畑1-235 | 交通 | - |
| 営業時間 | 10:00~19:00 | 定休日 | - |
| 免許番号 | 愛知県知事22094 | 取引態様 | 仲介 |
| 不動産会社管理番号 | 100502255357 | 当社管理番号 | 89 |
| 所属団体 | (公社)愛知県宅地建物取引業協会会員 | ||
| 公正取引協議会 | 東海不動産公正取引協議会加盟 | ||
| 取扱い物件情報 | 物件詳細へ | ||
※各種情報と現状に差異がある場合は、現状優先となります。問い合わせをすることで、より詳しい条件、情報を確認する事ができます。
提供:スタイルエステート西支店(株)エムホームエステート(SUUMO経由)
この物件が気になったら掲載期限まであと12日
JACK SHOHOVIに条件(家賃・エリア)が近い物件一覧
| 写真 | 家賃 管理費等 | 敷金 礼金 | 間取り 専有面積 | 築年数 | 最寄り駅 所在地 | キープ | 詳細 |
|---|---|---|---|---|---|---|---|
アパート アネックス豊II(1K/1階) | |||||||
![]() | 4.5万円 3,000円 | なし なし | 1K 24.12m2 | 築35年 | JR東海道本線 共和駅 徒歩23分 愛知県大府市北山町 | 詳細を見る | |
マンション メゾン尾張旭(1LDK/3階) | |||||||
![]() | 4.9万円 3,000円 | なし なし | 1LDK 40m2 | 築40年 | 名鉄瀬戸線 三郷駅(愛知) 徒歩11分 愛知県尾張旭市井田町1丁目 | 詳細を見る | |
アパート ファミーユ杁ヶ池(2DK/1階) | |||||||
![]() | 6.1万円 5,000円 | なし なし | 2DK 55.88m2 | 築29年 | リニモ 杁ケ池公園駅 徒歩7分 愛知県長久手市根の神 | 詳細を見る | |
アパート HT津金IV(1LDK/2階) | |||||||
![]() | 5.85万円 4,000円 | なし なし | 1LDK 31.6m2 | 築3年 | 地下鉄名港線 東海通駅 徒歩6分 地下鉄名港線 港区役所駅 徒歩16分 地下鉄名港線 六番町駅 徒歩22分 愛知県名古屋市港区津金 | 詳細を見る | |
マンション レオパレスGREENHILLS(1K/2階) | |||||||
![]() | 4.1万円 7,000円 | なし なし | 1K 23.18m2 | 築18年 | 愛知県長久手市市が洞市が洞2丁目 | 詳細を見る | |
マンション 日進パークマンション(3LDK/7階) | |||||||
![]() | 10万円 なし | なし なし | 3LDK 78.13m2 | 築38年 | 名鉄豊田線 日進駅(愛知) 徒歩2分 愛知県日進市栄 | 詳細を見る | |
アパート オッツ幸(2LDK/3階) | |||||||
![]() | 6万円 5,500円 | なし 5万円 | 2LDK 52.55m2 | 築19年 | 地下鉄東山線 中村公園駅 徒歩38分 地下鉄東山線 岩塚駅 徒歩50分 愛知県海部郡大治町大字東條高松 | 詳細を見る | |
マンション LA GRANDE OURSE(1K/1階) | |||||||
![]() | 4.7万円 4,000円 | なし なし | 1K 29.45m2 | 築24年 | 名古屋臨海高速鉄道 荒子川公園駅 徒歩24分 名古屋臨海高速鉄道 稲永駅 徒歩27分 愛知県名古屋市港区甚兵衛通4丁目 | 詳細を見る | |









