賃貸マンション
ビレッジハウス勝央2号棟の賃貸物件情報(3DK/4階)
| 家賃 | 管理費等 | 敷金 | 礼金 | 間取り | 専有面積 |
|---|---|---|---|---|---|
| 3.3万円 | なし | なし | なし | 3DK | 53.96m2 |
入居決定でお祝い金最大100,000円
- 保証金
- -
- 償却・敷引
- -
- 築年数
- 築44年
- 所在階
- 4階
- 向き
- 南
Point
まずはお問い合わせ!
不動産会社は街のプロ、あなたに合った物件がきっと見つかります。
提供:アパマンショップ姪浜駅前店

詳細情報 ビレッジハウス勝央2号棟
物件紹介
ビレッジハウス勝央2号棟は姫新線勝間田駅から徒歩17分にあるマンションです。
このお部屋は2階以上に位置しているので、通行人や周囲の住人からの視線が気になりにくく、防犯面でも安心です。
人気の南向きのお部屋。また、フローリングなのでお掃除もラクラク。バス・トイレ別の仕様で、のんびりお風呂タイムも楽しめます。
通信設備面では、インターネット接続が可能です(別途工事、契約料が必要な場合あり)。
このお部屋は2階以上に位置しているので、通行人や周囲の住人からの視線が気になりにくく、防犯面でも安心です。
人気の南向きのお部屋。また、フローリングなのでお掃除もラクラク。バス・トイレ別の仕様で、のんびりお風呂タイムも楽しめます。
通信設備面では、インターネット接続が可能です(別途工事、契約料が必要な場合あり)。
お金・契約の情報
※「-」と表示されているものは、実際は料金が発生するものもございます。詳細はお問い合わせください。
| 家賃 | 3.3万円 | 管理費・共益費 | なし |
|---|---|---|---|
| 敷金 | なし | 礼金 | なし |
| フリーレント | 1ヶ月 | ||
| 入居決定でお祝い金最大100,000円 | |||
| 保証金 | - | 償却・敷引 | - |
| 住宅保険料 | 1万円(2年) | 更新料 | - |
| 保証会社利用 | - | 保証会社名 | - |
| 保証会社費用 | - | 保証会社備考 | - |
| 契約形態 | - | 契約期間 | - |
| 入居・引渡期間 | - | 現況 | 空室 |
| 入居可能条件 | 2人入居可、高齢者相談、学生可 | ||
| 契約備考 | 契約種類:普通契約、24時間緊急対応、洗面台 | ||
部屋の情報
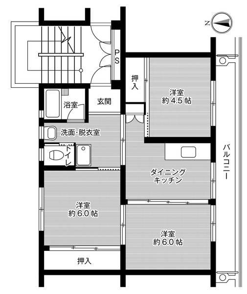
| 間取り | 3DK | 専有面積 | 53.96m2 |
|---|---|---|---|
| 所在階 / 向き | 4階 / 南 | バルコニー面積 | - |
| 水道 / ガス | - | ||
| 設備 | バス・トイレ別、追い焚き、バルコニー、給湯、洗濯機:室内 | ||
| 当社物件ID | 159819927 | ||
建物の情報
| 建物名 | ビレッジハウス勝央2号棟 | ||
|---|---|---|---|
| 所在地 | 岡山県勝田郡勝央町平722-2 | ||
| 交通 | 姫新線 勝間田駅 徒歩29分 姫新線 西勝間田駅 徒歩47分 姫新線 美作大崎駅 徒歩75分 | ||
| 階数 | 5階建 | 総戸数 | - |
| 築年月 | 1982年01月 / 築44年 | エレベーター | - |
| 駐車場 | 空有 円 | バイク置き場 | - |
| 駐輪場 | - | 管理人/管理会社 | 日勤 |
| 建物種別 | マンション | 建物構造 | RC(鉄筋コンクリート) |
この部屋の取扱い不動産会社
| 会社名 | ビレッジハウス住まい相談センター | ||
|---|---|---|---|
| 所在地 | 愛知県名古屋市中区大須4-10-32 上前津KDビル5階 | 交通 | 名城線「上前津駅」徒歩3分 |
| 営業時間 | 平日:9:00-18:30/土日祝:9:00-18:00 | 定休日 | 年末年始休業:2025年12月27日~2026年1月4日 |
| 免許番号 | 東京都知事(2)第100758号 | 取引態様 | 貸主 |
| 不動産会社管理番号 | 00013227532 | 当社管理番号 | 459 |
| 所属団体 | 公益社団法人東京都宅地建物取引業協会会員 日本賃貸住宅管理協会会員 | ||
| 取扱い物件情報 | 物件詳細へ | ||
※各種情報と現状に差異がある場合は、現状優先となります。問い合わせをすることで、より詳しい条件、情報を確認する事ができます。
提供:ビレッジハウス住まい相談センター
この物件が気になったら掲載期限まであと12日
ビレッジハウス勝央2号棟に条件(家賃・エリア)が近い物件一覧
| 写真 | 家賃 管理費等 | 敷金 礼金 | 間取り 専有面積 | 築年数 | 最寄り駅 所在地 | キープ | 詳細 |
|---|---|---|---|---|---|---|---|
アパート ルミエール(ワンルーム/1階) | |||||||
![]() | 4万円 5,000円 | なし 2万円 | ワンルーム 31.83m2 | 築24年 | JR姫新線 津山駅 徒歩9分 JR津山線 津山駅 徒歩9分 JR因美線 津山駅 徒歩9分 岡山県津山市横山 | 詳細を見る | |
マンション ビレッジハウス高野2号棟(3DK/1階) | |||||||
![]() | 4.72万円 なし | なし なし | 3DK 53.96m2 | 築47年 | 因美線 高野駅(岡山) 徒歩12分 姫新線 東津山駅 徒歩48分 姫新線 美作大崎駅 徒歩61分 岡山県津山市高野本郷1620-6 | 詳細を見る | |
アパート リバーサイド津山2(1K/1階) | |||||||
![]() | 3.2万円 3,000円 | 3.2万円 なし | 1K 21.6m2 | 築35年 | JR因美線 東津山駅 徒歩17分 岡山県津山市川崎 | 詳細を見る | |
アパート プラネット2(1K/3階) | |||||||
![]() | 2.4万円 3,000円 | なし なし | 1K 19.48m2 | 築33年 | JR姫新線 津山駅 徒歩46分 JR津山線 津山駅 徒歩46分 JR因美線 津山駅 徒歩46分 岡山県津山市上河原 | 詳細を見る | |
アパート プリートカーサB(ワンルーム/1階) | |||||||
![]() | 4.55万円 3,500円 | なし 4.55万円 | ワンルーム 32.9m2 | 築19年 | JR津山線 津山駅 徒歩9分 岡山県津山市大谷 | 詳細を見る | |
アパート グレイスフル豊国B(2DK/1階) | |||||||
![]() | 4.65万円 2,200円 | なし なし | 2DK 45.82m2 | 築23年 | JR姫新線 林野駅 徒歩17分 JR姫新線 楢原駅 徒歩39分 JR姫新線 勝間田駅 徒歩63分 岡山県美作市豊国原 | 詳細を見る | |
マンション 光マンション(2LDK/2階) | |||||||
![]() | 5万円 なし | 5万円 なし | 2LDK 52m2 | 築30年 | JR津山線 津山駅 徒歩38分 岡山県津山市沼 | 詳細を見る | |
アパート ヤハタコーポ2号館(3DK/2階) | |||||||
![]() | 5万円 なし | なし なし | 3DK 60m2 | 築41年 | JR津山線 津山駅 徒歩43分 岡山県津山市志戸部 | 詳細を見る | |








