賃貸マンション
ビレッジハウス社第二1号棟の賃貸物件情報(3DK/4階)
| 家賃 | 管理費等 | 敷金 | 礼金 | 間取り | 専有面積 |
|---|---|---|---|---|---|
| 4.37万円 | なし | なし | なし | 3DK | 53.08m2 |
入居決定でお祝い金最大100,000円
- 保証金
- -
- 償却・敷引
- -
- 築年数
- 築42年
- 所在階
- 4階
- 向き
- 南
Point
まずはお問い合わせ!
不動産会社は街のプロ、あなたに合った物件がきっと見つかります。
提供:ビレッジハウス住まい相談センター

詳細情報 ビレッジハウス社第二1号棟
物件紹介
ビレッジハウス社第二1号棟は加古川線青野ケ原駅から徒歩37分にあるマンションです。
このお部屋は2階以上に位置しているので、通行人や周囲の住人からの視線が気になりにくく、防犯面でも安心。建物のエントランスはオートロックがついており、インターホンにはTVモニタもついているため、相手の顔を確認してから来客対応することができます。
人気の南向きのお部屋。バス・トイレ別の仕様で、のんびりお風呂タイムも楽しめます。
このお部屋は2階以上に位置しているので、通行人や周囲の住人からの視線が気になりにくく、防犯面でも安心。建物のエントランスはオートロックがついており、インターホンにはTVモニタもついているため、相手の顔を確認してから来客対応することができます。
人気の南向きのお部屋。バス・トイレ別の仕様で、のんびりお風呂タイムも楽しめます。
お金・契約の情報
※「-」と表示されているものは、実際は料金が発生するものもございます。詳細はお問い合わせください。
| 家賃 | 4.37万円 | 管理費・共益費 | なし |
|---|---|---|---|
| 敷金 | なし | 礼金 | なし |
| フリーレント | 0ヶ月 | ||
| 入居決定でお祝い金最大100,000円 | |||
| 保証金 | - | 償却・敷引 | - |
| 住宅保険料 | 1万円(2年) | 更新料 | - |
| 保証会社利用 | - | 保証会社名 | - |
| 保証会社費用 | - | 保証会社備考 | - |
| 契約形態 | - | 契約期間 | - |
| 入居・引渡期間 | - | 現況 | 空室 |
| 入居可能条件 | 2人入居可、高齢者相談、学生可 | ||
| 契約備考 | 契約種類:普通契約、24時間緊急対応、ウォシュレット、ウォームレット、洗面台 | ||
部屋の情報
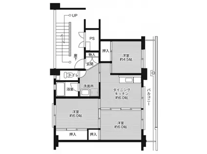
| 間取り | 3DK | 専有面積 | 53.08m2 |
|---|---|---|---|
| 所在階 / 向き | 4階 / 南 | バルコニー面積 | - |
| 水道 / ガス | - | ||
| 設備 | バス・トイレ別、オートロック、テレビドアホン、追い焚き、エアコン、バルコニー、給湯、洗濯機:室内 | ||
| 当社物件ID | 34922921 | ||
建物の情報
| 建物名 | ビレッジハウス社第二1号棟 | ||
|---|---|---|---|
| 所在地 | 兵庫県加東市沢部709-2 | ||
| 交通 | 加古川線 青野ケ原駅 徒歩37分 加古川線 社町駅 徒歩57分 加古川線 河合西駅 徒歩61分 | ||
| 階数 | 5階建 | 総戸数 | - |
| 築年月 | 1984年12月 / 築42年 | エレベーター | - |
| 駐車場 | 空有 4,400円/月 円 | バイク置き場 | - |
| 駐輪場 | - | 管理人/管理会社 | 日勤 |
| 建物種別 | マンション | 建物構造 | RC(鉄筋コンクリート) |
この部屋の取扱い不動産会社
| 会社名 | ビレッジハウス住まい相談センター | ||
|---|---|---|---|
| 所在地 | 愛知県名古屋市中区大須4-10-32 上前津KDビル5階 | 交通 | 名城線「上前津駅」徒歩3分 |
| 営業時間 | 平日:9:00-18:30/土日祝:9:00-18:00 | 定休日 | 年中無休(年末年始を除く) |
| 免許番号 | 東京都知事(2)第100758号 | 取引態様 | 貸主 |
| 不動産会社管理番号 | 00013829483 | 当社管理番号 | 459 |
| 所属団体 | 公益社団法人東京都宅地建物取引業協会会員 日本賃貸住宅管理協会会員 | ||
| 取扱い物件情報 | 物件詳細へ | ||
※各種情報と現状に差異がある場合は、現状優先となります。問い合わせをすることで、より詳しい条件、情報を確認する事ができます。
提供:ビレッジハウス住まい相談センター
この物件が気になったら掲載期限まであと13日
ビレッジハウス社第二1号棟に条件(家賃・エリア)が近い物件一覧
| 写真 | 家賃 管理費等 | 敷金 礼金 | 間取り 専有面積 | 築年数 | 最寄り駅 所在地 | キープ | 詳細 |
|---|---|---|---|---|---|---|---|
アパート ヒューマンハイツⅠ(1K/2階) | |||||||
![]() | 2.8万円 2,000円 | なし なし | 1K 18.22m2 | 築38年 | 加古川線 社町駅 徒歩56分 加古川線 滝野駅 徒歩57分 加古川線 滝駅(兵庫) 徒歩65分 兵庫県加東市山国 | 詳細を見る | |
マンション ルーキー東条マンション(1K/4階) | |||||||
![]() | 2.8万円 5,000円 | なし なし | 1K 22.1m2 | 築30年 | 兵庫県加東市松沢 | 詳細を見る | |
アパート フラットワンA(2LDK/2階) | |||||||
![]() | 5.1万円 3,300円 | なし なし | 2LDK 57.02m2 | 築22年 | JR加古川線 新西脇駅 徒歩10分 JR加古川線 西脇市駅 徒歩24分 JR加古川線 比延駅 徒歩28分 兵庫県西脇市下戸田 | 詳細を見る | |
アパート インステージ繁昌2(1K/2階) | |||||||
![]() | 4.5万円 6,000円 | 2万円 なし | 1K 28.45m2 | 築6年 | 兵庫県加西市繁昌町 | 詳細を見る | |
アパート サンクス(3DK/1階) | |||||||
![]() | 4.9万円 3,000円 | なし なし | 3DK 52.17m2 | 築30年 | JR加古川線 滝野駅 徒歩5分 JR加古川線 滝駅(兵庫) 徒歩20分 JR加古川線 社町駅 徒歩39分 兵庫県加東市下滝野 | 詳細を見る | |
マンション ヴィラナリー加東Ⅲ 2号棟(3LDK/3階) | |||||||
![]() | 3.7万円 3,000円 | なし なし | 3LDK 63.72m2 | 築46年 | 兵庫県加東市山国 | 詳細を見る | |
アパート ロイヤルハイツⅡ(1LDK/1階) | |||||||
![]() | 5.5万円 1,000円 | なし 11万円 | 1LDK 51.1m2 | 築36年 | 加古川線 滝野駅 徒歩29分 加古川線 滝駅(兵庫) 徒歩33分 加古川線 社町駅 徒歩52分 兵庫県加東市喜田2丁目 | 詳細を見る | |
アパート ハイツ高室(1DK/2階) | |||||||
![]() | 3.9万円 なし | なし なし | 1DK 30m2 | 築35年 | 北条鉄道北条線 北条町駅 徒歩16分 兵庫県加西市北条町西高室 | 詳細を見る | |









