賃貸マンション
メインステージ吉祥寺の賃貸物件情報(1K/3階)
| 家賃 | 管理費等 | 敷金 | 礼金 | 間取り | 専有面積 |
|---|---|---|---|---|---|
| 14.5万円 | 1.5万円 | なし | 14.5万円 | 1K | 27.42m2 |
入居決定でお祝い金最大100,000円
Point
共用部にはゴミ出し24時間OK・宅配ボックスなどが揃っております。駐輪場付きのマンションです。
提供:(株)ワイエス・ホーム吉祥寺店(SUUMO経由)

詳細情報 メインステージ吉祥寺
物件紹介
メインステージ吉祥寺はJR中央線吉祥寺駅から徒歩5分にあり、駅近で通勤通学に便利なマンションです。
このお部屋は2階以上に位置しているので、通行人や周囲の住人からの視線が気になりにくく、防犯面でも安心。建物のエントランスはオートロックがついており、インターホンにはTVモニタもついているため、相手の顔を確認してから来客対応することができます。
人気の南向きのお部屋。また、フローリングなのでお掃除もラクラク。キッチンはシステムキッチン仕様になっていますので、お料理好きの方にもぴったり。バス・トイレは別なので、のんびりお風呂タイムも楽しめるでしょう。また、雨の日でも浴室乾燥機を使えば、お洗濯も問題ありません。
通信設備面では、インターネット接続が可能です。また、BSアンテナ・CSアンテナもありますので、おうち時間も充実するでしょう(別途工事、契約料が必要な場合あり)。
建物にはエレベーターがついているので、重い荷物があっても安心。共用部には宅配ボックスが設定されているので、不在の時にも荷物を受け取ることができます。また、ペット飼育の相談ができますので、あなたの大切な家族の一員も快適に暮らせるか、ぜひ確認してみてください。
コンビニまで徒歩4分の場所にあり、日用品や食料品のお買い物にも便利です。
このお部屋は2階以上に位置しているので、通行人や周囲の住人からの視線が気になりにくく、防犯面でも安心。建物のエントランスはオートロックがついており、インターホンにはTVモニタもついているため、相手の顔を確認してから来客対応することができます。
人気の南向きのお部屋。また、フローリングなのでお掃除もラクラク。キッチンはシステムキッチン仕様になっていますので、お料理好きの方にもぴったり。バス・トイレは別なので、のんびりお風呂タイムも楽しめるでしょう。また、雨の日でも浴室乾燥機を使えば、お洗濯も問題ありません。
通信設備面では、インターネット接続が可能です。また、BSアンテナ・CSアンテナもありますので、おうち時間も充実するでしょう(別途工事、契約料が必要な場合あり)。
建物にはエレベーターがついているので、重い荷物があっても安心。共用部には宅配ボックスが設定されているので、不在の時にも荷物を受け取ることができます。また、ペット飼育の相談ができますので、あなたの大切な家族の一員も快適に暮らせるか、ぜひ確認してみてください。
コンビニまで徒歩4分の場所にあり、日用品や食料品のお買い物にも便利です。
お金・契約の情報
※「-」と表示されているものは、実際は料金が発生するものもございます。詳細はお問い合わせください。
| 家賃 | 14.5万円 | 管理費・共益費 | 1.5万円 |
|---|---|---|---|
| 敷金 | なし | 礼金 | 14.5万円 |
| 入居決定でお祝い金最大100,000円 | |||
| 保証金 | - | 償却・敷引 | - |
| 住宅保険料 | 1円 | 更新料 | - |
| その他費用 | AMLクラブサポート費用:1.65万円 | ||
| 保証会社利用 | 必須 | 保証会社名 | - |
| 保証会社費用 | - | 保証会社備考 | 家賃・管理費総額の50% |
| 契約形態 | - | 契約期間 | 2年 |
| 入居・引渡期間 | 2026年03月上旬 | 現況 | - |
| 入居可能条件 | 2人入居可、ペット相談 | ||
| 契約備考 | 退去時鍵交換費(契約時請求):29700円 クリーニング費(退去時請求):49500円 AMLクラブサポート費(契約時請求):16500円 火災保険2年間16000円 その他設備/条件:室内洗濯機置き場、ごみ出し24時間OK、独立洗面台、クローゼット、シューズボックス、照明器具付き、分譲賃貸 | ||
部屋の情報
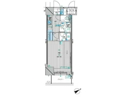
| 間取り | 1K | 専有面積 | 27.42m2 |
|---|---|---|---|
| 間取り詳細 | 洋室(9.1帖)、K(2.5帖) | ||
| 所在階 / 向き | 3階 / 南東 | バルコニー面積 | - |
| 水道 / ガス | 水道【公営】、ガス【都市】 | ||
| 設備 | バス・トイレ別、オートロック、テレビドアホン、宅配ボックス、浴室乾燥機、インターネット対応、システムキッチン、エアコン、エレベーター、温水洗浄便座、バルコニー、フローリング、2口コンロ、コンロ:ガス、シャワー、給湯、タイル張り | ||
| 当社物件ID | 66329 | ||
建物の情報
| 建物名 | メインステージ吉祥寺 | ||
|---|---|---|---|
| 所在地 | 東京都武蔵野市吉祥寺本町1丁目 | ||
| 交通 | 中央本線 吉祥寺駅 徒歩5分 京王電鉄井の頭線 吉祥寺駅 徒歩6分 | ||
| 階数 | 15階建 | 総戸数 | - |
| 築年月 | 2010年02月 / 築16年 | エレベーター | あり |
| 駐車場 | - | バイク置き場 | - |
| 駐輪場 | あり | 管理人/管理会社 | - |
| 周辺環境 | コンビニ 徒歩4分(282m) 販売店 徒歩4分(318m) その他 ドラッグストア その他 公園 その他 銀行 その他 * | ||
| 建物種別 | マンション | 建物構造 | SRC(鉄骨鉄筋コンクリート) |
この部屋の取扱い不動産会社
| 会社名 | ハウスコム東東京株式会社 荻窪店 | ||
|---|---|---|---|
| 所在地 | 東京都杉並区28-12サカエビル8階 | 交通 | - |
| 営業時間 | 10:00~18:00 | 定休日 | 水曜定休 |
| 免許番号 | 東京都知事(1)第108283号 | 取引態様 | 仲介 |
| 不動産会社管理番号 | HC2-398893-302-0065 | 当社管理番号 | 468 |
| 所属団体 | 、 | ||
| 取扱い物件情報 | 物件詳細へ | ||
※各種情報と現状に差異がある場合は、現状優先となります。問い合わせをすることで、より詳しい条件、情報を確認する事ができます。
提供:ハウスコム東東京株式会社 荻窪店
この物件が気になったら掲載期限まであと4日
メインステージ吉祥寺に条件(家賃・エリア)が近い物件一覧
| 写真 | 家賃 管理費等 | 敷金 礼金 | 間取り 専有面積 | 築年数 | 最寄り駅 所在地 | キープ | 詳細 |
|---|---|---|---|---|---|---|---|
マンション アビテビル(ワンルーム/3階) | |||||||
![]() | 9万円 5,000円 | 9万円 9万円 | ワンルーム 31.16m2 | 築27年 | 中央本線 三鷹駅 徒歩2分 東京都三鷹市下連雀3丁目 | 詳細を見る | |
マンション クリオ ラモード新江古田サウンドテラス(1SLDK/2階) | |||||||
![]() | 20万円 1.5万円 | なし なし | 1SLDK 43.83m2 | 新築 | 都営大江戸線 新江古田駅 徒歩7分 西武池袋線 江古田駅 徒歩14分 東京都練馬区豊玉北 | 詳細を見る | |
アパート ヒカルサ西東京向台ウエスト(1LDK/2階) | |||||||
![]() | 12.2万円 5,000円 | なし 12.2万円 | 1LDK 43.93m2 | 新築 | 西武鉄道新宿線 田無駅 徒歩18分 東京都西東京市向台町5丁目 | 詳細を見る | |
マンション レジデンス練馬北町(1DK/3階) | |||||||
![]() | 9.8万円 6,000円 | 9.8万円 なし | 1DK 31.22m2 | 築19年 | 東武東上線 東武練馬駅 徒歩6分 東武東上線 上板橋駅 徒歩15分 東京メトロ有楽町線 平和台駅(東京) 徒歩20分 東京都練馬区北町 | 詳細を見る | |
マンション 高円寺南サマリアマンション(1LDK/6階) | |||||||
![]() | 11万円 なし | 11万円 11万円 | 1LDK 32.13m2 | 築49年 | 中央本線 高円寺駅 徒歩2分 東京地下鉄丸ノ内線 新高円寺駅 徒歩13分 東京都杉並区高円寺南4丁目 | 詳細を見る | |
マンション 武蔵野スカイハイツ(3SDK/10階) | |||||||
![]() | 9.2万円 なし | 18.4万円 なし | 3SDK 54.64m2 | 築52年 | 西武新宿線 田無駅 徒歩19分 西武新宿線 花小金井駅 徒歩19分 西武新宿線 西武柳沢駅 徒歩33分 東京都西東京市芝久保町 | 詳細を見る | |
マンション プラウド練馬中村橋マークス(3LDK/5階) | |||||||
![]() | 21万円 1万円 | 42万円 21万円 | 3LDK 70.59m2 | 築4年 | 西武池袋線 中村橋駅 徒歩4分 都営大江戸線 豊島園駅 徒歩21分 西武有楽町線 練馬駅 徒歩23分 東京都練馬区貫井 | 詳細を見る | |
マンション ACオハナ(2LDK/1階) | |||||||
![]() | 18.2万円 1.2万円 | 18.2万円 18.2万円 | 2LDK 59.52m2 | 築1年 | 東武東上線 上板橋駅 徒歩14分 東武東上線 東武練馬駅 徒歩14分 東京メトロ副都心線 氷川台駅 徒歩23分 東京都練馬区錦 | 詳細を見る | |

/105x80-f1-q70-wp1)






