賃貸アパート
フジパレス蛍池南町II番館の賃貸物件情報(1LDK/2階)
| 家賃 | 管理費等 | 敷金 | 礼金 | 間取り | 専有面積 |
|---|---|---|---|---|---|
| 6.8万円 | 3,900円 | なし | 10万円 | 1LDK | 37.14m2 |
入居決定でお祝い金最大100,000円
- 保証金
- -
- 償却・敷引
- -
- 築年数
- 築11年
- 所在階
- 2階
- 向き
- 南
Point
こちらの物件のセールスポイントは、駅まで徒歩圏内で交通の便利良!買い物もスーパー・コンビニ・ドラッグストアが近くて便利!
提供:いい部屋ネット京橋店(株)アイホーム(SUUMO経由)

詳細情報 フジパレス蛍池南町II番館
物件紹介
フジパレス蛍池南町II番館は阪急宝塚線蛍池駅から徒歩10分にあり、駅近で通勤通学に便利なアパートです。
このお部屋は2階以上に位置しているので、通行人や周囲の住人からの視線が気になりにくく、防犯面でも安心。建物のエントランスはオートロックがついており、インターホンにはTVモニタもついているため、相手の顔を確認してから来客対応することができます。
人気の南向きのお部屋。角部屋でもあるため、周囲の居住者の生活音も気になりにくい場所です。室内にはウォークインクローゼットがありますので、たくさんの荷物も効率的に収納ができます。バス・トイレ別の仕様で、のんびりお風呂タイムも楽しめます。また、浴室乾燥機を使えば、雨の日でもお洗濯は問題ありません。
通信設備面ではBSアンテナがありCATVにも対応しているので、おうち時間も充実するでしょう(別途工事、契約料が必要な場合あり)。
このお部屋は2階以上に位置しているので、通行人や周囲の住人からの視線が気になりにくく、防犯面でも安心。建物のエントランスはオートロックがついており、インターホンにはTVモニタもついているため、相手の顔を確認してから来客対応することができます。
人気の南向きのお部屋。角部屋でもあるため、周囲の居住者の生活音も気になりにくい場所です。室内にはウォークインクローゼットがありますので、たくさんの荷物も効率的に収納ができます。バス・トイレ別の仕様で、のんびりお風呂タイムも楽しめます。また、浴室乾燥機を使えば、雨の日でもお洗濯は問題ありません。
通信設備面ではBSアンテナがありCATVにも対応しているので、おうち時間も充実するでしょう(別途工事、契約料が必要な場合あり)。
お金・契約の情報
※「-」と表示されているものは、実際は料金が発生するものもございます。詳細はお問い合わせください。
| 家賃 | 6.8万円 | 管理費・共益費 | 3,900円 |
|---|---|---|---|
| 敷金 | なし | 礼金 | 10万円 |
| 入居決定でお祝い金最大100,000円 | |||
| 保証金 | - | 償却・敷引 | - |
| 住宅保険料 | - | 更新料 | - |
| 契約形態 | - | 契約期間 | - |
| 入居・引渡期間 | - | 現況 | - |
| 契約備考 | こちらの物件のセールスポイントは、駅まで徒歩圏内で交通の便利良!買い物もスーパー・コンビニ・ドラッグストアが近くて便利! 合計1.1万円(内訳:鍵交換費用11000円) 1LDK 単身者可/二人入居可 普通借家2年 バストイレ別、エアコン、クロゼット、シャワー付洗面台、TVインターホン、浴室乾燥機、オートロック、室内洗濯置、南向き、角住戸、温水洗浄便座、脱衣所、洗面所独立、洗面化粧台、2口コンロ、駐輪場、CATV、敷金不要、IHクッキングヒーター、照明付、ウォークインクロゼット、2沿線利用可、3駅以上利用可、駅徒歩10分以内、都市ガス、南面バルコニー、BS 入居日:'25年12月中旬 | ||
部屋の情報
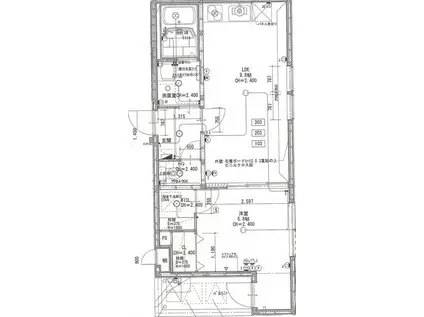
| 間取り | 1LDK | 専有面積 | 37.14m2 |
|---|---|---|---|
| 所在階 / 向き | 2階 / 南 | バルコニー面積 | - |
| 水道 / ガス | - | ||
| 設備 | バス・トイレ別、2階以上、オートロック、テレビドアホン、浴室乾燥機、ウォークインクローゼット、エアコン、温水洗浄便座、南向き、角部屋、バルコニー、洗髪洗面化粧台、2口コンロ、コンロ:IH、CATV、BSアンテナ、洗濯機:室内 | ||
| 当社物件ID | 159899385 | ||
建物の情報
| 建物名 | フジパレス蛍池南町II番館 | ||
|---|---|---|---|
| 所在地 | 大阪府豊中市螢池北町 | ||
| 交通 | 阪急宝塚線 蛍池駅 徒歩10分 大阪モノレール本線 大阪空港駅 徒歩14分 阪急宝塚線 石橋阪大前駅 徒歩19分 | ||
| 階数 | 3階建 | 総戸数 | 9戸 |
| 築年月 | 2015年02月 / 築11年 | エレベーター | - |
| 駐車場 | なし | バイク置き場 | - |
| 駐輪場 | あり | 管理人/管理会社 | - |
| 周辺環境 | その他 生鮮&業務スーパー ボトルワールドOK 蛍池店(スーパー)まで187m その他 アイン薬局 蛍池店(ドラッグストア)まで301m その他 セブンイレブン 大阪空港前店(コンビニ)まで550m その他 ファミリーマート 大阪空港前店(コンビニ)まで576m その他 業務スーパー 蛍池店(スーパー)まで182m その他 ローソン 蛍池中町店(コンビニ)まで411m | ||
| 建物種別 | アパート | 建物構造 | 木造 |
この部屋の取扱い不動産会社
| 会社名 | いい部屋ネット京橋店(株)アイホーム(SUUMO経由) | ||
|---|---|---|---|
| 所在地 | 大阪府大阪市都島区東野田町4-9-16 | 交通 | - |
| 営業時間 | 9:30~19:30 | 定休日 | 無し |
| 免許番号 | 大阪府知事54134 | 取引態様 | 仲介 |
| 不動産会社管理番号 | 100473639336 | 当社管理番号 | 89 |
| 所属団体 | (公社)全日本不動産協会大阪府本部会員 | ||
| 公正取引協議会 | (公社)近畿地区不動産公正取引協議会加盟 | ||
| 取扱い物件情報 | 物件詳細へ | ||
※各種情報と現状に差異がある場合は、現状優先となります。問い合わせをすることで、より詳しい条件、情報を確認する事ができます。
提供:いい部屋ネット京橋店(株)アイホーム(SUUMO経由)
この物件が気になったら掲載期限まであと10日
フジパレス蛍池南町II番館に条件(家賃・エリア)が近い物件一覧
| 写真 | 家賃 管理費等 | 敷金 礼金 | 間取り 専有面積 | 築年数 | 最寄り駅 所在地 | キープ | 詳細 |
|---|---|---|---|---|---|---|---|
マンション ファーストフィオーレ北大阪リアン(1K/9階) | |||||||
| 7.52万円 6,300円 | なし 7.52万円 | 1K 26.25m2 | 築1年 | 阪急電鉄京都線 上新庄駅 徒歩4分 大阪市今里筋線 瑞光四丁目駅 徒歩12分 阪急電鉄京都線 相川駅 徒歩13分 大阪府大阪市東淀川区小松1丁目10-28 | 詳細を見る | ||
アパート エルプエンテ2(1LDK/2階) | |||||||
| 8.3万円 7,000円 | なし 10万円 | 1LDK 48.04m2 | 築17年 | 大阪市今里筋線 井高野駅 徒歩3分 大阪市今里筋線 瑞光四丁目駅 徒歩16分 阪急電鉄京都線 相川駅 徒歩20分 大阪府大阪市東淀川区井高野2丁目4-10 | 詳細を見る | ||
アパート リブレメゾン淡路Ⅰ(1LDK/1階) | |||||||
| 7.8万円 6,000円 | なし 7.8万円 | 1LDK 33.98m2 | 築1年 | 阪急電鉄千里線 下新庄駅 徒歩7分 阪急電鉄千里線 淡路駅 徒歩8分 おおさか東線 南吹田駅 徒歩14分 大阪府大阪市東淀川区淡路5丁目21-35 | 詳細を見る | ||
マンション S-RESIDENCE江坂EMINENCE(1K/14階) | |||||||
| 8.5万円 1.1万円 | なし なし | 1K 25.2m2 | 築7年 | 北大阪急行南北線 江坂駅 徒歩7分 阪急電鉄千里線 豊津駅(大阪) 徒歩13分 阪急電鉄千里線 関大前駅 徒歩17分 大阪府吹田市江坂町1丁目12-50 | 詳細を見る | ||
アパート クレアトゥール岸辺1(1DK/3階) | |||||||
| 6.95万円 5,000円 | なし 13.9万円 | 1DK 29.67m2 | 築4年 | 東海道本線 岸辺駅 徒歩9分 阪急電鉄京都線 正雀駅 徒歩17分 阪急電鉄京都線 摂津市駅 徒歩22分 大阪府吹田市岸部中4丁目14-5 | 詳細を見る | ||
マンション NCグリーンハイツ(1K/2階) | |||||||
| 5万円 3,000円 | なし なし | 1K 24.25m2 | 築34年 | 阪急電鉄千里線 豊津駅(大阪) 徒歩7分 大阪市御堂筋線 江坂駅 徒歩11分 東海道本線 吹田駅(JR) 徒歩25分 大阪府吹田市垂水町2丁目7-20 | 詳細を見る | ||
マンション セレニテ天六ミラク(1LDK/2階) | |||||||
| 10万円 1.02万円 | なし なし | 1LDK 27.22m2 | 築2年 | 大阪市堺筋線 天神橋筋六丁目駅 徒歩2分 大阪市谷町線 天神橋筋六丁目駅 徒歩2分 大阪市堺筋線 扇町駅(大阪) 徒歩12分 大阪府大阪市北区長柄中1丁目4-8 | 詳細を見る | ||
マンション ラルーチェ北梅田(ワンルーム/6階) | |||||||
| 8.5万円 1万円 | なし 15万円 | ワンルーム 30.44m2 | 築11年 | 大阪市御堂筋線 中津駅(大阪メトロ) 徒歩9分 大阪市谷町線 中崎町駅 徒歩15分 阪急電鉄千里線 天神橋筋六丁目駅 徒歩16分 大阪府大阪市北区豊崎6丁目9-9 | 詳細を見る | ||
豊中市の町名から探す
豊中市の部屋を間取りから探す
豊中市の駅から探す
豊中市と隣接している市区町村から探す
- 豊中市(4,877)
- 大阪市都島区(1,764)
- 大阪市福島区(2,054)
- 大阪市此花区(444)
- 大阪市西区(4,137)
- 大阪市港区(1,311)
- 大阪市大正区(890)
- 大阪市天王寺区(1,320)
- 大阪市浪速区(3,290)
- 大阪市西淀川区(1,867)
- 大阪市東淀川区(5,116)
- 大阪市東成区(2,223)
- 大阪市生野区(1,652)
- 大阪市旭区(1,717)
- 大阪市城東区(1,989)
- 大阪市阿倍野区(1,387)
- 大阪市住吉区(1,924)
- 大阪市東住吉区(2,021)
- 大阪市西成区(869)
- 大阪市淀川区(5,360)
- 大阪市鶴見区(1,080)
- 大阪市住之江区(1,153)
- 大阪市平野区(2,030)
- 大阪市北区(5,504)
- 大阪市中央区(4,383)
- 池田市(1,550)
- 吹田市(6,368)
- 箕面市(1,673)
