賃貸アパート
テラス祖師ヶ谷大蔵の賃貸物件情報(ワンルーム/2階)
| 家賃 | 管理費等 | 敷金 | 礼金 | 間取り | 専有面積 |
|---|---|---|---|---|---|
| 7.7万円 | 4,000円 | なし | 7.7万円 | ワンルーム | 12.68m2 |
入居決定でお祝い金最大100,000円
- 保証金
- -
- 償却・敷引
- -
- 築年数
- 新築(築1年)
- 所在階
- 2階
- 向き
- 東
Point
独立した洗面所があり、身支度にもお使いいただけます。インターネット付きの物件です。
提供:(株)noah(SUUMO経由)

詳細情報 テラス祖師ヶ谷大蔵
物件紹介
テラス祖師ヶ谷大蔵は小田急線祖師ケ谷大蔵駅から徒歩10分にあり、駅近で通勤通学に便利なアパートです。
このお部屋は2階以上に位置しているので、通行人や周囲の住人からの視線が気になりにくく、防犯面でも安心。建物のエントランスはオートロックがついており、インターホンにはTVモニタもついているため、相手の顔を確認してから来客対応することができます。
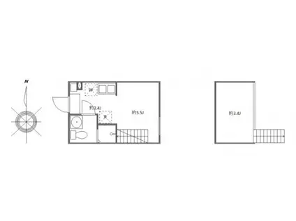
フローリングのお部屋なのでお掃除もラクラク。室内には多目的に利用できる人気のロフトもあり、お部屋のアレンジも自在です。キッチンはシステムキッチン仕様になっていますので、お料理好きの方にもぴったり。また、バス・トイレは別で、のんびりお風呂タイムも楽しめるでしょう。
通信設備面では、インターネットが無料で使えるので、月々の出費を抑えられるのも魅力です(別途工事等が必要な場合あり)。
共用部には宅配ボックスが設定されているので、不在の時にも荷物を受け取ることができます。
コンビニまで徒歩9分の場所にあり、日用品や食料品のお買い物にも便利です。
このお部屋は2階以上に位置しているので、通行人や周囲の住人からの視線が気になりにくく、防犯面でも安心。建物のエントランスはオートロックがついており、インターホンにはTVモニタもついているため、相手の顔を確認してから来客対応することができます。
フローリングのお部屋なのでお掃除もラクラク。室内には多目的に利用できる人気のロフトもあり、お部屋のアレンジも自在です。キッチンはシステムキッチン仕様になっていますので、お料理好きの方にもぴったり。また、バス・トイレは別で、のんびりお風呂タイムも楽しめるでしょう。
通信設備面では、インターネットが無料で使えるので、月々の出費を抑えられるのも魅力です(別途工事等が必要な場合あり)。
共用部には宅配ボックスが設定されているので、不在の時にも荷物を受け取ることができます。
コンビニまで徒歩9分の場所にあり、日用品や食料品のお買い物にも便利です。
お金・契約の情報
※「-」と表示されているものは、実際は料金が発生するものもございます。詳細はお問い合わせください。
| 家賃 | 7.7万円 | 管理費・共益費 | 4,000円 |
|---|---|---|---|
| 敷金 | なし | 礼金 | 7.7万円 |
| 入居決定でお祝い金最大100,000円 | |||
| 保証金 | - | 償却・敷引 | - |
| 住宅保険料 | 1円 | 更新料 | - |
| 保証会社利用 | 必須 | 保証会社名 | - |
| 保証会社費用 | - | 保証会社備考 | 月額総賃料の50%〜 次年度以降15000円〜 引落とし手数料660円 |
| 契約形態 | - | 契約期間 | 2年 |
| 入居・引渡期間 | 2026年03月 | 現況 | - |
| 契約備考 | プレミアデスク:22000円 契約時ルームクリーニング費用:60500円 町内会費/月額:300円 短期解約違約金:1年未満2カ月 その他設備/条件:室内洗濯機置き場、独立洗面台、防犯カメラ、シューズボックス | ||
部屋の情報
| 間取り | ワンルーム | 専有面積 | 12.68m2 |
|---|---|---|---|
| 間取り詳細 | 洋室(5.5帖) | ||
| 所在階 / 向き | 2階 / 東 | バルコニー面積 | - |
| 水道 / ガス | 水道【公営】、ガス【プロパン】 | ||
| 設備 | テレビドアホン、宅配ボックス、インターネット対応、エアコン、フローリング、ロフトあり、インターネット使用料無料、シャワー、給湯 | ||
| 当社物件ID | 160480660 | ||
建物の情報
| 建物名 | テラス祖師ヶ谷大蔵 | ||
|---|---|---|---|
| 所在地 | 東京都世田谷区祖師谷4丁目 | ||
| 交通 | 小田急電鉄小田原線 祖師ケ谷大蔵駅 徒歩11分 小田急電鉄小田原線 成城学園前駅 徒歩16分 | ||
| 階数 | 2階建 | 総戸数 | - |
| 築年月 | 2026年02月 / 新築(築1年) | エレベーター | - |
| 駐車場 | なし | バイク置き場 | - |
| 駐輪場 | - | 管理人/管理会社 | - |
| 周辺環境 | コンビニ 徒歩9分(718m) 販売店 徒歩8分(585m) その他 ドラッグストア その他 公園 その他 銀行 その他 * | ||
| 建物種別 | アパート | 建物構造 | 木造 |
この部屋の取扱い不動産会社
| 会社名 | ハウスコム西東京株式会社 三軒茶屋店 | ||
|---|---|---|---|
| 所在地 | 東京都世田谷区38-7ワコーレ三軒茶屋2階 | 交通 | - |
| 営業時間 | 10:00~18:00 | 定休日 | - |
| 免許番号 | 東京都知事(1)第108225号 | 取引態様 | 仲介 |
| 不動産会社管理番号 | HC2-5401741-203-0098 | 当社管理番号 | 468 |
| 所属団体 | 、 | ||
| 取扱い物件情報 | 物件詳細へ | ||
※各種情報と現状に差異がある場合は、現状優先となります。問い合わせをすることで、より詳しい条件、情報を確認する事ができます。
提供:ハウスコム西東京株式会社 三軒茶屋店
この物件が気になったら掲載期限まであと4日
テラス祖師ヶ谷大蔵に条件(家賃・エリア)が近い物件一覧
| 写真 | 家賃 管理費等 | 敷金 礼金 | 間取り 専有面積 | 築年数 | 最寄り駅 所在地 | キープ | 詳細 |
|---|---|---|---|---|---|---|---|
アパート サンシティドミールC棟(1K/1階) | |||||||
![]() | 6.6万円 2,000円 | 6.6万円 6.6万円 | 1K 23.77m2 | 築40年 | JR京浜東北線 蒲田駅 徒歩12分 京急本線 京急蒲田駅 徒歩12分 東京都大田区蒲田本町 | 詳細を見る | |
マンション リップルハウス(1K/2階) | |||||||
![]() | 8.3万円 3,000円 | 8.3万円 16.6万円 | 1K 22.8m2 | 築21年 | 京浜急行電鉄本線 大森町駅 徒歩5分 京浜急行電鉄本線 梅屋敷駅(東京) 徒歩7分 東京都大田区大森中1丁目 | 詳細を見る | |
マンション ハイツACT(1K/3階) | |||||||
![]() | 7.7万円 3,000円 | 7.7万円 7.7万円 | 1K 20.56m2 | 築30年 | JR京浜東北線 蒲田駅 徒歩11分 京急本線 梅屋敷駅(東京) 徒歩13分 京急本線 京急蒲田駅 徒歩17分 東京都大田区蒲田 | 詳細を見る | |
マンション SEED JUST B-BASE COAST(1LDK/3階) | |||||||
![]() | 9.9万円 1.5万円 | 9.9万円 9.9万円 | 1LDK 25.41m2 | 築1年 | 東京モノレール羽田 昭和島駅 徒歩11分 京浜急行電鉄本線 梅屋敷駅(東京) 徒歩19分 東京都大田区大森南4丁目 | 詳細を見る | |
マンション コーポサンライズ(1DK/1階) | |||||||
![]() | 6.6万円 3,000円 | 6.6万円 なし | 1DK 24.79m2 | 築44年 | 京浜東北・根岸線 蒲田駅 徒歩13分 東急池上線 池上駅 徒歩14分 東京都大田区中央8丁目 | 詳細を見る | |
アパート SEED SAVE PETIRASU BREEZE(1LDK/1階) | |||||||
![]() | 10.4万円 1万円 | 20.8万円 10.4万円 | 1LDK 32.95m2 | 新築 | 東京モノレール羽田 昭和島駅 徒歩12分 京浜急行電鉄本線 大森町駅 徒歩18分 東京都大田区大森東5丁目 | 詳細を見る | |






