賃貸マンション
ウッドフィールド久が原の賃貸物件情報(2LDK/3階)
| 家賃 | 管理費等 | 敷金 | 礼金 | 間取り | 専有面積 |
|---|---|---|---|---|---|
| 14.5万円 | 4,000円 | 14.5万円 | 14.5万円 | 2LDK | 57.25m2 |
入居決定でお祝い金最大100,000円
- 保証金
- -
- 償却・敷引
- -
- 築年数
- 築27年
- 所在階
- 3階
- 向き
- 南
Point
まずはお問い合わせ!
不動産会社は街のプロ、あなたに合った物件がきっと見つかります。
提供:株式会社日商ベックス リロの不動産 蒲田店(賃貸スモッカ経由)

詳細情報 ウッドフィールド久が原
物件紹介
ウッドフィールド久が原は東急池上線久が原駅から徒歩14分にあるマンションです。
このお部屋は2階以上に位置しているので、通行人や周囲の住人からの視線が気になりにくく、防犯面でも安心。建物のエントランスはオートロックがついており、インターホンにはTVモニタもついているため、相手の顔を確認してから来客対応することができます。
人気の南向きのお部屋。また、フローリングなのでお掃除もラクラク。キッチンはシステムキッチン仕様になっていますので、お料理好きの方にもぴったり。バス・トイレは別なので、のんびりお風呂タイムも楽しめるでしょう。また、雨の日でも浴室乾燥機を使えば、お洗濯も問題ありません。
通信設備面では、インターネット接続が可能です。また、BSアンテナ・CSアンテナもありますので、おうち時間も充実するでしょう(別途工事、契約料が必要な場合あり)。
共用部には宅配ボックスが設定されているので、不在の時にも荷物を受け取ることができます。
このお部屋は2階以上に位置しているので、通行人や周囲の住人からの視線が気になりにくく、防犯面でも安心。建物のエントランスはオートロックがついており、インターホンにはTVモニタもついているため、相手の顔を確認してから来客対応することができます。
人気の南向きのお部屋。また、フローリングなのでお掃除もラクラク。キッチンはシステムキッチン仕様になっていますので、お料理好きの方にもぴったり。バス・トイレは別なので、のんびりお風呂タイムも楽しめるでしょう。また、雨の日でも浴室乾燥機を使えば、お洗濯も問題ありません。
通信設備面では、インターネット接続が可能です。また、BSアンテナ・CSアンテナもありますので、おうち時間も充実するでしょう(別途工事、契約料が必要な場合あり)。
共用部には宅配ボックスが設定されているので、不在の時にも荷物を受け取ることができます。
お金・契約の情報
※「-」と表示されているものは、実際は料金が発生するものもございます。詳細はお問い合わせください。
| 家賃 | 14.5万円 | 管理費・共益費 | 4,000円 |
|---|---|---|---|
| 敷金 | 14.5万円 | 礼金 | 14.5万円 |
| 入居決定でお祝い金最大100,000円 | |||
| 保証金 | - | 償却・敷引 | - |
| 住宅保険料 | 住宅保険料あり | 更新料 | - |
| 契約形態 | - | 契約期間 | 2年 |
| 入居・引渡期間 | 2026年01月下旬 | 現況 | 賃貸中 |
| 契約備考 | エアコン清掃費:54,450円 鍵交換代:36,300円 更新料:1ヶ月 保証会社:利用必須 初回契約時:50%、月額:1%、初回保証料:最低2万円 その他設備/条件:IT重説 対応物件、防犯カメラ、最上階の物件、コンロ2口以上、独立洗面台、TVドアホン、エアコン複数 | ||
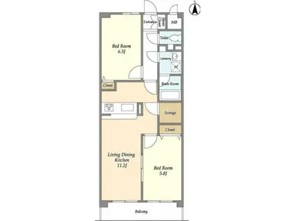
部屋の情報
| 間取り | 2LDK | 専有面積 | 57.25m2 |
|---|---|---|---|
| 間取り詳細 | LDK(11.2帖)、洋室(5.8帖)、洋室(6.3帖) | ||
| 所在階 / 向き | 3階 / 南 | バルコニー面積 | - |
| 水道 / ガス | - | ||
| 設備 | バス・トイレ別、2階以上、オートロック、宅配ボックス、追い焚き、システムキッチン、カウンターキッチン、エアコン、南向き、バルコニー、フローリング、BSアンテナ、洗濯機:室内、タイル張り | ||
| 当社物件ID | 6549310 | ||
建物の情報
| 建物名 | ウッドフィールド久が原 | ||
|---|---|---|---|
| 所在地 | 東京都大田区久が原2丁目 | ||
| 交通 | 東急池上線 久が原駅 徒歩14分 東京都浅草線 西馬込駅 徒歩16分 東急池上線 池上駅 徒歩18分 | ||
| 階数 | 3階建 | 総戸数 | - |
| 築年月 | 1999年09月 / 築27年 | エレベーター | - |
| 駐車場 | - | バイク置き場 | - |
| 駐輪場 | あり | 管理人/管理会社 | - |
| 建物種別 | マンション | 建物構造 | RC(鉄筋コンクリート) |
この部屋の取扱い不動産会社
| 会社名 | 株式会社日商ベックス リロの不動産 蒲田店(賃貸スモッカ経由) | ||
|---|---|---|---|
| 所在地 | 東京都大田区西蒲田7丁目1-6 谷口ビル 1F | 交通 | - |
| 営業時間 | - | 定休日 | - |
| 免許番号 | 国土交通大臣免許(10)第3273号 | 取引態様 | 仲介 |
| 不動産会社管理番号 | nvrelo_100_100_00013394731 | 当社管理番号 | 463 |
| 取扱い物件情報 | 物件詳細へ | ||
※各種情報と現状に差異がある場合は、現状優先となります。問い合わせをすることで、より詳しい条件、情報を確認する事ができます。
提供:株式会社日商ベックス リロの不動産 蒲田店(賃貸スモッカ経由)
この物件が気になったら掲載期限まであと5日
ウッドフィールド久が原に条件(家賃・エリア)が近い物件一覧
| 写真 | 家賃 管理費等 | 敷金 礼金 | 間取り 専有面積 | 築年数 | 最寄り駅 所在地 | キープ | 詳細 |
|---|---|---|---|---|---|---|---|
マンション ドゥーエ西大島(1K/5階) | |||||||
![]() | 9.2万円 7,000円 | 9.2万円 9.2万円 | 1K 20.52m2 | 築20年 | 都営新宿線 西大島駅 徒歩6分 都営新宿線 住吉駅(東京) 徒歩10分 東京メトロ半蔵門線 住吉駅(東京) 徒歩10分 東京都江東区大島 | 詳細を見る | |
マンション SEED JUST B-BASE II(1LDK/1階) | |||||||
![]() | 10.1万円 1.5万円 | 10.1万円 10.1万円 | 1LDK 27.92m2 | 新築 | 東京モノレール 昭和島駅 徒歩11分 京急本線 梅屋敷駅(東京) 徒歩19分 東京都大田区大森南 | 詳細を見る | |
マンション NORUM VIENTO(1LDK/3階) | |||||||
![]() | 14.5万円 3,000円 | 14.5万円 14.5万円 | 1LDK 40.27m2 | 築18年 | JR京浜東北線 蒲田駅 徒歩12分 東急池上線 蓮沼駅 徒歩16分 京急本線 京急蒲田駅 徒歩22分 東京都大田区西蒲田 | 詳細を見る | |
マンション ラ・ルーナ(1K/3階) | |||||||
![]() | 9.2万円 3,000円 | 9.2万円 なし | 1K 28.13m2 | 築15年 | 京急本線 梅屋敷駅(東京) 徒歩9分 JR京浜東北線 蒲田駅 徒歩13分 京急本線 京急蒲田駅 徒歩13分 東京都大田区蒲田 | 詳細を見る | |
マンション コンフォリア大島DEUX(1K/3階) | |||||||
![]() | 10.9万円 8,000円 | 10.9万円 なし | 1K 25.63m2 | 築4年 | 都営新宿線 大島駅(東京) 徒歩3分 東京都江東区大島 | 詳細を見る | |
アパート SEED SAVE PETIRASU Ⅲ(1LDK/1階) | |||||||
![]() | 11.5万円 1万円 | 23万円 11.5万円 | 1LDK 35.83m2 | 新築 | 東京モノレール羽田 昭和島駅 徒歩12分 京浜急行電鉄本線 大森町駅 徒歩18分 東京都大田区大森東5丁目 | 詳細を見る | |
マンション メイクスデザイン門前仲町2(1K/5階) | |||||||
![]() | 11万円 1.2万円 | なし 11万円 | 1K 25.58m2 | 築12年 | 東京都大江戸線 門前仲町駅 徒歩1分 東京地下鉄東西線 門前仲町駅 徒歩1分 東京都江東区深川2丁目 | 詳細を見る | |
アパート M SONIA KUGAHARA(ワンルーム/1階) | |||||||
![]() | 9.3万円 3,000円 | 9.3万円 13.95万円 | ワンルーム 24.57m2 | 築1年 | 東急池上線 久が原駅 徒歩8分 東急池上線 御嶽山駅 徒歩9分 東急多摩川線 鵜の木駅 徒歩13分 東京都大田区西嶺町 | 詳細を見る | |








