賃貸マンション
ハーモニーレジデンス東京南砂ザガーデンの賃貸物件情報(1DK/1階)
| 家賃 | 管理費等 | 敷金 | 礼金 | 間取り | 専有面積 |
|---|---|---|---|---|---|
| 13.9万円 | 1万円 | 13.9万円 | 27.8万円 | 1DK | 25.52m2 |
入居決定でお祝い金最大100,000円
Point
まずはお問い合わせ!
不動産会社は街のプロ、あなたに合った物件がきっと見つかります。
提供:(株)R不動産(SUUMO経由)

詳細情報 ハーモニーレジデンス東京南砂ザガーデン
物件紹介
ハーモニーレジデンス東京南砂ザガーデンは東京メトロ東西線南砂町駅から徒歩9分にあり、駅近で通勤通学に便利なマンションです。
建物のエントランスはオートロックがついており、インターホンにはTVモニタもついているため、相手の顔を確認してから来客対応することができます。
フローリングのお部屋なのでお掃除もラクラク。キッチンはシステムキッチン仕様になっていますので、お料理好きの方にもぴったり。バス・トイレは別なので、のんびりお風呂タイムも楽しめるでしょう。また、雨の日でも浴室乾燥機を使えば、お洗濯も問題ありません。
通信設備面では、インターネットが無料で使えるので、月々の出費を抑えられるのも魅力です。また、BSアンテナ・CSアンテナもありますので、おうち時間も充実するでしょう(別途工事、BS・CSの契約料等が必要な場合あり)。
建物にはエレベーターがついているので、重い荷物があっても安心。共用部には宅配ボックスが設定されているので、不在の時にも荷物を受け取ることができます。また、ペット飼育の相談ができますので、あなたの大切な家族の一員も快適に暮らせるか、ぜひ確認してみてください。
建物のエントランスはオートロックがついており、インターホンにはTVモニタもついているため、相手の顔を確認してから来客対応することができます。
フローリングのお部屋なのでお掃除もラクラク。キッチンはシステムキッチン仕様になっていますので、お料理好きの方にもぴったり。バス・トイレは別なので、のんびりお風呂タイムも楽しめるでしょう。また、雨の日でも浴室乾燥機を使えば、お洗濯も問題ありません。
通信設備面では、インターネットが無料で使えるので、月々の出費を抑えられるのも魅力です。また、BSアンテナ・CSアンテナもありますので、おうち時間も充実するでしょう(別途工事、BS・CSの契約料等が必要な場合あり)。
建物にはエレベーターがついているので、重い荷物があっても安心。共用部には宅配ボックスが設定されているので、不在の時にも荷物を受け取ることができます。また、ペット飼育の相談ができますので、あなたの大切な家族の一員も快適に暮らせるか、ぜひ確認してみてください。
お金・契約の情報
※「-」と表示されているものは、実際は料金が発生するものもございます。詳細はお問い合わせください。
| 家賃 | 13.9万円 | 管理費・共益費 | 1万円 |
|---|---|---|---|
| 敷金 | 13.9万円 | 礼金 | 27.8万円 |
| 入居決定でお祝い金最大100,000円 | |||
| 保証金 | - | 償却・敷引 | - |
| 住宅保険料 | 1円 | 更新料 | - |
| その他費用 | プレミアデスク2年(税込):2.2万円 | ||
| 保証会社利用 | 必須 | 保証会社名 | - |
| 保証会社費用 | - | 保証会社備考 | 【シノケン】月額総賃料の50%〜(最低保証料5万円)/次年度以降15000円〜※引落とし手数料660円(税込)※別紙申込書有。弊社HP上の申込書タブより申込書をダウンロードし記入の上アップロード下 |
| 契約形態 | - | 契約期間 | 2年 |
| 入居・引渡期間 | 相談 | 現況 | - |
| 入居可能条件 | 事務所不可、楽器不可、ペット可 | ||
| 契約備考 | 鍵交換費用:38500 その他設備/条件:室内洗濯機置き場、独立洗面台、防犯カメラ、クローゼット | ||
部屋の情報
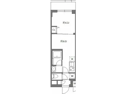
| 間取り | 1DK | 専有面積 | 25.52m2 |
|---|---|---|---|
| 間取り詳細 | 洋室(4.3帖) | ||
| 所在階 / 向き | 1階 / 北東 | バルコニー面積 | - |
| 水道 / ガス | 水道【公営】、ガス【プロパン】 | ||
| 設備 | バス・トイレ別、オートロック、テレビドアホン、宅配ボックス、浴室乾燥機、インターネット対応、システムキッチン、エアコン、エレベーター、温水洗浄便座、バルコニー、フローリング、2口コンロ、コンロ:ガス、CSアンテナ、BSアンテナ、給湯 | ||
| 当社物件ID | 157889530 | ||
建物の情報
| 建物名 | ハーモニーレジデンス東京南砂ザガーデン | ||
|---|---|---|---|
| 所在地 | 東京都江東区南砂7丁目 | ||
| 交通 | 東京地下鉄東西線 南砂町駅 徒歩9分 | ||
| 階数 | 5階建 | 総戸数 | 31戸 |
| 築年月 | 2024年12月 / 築2年 | エレベーター | あり |
| 駐車場 | ご確認ください | バイク置き場 | あり |
| 駐輪場 | あり | 管理人/管理会社 | - |
| 周辺環境 | その他 ドラッグストア その他 公園 その他 銀行 その他 * | ||
| 建物種別 | マンション | 建物構造 | RC(鉄筋コンクリート) |
この部屋の取扱い不動産会社
| 会社名 | ハウスコム東東京株式会社 西葛西店 | ||
|---|---|---|---|
| 所在地 | 東京都江戸川区15-3中兼ビル1階 | 交通 | - |
| 営業時間 | 10:00~18:00 | 定休日 | - |
| 免許番号 | 東京都知事(1)第108283号 | 取引態様 | 仲介 |
| 不動産会社管理番号 | HC5-4617572-0102-0186 | 当社管理番号 | 468 |
| 所属団体 | 、 | ||
| 取扱い物件情報 | 物件詳細へ | ||
※各種情報と現状に差異がある場合は、現状優先となります。問い合わせをすることで、より詳しい条件、情報を確認する事ができます。
提供:ハウスコム東東京株式会社 西葛西店
この物件が気になったら掲載期限まであと5日
ハーモニーレジデンス東京南砂ザガーデンに条件(家賃・エリア)が近い物件一覧
| 写真 | 家賃 管理費等 | 敷金 礼金 | 間取り 専有面積 | 築年数 | 最寄り駅 所在地 | キープ | 詳細 |
|---|---|---|---|---|---|---|---|
マンション SEED JUST B-BASE COAST(1LDK/2階) | |||||||
![]() | 10.1万円 1.5万円 | 10.1万円 10.1万円 | 1LDK 27.92m2 | 築1年 | 東京モノレール羽田 昭和島駅 徒歩11分 京浜急行電鉄本線 梅屋敷駅(東京) 徒歩19分 東京都大田区大森南4丁目 | 詳細を見る | |
マンション レガスタ東向島(1K/8階) | |||||||
![]() | 9.7万円 6,000円 | 9.7万円 9.7万円 | 1K 25.24m2 | 築20年 | 東武伊勢崎線 東向島駅 徒歩2分 京成押上線 京成曳舟駅 徒歩11分 京成押上線 八広駅 徒歩13分 東京都墨田区東向島 | 詳細を見る | |
マンション ライオンズマンション亀戸(1LDK/6階) | |||||||
![]() | 14.9万円 1.1万円 | 14.9万円 14.9万円 | 1LDK 49.74m2 | 築46年 | JR総武線 亀戸駅 徒歩4分 東武亀戸線 亀戸水神駅 徒歩4分 都営新宿線 住吉駅(東京) 徒歩25分 東京都江東区亀戸 | 詳細を見る | |
アパート ノリアセット(2LDK/2階) | |||||||
![]() | 18.5万円 3,000円 | 18.5万円 18.5万円 | 2LDK 62.72m2 | 新築 | 京浜急行電鉄本線 大森町駅 徒歩9分 京浜急行電鉄本線 梅屋敷駅(東京) 徒歩16分 東京都大田区大森東3丁目 | 詳細を見る | |
マンション GRAN PASEO 両国(1K/10階) | |||||||
![]() | 12.8万円 1.5万円 | なし 12.8万円 | 1K 25.35m2 | 築5年 | JR総武線 両国駅 徒歩6分 都営大江戸線 両国駅 徒歩7分 都営新宿線 浜町駅 徒歩17分 東京都墨田区両国 | 詳細を見る | |
マンション ドルチェ月島・弐番館(1K/10階) | |||||||
![]() | 12.8万円 1.1万円 | なし 12.8万円 | 1K 22.7m2 | 築23年 | 都営大江戸線 勝どき駅 徒歩4分 東京メトロ有楽町線 月島駅 徒歩6分 東京メトロ日比谷線 築地駅 徒歩20分 東京都中央区月島 | 詳細を見る | |
マンション ラトレールエスポワール(1K/1階) | |||||||
![]() | 9.2万円 3,000円 | 9.2万円 なし | 1K 24.69m2 | 築24年 | 東急多摩川線 下丸子駅 徒歩4分 東急多摩川線 武蔵新田駅 徒歩14分 東京都大田区下丸子3丁目 | 詳細を見る | |
マンション リップルハウス(1K/2階) | |||||||
![]() | 9.2万円 3,000円 | 9.2万円 18.4万円 | 1K 22.8m2 | 築21年 | 京急本線 大森町駅 徒歩5分 京急本線 梅屋敷駅(東京) 徒歩7分 京急本線 京急蒲田駅 徒歩19分 東京都大田区大森中 | 詳細を見る | |








