賃貸マンション
アクティ汐留の賃貸物件情報(1SLDK/44階)
| 家賃 | 管理費等 | 敷金 | 礼金 | 間取り | 専有面積 |
|---|---|---|---|---|---|
| 43.5万円 | 1.1万円 | 43.5万円 | 87万円 | 1SLDK | 85.24m2 |
入居決定でお祝い金最大100,000円
Point
オンライン内見・契約実施中!初期費用クレカ決済もご相談ください◎港区・渋谷区の不動産はピアホームにお任せください!
提供:SEG(株)PeerHome新橋店(SUUMO経由)

詳細情報 アクティ汐留
物件紹介
アクティ汐留は都営大江戸線大門駅から徒歩4分にあり、駅近で通勤通学に便利なマンションです。
このお部屋は2階以上に位置しているので、通行人や周囲の住人からの視線が気になりにくく、防犯面でも安心。建物のエントランスはオートロックがついており、インターホンにはTVモニタもついているため、相手の顔を確認してから来客対応することができます。
フローリングのお部屋なのでお掃除もラクラク。キッチンはシステムキッチン仕様になっていますので、お料理好きの方にもぴったり。バス・トイレは別なので、のんびりお風呂タイムも楽しめるでしょう。また、雨の日でも浴室乾燥機を使えば、お洗濯も問題ありません。
通信設備面では、インターネット接続が可能です。また、BSアンテナ・CSアンテナがありCATVにも対応しているので、おうち時間も充実するでしょう(別途工事、契約料が必要な場合あり)。
床暖房があり、冬も足元から暖かく快適に過ごすことができます。建物にはエレベーターがついているので、重い荷物があっても安心。共用部には宅配ボックスが設定されているので、不在の時にも荷物を受け取ることができます。
このお部屋は2階以上に位置しているので、通行人や周囲の住人からの視線が気になりにくく、防犯面でも安心。建物のエントランスはオートロックがついており、インターホンにはTVモニタもついているため、相手の顔を確認してから来客対応することができます。
フローリングのお部屋なのでお掃除もラクラク。キッチンはシステムキッチン仕様になっていますので、お料理好きの方にもぴったり。バス・トイレは別なので、のんびりお風呂タイムも楽しめるでしょう。また、雨の日でも浴室乾燥機を使えば、お洗濯も問題ありません。
通信設備面では、インターネット接続が可能です。また、BSアンテナ・CSアンテナがありCATVにも対応しているので、おうち時間も充実するでしょう(別途工事、契約料が必要な場合あり)。
床暖房があり、冬も足元から暖かく快適に過ごすことができます。建物にはエレベーターがついているので、重い荷物があっても安心。共用部には宅配ボックスが設定されているので、不在の時にも荷物を受け取ることができます。
お金・契約の情報
※「-」と表示されているものは、実際は料金が発生するものもございます。詳細はお問い合わせください。
| 家賃 | 43.5万円 | 管理費・共益費 | 1.1万円 |
|---|---|---|---|
| 敷金 | 43.5万円 | 礼金 | 87万円 |
| 入居決定でお祝い金最大100,000円 | |||
| 保証金 | - | 償却・敷引 | - |
| 住宅保険料 | - | 更新料 | - |
| 保証会社利用 | 必須 | 保証会社名 | - |
| 保証会社費用 | - | 保証会社備考 | 保証会社利用必 ◆レジデンシャル(収納代行)◆ 初回保証料:総賃料の50%、更新料:一年ごとに総賃料の25% |
| 契約形態 | - | 契約期間 | - |
| 入居・引渡期間 | 相談 | 現況 | - |
| 契約備考 | 通勤管理/※短期解約時、違約金が発生する場合がございます。※同タイプ・別階の内観写真を掲載している場合があります。図面と現況が異なる場合は現況を優先いたします。※大規模修繕実施:2022年9月1日ー2024年8月31日予定 合計2.2万円(内訳:鍵交換:22000円) ■床暖房:初回登録料1100円・費用220円/月 1SLDK 二人入居可 損保【2.4万円2年】 バストイレ別、バルコニー、エアコン、クロゼット、フローリング、TVインターホン、浴室乾燥機、オートロック、室内洗濯置、シューズボックス、システムキッチン、追焚機能浴室、温水洗浄便座、エレベーター、洗面所独立、2口コンロ、駐輪場、宅配ボックス、CATV、光ファイバー、3口以上コンロ、防犯カメラ、IHクッキングヒーター、オートバス、保証人不要、二人入居相談、全居室フローリング、CS、平面駐車場、自走式駐車場、都市ガス、初期費用カード決済可 | ||
部屋の情報
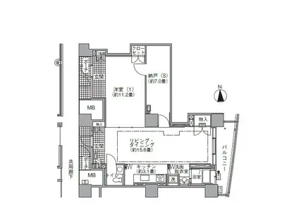
| 間取り | 1SLDK | 専有面積 | 85.24m2 |
|---|---|---|---|
| 所在階 / 向き | 44階 / 東 | バルコニー面積 | - |
| 水道 / ガス | - | ||
| 設備 | バス・トイレ別、2階以上、オートロック、テレビドアホン、宅配ボックス、浴室乾燥機、追い焚き、インターネット対応、システムキッチン、エアコン、エレベーター、温水洗浄便座、バルコニー、フローリング、洗髪洗面化粧台、2口コンロ、コンロ:IH、CATV、CSアンテナ、洗濯機:室内 | ||
| 当社物件ID | 28875194 | ||
建物の情報
| 建物名 | アクティ汐留 | ||
|---|---|---|---|
| 所在地 | 東京都港区海岸 | ||
| 交通 | 都営大江戸線 大門駅(東京) 徒歩4分 JR山手線 浜松町駅 徒歩4分 | ||
| 階数 | 地下2地上56階建 | 総戸数 | 683戸 |
| 築年月 | 2004年02月 / 築22年 | エレベーター | あり |
| 駐車場 | 空有 60500円 | バイク置き場 | - |
| 駐輪場 | あり | 管理人/管理会社 | - |
| 周辺環境 | その他 セブン-イレブン 赤坂氷川坂下店(コンビニ)まで2512m その他 まいばすけっと芝浦1丁目(スーパー)まで1196m その他 東京都済生会中央病院(病院)まで1406m その他 御成門小学校(小学校)まで886m その他 御成門中学校(中学校)まで844m | ||
| 建物種別 | マンション | 建物構造 | RC(鉄筋コンクリート) |
この部屋の取扱い不動産会社
| 会社名 | SEG(株)PeerHome広尾駅前店アネックス(SUUMO経由) | ||
|---|---|---|---|
| 所在地 | 東京都港区南麻布5-15-11 広尾セオハウス2階 | 交通 | - |
| 営業時間 | 9:00~18:30 | 定休日 | なし |
| 免許番号 | 東京都知事103362 | 取引態様 | 仲介 |
| 不動産会社管理番号 | 100480536656 | 当社管理番号 | 89 |
| 所属団体 | (公社)東京都宅地建物取引業協会会員 | ||
| 公正取引協議会 | (公社)首都圏不動産公正取引協議会加盟 | ||
| 取扱い物件情報 | 物件詳細へ | ||
※各種情報と現状に差異がある場合は、現状優先となります。問い合わせをすることで、より詳しい条件、情報を確認する事ができます。
提供:SEG(株)PeerHome広尾駅前店アネックス(SUUMO経由)
この物件が気になったら掲載期限まであと10日
アクティ汐留に条件(家賃・エリア)が近い物件一覧
| 写真 | 家賃 管理費等 | 敷金 礼金 | 間取り 専有面積 | 築年数 | 最寄り駅 所在地 | キープ | 詳細 |
|---|---|---|---|---|---|---|---|
マンション 城山トラストコート(1LDK/2階) | |||||||
![]() | 52万円 なし | 156万円 なし | 1LDK 67.56m2 | 築35年 | 東京メトロ日比谷線 神谷町駅 徒歩3分 東京メトロ南北線 六本木一丁目駅 徒歩4分 東京都港区虎ノ門 | 詳細を見る | |
マンション プロスペクト・グラーサ広尾(1SLDK/2階) | |||||||
![]() | 28.8万円 8,000円 | 28.8万円 28.8万円 | 1SLDK 57.2m2 | 築21年 | 東京メトロ日比谷線 広尾駅 徒歩8分 JR山手線 恵比寿駅 徒歩9分 東急東横線 代官山駅 徒歩17分 東京都渋谷区広尾 | 詳細を見る | |
マンション グランスイート神楽坂ピアースノースヒルズ(3LDK/3階) | |||||||
![]() | 34万円 2万円 | 34万円 34万円 | 3LDK 69.45m2 | 築10年 | 東京メトロ東西線 神楽坂駅 徒歩3分 都営大江戸線 牛込神楽坂駅 徒歩5分 東京メトロ有楽町線 江戸川橋駅 徒歩13分 東京都新宿区矢来町 | 詳細を見る | |
マンション ラサンテ五反田(1LDK/3階) | |||||||
![]() | 29.6万円 1.4万円 | 29.6万円 29.6万円 | 1LDK 53.9m2 | 築20年 | 東急池上線 大崎広小路駅 徒歩5分 JR山手線 五反田駅 徒歩9分 都営浅草線 五反田駅 徒歩10分 東京都品川区西五反田 | 詳細を見る | |
マンション パークアクシス品川天王洲アイル(2LDK/10階) | |||||||
![]() | 29.4万円 2万円 | 29.4万円 なし | 2LDK 58.24m2 | 築1年 | 東京臨海高速鉄道 天王洲アイル駅 徒歩7分 東京都品川区東品川3丁目 | 詳細を見る | |
マンション レ・ジェイドクロス千代田神保町(2LDK/5階) | |||||||
![]() | 37.1万円 なし | 37.1万円 37.1万円 | 2LDK 64.46m2 | 築3年 | 東京メトロ半蔵門線 神保町駅 徒歩5分 JR総武線 水道橋駅 徒歩6分 東京メトロ東西線 九段下駅 徒歩7分 東京都千代田区西神田 | 詳細を見る | |
マンション コンフォリア・リヴ品川戸越(2LDK/5階) | |||||||
![]() | 28万円 1.5万円 | 28万円 なし | 2LDK 40.29m2 | 築2年 | 都営浅草線 戸越駅 徒歩6分 東急大井町線 戸越公園駅 徒歩6分 東急池上線 戸越銀座駅 徒歩10分 東京都品川区戸越 | 詳細を見る | |
マンション ウェリス六本木(1LDK/15階) | |||||||
![]() | 43万円 2万円 | 43万円 43万円 | 1LDK 56.27m2 | 築12年 | 東京メトロ南北線 六本木一丁目駅 徒歩4分 東京メトロ日比谷線 六本木駅 徒歩7分 東京メトロ南北線 麻布十番駅 徒歩9分 東京都港区六本木 | 詳細を見る | |








