賃貸アパート
VIVACEの賃貸物件情報(1DK/1階)
| 家賃 | 管理費等 | 敷金 | 礼金 | 間取り | 専有面積 |
|---|---|---|---|---|---|
| 11.4万円 | なし | 11.4万円 | 17.1万円 | 1DK | 35.31m2 |
入居決定でお祝い金最大100,000円
Point
まずはお問い合わせ!
不動産会社は街のプロ、あなたに合った物件がきっと見つかります。
提供:ピタットハウス亀有店(株)One(SUUMO経由)

詳細情報 VIVACE
物件紹介
VIVACEはJR常磐線綾瀬駅から徒歩10分にあり、駅近で通勤通学に便利なアパートです。
このお部屋のインターホンにはTVモニタがついているため、相手の顔を確認してから来客対応することができます。
人気の角部屋で周囲の居住者の生活音も気になりにくく、また、フローリングのお部屋なのでお掃除もラクラク。キッチンはシステムキッチン仕様になっていますので、お料理好きの方にもぴったり。バス・トイレは別なので、のんびりお風呂タイムも楽しめるでしょう。また、雨の日でも浴室乾燥機を使えば、お洗濯も問題ありません。
通信設備面では、インターネット接続が可能です。また、CATVにも対応しているので、おうち時間も充実するでしょう(別途工事、契約料が必要な場合あり)。
ペット飼育の相談ができますので、あなたの大切な家族の一員も快適に暮らせるか、ぜひ確認してみてください。
このお部屋のインターホンにはTVモニタがついているため、相手の顔を確認してから来客対応することができます。
人気の角部屋で周囲の居住者の生活音も気になりにくく、また、フローリングのお部屋なのでお掃除もラクラク。キッチンはシステムキッチン仕様になっていますので、お料理好きの方にもぴったり。バス・トイレは別なので、のんびりお風呂タイムも楽しめるでしょう。また、雨の日でも浴室乾燥機を使えば、お洗濯も問題ありません。
通信設備面では、インターネット接続が可能です。また、CATVにも対応しているので、おうち時間も充実するでしょう(別途工事、契約料が必要な場合あり)。
ペット飼育の相談ができますので、あなたの大切な家族の一員も快適に暮らせるか、ぜひ確認してみてください。
お金・契約の情報
※「-」と表示されているものは、実際は料金が発生するものもございます。詳細はお問い合わせください。
| 家賃 | 11.4万円 | 管理費・共益費 | なし |
|---|---|---|---|
| 敷金 | 11.4万円 | 礼金 | 17.1万円 |
| 入居決定でお祝い金最大100,000円 | |||
| 保証金 | - | 償却・敷引 | - |
| 住宅保険料 | - | 更新料 | - |
| 保証会社利用 | 必須 | 保証会社名 | - |
| 保証会社費用 | - | 保証会社備考 | 保証会社利用必 初回保証料:賃料等の50% 月次保証料:賃料等の2% |
| 契約形態 | - | 契約期間 | - |
| 入居・引渡期間 | 即時 | 現況 | - |
| 入居可能条件 | ペット相談 | ||
| 契約備考 | 安心サポート月額1100円。ペット飼育時敷金1ヶ月積み増し。 更新料新賃料(ヶ月):1.00ヶ月 1DK 二人入居可/ペット相談 普通借家2年 損保【1.79万円2年】 バストイレ別、エアコン、クロゼット、シャワー付洗面台、TVインターホン、浴室乾燥機、室内洗濯置、シューズボックス、システムキッチン、追焚機能浴室、温水洗浄便座、洗面所独立、2口コンロ、CATV、即入居可、ペット相談、IHクッキングヒーター、オートバス、保証人不要、敷金1ヶ月、二人入居相談、エアコン2台、保証金不要、敷地内ごみ置き場、都市ガス、IT重説対応物件、初期費用カード決済可 | ||
部屋の情報
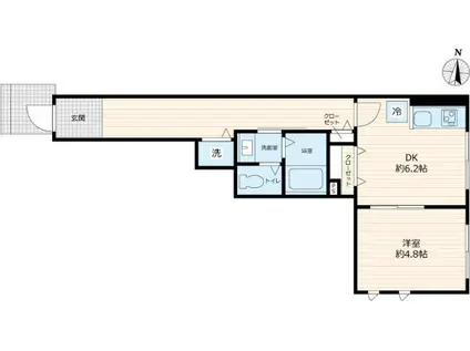
| 間取り | 1DK | 専有面積 | 35.31m2 |
|---|---|---|---|
| 所在階 / 向き | 1階 / 東 | バルコニー面積 | - |
| 水道 / ガス | - | ||
| 設備 | バス・トイレ別、テレビドアホン、浴室乾燥機、追い焚き、システムキッチン、エアコン、温水洗浄便座、洗髪洗面化粧台、2口コンロ、コンロ:IH、CATV、洗濯機:室内 | ||
| 当社物件ID | 159842248 | ||
建物の情報
| 建物名 | VIVACE | ||
|---|---|---|---|
| 所在地 | 東京都葛飾区西亀有 | ||
| 交通 | 東京メトロ千代田線 綾瀬駅 徒歩10分 JR常磐線 亀有駅 徒歩22分 | ||
| 階数 | 3階建 | 総戸数 | 1戸 |
| 築年月 | 2025年11月 / 築1年 | エレベーター | - |
| 駐車場 | なし | バイク置き場 | - |
| 駐輪場 | - | 管理人/管理会社 | - |
| 周辺環境 | その他 E-MART亀有店(スーパー)まで340m その他 ファミリーマート西亀有二丁目店(コンビニ)まで310m その他 公益財団法人東京都保健医療公社東部地域病院(病院)まで1450m その他 綾瀬駅西口交番(警察署・交番)まで950m その他 ダイソー 亀有リリオ店(ショッピングセンター)まで1730m その他 綾瀬二丁目ふれあい公園(公園)まで450m | ||
| 建物種別 | アパート | 建物構造 | 軽量鉄骨造 |
この部屋の取扱い不動産会社
| 会社名 | シャーメゾンショップ (株)ハウスパートナー亀有店(SUUMO経由) | ||
|---|---|---|---|
| 所在地 | 東京都葛飾区亀有5-33-7 平田屋駅前ビル | 交通 | - |
| 営業時間 | AM10:00~PM6:00 | 定休日 | 水曜日 |
| 免許番号 | 国土交通大臣9556 | 取引態様 | 仲介 |
| 不動産会社管理番号 | 100472028356 | 当社管理番号 | 89 |
| 所属団体 | (公社)全日本不動産協会東京都本部会員 | ||
| 公正取引協議会 | (公社)首都圏不動産公正取引協議会加盟 | ||
| 取扱い物件情報 | 物件詳細へ | ||
※各種情報と現状に差異がある場合は、現状優先となります。問い合わせをすることで、より詳しい条件、情報を確認する事ができます。
提供:シャーメゾンショップ (株)ハウスパートナー亀有店(SUUMO経由)
この物件が気になったら掲載期限まであと10日
VIVACEに条件(家賃・エリア)が近い物件一覧
| 写真 | 家賃 管理費等 | 敷金 礼金 | 間取り 専有面積 | 築年数 | 最寄り駅 所在地 | キープ | 詳細 |
|---|---|---|---|---|---|---|---|
マンション GENOVIA墨田八広SKYGARDEN(1LDK/2階) | |||||||
![]() | 13万円 1.7万円 | なし 13万円 | 1LDK 40.56m2 | 築7年 | 京成電鉄押上線 八広駅 徒歩12分 京成電鉄押上線 京成曳舟駅 徒歩13分 東京都墨田区八広4丁目 | 詳細を見る | |
マンション MAXIV北千住(1K/4階) | |||||||
![]() | 11万円 8,000円 | 11万円 11万円 | 1K 25.23m2 | 築9年 | 東武伊勢崎・大師線 牛田駅(東京) 徒歩6分 東京地下鉄日比谷線 北千住駅 徒歩7分 東武伊勢崎・大師線 北千住駅 徒歩7分 東京都足立区千住旭町 | 詳細を見る | |
マンション ARTESSIMO ESK(1K/8階) | |||||||
![]() | 10.7万円 1万円 | なし 10.7万円 | 1K 25.21m2 | 築3年 | 東武伊勢崎・大師線 曳舟駅 徒歩6分 京成電鉄押上線 京成曳舟駅 徒歩9分 東京地下鉄半蔵門線 押上駅 徒歩13分 東京都墨田区東向島1丁目 | 詳細を見る | |
マンション アーバンパーク押上(1DK/1階) | |||||||
![]() | 12.15万円 1.5万円 | なし なし | 1DK 25.81m2 | 築2年 | 都営浅草線 押上駅 徒歩8分 東武伊勢崎線 曳舟駅 徒歩14分 都営浅草線 本所吾妻橋駅 徒歩14分 東京都墨田区向島 | 詳細を見る | |
マンション リブリ・曳舟(1LDK/2階) | |||||||
![]() | 13万円 3,000円 | なし 19.5万円 | 1LDK 34.96m2 | 築1年 | 東武伊勢崎・大師線 曳舟駅 徒歩13分 東武伊勢崎・大師線 東向島駅 徒歩13分 京成電鉄押上線 京成曳舟駅 徒歩16分 東京都墨田区堤通1丁目 | 詳細を見る | |
マンション レジデンスヤマ西葛西(1DK/4階) | |||||||
![]() | 8.3万円 7,000円 | なし なし | 1DK 31.63m2 | 築42年 | 東京メトロ東西線 西葛西駅 徒歩4分 東京メトロ東西線 葛西駅 徒歩20分 都営新宿線 船堀駅 徒歩30分 東京都江戸川区西葛西 | 詳細を見る | |
マンション プレール・ドゥーク両国Ⅲ(1K/4階) | |||||||
![]() | 11.3万円 1万円 | なし なし | 1K 25.95m2 | 築3年 | 東京都大江戸線 両国駅 徒歩8分 総武・中央緩行線 両国駅 徒歩13分 総武本線 錦糸町駅 徒歩15分 東京都墨田区緑3丁目 | 詳細を見る | |
マンション GENOVIA両国VIGREEN VEIL(ワンルーム/8階) | |||||||
![]() | 12.1万円 1.5万円 | なし なし | ワンルーム 26.53m2 | 築4年 | 都営新宿線 菊川駅(東京) 徒歩11分 JR総武線 錦糸町駅 徒歩12分 都営大江戸線 森下駅(東京) 徒歩19分 東京都墨田区緑 | 詳細を見る | |








