賃貸マンション
戸塚ハイライズの賃貸物件情報(2LDK/8階)
| 家賃 | 管理費等 | 敷金 | 礼金 | 間取り | 専有面積 |
|---|---|---|---|---|---|
| 18.6万円 | 9,000円 | 37.2万円 | 37.2万円 | 2LDK | 73.84m2 |
入居決定でお祝い金最大100,000円
- 保証金
- -
- 償却・敷引
- -
- 築年数
- 築42年
- 所在階
- 8階
- 向き
- 南西
Point
転勤留守宅2029年12月31日まで(以降オーナー帰任まで・借主からの期間内解約可能) ペットは室内小型犬のみ相談可 喫煙不可 楽器相談可 原則保証会社加入要 個人申込は原則電子契約となります
提供:(株)ベイ・フロンティア(SUUMO経由)

詳細情報 戸塚ハイライズ
物件紹介
戸塚ハイライズはJR横須賀線戸塚駅から徒歩4分にあり、駅近で通勤通学に便利なマンションです。
このお部屋は2階以上に位置しているので、通行人や周囲の住人からの視線が気になりにくく、防犯面でも安心。インターホンにはTVモニタもついているため、相手の顔を確認してから来客対応することができます。
こちらは楽器相談が可能な物件。楽器演奏をお考えの方はぜひ相談してみてください。人気の南向きのお部屋。また、フローリングなのでお掃除もラクラク。キッチンはシステムキッチン仕様になっていますので、お料理好きの方にもぴったり。バス・トイレは別なので、のんびりお風呂タイムも楽しめるでしょう。また、雨の日でも浴室乾燥機を使えば、お洗濯も問題ありません。
通信設備面では、インターネット接続が可能です(別途工事、契約料が必要な場合あり)。
建物にはエレベーターがついているので、重い荷物があっても安心。共用部には宅配ボックスが設定されているので、不在の時にも荷物を受け取ることができます。また、ペット飼育の相談ができますので、あなたの大切な家族の一員も快適に暮らせるか、ぜひ確認してみてください。
このお部屋は2階以上に位置しているので、通行人や周囲の住人からの視線が気になりにくく、防犯面でも安心。インターホンにはTVモニタもついているため、相手の顔を確認してから来客対応することができます。
こちらは楽器相談が可能な物件。楽器演奏をお考えの方はぜひ相談してみてください。人気の南向きのお部屋。また、フローリングなのでお掃除もラクラク。キッチンはシステムキッチン仕様になっていますので、お料理好きの方にもぴったり。バス・トイレは別なので、のんびりお風呂タイムも楽しめるでしょう。また、雨の日でも浴室乾燥機を使えば、お洗濯も問題ありません。
通信設備面では、インターネット接続が可能です(別途工事、契約料が必要な場合あり)。
建物にはエレベーターがついているので、重い荷物があっても安心。共用部には宅配ボックスが設定されているので、不在の時にも荷物を受け取ることができます。また、ペット飼育の相談ができますので、あなたの大切な家族の一員も快適に暮らせるか、ぜひ確認してみてください。
お金・契約の情報
※「-」と表示されているものは、実際は料金が発生するものもございます。詳細はお問い合わせください。
| 家賃 | 18.6万円 | 管理費・共益費 | 9,000円 |
|---|---|---|---|
| 敷金 | 37.2万円 | 礼金 | 37.2万円 |
| 入居決定でお祝い金最大100,000円 | |||
| 保証金 | - | 償却・敷引 | - |
| 住宅保険料 | - | 更新料 | - |
| 保証会社利用 | 必須 | 保証会社名 | - |
| 保証会社費用 | - | 保証会社備考 | 保証会社利用必 契約時に賃料総額の100% 以降月額手数料:賃料総額の2% |
| 契約形態 | 定期借家 | 契約期間 | 2029年12月まで |
| 入居・引渡期間 | 相談 | 現況 | - |
| 入居可能条件 | 楽器相談、ペット相談 | ||
| 契約備考 | 通勤管理/転勤留守宅(契約期間自動延長の場合でも更新料なし) 退去時のハウスクリーニング費用は借主負担 6ヶ月未満で解約した場合、賃料の0.5か月分を申し受けます ペットは室内小型犬1匹のみ相談可(敷金3ヵ月うち2ヵ月償却、ペット登録手数料33000円) 駐車場空・サイズ・賃料など要確認 駐車場登録料1台(利用時のみ):11000円 本物件は水害想定区域内となります 内覧の際は現地待ち合わせでOKです リロサポ(緊急時24時間サービス)加入必須:1500円/月除菌施工料必須:19800円(契約時のみ) 2LDK 子供可/ペット相談/事務所利用不可/ルームシェア不可 定期借家西暦2029年12月まで 損保【1.86万円2年】 バストイレ別、エアコン、シャワー付洗面台、TVインターホン、浴室乾燥機、室内洗濯置、陽当り良好、システムキッチン、追焚機能浴室、温水洗浄便座、洗面所独立、駐輪場、宅配ボックス、光ファイバー、3口以上コンロ、防犯カメラ、独立型キッチン、ペット相談、分譲賃貸、全居室洋室、保証人不要、24時間緊急通報システム、全居室フローリング、2面バルコニー、駅まで平坦、食器洗乾燥機、眺望良好、楽器相談、LDK20畳以上、平坦地、エレベーター2基、3駅以上利用可、3沿線以上利用可、駅徒歩5分以内、敷地内ごみ置き場、南西向き、日勤管理、セキュリティ会社加入済、都市ガス、高速ネット対応、保証会社利用可、IT重説対応物件、通風良好 | ||
部屋の情報
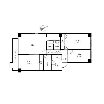
| 間取り | 2LDK | 専有面積 | 73.84m2 |
|---|---|---|---|
| 所在階 / 向き | 8階 / 南西 | バルコニー面積 | 11m2 |
| 水道 / ガス | - | ||
| 設備 | バス・トイレ別、2階以上、テレビドアホン、宅配ボックス、浴室乾燥機、追い焚き、インターネット対応、システムキッチン、エアコン、エレベーター、温水洗浄便座、南向き、バルコニー、フローリング、洗髪洗面化粧台、2口コンロ、洗濯機:室内 | ||
| 当社物件ID | 159510164 | ||
建物の情報
| 建物名 | 戸塚ハイライズ | ||
|---|---|---|---|
| 所在地 | 神奈川県横浜市戸塚区上倉田町 | ||
| 交通 | JR横須賀線 戸塚駅 徒歩4分 ブルーライン 舞岡駅 徒歩21分 ブルーライン 踊場駅 徒歩28分 | ||
| 階数 | 11階建 | 総戸数 | - |
| 築年月 | 1984年01月 / 築42年 | エレベーター | あり |
| 駐車場 | 空有 13000円/平置駐 | バイク置き場 | - |
| 駐輪場 | あり | 管理人/管理会社 | - |
| 周辺環境 | その他 アピタ戸塚店(スーパー)まで160m その他 ファミリーマート戸塚吉田町店(コンビニ)まで320m その他 横浜市立東戸塚小学校(小学校)まで651m その他 横浜市立豊田中学校(小学校)まで1800m その他 YMCAとつか保育園(幼稚園・保育園)まで80m その他 明治学院大学(大学・短大)まで1500m | ||
| 建物種別 | マンション | 建物構造 | SRC(鉄骨鉄筋コンクリート) |
この部屋の取扱い不動産会社
| 会社名 | (株)ベイ・フロンティア(SUUMO経由) | ||
|---|---|---|---|
| 所在地 | 神奈川県横浜市神奈川区鶴屋町2-9ー22 日興パレス横浜206 | 交通 | - |
| 営業時間 | 9:00~20:00 | 定休日 | 夏季休暇、年末年始 |
| 免許番号 | 神奈川県知事22960 | 取引態様 | 仲介 |
| 不動産会社管理番号 | 100460333723 | 当社管理番号 | 89 |
| 所属団体 | (公社)神奈川県宅地建物取引業協会会員 | ||
| 公正取引協議会 | (公社)首都圏不動産公正取引協議会加盟 | ||
| 取扱い物件情報 | 物件詳細へ | ||
※各種情報と現状に差異がある場合は、現状優先となります。問い合わせをすることで、より詳しい条件、情報を確認する事ができます。
提供:(株)ベイ・フロンティア(SUUMO経由)
この物件が気になったら掲載期限まであと10日
戸塚ハイライズに条件(家賃・エリア)が近い物件一覧
| 写真 | 家賃 管理費等 | 敷金 礼金 | 間取り 専有面積 | 築年数 | 最寄り駅 所在地 | キープ | 詳細 |
|---|---|---|---|---|---|---|---|
マンション プレディオ鷺沼II(2LDK/3階) | |||||||
![]() | 11.8万円 1万円 | なし なし | 2LDK 58.15m2 | 築44年 | 東急田園都市線 鷺沼駅 徒歩12分 東急田園都市線 たまプラーザ駅 徒歩14分 東急田園都市線 あざみ野駅 徒歩30分 神奈川県川崎市宮前区犬蔵 | 詳細を見る | |
マンション へーベルヴィレッジ横浜丸山台ヴィレッジ横浜丸山台(2SLDK/2階) | |||||||
![]() | 19.3万円 3万円 | 38.6万円 19.3万円 | 2SLDK 70.82m2 | 築1年 | ブルーライン 上永谷駅 徒歩7分 ブルーライン 下永谷駅 徒歩26分 ブルーライン 舞岡駅 徒歩26分 神奈川県横浜市港南区丸山台 | 詳細を見る | |
マンション SKEY RESIDENCE塚越(1LDK/1階) | |||||||
![]() | 12.5万円 1.5万円 | なし 20万円 | 1LDK 36.86m2 | 築1年 | 南武線 矢向駅 徒歩12分 神奈川県川崎市幸区塚越2丁目 | 詳細を見る | |
マンション EDEL MAISON(2LDK/1階) | |||||||
![]() | 12.6万円 8,000円 | 12.6万円 25.2万円 | 2LDK 57.5m2 | 新築 | 小田急江ノ島線 高座渋谷駅 徒歩12分 小田急江ノ島線 桜ケ丘駅 徒歩16分 相鉄いずみ野線 いずみ野駅 徒歩50分 神奈川県大和市福田 | 詳細を見る | |
マンション D.Y.東戸塚(3LDK/3階) | |||||||
![]() | 15万円 5,000円 | 30万円 なし | 3LDK 65.94m2 | 築32年 | JR横須賀線 東戸塚駅 徒歩17分 神奈川県横浜市戸塚区川上町 | 詳細を見る | |
マンション ヴェール・クレール武蔵小杉(2SLDK/4階) | |||||||
![]() | 28万円 1万円 | 28万円 28万円 | 2SLDK 57.94m2 | 築1年 | 東急東横線 武蔵小杉駅 徒歩10分 東急東横線 元住吉駅 徒歩19分 神奈川県川崎市中原区今井仲町 | 詳細を見る | |
アパート COLORS WING-A A(2LDK/2階) | |||||||
![]() | 13.8万円 4,000円 | 13.8万円 13.8万円 | 2LDK 65m2 | 新築 | JR南武線 武蔵新城駅 徒歩33分 神奈川県川崎市高津区久末 | 詳細を見る | |
マンション ラシーヌ(1LDK/6階) | |||||||
![]() | 15万円 6,500円 | なし 30万円 | 1LDK 43.3m2 | 新築 | 小田急線 向ケ丘遊園駅 徒歩6分 小田急線 登戸駅 徒歩10分 JR南武線 登戸駅 徒歩11分 神奈川県川崎市多摩区登戸 | 詳細を見る | |









