賃貸アパート
サニーガーデン杉塚の賃貸物件情報(1LDK/3階)
| 家賃 | 管理費等 | 敷金 | 礼金 | 間取り | 専有面積 |
|---|---|---|---|---|---|
| 6.7万円 | 3,000円 | なし | 6.7万円 | 1LDK | 35.05m2 |
入居決定でお祝い金最大100,000円
- 保証金
- -
- 償却・敷引
- -
- 築年数
- 新築
- 所在階
- 3階
- 向き
- -
Point
2026年3月上旬入居開始予定の新築1LDK!ペット飼育可能!(小型犬・猫)2匹まで。ネットはWiFi無料です♪室内設備も充実しています。
提供:イーグルハウス(株)二日市店(SUUMO経由)

詳細情報 サニーガーデン杉塚
物件紹介
サニーガーデン杉塚はJR鹿児島本線都府楼南駅から徒歩14分にあるアパートです。
このお部屋は2階以上に位置しているので、通行人や周囲の住人からの視線が気になりにくく、防犯面でも安心。建物のエントランスはオートロックがついており、インターホンにはTVモニタもついているため、相手の顔を確認してから来客対応することができます。
人気の角部屋で周囲の居住者の生活音も気になりにくく、また、フローリングのお部屋なのでお掃除もラクラク。キッチンはシステムキッチン仕様になっていますので、お料理好きの方にもぴったり。バス・トイレは別なので、のんびりお風呂タイムも楽しめるでしょう。また、雨の日でも浴室乾燥機を使えば、お洗濯も問題ありません。
通信設備面では、インターネットが無料で使えるので、月々の出費を抑えられるのも魅力です(別途工事等が必要な場合あり)。
ペット飼育の相談ができますので、あなたの大切な家族の一員も快適に暮らせるか、ぜひ確認してみてください。
このお部屋は2階以上に位置しているので、通行人や周囲の住人からの視線が気になりにくく、防犯面でも安心。建物のエントランスはオートロックがついており、インターホンにはTVモニタもついているため、相手の顔を確認してから来客対応することができます。
人気の角部屋で周囲の居住者の生活音も気になりにくく、また、フローリングのお部屋なのでお掃除もラクラク。キッチンはシステムキッチン仕様になっていますので、お料理好きの方にもぴったり。バス・トイレは別なので、のんびりお風呂タイムも楽しめるでしょう。また、雨の日でも浴室乾燥機を使えば、お洗濯も問題ありません。
通信設備面では、インターネットが無料で使えるので、月々の出費を抑えられるのも魅力です(別途工事等が必要な場合あり)。
ペット飼育の相談ができますので、あなたの大切な家族の一員も快適に暮らせるか、ぜひ確認してみてください。
お金・契約の情報
※「-」と表示されているものは、実際は料金が発生するものもございます。詳細はお問い合わせください。
| 家賃 | 6.7万円 | 管理費・共益費 | 3,000円 |
|---|---|---|---|
| 敷金 | なし | 礼金 | 6.7万円 |
| 入居決定でお祝い金最大100,000円 | |||
| 保証金 | - | 償却・敷引 | - |
| 住宅保険料 | - | 更新料 | - |
| 保証会社利用 | 必須 | 保証会社名 | - |
| 保証会社費用 | - | 保証会社備考 | 保証会社利用必 有 ジェイリース(更新保証料なし、毎月保証料(口座振替手数料含む)800円(非課税)/月)※契約者や条件によっては、内容が変更になる場合があります。 初回保証料60%(下限30,000円) |
| 契約形態 | - | 契約期間 | - |
| 入居・引渡期間 | - | 現況 | - |
| 入居可能条件 | ペット相談 | ||
| 契約備考 | 合計9.01万円(内訳:入居時消毒代17600円/室内クリーニング代67000円/ネット初期設定代5500円) 24時間サポート880円/月 1LDK ペット相談 普通借家2年 損保【2万円2年】 バストイレ別、エアコン、フローリング、TVインターホン、浴室乾燥機、オートロック、室内洗濯置、シューズボックス、システムキッチン、角住戸、温水洗浄便座、脱衣所、洗面所独立、2口コンロ、光ファイバー、敷金不要、ペット相談、全居室フローリング、2沿線利用可、ネット使用料不要、築2年以内、未入居、3駅以上利用可、プロパンガス、シャッター、礼金1ヶ月、IT重説対応物件、初期費用カード決済可 入居日:'26年3月上旬 | ||
部屋の情報
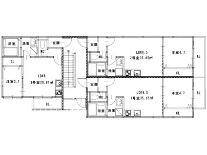
| 間取り | 1LDK | 専有面積 | 35.05m2 |
|---|---|---|---|
| 所在階 / 向き | 3階 / - | バルコニー面積 | - |
| 水道 / ガス | - | ||
| 設備 | バス・トイレ別、2階以上、オートロック、テレビドアホン、浴室乾燥機、インターネット対応、システムキッチン、エアコン、温水洗浄便座、角部屋、フローリング、洗髪洗面化粧台、2口コンロ、インターネット使用料無料、洗濯機:室内 | ||
| 当社物件ID | 160065305 | ||
建物の情報
| 建物名 | サニーガーデン杉塚 | ||
|---|---|---|---|
| 所在地 | 福岡県筑紫野市杉塚 | ||
| 交通 | JR鹿児島本線 都府楼南駅 徒歩14分 西鉄天神大牟田線 西鉄二日市駅 徒歩22分 西鉄天神大牟田線 都府楼前駅 徒歩23分 | ||
| 階数 | 3階建 | 総戸数 | - |
| 築年月 | 2026年03月 / 新築 | エレベーター | - |
| 駐車場 | 空有 9900円 | バイク置き場 | - |
| 駐輪場 | - | 管理人/管理会社 | - |
| 周辺環境 | その他 JA筑紫本店(銀行)まで413m その他 TRIAL smart 筑紫野店(スーパー)まで321m その他 トライアル スマート 筑紫野店(スーパー)まで377m その他 森歯科医院(病院)まで451m その他 セブンイレブン 筑紫野杉塚店(コンビニ)まで221m その他 TRIAL smart(トライアル スマート) 筑紫野店(スーパー)まで380m | ||
| 建物種別 | アパート | 建物構造 | 木造 |
この部屋の取扱い不動産会社
| 会社名 | イーグルハウス(株)二日市店(SUUMO経由) | ||
|---|---|---|---|
| 所在地 | 福岡県筑紫野市二日市中央4-11-1 二日市ビル1-B | 交通 | - |
| 営業時間 | 平日10時~19時/土日祝10時~18時 | 定休日 | 水曜日 |
| 免許番号 | 国土交通大臣8701 | 取引態様 | 仲介 |
| 不動産会社管理番号 | 100478323323 | 当社管理番号 | 89 |
| 所属団体 | (公社)福岡県宅地建物取引業協会会員 | ||
| 公正取引協議会 | (一社)九州不動産公正取引協議会加盟 | ||
| 取扱い物件情報 | 物件詳細へ | ||
※各種情報と現状に差異がある場合は、現状優先となります。問い合わせをすることで、より詳しい条件、情報を確認する事ができます。
提供:イーグルハウス(株)二日市店(SUUMO経由)
この物件が気になったら掲載期限まであと10日
サニーガーデン杉塚に条件(家賃・エリア)が近い物件一覧
| 写真 | 家賃 管理費等 | 敷金 礼金 | 間取り 専有面積 | 築年数 | 最寄り駅 所在地 | キープ | 詳細 |
|---|---|---|---|---|---|---|---|
アパート 木犀館Ⅱ(2LDK/1階) | |||||||
![]() | 8.5万円 6,000円 | なし 17万円 | 2LDK 52.86m2 | 築8年 | 西鉄天神大牟田線 桜並木駅 徒歩37分 福岡県大野城市 | 詳細を見る | |
アパート スクエアー仲畑(2LDK/2階) | |||||||
![]() | 5.5万円 なし | なし 5.5万円 | 2LDK 49.68m2 | 築26年 | 西鉄天神大牟田線 雑餉隈駅 徒歩19分 JR鹿児島本線 南福岡駅 徒歩23分 西鉄天神大牟田線 春日原駅 徒歩25分 福岡県大野城市仲畑 | 詳細を見る | |
マンション サンハイツ森山(3LDK/1階) | |||||||
![]() | 6.3万円 3,000円 | なし なし | 3LDK 69.7m2 | 築36年 | JR鹿児島本線 水城駅 徒歩13分 西鉄天神大牟田線 下大利駅 徒歩16分 JR鹿児島本線 大野城駅 徒歩17分 福岡県大野城市 | 詳細を見る | |
アパート グレイス エム(1LDK/2階) | |||||||
![]() | 7.85万円 3,000円 | なし 7.85万円 | 1LDK 37.63m2 | 新築 | 西鉄天神大牟田線 桜並木駅 徒歩7分 鹿児島本線 南福岡駅 徒歩16分 西鉄天神大牟田線 春日原駅 徒歩16分 福岡県大野城市山田2丁目 | 詳細を見る | |
アパート MUSE(1K/2階) | |||||||
![]() | 4.7万円 2,000円 | 4.7万円 4.7万円 | 1K 30.96m2 | 築22年 | 西鉄天神大牟田線 桜並木駅 徒歩31分 西鉄天神大牟田線 雑餉隈駅 徒歩37分 福岡県大野城市川久保2丁目 | 詳細を見る | |
マンション 第一シャトービル(3DK/4階) | |||||||
![]() | 5万円 なし | なし なし | 3DK 58.88m2 | 築46年 | 西鉄天神大牟田線 春日原駅 徒歩23分 西鉄天神大牟田線 桜並木駅 徒歩27分 西鉄天神大牟田線 井尻駅 徒歩60分 福岡県大野城市川久保1丁目 | 詳細を見る | |
マンション プライムコート大野城2(2LDK/3階) | |||||||
![]() | 8.5万円 5,000円 | なし 17万円 | 2LDK 61.96m2 | 築11年 | 鹿児島本線 水城駅 徒歩13分 西鉄天神大牟田線 下大利駅 徒歩14分 鹿児島本線 大野城駅 徒歩15分 福岡県大野城市 | 詳細を見る | |
アパート フラテッリ G(1K/2階) | |||||||
![]() | 6.6万円 2,800円 | なし 6.6万円 | 1K 36.33m2 | 築1年 | 西鉄天神大牟田線 雑餉隈駅 徒歩25分 鹿児島本線 笹原駅 徒歩26分 鹿児島本線 南福岡駅 徒歩35分 福岡県大野城市仲畑1丁目 | 詳細を見る | |









