賃貸マンション
ジーベック東日暮里サウスの賃貸物件情報(1DK/3階)
| 家賃 | 管理費等 | 敷金 | 礼金 | 間取り | 専有面積 |
|---|---|---|---|---|---|
| 11.5万円 | 1.5万円 | なし | 11.5万円 | 1DK | 27.87m2 |
入居決定でお祝い金最大100,000円
- 保証金
- -
- 償却・敷引
- -
- 築年数
- 築10年
- 所在階
- 3階
- 向き
- 西
Point
室内見学承ります・お客様のご都合に合わせてオンラインまたはお近くの店舗でご提案可・初期費用分割払い可・クレジットカード利用可・引越業者割引・初期費用のお見積や入居日のご相談もお気軽にお問合せください
提供:(株)リライフ早稲田店(SUUMO経由)

詳細情報 ジーベック東日暮里サウス
物件紹介
ジーベック東日暮里サウスは東京メトロ日比谷線三ノ輪駅から徒歩7分にあり、駅近で通勤通学に便利なマンションです。
このお部屋は2階以上に位置しているので、通行人や周囲の住人からの視線が気になりにくく、防犯面でも安心。建物のエントランスはオートロックがついており、インターホンにはTVモニタもついているため、相手の顔を確認してから来客対応することができます。
おしゃれなデザイナーズ物件!人気の角部屋で周囲の居住者の生活音も気になりにくく、また、フローリングのお部屋なのでお掃除もラクラク。室内にはウォークインクローゼットがありますので、たくさんの荷物も効率的に収納ができます。キッチンはシステムキッチン仕様になっていますので、お料理好きの方にもぴったり。バス・トイレは別なので、のんびりお風呂タイムも楽しめるでしょう。また、雨の日でも浴室乾燥機を使えば、お洗濯も問題ありません。
通信設備面では、インターネットが無料で使えるので、月々の出費を抑えられるのも魅力です。また、BSアンテナ・CSアンテナがありCATVにも対応しているので、おうち時間も充実するでしょう(別途工事、BS・CS・CATVの契約料等が必要な場合あり)。
建物にはエレベーターがついているので、重い荷物があっても安心。共用部には宅配ボックスが設定されているので、不在の時にも荷物を受け取ることができます。また、ペット飼育の相談ができますので、あなたの大切な家族の一員も快適に暮らせるか、ぜひ確認してみてください。
このお部屋は2階以上に位置しているので、通行人や周囲の住人からの視線が気になりにくく、防犯面でも安心。建物のエントランスはオートロックがついており、インターホンにはTVモニタもついているため、相手の顔を確認してから来客対応することができます。
おしゃれなデザイナーズ物件!人気の角部屋で周囲の居住者の生活音も気になりにくく、また、フローリングのお部屋なのでお掃除もラクラク。室内にはウォークインクローゼットがありますので、たくさんの荷物も効率的に収納ができます。キッチンはシステムキッチン仕様になっていますので、お料理好きの方にもぴったり。バス・トイレは別なので、のんびりお風呂タイムも楽しめるでしょう。また、雨の日でも浴室乾燥機を使えば、お洗濯も問題ありません。
通信設備面では、インターネットが無料で使えるので、月々の出費を抑えられるのも魅力です。また、BSアンテナ・CSアンテナがありCATVにも対応しているので、おうち時間も充実するでしょう(別途工事、BS・CS・CATVの契約料等が必要な場合あり)。
建物にはエレベーターがついているので、重い荷物があっても安心。共用部には宅配ボックスが設定されているので、不在の時にも荷物を受け取ることができます。また、ペット飼育の相談ができますので、あなたの大切な家族の一員も快適に暮らせるか、ぜひ確認してみてください。
お金・契約の情報
※「-」と表示されているものは、実際は料金が発生するものもございます。詳細はお問い合わせください。
| 家賃 | 11.5万円 | 管理費・共益費 | 1.5万円 |
|---|---|---|---|
| 敷金 | なし | 礼金 | 11.5万円 |
| 入居決定でお祝い金最大100,000円 | |||
| 保証金 | - | 償却・敷引 | - |
| 住宅保険料 | - | 更新料 | - |
| 保証会社利用 | 必須 | 保証会社名 | - |
| 保証会社費用 | - | 保証会社備考 | 保証会社利用必 初回:月額総家賃の100%~ |
| 契約形態 | - | 契約期間 | - |
| 入居・引渡期間 | - | 現況 | - |
| 入居可能条件 | ペット相談 | ||
| 契約備考 | 当物件はオンラインまたはお近くの店舗でご相談お申込を承ります。リライフは首都圏23店舗のネットワークで豊富な物件情報をご提供いたします。当物件に類似した未公開物件のご提案も可能です。お気軽にお問い合わせください。違約金有:1年未満解約時総賃料1ヶ月 合計5.17万円(内訳:鍵交換代金3.3万円事務手数料(初回のみ)0.55万円除菌消臭サービス(初回のみ)1.32万円) 24h緊急サポート(月額)0.1万円 1DK 二人入居可/ペット相談 損保【1.8万円2年】 バストイレ別、バルコニー、エアコン、ガスコンロ対応、クロゼット、フローリング、TVインターホン、浴室乾燥機、オートロック、室内洗濯置、シューズボックス、システムキッチン、追焚機能浴室、角住戸、温水洗浄便座、脱衣所、エレベーター、洗面所独立、2口コンロ、駐輪場、宅配ボックス、CATV、光ファイバー、2面採光、BS・CS、防犯カメラ、ペット相談、24時間有人管理、分譲賃貸、ウォークインクロゼット、保証人不要、二人入居相談、全居室フローリング、ディンプルキー、ネット使用料不要、ダブルロックキー、24時間換気システム、3駅以上利用可、3沿線以上利用可、敷地内ごみ置き場、セキュリティ会社加入済、都市ガス、玄関収納、保証会社利用可、初期費用カード決済可 敷金積み増し【ペット飼育の場合敷金1ヶ月(総額)】 入居日:'26年4月中旬 | ||
部屋の情報
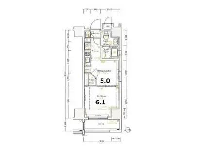
| 間取り | 1DK | 専有面積 | 27.87m2 |
|---|---|---|---|
| 所在階 / 向き | 3階 / 西 | バルコニー面積 | - |
| 水道 / ガス | - | ||
| 設備 | バス・トイレ別、2階以上、オートロック、テレビドアホン、宅配ボックス、浴室乾燥機、ウォークインクローゼット、追い焚き、インターネット対応、システムキッチン、エアコン、エレベーター、温水洗浄便座、角部屋、バルコニー、フローリング、洗髪洗面化粧台、2口コンロ、コンロ:ガス、CATV、CSアンテナ、BSアンテナ、インターネット使用料無料、洗濯機:室内 | ||
| 当社物件ID | 160500596 | ||
建物の情報
| 建物名 | ジーベック東日暮里サウス | ||
|---|---|---|---|
| 所在地 | 東京都荒川区東日暮里 | ||
| 交通 | 東京メトロ日比谷線 三ノ輪駅 徒歩7分 都電荒川線 荒川区役所前駅 徒歩8分 JR常磐線 三河島駅 徒歩11分 | ||
| 階数 | 8階建 | 総戸数 | - |
| 築年月 | 2016年06月 / 築10年 | エレベーター | あり |
| 駐車場 | なし | バイク置き場 | - |
| 駐輪場 | あり | 管理人/管理会社 | - |
| 周辺環境 | その他 オリンピック 三ノ輪店(スーパー)まで239m その他 まいばすけっと 三ノ輪店(スーパー)まで406m その他 セブンイレブン荒川東日暮里1丁目店(コンビニ)まで135m その他 ローソン東日暮里一丁目店(コンビニ)まで423m その他 どらっぐぱぱす 三ノ輪店(ドラッグストア)まで392m その他 ポニークリーニング 三ノ輪駅前(その他)まで384m | ||
| 建物種別 | マンション | 建物構造 | RC(鉄筋コンクリート) |
この部屋の取扱い不動産会社
| 会社名 | (株)リライフ四谷店(SUUMO経由) | ||
|---|---|---|---|
| 所在地 | 東京都新宿区四谷1-3-23 | 交通 | - |
| 営業時間 | 10:00~20:00 | 定休日 | なし |
| 免許番号 | 国土交通大臣10792 | 取引態様 | 仲介 |
| 不動産会社管理番号 | 100491482147 | 当社管理番号 | 89 |
| 所属団体 | (公社)東京都宅地建物取引業協会会員 | ||
| 公正取引協議会 | (公社)首都圏不動産公正取引協議会加盟 | ||
| 取扱い物件情報 | 物件詳細へ | ||
※各種情報と現状に差異がある場合は、現状優先となります。問い合わせをすることで、より詳しい条件、情報を確認する事ができます。
提供:(株)リライフ四谷店(SUUMO経由)
この物件が気になったら掲載期限まであと10日
ジーベック東日暮里サウスに条件(家賃・エリア)が近い物件一覧
| 写真 | 家賃 管理費等 | 敷金 礼金 | 間取り 専有面積 | 築年数 | 最寄り駅 所在地 | キープ | 詳細 |
|---|---|---|---|---|---|---|---|
マンション J.GRAN COURT 浅草(1DK/9階) | |||||||
![]() | 13.9万円 1万円 | 13.9万円 なし | 1DK 26.26m2 | 築3年 | つくばエクスプレス 浅草駅(つくばEXP) 徒歩7分 東京メトロ銀座線 浅草駅(東武・都営・メトロ) 徒歩8分 都営浅草線 浅草駅(東武・都営・メトロ) 徒歩8分 東京都台東区浅草 | 詳細を見る | |
マンション ALIVIS東十条(1DK/3階) | |||||||
![]() | 15.55万円 1.5万円 | なし なし | 1DK 31.5m2 | 築1年 | JR埼京線 十条駅(東京) 徒歩11分 JR京浜東北線 東十条駅 徒歩12分 東京メトロ南北線 王子神谷駅 徒歩21分 東京都北区十条仲原 | 詳細を見る | |
マンション HW.HILLS綾瀬(1LDK/5階) | |||||||
![]() | 15.6万円 1万円 | なし なし | 1LDK 40.05m2 | 築1年 | 東京メトロ千代田線 綾瀬駅 徒歩6分 JR常磐線 綾瀬駅 徒歩6分 つくばエクスプレス 青井駅 徒歩20分 東京都足立区東綾瀬 | 詳細を見る | |
アパート レオパレスアドヴァン(1K/1階) | |||||||
![]() | 7.5万円 5,500円 | なし 7.5万円 | 1K 19.87m2 | 築22年 | つくばエクスプレス 八潮駅 徒歩27分 東京メトロ千代田線 北綾瀬駅 徒歩30分 東京都足立区神明 | 詳細を見る | |
マンション 親水令和(1LDK/2階) | |||||||
![]() | 11万円 1万円 | なし 11万円 | 1LDK 40.78m2 | 築7年 | 日暮里・舎人ライナー 見沼代親水公園駅 徒歩1分 日暮里・舎人ライナー 舎人駅 徒歩11分 日暮里・舎人ライナー 舎人公園駅 徒歩26分 東京都足立区舎人 | 詳細を見る | |
マンション アクサス文京関口(1K/7階) | |||||||
![]() | 12万円 1.5万円 | なし なし | 1K 24.09m2 | 築18年 | 東京メトロ有楽町線 江戸川橋駅 徒歩2分 東京メトロ東西線 神楽坂駅 徒歩8分 都営大江戸線 牛込神楽坂駅 徒歩16分 東京都文京区関口 | 詳細を見る | |
マンション フリージア梅島(1LDK/5階) | |||||||
![]() | 8.9万円 1.2万円 | 8.9万円 8.9万円 | 1LDK 29.28m2 | 築1年 | 東武伊勢崎線 梅島駅 徒歩10分 東武伊勢崎線 五反野駅 徒歩10分 東武伊勢崎線 小菅駅 徒歩22分 東京都足立区梅田 | 詳細を見る | |
アパート 梅田六丁目8 DESIGNERS DIIRA(1DK/3階) | |||||||
![]() | 8.6万円 4,000円 | なし 8.6万円 | 1DK 27.12m2 | 築1年 | 東武伊勢崎線 梅島駅 徒歩10分 東武伊勢崎線 西新井駅 徒歩16分 東武伊勢崎線 五反野駅 徒歩20分 東京都足立区梅田 | 詳細を見る | |








