賃貸アパート
レオパレスアウリオンの賃貸物件情報(1K/2階)
| 家賃 | 管理費等 | 敷金 | 礼金 | 間取り | 専有面積 |
|---|---|---|---|---|---|
| 4.5万円 | 6,000円 | なし | なし | 1K | 28.02m2 |
入居決定でお祝い金最大100,000円
Point
まずはお問い合わせ!
不動産会社は街のプロ、あなたに合った物件がきっと見つかります。
提供:ハウスコム関東株式会社 宇都宮店

詳細情報 レオパレスアウリオン
物件紹介
レオパレスアウリオンは東北本線氏家駅から徒歩20分にあるアパートです。
このお部屋は2階以上に位置しているので、通行人や周囲の住人からの視線が気になりにくく、防犯面でも安心。インターホンにはTVモニタもついているため、相手の顔を確認してから来客対応することができます。
バス・トイレ別の仕様で、のんびりお風呂タイムも楽しめます。
通信設備面では、インターネット接続が可能です(別途工事、契約料が必要な場合あり)。
このお部屋は2階以上に位置しているので、通行人や周囲の住人からの視線が気になりにくく、防犯面でも安心。インターホンにはTVモニタもついているため、相手の顔を確認してから来客対応することができます。
バス・トイレ別の仕様で、のんびりお風呂タイムも楽しめます。
通信設備面では、インターネット接続が可能です(別途工事、契約料が必要な場合あり)。
お金・契約の情報
※「-」と表示されているものは、実際は料金が発生するものもございます。詳細はお問い合わせください。
| 家賃 | 4.5万円 | 管理費・共益費 | 6,000円 |
|---|---|---|---|
| 敷金 | なし | 礼金 | なし |
| 入居決定でお祝い金最大100,000円 | |||
| 保証金 | - | 償却・敷引 | - |
| 住宅保険料 | 1円 | 更新料 | - |
| その他費用 | 抗菌施工(任意):2.376万円 | ||
| 保証会社利用 | 必須 | 保証会社名 | - |
| 保証会社費用 | - | 保証会社備考 | 保証料:61790円(契約内容により100〜120%で変動有)※記載金額は120%の場合 |
| 契約形態 | - | 契約期間 | - |
| 入居・引渡期間 | 即時 | 現況 | - |
| 契約備考 | 鍵交換費10450円、抗菌施工(任意)18040円から23760円(税込)/環境維持費550円/月、更新手数料16500円/2年(税込)/基本清掃料:34100円(税込) 月額(環境維持費 550円) 鍵交換費用:16500 室内清掃費用:41800 その他設備/条件:室内洗濯機置き場 | ||
部屋の情報
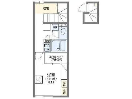
| 間取り | 1K | 専有面積 | 28.02m2 |
|---|---|---|---|
| 所在階 / 向き | 2階 / - | バルコニー面積 | - |
| 水道 / ガス | - | ||
| 設備 | バス・トイレ別、テレビドアホン、光ファイバー対応、エアコン、コンロ:電気 | ||
| 当社物件ID | 12427518 | ||
建物の情報
| 建物名 | レオパレスアウリオン | ||
|---|---|---|---|
| 所在地 | 栃木県さくら市氏家 | ||
| 交通 | 東北本線 氏家駅 徒歩20分 | ||
| 階数 | 2階建 | 総戸数 | 22戸 |
| 築年月 | 2007年08月 / 築19年 | エレベーター | - |
| 駐車場 | 空有 6,600円/月 | バイク置き場 | - |
| 駐輪場 | - | 管理人/管理会社 | - |
| 周辺環境 | 販売店 徒歩7分(509m) 小学校 さくら市立氏家小学校 徒歩14分(1113m) その他 ドラッグストア その他 公園 その他 銀行 その他 * | ||
| 建物種別 | アパート | 建物構造 | 木造 |
この部屋の取扱い不動産会社
| 会社名 | ハウスコム関東株式会社 宇都宮店 | ||
|---|---|---|---|
| 所在地 | 栃木県宇都宮市5-9笠島ビル1階 | 交通 | - |
| 営業時間 | 10:00~18:00 | 定休日 | - |
| 免許番号 | 国土交通大臣(1)第10263号 | 取引態様 | 仲介 |
| 不動産会社管理番号 | HC5-1942973-204-0041 | 当社管理番号 | 468 |
| 所属団体 | 一般社団法人全国住宅産業協会/公益社団法人首都圏不動産公正取引協議会/公益財団法人日本賃貸住宅管理協会、 | ||
| 取扱い物件情報 | 物件詳細へ | ||
※各種情報と現状に差異がある場合は、現状優先となります。問い合わせをすることで、より詳しい条件、情報を確認する事ができます。
提供:ハウスコム関東株式会社 宇都宮店
この物件が気になったら掲載期限まであと5日
レオパレスアウリオンに条件(家賃・エリア)が近い物件一覧
| 写真 | 家賃 管理費等 | 敷金 礼金 | 間取り 専有面積 | 築年数 | 最寄り駅 所在地 | キープ | 詳細 |
|---|---|---|---|---|---|---|---|
マンション ニュー清住B棟(2DK/1階) | |||||||
![]() | 4.5万円 なし | 4.5万円 なし | 2DK 43.2m2 | 築40年 | 栃木県宇都宮市清住 | 詳細を見る | |
アパート エスペランサB(1LDK/1階) | |||||||
![]() | 5.4万円 5,000円 | なし 3万円 | 1LDK 33.6m2 | 築12年 | 東武宇都宮線 西川田駅 徒歩15分 東武宇都宮線 江曽島駅 徒歩21分 JR日光線 鶴田駅 徒歩35分 栃木県宇都宮市西川田町 | 詳細を見る | |
アパート DI青柳B(1K/2階) | |||||||
![]() | 3.2万円 なし | なし なし | 1K 23.18m2 | 築30年 | 東北本線 西那須野駅 徒歩54分 東北本線 那須塩原駅 徒歩92分 栃木県大田原市山の手1丁目 | 詳細を見る | |
アパート RE.TSURUTA A(1LDK/2階) | |||||||
![]() | 6.6万円 なし | 6.6万円 6.6万円 | 1LDK 52.76m2 | 築12年 | 栃木県宇都宮市鶴田町 | 詳細を見る | |
アパート カーサキムラ(2DK/2階) | |||||||
![]() | 4.3万円 なし | なし なし | 2DK 40.48m2 | 築29年 | JR宇都宮線 岡本駅(栃木) 徒歩34分 栃木県宇都宮市御幸本町 | 詳細を見る | |
アパート ユニヴァリィⅡ岩曽(1LDK/2階) | |||||||
![]() | 6.7万円 4,000円 | 6.7万円 なし | 1LDK 43.35m2 | 新築 | 東北本線 宇都宮駅 徒歩62分 栃木県宇都宮市岩曽町 | 詳細を見る | |
アパート 清水ハウス中棟(1K/1階) | |||||||
![]() | 3万円 なし | 3万円 なし | 1K 23.1m2 | 築48年 | 東北本線 岡本駅(栃木) 徒歩16分 栃木県宇都宮市下岡本町 | 詳細を見る | |
アパート フィカーサイシイAJ(1K/2階) | |||||||
![]() | 6.7万円 2,000円 | 6.7万円 6.7万円 | 1K 35.1m2 | 築1年 | JR宇都宮線 宇都宮駅 徒歩45分 栃木県宇都宮市石井町 | 詳細を見る | |









