賃貸マンション
プレサンス神戸キュリオの賃貸物件情報(1K/8階)
| 家賃 | 管理費等 | 敷金 | 礼金 | 間取り | 専有面積 |
|---|---|---|---|---|---|
| 6.47万円 | 8,390円 | なし | 8万円 | 1K | 22.08m2 |
入居決定でお祝い金最大100,000円
- 保証金
- -
- 償却・敷引
- -
- 築年数
- 築6年
- 所在階
- 8階
- 向き
- 北
Point
《オンライン内見/相談可》遠方の方やお急ぎの内覧希望等ご相談ください!インターネット掲載の気になるお部屋もあわせてご紹介出来ますので是非ご相談ください。公式LINE及びホームページ・Instagr
提供:(株)SuMirai(SUUMO経由)

詳細情報 プレサンス神戸キュリオ
物件紹介
プレサンス神戸キュリオはJR東海道本線神戸駅から徒歩4分にあり、駅近で通勤通学に便利なマンションです。
このお部屋は2階以上に位置しているので、通行人や周囲の住人からの視線が気になりにくく、防犯面でも安心。建物のエントランスはオートロックがついており、インターホンにはTVモニタもついているため、相手の顔を確認してから来客対応することができます。
こちらは楽器相談が可能な物件。楽器演奏をお考えの方はぜひ相談してみてください。フローリングのお部屋なのでお掃除もラクラク。キッチンはシステムキッチン仕様になっていますので、お料理好きの方にもぴったり。バス・トイレは別なので、のんびりお風呂タイムも楽しめるでしょう。また、雨の日でも浴室乾燥機を使えば、お洗濯も問題ありません。
通信設備面では、インターネットが無料で使えるので、月々の出費を抑えられるのも魅力です。また、BSアンテナ・CSアンテナがありCATVにも対応しているので、おうち時間も充実するでしょう(別途工事、BS・CS・CATVの契約料等が必要な場合あり)。
建物にはエレベーターがついているので、重い荷物があっても安心。共用部には宅配ボックスが設定されているので、不在の時にも荷物を受け取ることができます。
このお部屋は2階以上に位置しているので、通行人や周囲の住人からの視線が気になりにくく、防犯面でも安心。建物のエントランスはオートロックがついており、インターホンにはTVモニタもついているため、相手の顔を確認してから来客対応することができます。
こちらは楽器相談が可能な物件。楽器演奏をお考えの方はぜひ相談してみてください。フローリングのお部屋なのでお掃除もラクラク。キッチンはシステムキッチン仕様になっていますので、お料理好きの方にもぴったり。バス・トイレは別なので、のんびりお風呂タイムも楽しめるでしょう。また、雨の日でも浴室乾燥機を使えば、お洗濯も問題ありません。
通信設備面では、インターネットが無料で使えるので、月々の出費を抑えられるのも魅力です。また、BSアンテナ・CSアンテナがありCATVにも対応しているので、おうち時間も充実するでしょう(別途工事、BS・CS・CATVの契約料等が必要な場合あり)。
建物にはエレベーターがついているので、重い荷物があっても安心。共用部には宅配ボックスが設定されているので、不在の時にも荷物を受け取ることができます。
お金・契約の情報
※「-」と表示されているものは、実際は料金が発生するものもございます。詳細はお問い合わせください。
| 家賃 | 6.47万円 | 管理費・共益費 | 8,390円 |
|---|---|---|---|
| 敷金 | なし | 礼金 | 8万円 |
| 入居決定でお祝い金最大100,000円 | |||
| 保証金 | - | 償却・敷引 | - |
| 住宅保険料 | - | 更新料 | - |
| 保証会社利用 | 必須 | 保証会社名 | - |
| 保証会社費用 | - | 保証会社備考 | 保証会社利用必 詳しくはお問合せ下さいませ。 詳しくはお問合せ下さいませ。 |
| 契約形態 | - | 契約期間 | - |
| 入居・引渡期間 | 即時 | 現況 | - |
| 契約備考 | 巡回管理/エリア問わず、こんな物件に住んでみたい、こんな条件で探してほしいなどのお客様一人ひとりのご要望をお聞かせください。地域密着店舗だからこそ、ご紹介できるお部屋も多数ご用意させていただいております。スタッフがお客様のお部屋探しを全力でサポートさせていただきますので是非エスラボへお問合せください! 合計6.75万円(内訳:1.8万円エアコン洗浄代/退去時1.65万円鍵交換代3.3万円) 更新料 新賃料1.00ヶ月分 室内清掃費用 33000円 24hサポート 月額880円 月額保証料 月額800円 引落し手数料 月額440円 1K 二人入居可/事務所利用不可 普通借家2年 損保【2万円2年】 バストイレ別、バルコニー、エアコン、ガスコンロ対応、クロゼット、フローリング、TVインターホン、浴室乾燥機、オートロック、室内洗濯置、シューズボックス、エレベーター、洗面所独立、駐輪場、宅配ボックス、CATV、即入居可、照明付、分譲賃貸、2沿線利用可、CS、2駅利用可、3駅以上利用可、3沿線以上利用可、駅徒歩5分以内、駅徒歩10分以内、都市ガス、BS | ||
部屋の情報
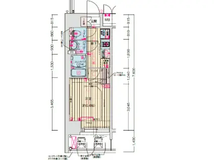
| 間取り | 1K | 専有面積 | 22.08m2 |
|---|---|---|---|
| 所在階 / 向き | 8階 / 北 | バルコニー面積 | - |
| 水道 / ガス | - | ||
| 設備 | バス・トイレ別、2階以上、オートロック、テレビドアホン、宅配ボックス、浴室乾燥機、エアコン、エレベーター、バルコニー、フローリング、洗髪洗面化粧台、コンロ:ガス、CATV、CSアンテナ、BSアンテナ、洗濯機:室内 | ||
| 当社物件ID | 34287540 | ||
建物の情報
| 建物名 | プレサンス神戸キュリオ | ||
|---|---|---|---|
| 所在地 | 兵庫県神戸市中央区相生町 | ||
| 交通 | JR東海道本線 神戸駅(兵庫) 徒歩4分 地下鉄海岸線 ハーバーランド駅 徒歩4分 神戸高速鉄道東西線 西元町駅 徒歩10分 | ||
| 階数 | 15階建 | 総戸数 | 84戸 |
| 築年月 | 2020年03月 / 築6年 | エレベーター | あり |
| 駐車場 | 空有 18700円 | バイク置き場 | - |
| 駐輪場 | あり | 管理人/管理会社 | - |
| 周辺環境 | その他 古湊保育所(幼稚園・保育園)まで381m その他 セブンイレブン 神戸相生町5丁目店(コンビニ)まで163m その他 ファミリーマート 神戸相生店(コンビニ)まで247m その他 ファミリーマート 東川崎町店(コンビニ)まで299m その他 スギ薬局 新開地店(ドラッグストア)まで215m その他 中島動物病院(病院)まで425m | ||
| 建物種別 | マンション | 建物構造 | RC(鉄筋コンクリート) |
この部屋の取扱い不動産会社
| 会社名 | Estate Lab兵庫駅前店(株)K'sLAB(SUUMO経由) | ||
|---|---|---|---|
| 所在地 | 兵庫県神戸市兵庫区駅南通1-2-38 パルス兵庫ビル104 | 交通 | - |
| 営業時間 | 10:00~19:00 | 定休日 | - |
| 免許番号 | 兵庫県知事12482 | 取引態様 | 仲介 |
| 不動産会社管理番号 | 100424215186 | 当社管理番号 | 89 |
| 所属団体 | (一社)兵庫県宅地建物取引業協会会員 | ||
| 公正取引協議会 | (公社)近畿地区不動産公正取引協議会加盟 | ||
| 取扱い物件情報 | 物件詳細へ | ||
※各種情報と現状に差異がある場合は、現状優先となります。問い合わせをすることで、より詳しい条件、情報を確認する事ができます。
提供:Estate Lab兵庫駅前店(株)K'sLAB(SUUMO経由)
この物件が気になったら掲載期限まであと11日
プレサンス神戸キュリオに条件(家賃・エリア)が近い物件一覧
| 写真 | 家賃 管理費等 | 敷金 礼金 | 間取り 専有面積 | 築年数 | 最寄り駅 所在地 | キープ | 詳細 |
|---|---|---|---|---|---|---|---|
アパート グランシード住吉(2LDK/1階) | |||||||
![]() | 8.9万円 なし | 2万円 なし | 2LDK 50m2 | 築27年 | 山陽電気鉄道本線 山陽魚住駅 徒歩3分 山陽電気鉄道本線 西江井ケ島駅 徒歩12分 山陽本線 魚住駅 徒歩15分 兵庫県明石市魚住町住吉2丁目 | 詳細を見る | |
アパート 神戸電鉄粟生線 恵比須駅 徒歩8分 築14年(1K/2階) | |||||||
![]() | 5.8万円 4,000円 | なし 5.8万円 | 1K 35.26m2 | 築14年 | 神戸電鉄粟生線 恵比須駅 徒歩8分 兵庫県三木市大塚 | 詳細を見る | |
アパート ペルル5(1LDK/1階) | |||||||
![]() | 7.6万円 4,500円 | 7.6万円 なし | 1LDK 42.5m2 | 築1年 | 山陽電気鉄道本線 藤江駅 徒歩5分 山陽本線 西明石駅 徒歩20分 山陽電気鉄道本線 中八木駅 徒歩20分 兵庫県明石市藤江 | 詳細を見る | |
アパート グリーンハイツ(2LDK/2階) | |||||||
![]() | 6.1万円 なし | 2万円 なし | 2LDK 50m2 | 築27年 | 山陽電鉄本線 東二見駅 徒歩6分 山陽電鉄本線 山陽魚住駅 徒歩20分 山陽電鉄本線 西二見駅 徒歩23分 兵庫県明石市二見町東二見 | 詳細を見る | |
アパート ガーデンハウス・KⅤ(1K/1階) | |||||||
![]() | 7.4万円 3,500円 | なし 7.4万円 | 1K 33.2m2 | 新築 | 東海道・山陽新幹線 西明石駅 徒歩8分 山陽本線 西明石駅 徒歩8分 山陽電気鉄道本線 藤江駅 徒歩16分 兵庫県明石市西明石西町2丁目 | 詳細を見る | |
アパート MKホーム広野(1LDK/1階) | |||||||
![]() | 6.5万円 なし | なし 13万円 | 1LDK 45.36m2 | 築47年 | 神戸電鉄粟生線 広野ゴルフ場前駅 徒歩11分 神戸電鉄粟生線 志染駅 徒歩20分 神戸電鉄粟生線 緑が丘駅(兵庫) 徒歩20分 兵庫県三木市志染町広野6丁目 | 詳細を見る | |
アパート 山陽電気鉄道本線 大蔵谷駅 徒歩6分 築9年(ワンルーム/1階) | |||||||
![]() | 5.2万円 3,000円 | なし 10.4万円 | ワンルーム 28.57m2 | 築9年 | 山陽電気鉄道本線 大蔵谷駅 徒歩6分 山陽本線 朝霧駅 徒歩12分 山陽電気鉄道本線 人丸前駅 徒歩15分 兵庫県明石市朝霧町2丁目 | 詳細を見る | |
アパート ウエストヒルズB(1LDK/1階) | |||||||
![]() | 5.7万円 3,500円 | なし 11.4万円 | 1LDK 46.49m2 | 築17年 | 山陽電気鉄道本線 山陽魚住駅 徒歩9分 山陽本線 魚住駅 徒歩11分 兵庫県明石市魚住町住吉3 | 詳細を見る | |







