賃貸アパート
ルアンカパルの賃貸物件情報(ワンルーム/1階)
| 家賃 | 管理費等 | 敷金 | 礼金 | 間取り | 専有面積 |
|---|---|---|---|---|---|
| 7.7万円 | 3,000円 | 7.7万円 | なし | ワンルーム | 16.56m2 |
入居決定でお祝い金最大100,000円
Point
★WEB相談・WEB内見・IT重説に対応。来店不要でご契約まで可能です。初期費用(一部)クレジット決済対応。詳細はお問い合わせください。お問合せはタウンハウジングまで★
提供:(株)レントハウス調布店(SUUMO経由)

詳細情報 ルアンカパル
物件紹介
ルアンカパルは京王線つつじケ丘駅から徒歩5分にあり、駅近で通勤通学に便利なアパートです。
建物のエントランスはオートロックがついており、インターホンにはTVモニタもついているため、相手の顔を確認してから来客対応することができます。
おしゃれなデザイナーズ物件!キッチンはシステムキッチン仕様になっていますので、お料理好きの方にもぴったり。また、バス・トイレは別で、のんびりお風呂タイムも楽しめるでしょう。
通信設備面では、インターネット接続が可能です。また、BSアンテナ・CSアンテナがありCATVにも対応しているので、おうち時間も充実するでしょう(別途工事、契約料が必要な場合あり)。
共用部には宅配ボックスが設定されているので、不在の時にも荷物を受け取ることができます。
建物のエントランスはオートロックがついており、インターホンにはTVモニタもついているため、相手の顔を確認してから来客対応することができます。
おしゃれなデザイナーズ物件!キッチンはシステムキッチン仕様になっていますので、お料理好きの方にもぴったり。また、バス・トイレは別で、のんびりお風呂タイムも楽しめるでしょう。
通信設備面では、インターネット接続が可能です。また、BSアンテナ・CSアンテナがありCATVにも対応しているので、おうち時間も充実するでしょう(別途工事、契約料が必要な場合あり)。
共用部には宅配ボックスが設定されているので、不在の時にも荷物を受け取ることができます。
お金・契約の情報
※「-」と表示されているものは、実際は料金が発生するものもございます。詳細はお問い合わせください。
| 家賃 | 7.7万円 | 管理費・共益費 | 3,000円 |
|---|---|---|---|
| 敷金 | 7.7万円 | 礼金 | なし |
| 入居決定でお祝い金最大100,000円 | |||
| 保証金 | - | 償却・敷引 | - |
| 住宅保険料 | - | 更新料 | - |
| 保証会社利用 | 必須 | 保証会社名 | - |
| 保証会社費用 | - | 保証会社備考 | 保証会社利用必 賃貸保証料:0.50ヶ月 初回保証料 賃料等総額の50% 月額保証 賃料等総額の1% |
| 契約形態 | 定期借家 | 契約期間 | 2年 |
| 入居・引渡期間 | 即時 | 現況 | - |
| 契約備考 | 巡回管理/★エリア掲載数ナンバー1★見積り・初期費用お気軽にご相談下さい★初期費用クレジット決済相談★不動産賃貸ならタウンハウジング東京にお任せ下さい、皆様からのご連絡お待ちしております。 合計2.2万円(内訳:サポート24:22000円) 更新料新賃料(ヶ月):1.00ヶ月 ワンルーム 単身者可 定期借家2年 損保【1.8万円2年】 バストイレ別、バルコニー、エアコン、ガスコンロ対応、クロゼット、フローリング、オートロック、室内洗濯置、陽当り良好、シューズボックス、システムキッチン、CATV、光ファイバー、外壁タイル張り、即入居可、礼金不要、閑静な住宅地、2面採光、防犯カメラ、照明付、ロフト、全居室洋室、保証人不要、単身者相談、敷金1ヶ月、24時間緊急通報システム、防犯シャッター、全居室フローリング、デザイナーズ、玄関ホール、2沿線利用可、ネット専用回線、駅まで平坦、緑豊かな住宅地、眺望良好、保証金不要、24時間換気システム、2駅利用可、3駅以上利用可、駅徒歩5分以内、駅徒歩10分以内、上階無し、敷地内ごみ置き場、東南向き、全居室6畳以上、全居室8畳以上、都市ガス、BS、高速ネット対応、IT重説対応物件、初期費用カード決済可、家賃カード決済可、通風良好 | ||
部屋の情報
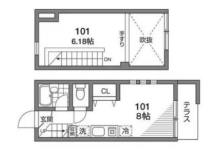
| 間取り | ワンルーム | 専有面積 | 16.56m2 |
|---|---|---|---|
| 所在階 / 向き | 1階 / 南東 | バルコニー面積 | - |
| 水道 / ガス | - | ||
| 設備 | バス・トイレ別、オートロック、インターネット対応、システムキッチン、エアコン、南向き、バルコニー、フローリング、ロフトあり、コンロ:ガス、デザイナーズ、CATV、BSアンテナ、洗濯機:室内 | ||
| 当社物件ID | 11175122 | ||
建物の情報
| 建物名 | ルアンカパル | ||
|---|---|---|---|
| 所在地 | 東京都調布市菊野台 | ||
| 交通 | 京王線 つつじケ丘駅 徒歩5分 京王線 柴崎駅 徒歩9分 京王線 仙川駅 徒歩20分 | ||
| 階数 | 2階建 | 総戸数 | - |
| 築年月 | 2004年02月 / 築22年 | エレベーター | - |
| 駐車場 | 近隣 200m18000円 | バイク置き場 | - |
| 駐輪場 | - | 管理人/管理会社 | - |
| 周辺環境 | その他 スーパー(スーパー)まで550m その他 コンビニ(コンビニ)まで500m その他 飲食店(その他)まで500m | ||
| 建物種別 | アパート | 建物構造 | 木造 |
この部屋の取扱い不動産会社
| 会社名 | (株)タウンハウジング東京 調布店(SUUMO経由) | ||
|---|---|---|---|
| 所在地 | 東京都調布市布田1-41-1 菊屋ビルB1階 | 交通 | - |
| 営業時間 | AM10:00~PM7:00 | 定休日 | 水曜日 |
| 免許番号 | 国土交通大臣9926 | 取引態様 | 仲介 |
| 不動産会社管理番号 | 100459770995 | 当社管理番号 | 89 |
| 所属団体 | (公社)東京都宅地建物取引業協会会員 | ||
| 公正取引協議会 | (公社)首都圏不動産公正取引協議会加盟 | ||
| 取扱い物件情報 | 物件詳細へ | ||
※各種情報と現状に差異がある場合は、現状優先となります。問い合わせをすることで、より詳しい条件、情報を確認する事ができます。
提供:(株)タウンハウジング東京 調布店(SUUMO経由)
この物件が気になったら掲載期限まであと10日
ルアンカパルに条件(家賃・エリア)が近い物件一覧
| 写真 | 家賃 管理費等 | 敷金 礼金 | 間取り 専有面積 | 築年数 | 最寄り駅 所在地 | キープ | 詳細 |
|---|---|---|---|---|---|---|---|
マンション ピアセーヌ・エビス(1K/3階) | |||||||
![]() | 7.7万円 なし | 7.7万円 7.7万円 | 1K 27.43m2 | 築27年 | 京王線 千歳烏山駅 徒歩9分 京王線 芦花公園駅 徒歩11分 京王線 八幡山駅 徒歩20分 東京都世田谷区北烏山 | 詳細を見る | |
アパート コーポ伊佐(1K/2階) | |||||||
![]() | 6.3万円 なし | 6.3万円 6.3万円 | 1K 23.5m2 | 築29年 | 小田急線 祖師ケ谷大蔵駅 徒歩10分 小田急線 千歳船橋駅 徒歩12分 小田急線 成城学園前駅 徒歩23分 東京都世田谷区砧 | 詳細を見る | |
マンション ガーラ・アヴェニュー調布(1DK/10階) | |||||||
![]() | 10.6万円 9,000円 | 10.6万円 21.2万円 | 1DK 26.33m2 | 築4年 | 京王線 調布駅 徒歩8分 京王線 西調布駅 徒歩15分 京王線 布田駅 徒歩18分 東京都調布市小島町 | 詳細を見る | |
アパート ビバリーホームズ笹塚AP(1K/1階) | |||||||
![]() | 7.2万円 なし | 7.2万円 7.2万円 | 1K 22.71m2 | 築23年 | 京王線 代田橋駅 徒歩5分 京王線 笹塚駅 徒歩7分 京王井の頭線 新代田駅 徒歩13分 東京都世田谷区大原 | 詳細を見る | |
マンション エトワール駒沢大学(1K/6階) | |||||||
![]() | 12万円 1万円 | 12万円 12万円 | 1K 25.29m2 | 築5年 | 東急田園都市線 駒沢大学駅 徒歩12分 東急田園都市線 三軒茶屋駅 徒歩20分 東急東横線 学芸大学駅 徒歩21分 東京都世田谷区野沢 | 詳細を見る | |
アパート 第2桜杉ハイツ(1K/2階) | |||||||
![]() | 5.6万円 なし | 5.6万円 5.6万円 | 1K 20m2 | 築41年 | 東急世田谷線 上町駅 徒歩8分 小田急線 経堂駅 徒歩12分 小田急線 豪徳寺駅 徒歩19分 東京都世田谷区桜 | 詳細を見る | |
マンション エスペルーモ桜新町(1K/3階) | |||||||
![]() | 9万円 1.4万円 | なし 9万円 | 1K 26m2 | 築10年 | 東急田園都市線 桜新町駅 徒歩8分 東急世田谷線 上町駅 徒歩10分 東急田園都市線 駒沢大学駅 徒歩24分 東京都世田谷区弦巻 | 詳細を見る | |
アパート ハイムオレオ(1K/1階) | |||||||
![]() | 6.5万円 なし | 6.5万円 6.5万円 | 1K 20m2 | 築41年 | 東急大井町線 九品仏駅 徒歩5分 東急大井町線 尾山台駅 徒歩13分 東急東横線 自由が丘駅(東京) 徒歩13分 東京都世田谷区奥沢 | 詳細を見る | |








