賃貸マンション
ビレッジハウス春日1 1号棟の賃貸物件情報(3DK/4階)
| 家賃 | 管理費等 | 敷金 | 礼金 | 間取り | 専有面積 |
|---|---|---|---|---|---|
| 5.68万円 | なし | なし | なし | 3DK | 57.96m2 |
入居決定でお祝い金最大100,000円
- 保証金
- -
- 償却・敷引
- -
- 築年数
- 築59年
- 所在階
- 4階
- 向き
- 南
Point
まずはお問い合わせ!
不動産会社は街のプロ、あなたに合った物件がきっと見つかります。
提供:アパマンショップ枚方長尾駅前店

詳細情報 ビレッジハウス春日1 1号棟
物件紹介
ビレッジハウス春日1 1号棟は片町線津田駅から徒歩10分にあり、駅近で通勤通学に便利なマンションです。
このお部屋は2階以上に位置しているので、通行人や周囲の住人からの視線が気になりにくく、防犯面でも安心。インターホンにはTVモニタもついているため、相手の顔を確認してから来客対応することができます。
人気の南向きのお部屋。バス・トイレ別の仕様で、のんびりお風呂タイムも楽しめます。
通信設備面では、インターネット接続が可能です(別途工事、契約料が必要な場合あり)。
ペット飼育の相談ができますので、あなたの大切な家族の一員も快適に暮らせるか、ぜひ確認してみてください。
このお部屋は2階以上に位置しているので、通行人や周囲の住人からの視線が気になりにくく、防犯面でも安心。インターホンにはTVモニタもついているため、相手の顔を確認してから来客対応することができます。
人気の南向きのお部屋。バス・トイレ別の仕様で、のんびりお風呂タイムも楽しめます。
通信設備面では、インターネット接続が可能です(別途工事、契約料が必要な場合あり)。
ペット飼育の相談ができますので、あなたの大切な家族の一員も快適に暮らせるか、ぜひ確認してみてください。
お金・契約の情報
※「-」と表示されているものは、実際は料金が発生するものもございます。詳細はお問い合わせください。
| 家賃 | 5.68万円 | 管理費・共益費 | なし |
|---|---|---|---|
| 敷金 | なし | 礼金 | なし |
| フリーレント | 1ヶ月 | ||
| 入居決定でお祝い金最大100,000円 | |||
| 保証金 | - | 償却・敷引 | - |
| 住宅保険料 | 1万円(2年) | 更新料 | - |
| 保証会社利用 | - | 保証会社名 | - |
| 保証会社費用 | - | 保証会社備考 | - |
| 契約形態 | - | 契約期間 | - |
| 入居・引渡期間 | - | 現況 | 空室 |
| 入居可能条件 | 2人入居可、高齢者相談、学生可、ペット相談 | ||
| 契約備考 | 契約種類:普通契約、24時間緊急対応 | ||
部屋の情報
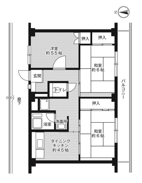
| 間取り | 3DK | 専有面積 | 57.96m2 |
|---|---|---|---|
| 所在階 / 向き | 4階 / 南 | バルコニー面積 | - |
| 水道 / ガス | - | ||
| 設備 | バス・トイレ別、テレビドアホン、追い焚き、エアコン、バルコニー、給湯、洗濯機:室内 | ||
| 当社物件ID | 27956718 | ||
建物の情報
| 建物名 | ビレッジハウス春日1 1号棟 | ||
|---|---|---|---|
| 所在地 | 大阪府枚方市春日東町2丁目3-1 | ||
| 交通 | 片町線 津田駅 徒歩12分 京阪電気鉄道交野線 郡津駅 徒歩28分 片町線 藤阪駅 徒歩34分 | ||
| 階数 | 5階建 | 総戸数 | - |
| 築年月 | 1967年07月 / 築59年 | エレベーター | - |
| 駐車場 | 空有 円 | バイク置き場 | - |
| 駐輪場 | - | 管理人/管理会社 | 日勤 |
| 建物種別 | マンション | 建物構造 | RC(鉄筋コンクリート) |
この部屋の取扱い不動産会社
| 会社名 | ビレッジハウス住まい相談センター | ||
|---|---|---|---|
| 所在地 | 愛知県名古屋市中区大須4-10-32 上前津KDビル5階 | 交通 | 名城線「上前津駅」徒歩3分 |
| 営業時間 | 平日:9:00-18:30/土日祝:9:00-18:00 | 定休日 | 年末年始休業:2025年12月27日~2026年1月4日 |
| 免許番号 | 東京都知事(2)第100758号 | 取引態様 | 貸主 |
| 不動産会社管理番号 | 00011770973 | 当社管理番号 | 459 |
| 所属団体 | 公益社団法人東京都宅地建物取引業協会会員 日本賃貸住宅管理協会会員 | ||
| 取扱い物件情報 | 物件詳細へ | ||
※各種情報と現状に差異がある場合は、現状優先となります。問い合わせをすることで、より詳しい条件、情報を確認する事ができます。
提供:ビレッジハウス住まい相談センター
この物件が気になったら掲載期限まであと13日
ビレッジハウス春日1 1号棟に条件(家賃・エリア)が近い物件一覧
| 写真 | 家賃 管理費等 | 敷金 礼金 | 間取り 専有面積 | 築年数 | 最寄り駅 所在地 | キープ | 詳細 |
|---|---|---|---|---|---|---|---|
マンション CASA・SOL(ワンルーム/1階) | |||||||
| 6万円 3,000円 | 6万円 6万円 | ワンルーム 22.56m2 | 築31年 | 阪急電鉄京都線 高槻市駅 徒歩10分 東海道本線 高槻駅 徒歩10分 東海道本線 摂津富田駅 徒歩37分 大阪府高槻市野見町5-42 | 詳細を見る | ||
アパート レオパレスソフィア高槻(1K/1階) | |||||||
| 5.7万円 5,000円 | なし 5.7万円 | 1K 19.87m2 | 築20年 | 阪急電鉄京都線 富田駅(大阪) 徒歩15分 東海道本線 摂津富田駅 徒歩16分 阪急電鉄京都線 茨木市駅 徒歩41分 大阪府高槻市如是町29-10 | 詳細を見る | ||
アパート 片町線 藤阪駅 徒歩13分 築20年(1LDK/1階) | |||||||
![]() | 5.7万円 3,300円 | 5.7万円 なし | 1LDK 40.32m2 | 築20年 | 片町線 藤阪駅 徒歩13分 片町線 長尾駅(大阪) 徒歩14分 大阪府枚方市藤阪元町3丁目 | 詳細を見る | |
アパート グレースメゾン(2DK/1階) | |||||||
| 6.2万円 3,000円 | なし 10万円 | 2DK 45m2 | 築30年 | 阪急電鉄京都線 高槻市駅 徒歩18分 東海道本線 高槻駅 徒歩18分 東海道本線 摂津富田駅 徒歩34分 大阪府高槻市城南町1丁目1-10 | 詳細を見る | ||
アパート 京阪電気鉄道京阪線 光善寺駅 徒歩13分 築17年(2SLDK/2階) | |||||||
![]() | 7.4万円 4,000円 | なし 14.8万円 | 2SLDK 58.73m2 | 築17年 | 京阪電気鉄道京阪線 光善寺駅 徒歩13分 京阪電気鉄道京阪線 枚方公園駅 徒歩22分 大阪府枚方市翠香園町 | 詳細を見る | |
アパート セレニテ高槻(1K/7階) | |||||||
| 7.2万円 8,000円 | なし 7.2万円 | 1K 24.82m2 | 築17年 | 阪急電鉄京都線 高槻市駅 徒歩8分 東海道本線 高槻駅 徒歩9分 東海道本線 摂津富田駅 徒歩38分 大阪府高槻市野見町3-21 | 詳細を見る | ||
アパート 大原マンション(2DK/2階) | |||||||
![]() | 5.7万円 3,000円 | なし 5.7万円 | 2DK 40m2 | 築53年 | 東海道本線 高槻駅 徒歩15分 阪急電鉄京都線 高槻市駅 徒歩19分 東海道本線 摂津富田駅 徒歩54分 大阪府高槻市古曽部町3丁目 | 詳細を見る | |
マンション 京阪電気鉄道京阪線 枚方市駅 徒歩6分 築13年(1LDK/5階) | |||||||
![]() | 8万円 7,000円 | なし 8万円 | 1LDK 35.01m2 | 築13年 | 京阪電気鉄道京阪線 枚方市駅 徒歩6分 京阪電気鉄道京阪線 枚方公園駅 徒歩10分 大阪府枚方市新町1丁目 | 詳細を見る | |




