賃貸マンション
ポートヴィラ靭公園の賃貸物件情報(1DK/7階)
| 家賃 | 管理費等 | 敷金 | 礼金 | 間取り | 専有面積 |
|---|---|---|---|---|---|
| 8万円 | 1万円 | 9万円 | 18万円 | 1DK | 30.13m2 |
入居決定でお祝い金最大100,000円
Point
収納はクロゼット・シューズボックスなどが備え付けられているので、衣類や日用品の収納に重宝します。
提供:アパマンショップ江坂駅前店

詳細情報 ポートヴィラ靭公園
物件紹介
ポートヴィラ靭公園は地下鉄千日前線阿波座駅から徒歩1分にあり、駅近で通勤通学に便利なマンションです。
このお部屋は2階以上に位置しているので、通行人や周囲の住人からの視線が気になりにくく、防犯面でも安心。建物のエントランスはオートロックがついており、インターホンにはTVモニタもついているため、相手の顔を確認してから来客対応することができます。
おしゃれなデザイナーズ物件!また、楽器相談が可能な物件となっているので、楽器演奏をお考えの方はぜひ相談してみてください。人気の南向き・フローリングのお部屋。室内にはウォークインクローゼットがありますので、たくさんの荷物も効率的に収納ができます。キッチンはシステムキッチン仕様になっていますので、お料理好きの方にもぴったり。バス・トイレは別なので、のんびりお風呂タイムも楽しめるでしょう。また、雨の日でも浴室乾燥機を使えば、お洗濯も問題ありません。
通信設備面では、インターネット接続が可能です。また、BSアンテナ・CSアンテナがありCATVにも対応しているので、おうち時間も充実するでしょう(別途工事、契約料が必要な場合あり)。
建物にはエレベーターがついているので、重い荷物があっても安心。共用部には宅配ボックスが設定されているので、不在の時にも荷物を受け取ることができます。
コンビニまで徒歩4分の場所にあり、日用品や食料品のお買い物にも便利です。
このお部屋は2階以上に位置しているので、通行人や周囲の住人からの視線が気になりにくく、防犯面でも安心。建物のエントランスはオートロックがついており、インターホンにはTVモニタもついているため、相手の顔を確認してから来客対応することができます。
おしゃれなデザイナーズ物件!また、楽器相談が可能な物件となっているので、楽器演奏をお考えの方はぜひ相談してみてください。人気の南向き・フローリングのお部屋。室内にはウォークインクローゼットがありますので、たくさんの荷物も効率的に収納ができます。キッチンはシステムキッチン仕様になっていますので、お料理好きの方にもぴったり。バス・トイレは別なので、のんびりお風呂タイムも楽しめるでしょう。また、雨の日でも浴室乾燥機を使えば、お洗濯も問題ありません。
通信設備面では、インターネット接続が可能です。また、BSアンテナ・CSアンテナがありCATVにも対応しているので、おうち時間も充実するでしょう(別途工事、契約料が必要な場合あり)。
建物にはエレベーターがついているので、重い荷物があっても安心。共用部には宅配ボックスが設定されているので、不在の時にも荷物を受け取ることができます。
コンビニまで徒歩4分の場所にあり、日用品や食料品のお買い物にも便利です。
お金・契約の情報
※「-」と表示されているものは、実際は料金が発生するものもございます。詳細はお問い合わせください。
| 家賃 | 8万円 | 管理費・共益費 | 1万円 |
|---|---|---|---|
| 敷金 | 9万円 | 礼金 | 18万円 |
| 入居決定でお祝い金最大100,000円 | |||
| 保証金 | - | 償却・敷引 | - |
| 住宅保険料 | 1円 | 更新料 | - |
| 保証会社利用 | 必須 | 保証会社名 | - |
| 保証会社費用 | - | 保証会社備考 | 初回保証委託料(最低20,000円):月額賃料等の50%、2年目以降:96,00円/年 |
| 契約形態 | - | 契約期間 | 2年 |
| 入居・引渡期間 | 2025年12月 | 現況 | - |
| 契約備考 | 鍵交換費用:29700 室内清掃費用:46200 その他設備/条件:室内洗濯機置き場、独立洗面台、防犯カメラ、クローゼット、シューズボックス | ||
部屋の情報
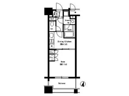
| 間取り | 1DK | 専有面積 | 30.13m2 |
|---|---|---|---|
| 間取り詳細 | DK(4.2帖)、洋室(7.3帖) | ||
| 所在階 / 向き | 7階 / 南 | バルコニー面積 | - |
| 水道 / ガス | 水道【公営】、ガス【都市】 | ||
| 設備 | バス・トイレ別、オートロック、テレビドアホン、宅配ボックス、インターネット対応、システムキッチン、エアコン、エレベーター、バルコニー、フローリング、2口コンロ、コンロ:ガス、CATV、CSアンテナ、BSアンテナ、シャワー、給湯 | ||
| 当社物件ID | 6523697 | ||
建物の情報
| 建物名 | ポートヴィラ靭公園 | ||
|---|---|---|---|
| 所在地 | 大阪府大阪市西区靱本町3丁目 | ||
| 交通 | 大阪メトロ中央線 阿波座駅 徒歩3分 大阪メトロ御堂筋線 本町駅 徒歩12分 | ||
| 階数 | 13階建 | 総戸数 | 86戸 |
| 築年月 | 2006年03月 / 築20年 | エレベーター | あり |
| 駐車場 | なし | バイク置き場 | あり |
| 駐輪場 | あり | 管理人/管理会社 | - |
| 周辺環境 | コンビニ 徒歩4分(287m) 販売店 徒歩3分(189m) その他 ドラッグストア その他 公園 その他 銀行 その他 * | ||
| 建物種別 | マンション | 建物構造 | RC(鉄筋コンクリート) |
この部屋の取扱い不動産会社
| 会社名 | 大阪ハウスコム株式会社 天六店 | ||
|---|---|---|---|
| 所在地 | 大阪府大阪市北区1-14ACOM天六ビル1階 | 交通 | - |
| 営業時間 | 10:00~18:00 | 定休日 | - |
| 免許番号 | 国土交通大臣(3)第8685号 | 取引態様 | 仲介 |
| 不動産会社管理番号 | HC2-3145079-703-0248 | 当社管理番号 | 468 |
| 所属団体 | 、 | ||
| 取扱い物件情報 | 物件詳細へ | ||
※各種情報と現状に差異がある場合は、現状優先となります。問い合わせをすることで、より詳しい条件、情報を確認する事ができます。
提供:大阪ハウスコム株式会社 天六店
この物件が気になったら掲載期限まであと4日
ポートヴィラ靭公園に条件(家賃・エリア)が近い物件一覧
| 写真 | 家賃 管理費等 | 敷金 礼金 | 間取り 専有面積 | 築年数 | 最寄り駅 所在地 | キープ | 詳細 |
|---|---|---|---|---|---|---|---|
マンション 梅村ハイツ(2DK/2階) | |||||||
![]() | 5.3万円 2,000円 | なし 10万円 | 2DK 46m2 | 築34年 | 関西本線 志紀駅 徒歩4分 近鉄大阪線 法善寺駅 徒歩13分 近鉄大阪線 恩智駅 徒歩17分 大阪府八尾市天王寺屋5丁目 | 詳細を見る | |
アパート 阪堺電気軌道阪堺線 船尾駅(大阪) 徒歩6分 築2年(1K/1階) | |||||||
![]() | 5.4万円 5,600円 | なし なし | 1K 27m2 | 築2年 | 阪堺電気軌道阪堺線 船尾駅(大阪) 徒歩6分 南海電鉄南海本線 諏訪ノ森駅 徒歩8分 南海電鉄南海本線 浜寺公園駅 徒歩17分 大阪府堺市西区浜寺諏訪森町東2丁 | 詳細を見る | |
アパート 阪和線 富木駅 徒歩36分 築1年(2LDK/2階) | |||||||
![]() | 7.8万円 5,000円 | なし 7.8万円 | 2LDK 42.33m2 | 築1年 | 阪和線 富木駅 徒歩36分 阪和線 鳳駅 徒歩38分 大阪府堺市西区菱木2丁 | 詳細を見る | |
マンション SERENITE江坂四番館(1K/3階) | |||||||
| 7.1万円 8,000円 | なし なし | 1K 24.52m2 | 築17年 | 阪急電鉄千里線 豊津駅(大阪) 徒歩9分 北大阪急行南北線 江坂駅 徒歩11分 阪急電鉄千里線 関大前駅 徒歩17分 大阪府吹田市垂水町3丁目15-23 | 詳細を見る | ||
アパート レガーロ鳳東町(ワンルーム/1階) | |||||||
![]() | 5.6万円 4,000円 | なし なし | ワンルーム 21m2 | 築1年 | 阪和線 鳳駅 徒歩7分 阪和線 富木駅 徒歩21分 阪和線 津久野駅 徒歩23分 大阪府堺市西区鳳東町3丁 | 詳細を見る | |
マンション 阪和線 津久野駅 徒歩2分 築28年(1K/2階) | |||||||
![]() | 4.8万円 5,000円 | なし なし | 1K 22.15m2 | 築28年 | 阪和線 津久野駅 徒歩2分 阪和線 上野芝駅 徒歩17分 阪和線 鳳駅 徒歩24分 大阪府堺市西区津久野町2丁 | 詳細を見る | |





