賃貸マンション
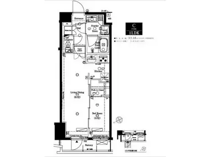
AXAS代々木八幡アジールコートの賃貸物件情報(1LDK/4階)
| 家賃 | 管理費等 | 敷金 | 礼金 | 間取り | 専有面積 |
|---|---|---|---|---|---|
| 17.5万円 | 1.5万円 | なし | なし | 1LDK | 33.58m2 |
入居決定でお祝い金最大100,000円
- 保証金
- -
- 償却・敷引
- -
- 築年数
- 築9年
- 所在階
- 4階
- 向き
- 北西
Point
【内見予約可能】→詳細は渋谷区・港区特化のリアルビジョンへお問い合わせくださいませ☆彡
提供:(株)リアルビジョン(SUUMO経由)

詳細情報 AXAS代々木八幡アジールコート
物件紹介
AXAS代々木八幡アジールコートは京王新線初台駅から徒歩11分にあるマンションです。
このお部屋は2階以上に位置しているので、通行人や周囲の住人からの視線が気になりにくく、防犯面でも安心。建物のエントランスはオートロックがついており、インターホンにはTVモニタもついているため、相手の顔を確認してから来客対応することができます。
フローリングのお部屋なのでお掃除もラクラク。室内には人気のウォークインクローゼットがありますので、たくさんの荷物も効率的に収納ができます。キッチンはシステムキッチン仕様になっていますので、お料理好きの方にもぴったり。バス・トイレは別なので、のんびりお風呂タイムも楽しめるでしょう。また、雨の日でも浴室乾燥機を使えば、お洗濯も問題ありません。
通信設備面では、インターネットが無料で使えるので、月々の出費を抑えられるのも魅力です。また、BSアンテナ・CSアンテナもありますので、おうち時間も充実するでしょう(別途工事、BS・CSの契約料等が必要な場合あり)。
建物にはエレベーターがついているので、重い荷物があっても安心。共用部には宅配ボックスが設定されているので、不在の時にも荷物を受け取ることができます。また、ペット飼育の相談ができますので、あなたの大切な家族の一員も快適に暮らせるか、ぜひ確認してみてください。
このお部屋は2階以上に位置しているので、通行人や周囲の住人からの視線が気になりにくく、防犯面でも安心。建物のエントランスはオートロックがついており、インターホンにはTVモニタもついているため、相手の顔を確認してから来客対応することができます。
フローリングのお部屋なのでお掃除もラクラク。室内には人気のウォークインクローゼットがありますので、たくさんの荷物も効率的に収納ができます。キッチンはシステムキッチン仕様になっていますので、お料理好きの方にもぴったり。バス・トイレは別なので、のんびりお風呂タイムも楽しめるでしょう。また、雨の日でも浴室乾燥機を使えば、お洗濯も問題ありません。
通信設備面では、インターネットが無料で使えるので、月々の出費を抑えられるのも魅力です。また、BSアンテナ・CSアンテナもありますので、おうち時間も充実するでしょう(別途工事、BS・CSの契約料等が必要な場合あり)。
建物にはエレベーターがついているので、重い荷物があっても安心。共用部には宅配ボックスが設定されているので、不在の時にも荷物を受け取ることができます。また、ペット飼育の相談ができますので、あなたの大切な家族の一員も快適に暮らせるか、ぜひ確認してみてください。
お金・契約の情報
※「-」と表示されているものは、実際は料金が発生するものもございます。詳細はお問い合わせください。
| 家賃 | 17.5万円 | 管理費・共益費 | 1.5万円 |
|---|---|---|---|
| 敷金 | なし | 礼金 | なし |
| 入居決定でお祝い金最大100,000円 | |||
| 保証金 | - | 償却・敷引 | - |
| 住宅保険料 | - | 更新料 | - |
| 保証会社利用 | 必須 | 保証会社名 | - |
| 保証会社費用 | - | 保証会社備考 | 保証会社利用必 初回保証料:賃料等の40%または50% |
| 契約形態 | - | 契約期間 | - |
| 入居・引渡期間 | 即時 | 現況 | - |
| 入居可能条件 | ペット相談 | ||
| 契約備考 | 巡回管理/※ペット飼育時:詳細要確認※1年以内の解約時短期解約違約金として賃料の1か月分 合計2万円(内訳:入居サポート20000円/2年) 退去時室内清掃費:60500円、エアコン清掃費:13200円/台、退去時鍵交換費用:38500円 1LDK ペット相談 損保【2万円2年】 バストイレ別、バルコニー、エアコン、ガスコンロ対応、フローリング、TVインターホン、浴室乾燥機、オートロック、室内洗濯置、シューズボックス、システムキッチン、温水洗浄便座、エレベーター、洗面所独立、宅配ボックス、BS・CS、3口以上コンロ、防犯カメラ、ペット相談、分譲賃貸、全居室洋室、ウォークインクロゼット、保証人不要、ディンプルキー、ネット使用料不要、24時間換気システム、耐震構造、3駅以上利用可、3沿線以上利用可、駅徒歩10分以内、24時間ゴミ出し可、敷地内ごみ置き場、都市ガス、敷金・礼金不要、IT重説対応物件 | ||
部屋の情報
| 間取り | 1LDK | 専有面積 | 33.58m2 |
|---|---|---|---|
| 所在階 / 向き | 4階 / 北西 | バルコニー面積 | - |
| 水道 / ガス | - | ||
| 設備 | バス・トイレ別、2階以上、オートロック、テレビドアホン、宅配ボックス、浴室乾燥機、ウォークインクローゼット、インターネット対応、システムキッチン、エアコン、エレベーター、温水洗浄便座、バルコニー、フローリング、洗髪洗面化粧台、2口コンロ、コンロ:ガス、CSアンテナ、BSアンテナ、インターネット使用料無料、洗濯機:室内 | ||
| 当社物件ID | 159003416 | ||
建物の情報
| 建物名 | AXAS代々木八幡アジールコート | ||
|---|---|---|---|
| 所在地 | 東京都渋谷区初台 | ||
| 交通 | 京王新線 初台駅 徒歩11分 京王新線 幡ケ谷駅 徒歩12分 小田急線 代々木八幡駅 徒歩12分 | ||
| 階数 | 6階建 | 総戸数 | - |
| 築年月 | 2017年09月 / 築9年 | エレベーター | あり |
| 駐車場 | なし | バイク置き場 | - |
| 駐輪場 | - | 管理人/管理会社 | - |
| 周辺環境 | その他 オーケー初台店(スーパー)まで313m その他 まいばすけっと初台駅南店(スーパー)まで559m その他 セブンイレブン初台店(コンビニ)まで156m その他 ローソン渋谷元代々木町店(コンビニ)まで475m その他 ドラッグセイムス代々木西原店(ドラッグストア)まで444m その他 ココカラファイン代々木上原店(ドラッグストア)まで855m | ||
| 建物種別 | マンション | 建物構造 | RC(鉄筋コンクリート) |
この部屋の取扱い不動産会社
| 会社名 | (株)リアルビジョン渋谷桜丘支店(SUUMO経由) | ||
|---|---|---|---|
| 所在地 | 東京都渋谷区桜丘町 29-26 エクセレンスビルディング桜丘町301 | 交通 | - |
| 営業時間 | 10:00~19:00 | 定休日 | 無し |
| 免許番号 | 東京都知事86601 | 取引態様 | 仲介 |
| 不動産会社管理番号 | 100443271022 | 当社管理番号 | 89 |
| 取扱い物件情報 | 物件詳細へ | ||
※各種情報と現状に差異がある場合は、現状優先となります。問い合わせをすることで、より詳しい条件、情報を確認する事ができます。
提供:(株)リアルビジョン渋谷桜丘支店(SUUMO経由)
この物件が気になったら掲載期限まであと7日
AXAS代々木八幡アジールコートに条件(家賃・エリア)が近い物件一覧
| 写真 | 家賃 管理費等 | 敷金 礼金 | 間取り 専有面積 | 築年数 | 最寄り駅 所在地 | キープ | 詳細 |
|---|---|---|---|---|---|---|---|
マンション オーキッドレジデンス品川(1K/5階) | |||||||
![]() | 13.5万円 1万円 | なし なし | 1K 24.81m2 | 築18年 | 京急本線 北品川駅 徒歩8分 東京モノレール 天王洲アイル駅 徒歩10分 JR山手線 品川駅 徒歩15分 東京都品川区東品川 | 詳細を見る | |
マンション AUGUSTA RESIDENCE大森(1SLDK/8階) | |||||||
![]() | 21.7万円 1万円 | なし なし | 1SLDK 40.88m2 | 築1年 | 京急本線 大森海岸駅 徒歩5分 JR京浜東北線 大森駅(東京) 徒歩11分 東京モノレール 大井競馬場前駅 徒歩21分 東京都品川区南大井 | 詳細を見る | |
アパート ウィング 塩山(1DK/2階) | |||||||
![]() | 11万円 なし | 11万円 11万円 | 1DK 30.78m2 | 築34年 | 東急大井町線 荏原町駅 徒歩5分 東急大井町線 旗の台駅 徒歩5分 都営浅草線 中延駅 徒歩10分 東京都品川区旗の台 | 詳細を見る | |
マンション GRAN PASEO大森Ⅲ(ワンルーム/1階) | |||||||
![]() | 11万円 1万円 | なし なし | ワンルーム 20.01m2 | 築1年 | 京浜急行電鉄本線 大森海岸駅 徒歩6分 京浜東北・根岸線 大森駅(東京) 徒歩10分 東京モノレール羽田 大井競馬場前駅 徒歩22分 東京都品川区南大井3丁目 | 詳細を見る | |
アパート 御殿山テラスⅡ(2LDK/1階) | |||||||
![]() | 23.9万円 3,000円 | 23.9万円 なし | 2LDK 57.6m2 | 築2年 | 山手線 大崎駅 徒歩8分 京浜急行電鉄本線 北品川駅 徒歩14分 東京都品川区北品川5丁目 | 詳細を見る | |
マンション ハイツ髙沢(1LDK/2階) | |||||||
![]() | 13.5万円 5,000円 | 13.5万円 27万円 | 1LDK 32.89m2 | 築7年 | 東急池上線 旗の台駅 徒歩5分 東急大井町線 荏原町駅 徒歩6分 横須賀線 西大井駅 徒歩21分 東京都品川区旗の台4丁目 | 詳細を見る | |
マンション ジニア不動前(1DK/1階) | |||||||
![]() | 16.7万円 1.5万円 | 16.7万円 16.7万円 | 1DK 35.64m2 | 築5年 | 東急目黒線 不動前駅 徒歩7分 東急池上線 戸越銀座駅 徒歩11分 JR山手線 五反田駅 徒歩18分 東京都品川区西五反田 | 詳細を見る | |
マンション PISO ARCE SHINAGAWA(1LDK/3階) | |||||||
![]() | 22万円 5,000円 | 22万円 なし | 1LDK 41m2 | 築11年 | 京浜東北・根岸線 大井町駅 徒歩8分 京浜急行電鉄本線 青物横丁駅 徒歩10分 東京都品川区南品川6丁目 | 詳細を見る | |








