賃貸マンション
ウサミマンションの賃貸物件情報(2LDK/3階)
| 家賃 | 管理費等 | 敷金 | 礼金 | 間取り | 専有面積 |
|---|---|---|---|---|---|
| 19.5万円 | なし | 19.5万円 | なし | 2LDK | 56m2 |
入居決定でお祝い金最大100,000円
- 保証金
- -
- 償却・敷引
- -
- 築年数
- 築49年
- 所在階
- 3階
- 向き
- 南
Point
◆動画やテレビ電話でのご内見も可能です◆大江戸線「門前仲町」駅6番出口から徒歩1分!江東・中央・墨田でお部屋を貸したい借りたいのお手伝い◆スタッフ一同心よりお待ちしております!
提供:レントドゥ!門前仲町店(株)ハウスポン(SUUMO経由)

詳細情報 ウサミマンション
物件紹介
ウサミマンションは都営大江戸線門前仲町駅から徒歩7分にあり、駅近で通勤通学に便利なマンションです。
このお部屋は2階以上に位置しているので、通行人や周囲の住人からの視線が気になりにくく、防犯面でも安心。インターホンにはTVモニタもついているため、相手の顔を確認してから来客対応することができます。
人気の南向き・フローリングのお部屋。角部屋でもあるため、周囲の居住者の生活音も気になりにくい場所です。バス・トイレ別の仕様で、のんびりお風呂タイムも楽しめます。また、浴室乾燥機を使えば、雨の日でもお洗濯は問題ありません。
通信設備面では、インターネット接続が可能です(別途工事、契約料が必要な場合あり)。
建物にはエレベーターがついているので、重い荷物があっても安心。共用部には宅配ボックスが設定されているので、不在の時にも荷物を受け取ることができます。
このお部屋は2階以上に位置しているので、通行人や周囲の住人からの視線が気になりにくく、防犯面でも安心。インターホンにはTVモニタもついているため、相手の顔を確認してから来客対応することができます。
人気の南向き・フローリングのお部屋。角部屋でもあるため、周囲の居住者の生活音も気になりにくい場所です。バス・トイレ別の仕様で、のんびりお風呂タイムも楽しめます。また、浴室乾燥機を使えば、雨の日でもお洗濯は問題ありません。
通信設備面では、インターネット接続が可能です(別途工事、契約料が必要な場合あり)。
建物にはエレベーターがついているので、重い荷物があっても安心。共用部には宅配ボックスが設定されているので、不在の時にも荷物を受け取ることができます。
お金・契約の情報
※「-」と表示されているものは、実際は料金が発生するものもございます。詳細はお問い合わせください。
| 家賃 | 19.5万円 | 管理費・共益費 | なし |
|---|---|---|---|
| 敷金 | 19.5万円 | 礼金 | なし |
| 入居決定でお祝い金最大100,000円 | |||
| 保証金 | - | 償却・敷引 | - |
| 住宅保険料 | - | 更新料 | - |
| 保証会社利用 | 必須 | 保証会社名 | - |
| 保証会社費用 | - | 保証会社備考 | 保証会社利用必 詳細はお問い合わせください。 |
| 契約形態 | - | 契約期間 | - |
| 入居・引渡期間 | 相談 | 現況 | - |
| 契約備考 | リフォーム:2024年11月リノベーションリフォーム済/◎現地のお待ち合わせ、物件最寄り駅のお待ち合わせ大歓迎◎どうぞお気軽にお問い合わせくださいませ! 合計11.31万円(内訳:清掃代(退去時)80080円/24時間サポート16500円/鍵交換代16500円) ※詳細はお問い合わせください。 2LDK 普通借家2年 損保【要】 バストイレ別、バルコニー、エアコン、クロゼット、フローリング、TVインターホン、浴室乾燥機、室内洗濯置、陽当り良好、シューズボックス、南向き、角住戸、温水洗浄便座、エレベーター、洗面所独立、駐輪場、宅配ボックス、光ファイバー、礼金不要、3口以上コンロ、全居室洋室、敷金1ヶ月、バイク置場、全居室フローリング、3駅以上利用可、3沿線以上利用可、駅徒歩10分以内、敷地内ごみ置き場、平面駐車場、LDK12畳以上、全居室6畳以上、都市ガス、リノベーション | ||
部屋の情報
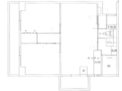
| 間取り | 2LDK | 専有面積 | 56m2 |
|---|---|---|---|
| 所在階 / 向き | 3階 / 南 | バルコニー面積 | - |
| 水道 / ガス | - | ||
| 設備 | バス・トイレ別、2階以上、テレビドアホン、宅配ボックス、浴室乾燥機、インターネット対応、エアコン、エレベーター、温水洗浄便座、南向き、角部屋、バルコニー、フローリング、洗髪洗面化粧台、2口コンロ、洗濯機:室内 | ||
| 当社物件ID | 157611856 | ||
建物の情報
| 建物名 | ウサミマンション | ||
|---|---|---|---|
| 所在地 | 東京都江東区冬木 | ||
| 交通 | 都営大江戸線 門前仲町駅 徒歩7分 東京メトロ東西線 木場駅 徒歩9分 東京メトロ半蔵門線 清澄白河駅 徒歩13分 | ||
| 階数 | 7階建 | 総戸数 | 50戸 |
| 築年月 | 1977年08月 / 築49年 | エレベーター | あり |
| 駐車場 | 空有 38500円 | バイク置き場 | あり |
| 駐輪場 | あり | 管理人/管理会社 | - |
| 周辺環境 | その他 セブンイレブン 江東冬木店(コンビニ)まで29m その他 TSUTAYA 門前仲町店(ショッピングセンター)まで167m その他 Akafudado(赤札堂) 深川店(スーパー)まで704m その他 オーケー 平野店(スーパー)まで537m その他 深川警察署(警察署・交番)まで531m その他 江東木場郵便局(郵便局)まで783m | ||
| 建物種別 | マンション | 建物構造 | RC(鉄筋コンクリート) |
この部屋の取扱い不動産会社
| 会社名 | レントドゥ!門前仲町店(株)ハウスポン(SUUMO経由) | ||
|---|---|---|---|
| 所在地 | 東京都江東区門前仲町1-20-5 | 交通 | - |
| 営業時間 | AM10:00~PM7:00 | 定休日 | 水曜日 |
| 免許番号 | 東京都知事86715 | 取引態様 | 仲介 |
| 不動産会社管理番号 | 100481597094 | 当社管理番号 | 89 |
| 所属団体 | (公社)全日本不動産協会東京都本部会員 | ||
| 公正取引協議会 | (公社)首都圏不動産公正取引協議会加盟 | ||
| 取扱い物件情報 | 物件詳細へ | ||
※各種情報と現状に差異がある場合は、現状優先となります。問い合わせをすることで、より詳しい条件、情報を確認する事ができます。
提供:レントドゥ!門前仲町店(株)ハウスポン(SUUMO経由)
この物件が気になったら掲載期限まであと11日
ウサミマンションに条件(家賃・エリア)が近い物件一覧
| 写真 | 家賃 管理費等 | 敷金 礼金 | 間取り 専有面積 | 築年数 | 最寄り駅 所在地 | キープ | 詳細 |
|---|---|---|---|---|---|---|---|
マンション CREVANCE亀戸(1LDK/3階) | |||||||
![]() | 15.75万円 7,200円 | なし なし | 1LDK 40.5m2 | 築1年 | 東武鉄道亀戸線 東あずま駅 徒歩6分 総武・中央緩行線 平井駅(東京) 徒歩15分 東京地下鉄半蔵門線 押上駅 徒歩26分 東京都墨田区立花4丁目 | 詳細を見る | |
マンション クオーレプロバンス本所(1K/5階) | |||||||
![]() | 12.4万円 5,000円 | 12.4万円 なし | 1K 25.11m2 | 築13年 | 東京都浅草線 本所吾妻橋駅 徒歩7分 東京地下鉄銀座線 浅草駅(東武・都営・メトロ) 徒歩14分 東京都墨田区本所3丁目 | 詳細を見る | |
マンション S-RESIDENCE押上CLAIR(1K/4階) | |||||||
![]() | 12.5万円 1万円 | なし 12.5万円 | 1K 26.08m2 | 築4年 | 東京地下鉄半蔵門線 押上駅 徒歩8分 京成電鉄押上線 押上駅 徒歩9分 東京都墨田区向島3丁目 | 詳細を見る | |
アパート M SONIA KUGAHARA(2LDK/1階) | |||||||
![]() | 16.5万円 3,000円 | 16.5万円 33万円 | 2LDK 49.27m2 | 築1年 | 東急池上線 久が原駅 徒歩8分 東急池上線 御嶽山駅 徒歩9分 東京都大田区西嶺町 | 詳細を見る | |
マンション ORSUS HONJOAZUMABASHI(1K/4階) | |||||||
![]() | 11.8万円 1万円 | 11.8万円 11.8万円 | 1K 25.38m2 | 築5年 | 東京都浅草線 本所吾妻橋駅 徒歩4分 東京地下鉄半蔵門線 押上駅 徒歩12分 東京都墨田区東駒形4丁目 | 詳細を見る | |
マンション ARKMARK水天宮前II(1DK/4階) | |||||||
![]() | 13.4万円 1.5万円 | なし なし | 1DK 25.56m2 | 築5年 | 東京メトロ半蔵門線 水天宮前駅 徒歩7分 都営大江戸線 門前仲町駅 徒歩10分 都営大江戸線 清澄白河駅 徒歩13分 東京都江東区佐賀 | 詳細を見る | |
マンション 品川シーサイドビュータワー2(1LDK/19階) | |||||||
![]() | 18.7万円 1.6万円 | なし 37.4万円 | 1LDK 53.13m2 | 築23年 | 東京臨海高速鉄道 品川シーサイド駅 徒歩3分 京浜急行電鉄本線 青物横丁駅 徒歩10分 京浜東北・根岸線 大井町駅 徒歩17分 東京都品川区東品川4丁目 | 詳細を見る | |
マンション T-APARTMENTS大森(1DK/1階) | |||||||
![]() | 12.8万円 5,000円 | 12.8万円 なし | 1DK 32.77m2 | 築14年 | JR京浜東北線 大森駅(東京) 徒歩5分 京急本線 大森海岸駅 徒歩7分 京急本線 平和島駅 徒歩18分 東京都大田区大森北 | 詳細を見る | |









