賃貸マンション
デトムワン西陣IIIの賃貸物件情報(1K/3階)
| 家賃 | 管理費等 | 敷金 | 礼金 | 間取り | 専有面積 |
|---|---|---|---|---|---|
| 5.3万円 | 5,000円 | 3万円 | 5.3万円 | 1K | 19.6m2 |
入居決定でお祝い金最大100,000円
- 保証金
- -
- 償却・敷引
- -
- 築年数
- 築37年
- 所在階
- 3階
- 向き
- 南
Point
2口コンロがあるのも嬉しいですよね☆同志社大学に通われる方にもおすすめな物件です!ぜひお問い合わせくださいませ♪送迎サービス実施中!
提供:アイイーライフ (株)OKAKO(SUUMO経由)

詳細情報 デトムワン西陣III
物件紹介
デトムワン西陣IIIは京福電鉄北野線北野白梅町駅から徒歩19分にあるマンションです。
このお部屋は2階以上に位置しているので、通行人や周囲の住人からの視線が気になりにくく、防犯面でも安心です。
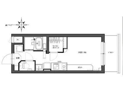
人気の南向きのお部屋。また、フローリングなのでお掃除もラクラク。キッチンはシステムキッチン仕様になっていますので、お料理好きの方にもぴったり。また、バス・トイレは別で、のんびりお風呂タイムも楽しめるでしょう。
このお部屋は2階以上に位置しているので、通行人や周囲の住人からの視線が気になりにくく、防犯面でも安心です。
人気の南向きのお部屋。また、フローリングなのでお掃除もラクラク。キッチンはシステムキッチン仕様になっていますので、お料理好きの方にもぴったり。また、バス・トイレは別で、のんびりお風呂タイムも楽しめるでしょう。
お金・契約の情報
※「-」と表示されているものは、実際は料金が発生するものもございます。詳細はお問い合わせください。
| 家賃 | 5.3万円 | 管理費・共益費 | 5,000円 |
|---|---|---|---|
| 敷金 | 3万円 | 礼金 | 5.3万円 |
| 入居決定でお祝い金最大100,000円 | |||
| 保証金 | - | 償却・敷引 | - |
| 住宅保険料 | - | 更新料 | - |
| 保証会社利用 | 必須 | 保証会社名 | - |
| 保証会社費用 | - | 保証会社備考 | 保証会社利用必 初回50% |
| 契約形態 | - | 契約期間 | - |
| 入居・引渡期間 | - | 現況 | - |
| 契約備考 | 合計1.65万円(内訳:鍵交換代16500円) 退去時ハウスクリーニング代27500円 1K 普通借家2年 損保【要】 バストイレ別、バルコニー、エアコン、クロゼット、フローリング、システムキッチン、南向き、温水洗浄便座、洗面所独立、洗面化粧台、2口コンロ、IHクッキングヒーター、分譲賃貸、内装リフォーム済、南面バルコニー、リノベーション、年度内入居可、IT重説対応物件 入居日:'26年3月末 | ||
部屋の情報
| 間取り | 1K | 専有面積 | 19.6m2 |
|---|---|---|---|
| 所在階 / 向き | 3階 / 南 | バルコニー面積 | - |
| 水道 / ガス | - | ||
| 設備 | バス・トイレ別、2階以上、システムキッチン、エアコン、温水洗浄便座、南向き、バルコニー、フローリング、洗髪洗面化粧台、2口コンロ、コンロ:IH | ||
| 当社物件ID | 38653303 | ||
建物の情報
| 建物名 | デトムワン西陣III | ||
|---|---|---|---|
| 所在地 | 京都府京都市上京区桐木町 | ||
| 交通 | 京福電鉄北野線 北野白梅町駅 徒歩19分 地下鉄烏丸線 今出川駅 徒歩23分 地下鉄烏丸線 鞍馬口駅 徒歩28分 | ||
| 階数 | 4階建 | 総戸数 | - |
| 築年月 | 1989年08月 / 築37年 | エレベーター | - |
| 駐車場 | なし | バイク置き場 | - |
| 駐輪場 | - | 管理人/管理会社 | - |
| 周辺環境 | その他 業務スーパー西陣店(スーパー)まで353m その他 セブンイレブン京都千本今出川店(コンビニ)まで379m その他 京都千本寺之内郵便局(郵便局)まで418m その他 上京区役所(役所)まで800m | ||
| 建物種別 | マンション | 建物構造 | RC(鉄筋コンクリート) |
この部屋の取扱い不動産会社
| 会社名 | アイイーライフ (株)OKAKO(SUUMO経由) | ||
|---|---|---|---|
| 所在地 | 京都府京都市上京区東堀川通下長者町下る三町目 13-3 ホーユーコンフォルト二条城前1階 | 交通 | - |
| 営業時間 | 午前10時~午後6時 | 定休日 | 毎週日曜日、第1・3・5水曜日 |
| 免許番号 | 京都府知事13365 | 取引態様 | 仲介 |
| 不動産会社管理番号 | 100485002412 | 当社管理番号 | 89 |
| 所属団体 | (公社)京都府宅地建物取引業協会会員 | ||
| 公正取引協議会 | (公社)近畿地区不動産公正取引協議会加盟 | ||
| 取扱い物件情報 | 物件詳細へ | ||
※各種情報と現状に差異がある場合は、現状優先となります。問い合わせをすることで、より詳しい条件、情報を確認する事ができます。
提供:アイイーライフ (株)OKAKO(SUUMO経由)
この物件が気になったら掲載期限まであと10日
デトムワン西陣IIIに条件(家賃・エリア)が近い物件一覧
| 写真 | 家賃 管理費等 | 敷金 礼金 | 間取り 専有面積 | 築年数 | 最寄り駅 所在地 | キープ | 詳細 |
|---|---|---|---|---|---|---|---|
マンション 木村第2ビル(2K/1階) | |||||||
![]() | 5万円 なし | 5万円 5万円 | 2K 20m2 | 築54年 | 地下鉄烏丸線 丸太町駅(京都市営) 徒歩12分 地下鉄東西線 二条城前駅 徒歩12分 地下鉄烏丸線 今出川駅 徒歩20分 京都府京都市上京区荒神町 | 詳細を見る | |
マンション 京都市烏丸線 鞍馬口駅 徒歩8分 築44年(1LDK/8階) | |||||||
![]() | 8万円 なし | 8万円 16万円 | 1LDK 49.6m2 | 築44年 | 京都市烏丸線 鞍馬口駅 徒歩8分 京都市烏丸線 北大路駅 徒歩16分 京都府京都市北区紫野宮東町 | 詳細を見る | |
アパート 京都市烏丸線 今出川駅 徒歩6分 築39年(1K/1階) | |||||||
![]() | 3.9万円 なし | 3万円 なし | 1K 18m2 | 築39年 | 京都市烏丸線 今出川駅 徒歩6分 京阪電気鉄道鴨東線 出町柳駅 徒歩20分 京都府京都市上京区常盤井図子町 | 詳細を見る | |
マンション ハイツエリート(1DK/4階) | |||||||
![]() | 3.8万円 4,000円 | なし なし | 1DK 22.72m2 | 築35年 | 京都市烏丸線 今出川駅 徒歩19分 京都府京都市上京区 | 詳細を見る | |
アパート 京都市烏丸線 鞍馬口駅 徒歩8分 築39年(1K/1階) | |||||||
![]() | 3.6万円 2,000円 | なし なし | 1K 19.25m2 | 築39年 | 京都市烏丸線 鞍馬口駅 徒歩8分 京都市烏丸線 今出川駅 徒歩15分 京都府京都市北区小山堀池町 | 詳細を見る | |
マンション 京阪電気鉄道宇治線 木幡駅(京阪) 徒歩12分 築41年(3LDK/3階) | |||||||
![]() | 8万円 1万円 | 8万円 15万円 | 3LDK 79m2 | 築41年 | 京阪電気鉄道宇治線 木幡駅(京阪) 徒歩12分 奈良線 木幡駅(JR) 徒歩13分 京都府宇治市木幡熊小路 | 詳細を見る | |
マンション 奈良線 木幡駅(JR) 徒歩4分 築32年(1K/1階) | |||||||
![]() | 4.8万円 なし | 9.6万円 なし | 1K 22.23m2 | 築32年 | 奈良線 木幡駅(JR) 徒歩4分 京阪電気鉄道宇治線 木幡駅(京阪) 徒歩8分 京都府宇治市木幡中村 | 詳細を見る | |
マンション 京福北野線 北野白梅町駅 徒歩14分 新築(1K/1階) | |||||||
![]() | 6.6万円 8,000円 | 7万円 9万円 | 1K 23.73m2 | 新築 | 京福北野線 北野白梅町駅 徒歩14分 山陰本線 円町駅 徒歩27分 京都府京都市北区平野宮敷町 | 詳細を見る | |









